PRACHTIGE, RUIME EN ENERGIEZUINIGE WONING OP MOOI PERCEEL
€ 699.000
Een pand van Het Vastgoedkantoor
Jouw zoektocht
Overzicht
- 402 m² bewoonbaar
- 1482 m² grond
- 3 Slaapkamer(s)
- 2 Badkamer(s)
- 2 Garage(s)
Beschrijving
Prachtige, ruime en energiezuinige woning op mooi perceel
Belangrijkste troeven:
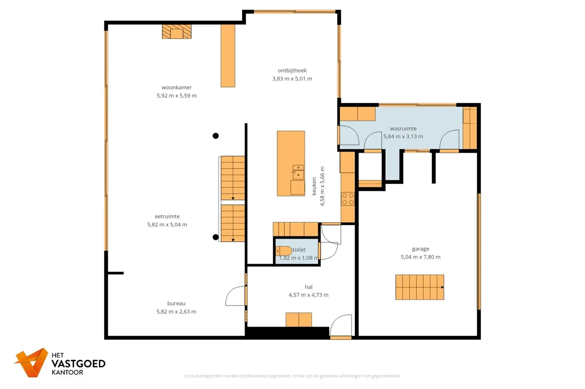
- Prachtige, ruime woning met uitzonderlijke leefruimtes
- Unieke leefruimte: 3,60m hoog plafond en enorm veel natuurlijk licht dankzij grote glaspartijen
- Leefruimte biedt ruimte voor oa zithoek, eetkamer, bureauruimte...
- Aansluitend is er de open leefkeuken met extra eet-/zithoek
- 3 slaapkamers en 2 badkamers
- 1 slaapkamer is voorzien van dressing en ensuite badkamer
- Zeer praktische indeling met oa dubbele inpandige garage
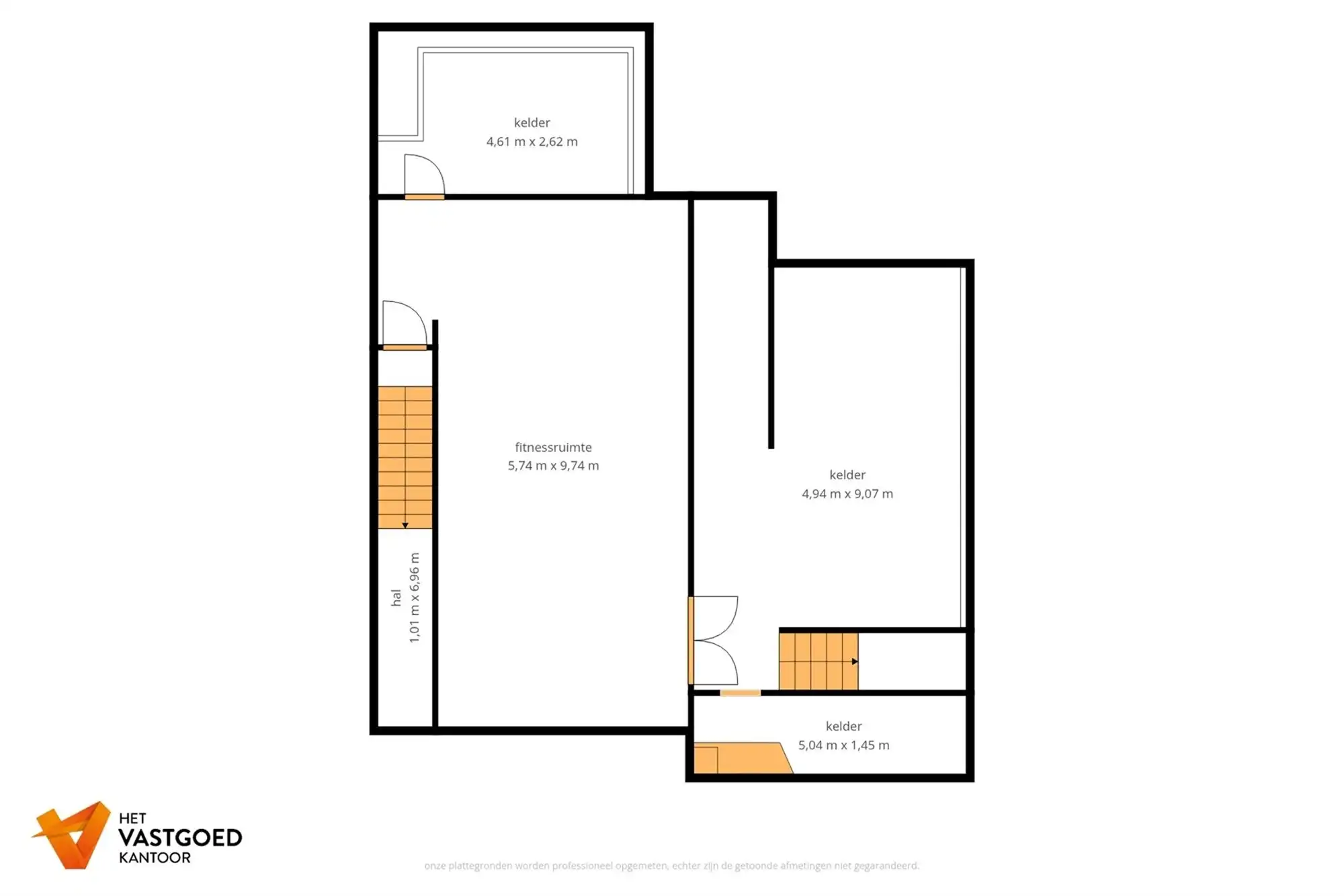
- Mooie kelderruimte, ideaal als bvb hobbyruimte
- 30 zonnepanelen met nog opbrengst groenestroomcertificaten van ca 1.750€/jaar!
- Extra's: domotica, screens, airco, vloerverwarming, laag energieverbruik (ca 86€/maand), ...
- Knap perceel van 1.482m2 met terras en zwemvijver
- Ideale ligging: rustig gelegen en goed bereikbaar
Bekijk zeker ook de 3D virtuele rondleiding en de grondplannen met de afmetingen. Zo krijgt u van thuis uit al een perfect beeld van wat deze woning te bieden heeft!
Wenst u meer info of een vrijblijvende bezichtiging, contacteer dan ons kantoor op het nummer 014 39 99 99 en wij helpen u graag verder.
Energie
![]() |
- EPC Certificaat: 20250812-0003662829-RES-1
- Energieverbruik: 121 kWh/m²/jaar
- E-peil: E0
- Beglazing: Standaard dubbel
Op de kaart

Financieel
| Prijs | |
|---|---|
| Kadastraal inkomen (niet geïndexeerd) | € 0 |
| Kadastraal inkomen (geïndexeerd) | € 0 |
Berekening kosten
Je aankoopkosten? Die heb je snel berekend via de knop hieronder.
Bijkomende info
Gebouw
| Bouwjaar | 2007 |
|---|---|
| Staat | Goed onderhouden |
| Bouwcertificaat | Nee |
| Bewoonbaar (m²) | 402 |
| Verdieping | 2 |
| Badkamers | 2 |
| Slaapkamers | 3 |
| Verdiepingen | 0 |
| Garages | 2 |
| Parkeerplaatsen | 2 |
| Doucheruimtes | 0 |
| Toiletten | 0 |
Faciliteiten
| Keuken uitrusting | Luxueus uitgerust |
|---|---|
| Materiaal ramenomlijstingen | Aluminium |
| Beglazing | Standaard dubbel |
| Elektrisch keuringsattest | Ja |
Perceel
| Overstromingsgevoelig | Geen |
|---|---|
| Voorkeurrecht | Ja |
| Totale oppervlakte (m²) | 1482 |
| Bebouwde oppervlakte (m²) | 0 |
| Tuin oppervlakte (m²) | 0 |
| Oppervlakte terras (m²) | 0 |
Vergunning
| Vergunning | Aanvraag ingediend |
|---|---|
| Verkavelingsvergunning | Aanvraag ingediend |
Uitrusting
| Investeringspand | Nee |
|---|---|
| Geschikt voor praktijk | Nee |
| Parking | Ja |
| Garage | Ja |
| Thuiskantoor | Nee |
| Kelder | Ja |
| Zolder | Nee |
| Tuin | Nee |
| Terras | Nee |
| Lift | Nee |
| Rioolaansluiting | Ja |
| Gasaansluiting | Ja |
| Wateraansluiting | Ja |
| Elektriciteitsaansluiting | Ja |
| TV aansluiting | Ja |
| Internetaansluiting | Ja |
| Telefoonaansluiting | Ja |
