RUIME WONING (4 SLPKS) OP RUIM PERCEEL 1498M2
€ 279.000
Een pand van Het Vastgoedkantoor
Jouw zoektocht
Overzicht
- 192 m² bewoonbaar
- 1498 m² grond
- 4 Slaapkamer(s)
- 1 Badkamer(s)
- 1 Garage(s)
Beschrijving
Ruime woning (4 slpks) op ruim perceel 1498m2
Belangrijkste troeven:
- Ruime woning met 4 slpks
- Leuke indeling met mooie leefruimtes
- Op verdieping: 4 slpks, berging en badkamer
- Ruim perceel van 1498m2
- Reeds vernieuwd: centrale verwarming en dak met isolatie
- Leuke veranda met zicht op de ruime tuin
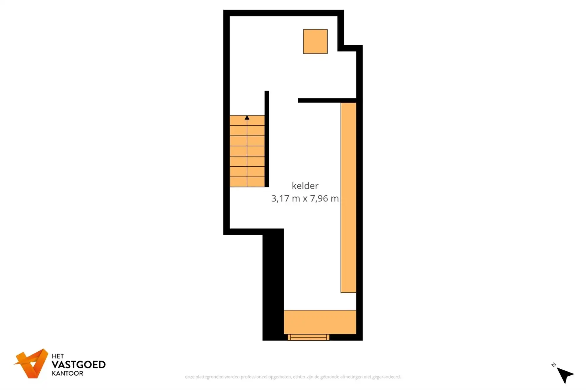
- Kelder, zolder en praktische garage
- Ideale ligging richting Mol en Balen en zeer rustig nabij bos
Bekijk zeker ook de grondplannen met de afmetingen. Zo krijgt u van thuis uit al een perfect beeld van wat deze woning te bieden heeft!
Wenst u meer info of een vrijblijvende bezichtiging, contacteer dan ons kantoor op het nummer 014 39 99 99 en wij helpen u graag verder.
Energie
![]() |
- EPC Certificaat: 3836441-RES-1
- Energieverbruik: 457 kWh/m²/jaar
- E-peil: E0
- Beglazing: Enkel
Extra budget nodig voor je renovatie?

Op de kaart

Financieel
| Prijs | |
|---|---|
| Kadastraal inkomen (niet geïndexeerd) | € 0 |
| Kadastraal inkomen (geïndexeerd) | € 0 |
Berekening kosten
Je aankoopkosten? Die heb je snel berekend via de knop hieronder.
Bijkomende info
Gebouw
| Bouwjaar | 1966 |
|---|---|
| Staat | Op te frissen |
| Bouwcertificaat | Nee |
| Bewoonbaar (m²) | 192 |
| Verdieping | 2 |
| Badkamers | 1 |
| Slaapkamers | 4 |
| Verdiepingen | 0 |
| Garages | 1 |
| Parkeerplaatsen | 0 |
| Doucheruimtes | 0 |
| Toiletten | 0 |
Faciliteiten
| Materiaal ramenomlijstingen | Hout |
|---|---|
| Beglazing | Enkel |
| Elektrisch keuringsattest | Nee |
Perceel
| Overstromingsgevoelig | Geen |
|---|---|
| Voorkeurrecht | Ja |
| Totale oppervlakte (m²) | 1498 |
| Bebouwde oppervlakte (m²) | 0 |
| Tuin oppervlakte (m²) | 0 |
| Oppervlakte terras (m²) | 0 |
| Oriëntatie tuin | Oost |
Vergunning
| Vergunning | Aanvraag ingediend |
|---|---|
| Verkavelingsvergunning | Aanvraag ingediend |
Uitrusting
| Investeringspand | Nee |
|---|---|
| Geschikt voor praktijk | Nee |
| Parking | Nee |
| Garage | Ja |
| Thuiskantoor | Nee |
| Kelder | Ja |
| Zolder | Ja |
| Tuin | Nee |
| Terras | Nee |
| Lift | Nee |
| Rioolaansluiting | Ja |
| Gasaansluiting | Ja |
| Wateraansluiting | Ja |
| Elektriciteitsaansluiting | Ja |
| TV aansluiting | Ja |
| Internetaansluiting | Ja |
| Telefoonaansluiting | Ja |



