RUIME NIEUWBOUWWONING OP RUSTIGE CENTRALE LIGGING TE BALEN
€ 369.000
Een pand van Het Vastgoedkantoor
Jouw zoektocht
Overzicht
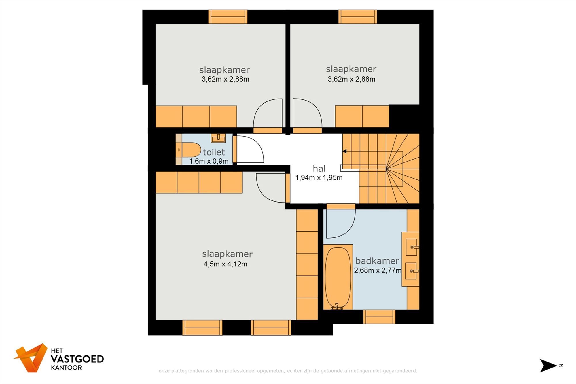
- 225 m² bewoonbaar
- 300 m² grond
- 3 Slaapkamer(s)
- 1 Badkamer(s)
Beschrijving
Ruime nieuwbouwwoning op rustige, centrale ligging.
Belangrijkste troeven:
- Ruime woning met 225m² bewoonbare oppervlakte
- De beste technieken: vloerverwarming + koeling (ook op slaapkamers) via warmtepomp
- Vrije keuze van afwerking volgens lastenboek
- Praktische indeling met mooie ruimtes
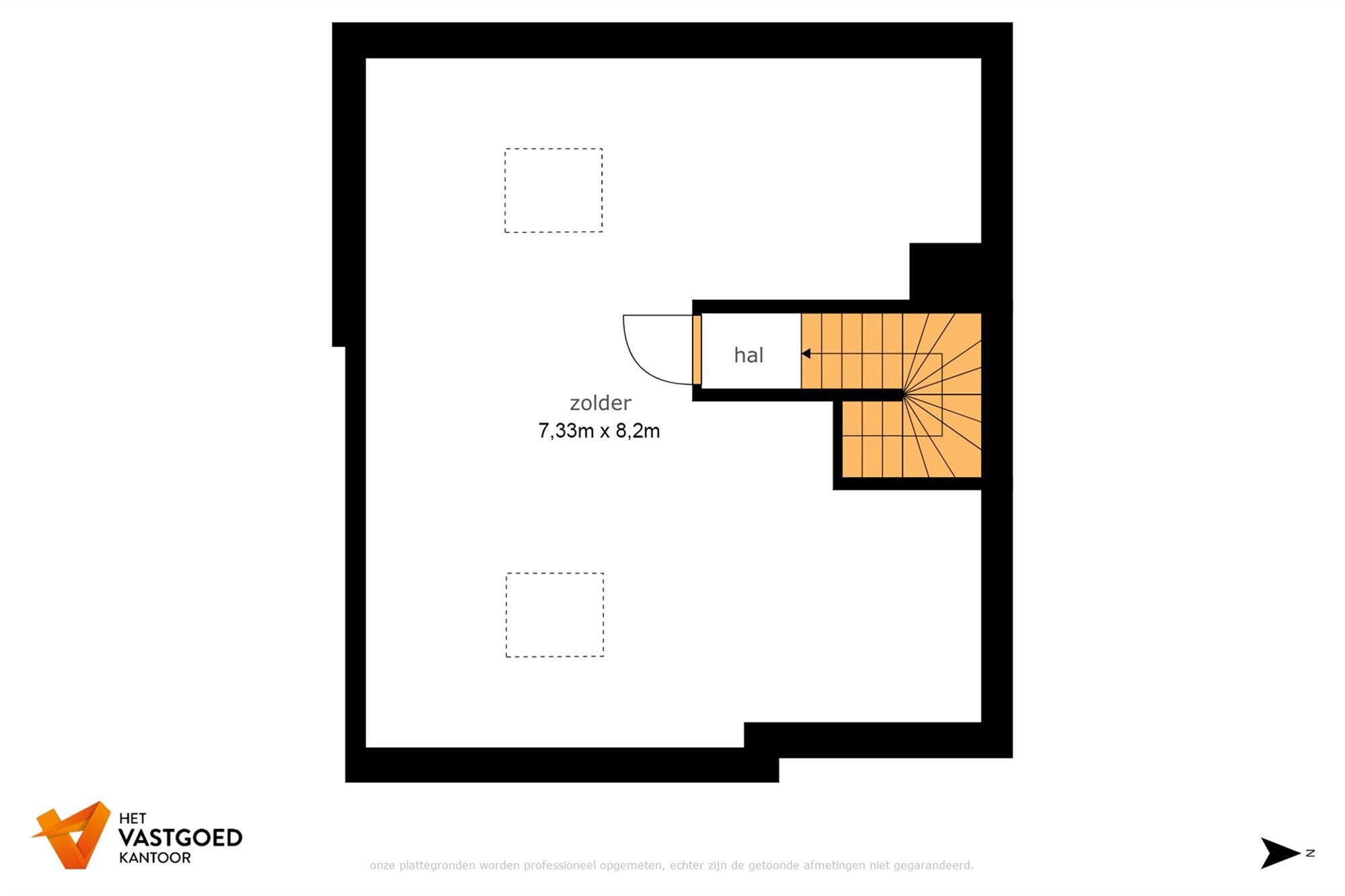
- Vaste trap naar 2e verdieping voor mogelijks 2 extra (slaap)kamers!
- Zuidgerichte tuin wordt aangelegd met terras, gazon en omheining
- Ideale ligging in een rustige straat en op wandelafstand van centrum
Bekijk zeker ook de grondplannen met de afmetingen. Zo krijgt u van thuis uit al een perfect beeld van wat deze woning te bieden heeft!
Wenst u meer info of een vrijblijvende bezichtiging, contacteer dan ons kantoor op het nummer 014 39 99 99 en wij helpen u graag verder.
Energie
- E-peil: E0
- Beglazing: Standaard dubbel
Op de kaart

Financieel
| Prijs | |
|---|---|
| Kadastraal inkomen (niet geïndexeerd) | € 0 |
| Kadastraal inkomen (geïndexeerd) | € 0 |
Berekening kosten
Je aankoopkosten? Die heb je snel berekend via de knop hieronder.
Bijkomende info
Gebouw
| Bouwjaar | 2026 |
|---|---|
| Bouwcertificaat | Nee |
| Bewoonbaar (m²) | 225 |
| Verdieping | 0 |
| Gevelbreedte | 7.77 |
| Badkamers | 1 |
| Slaapkamers | 3 |
| Verdiepingen | 0 |
| Garages | 0 |
| Parkeerplaatsen | 0 |
| Doucheruimtes | 0 |
| Toiletten | 0 |
Faciliteiten
| Materiaal ramenomlijstingen | PVC |
|---|---|
| Beglazing | Standaard dubbel |
| Elektrisch keuringsattest | Nee |
Perceel
| Overstromingsgevoelig | Geen |
|---|---|
| Voorkeurrecht | Ja |
| Totale oppervlakte (m²) | 300 |
| Bebouwde oppervlakte (m²) | 0 |
| Tuin oppervlakte (m²) | 0 |
| Oppervlakte terras (m²) | 0 |
Vergunning
| Vergunning | Aanvraag ingediend |
|---|---|
| Verkavelingsvergunning | Aanvraag ingediend |
Uitrusting
| Investeringspand | Nee |
|---|---|
| Geschikt voor praktijk | Nee |
| Parking | Nee |
| Garage | Nee |
| Thuiskantoor | Nee |
| Kelder | Nee |
| Zolder | Nee |
| Tuin | Nee |
| Terras | Nee |
| Lift | Nee |
| Rioolaansluiting | Ja |
| Gasaansluiting | Nee |
| Wateraansluiting | Ja |
| Elektriciteitsaansluiting | Ja |
| TV aansluiting | Ja |
| Internetaansluiting | Ja |
| Telefoonaansluiting | Ja |