HOOGKWALITATIEVE, ENERGIEZUINIGE NIEUWBOUWWONING NABIJ CENTRUM BALEN
€ 396.000
Een pand van Het Vastgoedkantoor
Jouw zoektocht
Overzicht
- 158 m² bewoonbaar
- 416 m² grond
- 3 Slaapkamer(s)
- 1 Badkamer(s)
Overstromingsgevaar perceel
Beschrijving
Hoogkwalitatieve, energiezuinige nieuwbouwwoning nabij centrum.
Belangrijkste troeven:
- Prachtige hoogwaardige keuken met Miele toestellen, Quooker kraan en Dekton werkblad en spatwand
- Reeds geschilderd, buitenaanleg reeds gebeurd, ook vloerverwarming op kamers
- Hoogkwalitatieve afwerking en materialen
- Gebruik van de beste technieken
- Doordachte indeling met mooie ruimtes
- 3 ruime kamers, waarvan 1 met dressing mogelijk
- Mogelijkheid tot plaatsen carport (reeds vergund)
- Centrale ligging met alle voorzieningen (winkels, school, station) op wandelafstand
Prijs exclusief BTW en registratierechten !
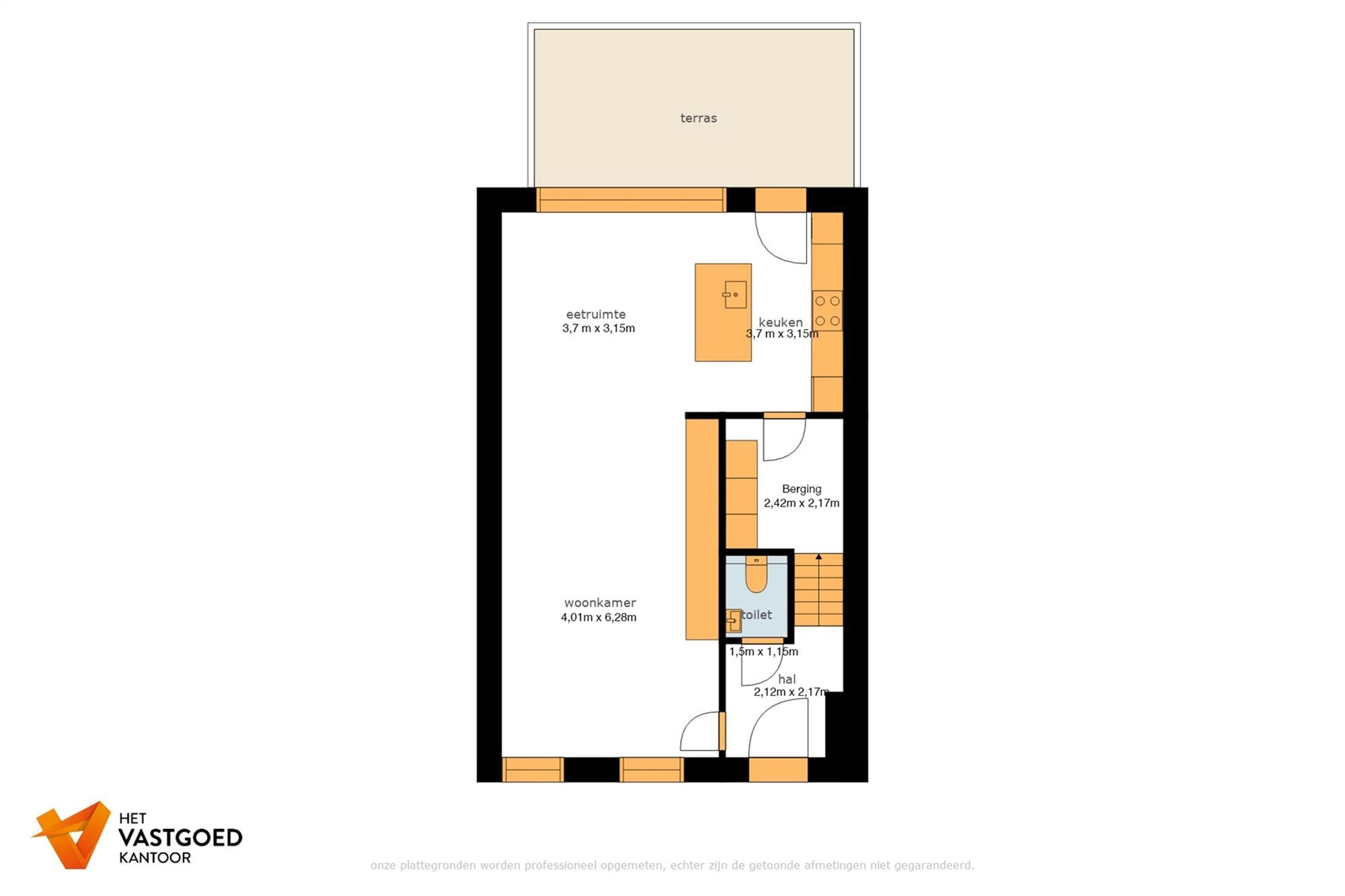
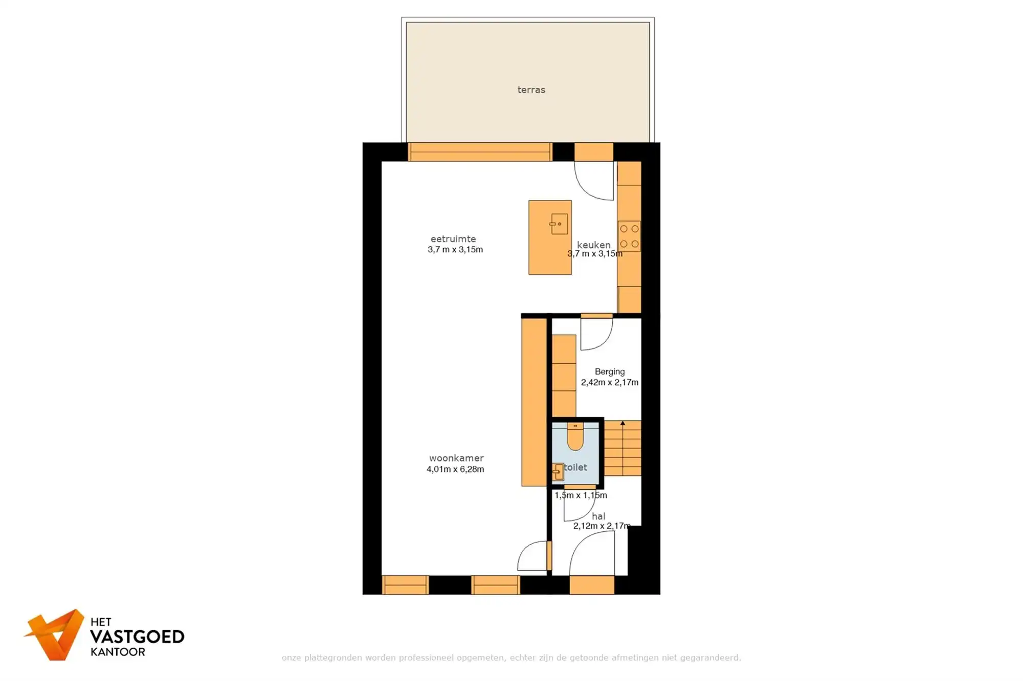
Bekijk zeker ook onze 3D virtuele rondleiding en onze grondplannen met de afmetingen. Zo krijgt u van thuis uit al een perfect beeld van wat deze woning te bieden heeft!
Wenst u meer info of een vrijblijvende bezichtiging, contacteer dan ons kantoor op het nummer 014 39 99 99 en wij helpen u graag verder.
Energie
- E-peil: E10
- Beglazing: Standaard dubbel
Op de kaart

Financieel
| Prijs | |
|---|---|
| Kadastraal inkomen (niet geïndexeerd) | € 0 |
| Kadastraal inkomen (geïndexeerd) | € 0 |
Bijkomende info
Gebouw
| Staat | Nieuw |
|---|---|
| Bouwcertificaat | Nee |
| Bewoonbaar (m²) | 158 |
| Verdieping | 0 |
| Gevelbreedte | 7.2 |
| Badkamers | 1 |
| Slaapkamers | 3 |
| Verdiepingen | 0 |
| Garages | 0 |
| Parkeerplaatsen | 0 |
| Doucheruimtes | 0 |
| Toiletten | 0 |
Faciliteiten
| Materiaal ramenomlijstingen | Aluminium |
|---|---|
| Beglazing | Standaard dubbel |
| Elektrisch keuringsattest | Nee |
Perceel
| Overstromingsgevoelig | Geen |
|---|---|
| P-score | D |
| Voorkeurrecht | Nee |
| Totale oppervlakte (m²) | 416 |
| Bebouwde oppervlakte (m²) | 0 |
| Tuin oppervlakte (m²) | 0 |
| Oppervlakte terras (m²) | 0 |
Vergunning
| Vergunning | Vergunning beschikbaar |
|---|
Uitrusting
| Investeringspand | Nee |
|---|---|
| Geschikt voor praktijk | Nee |
| Parking | Nee |
| Garage | Nee |
| Thuiskantoor | Nee |
| Kelder | Ja |
| Zolder | Nee |
| Tuin | Nee |
| Terras | Nee |
| Lift | Nee |
| Rioolaansluiting | Ja |
| Gasaansluiting | Ja |
| Wateraansluiting | Ja |
| Elektriciteitsaansluiting | Ja |
| TV aansluiting | Ja |
| Internetaansluiting | Ja |
| Telefoonaansluiting | Ja |