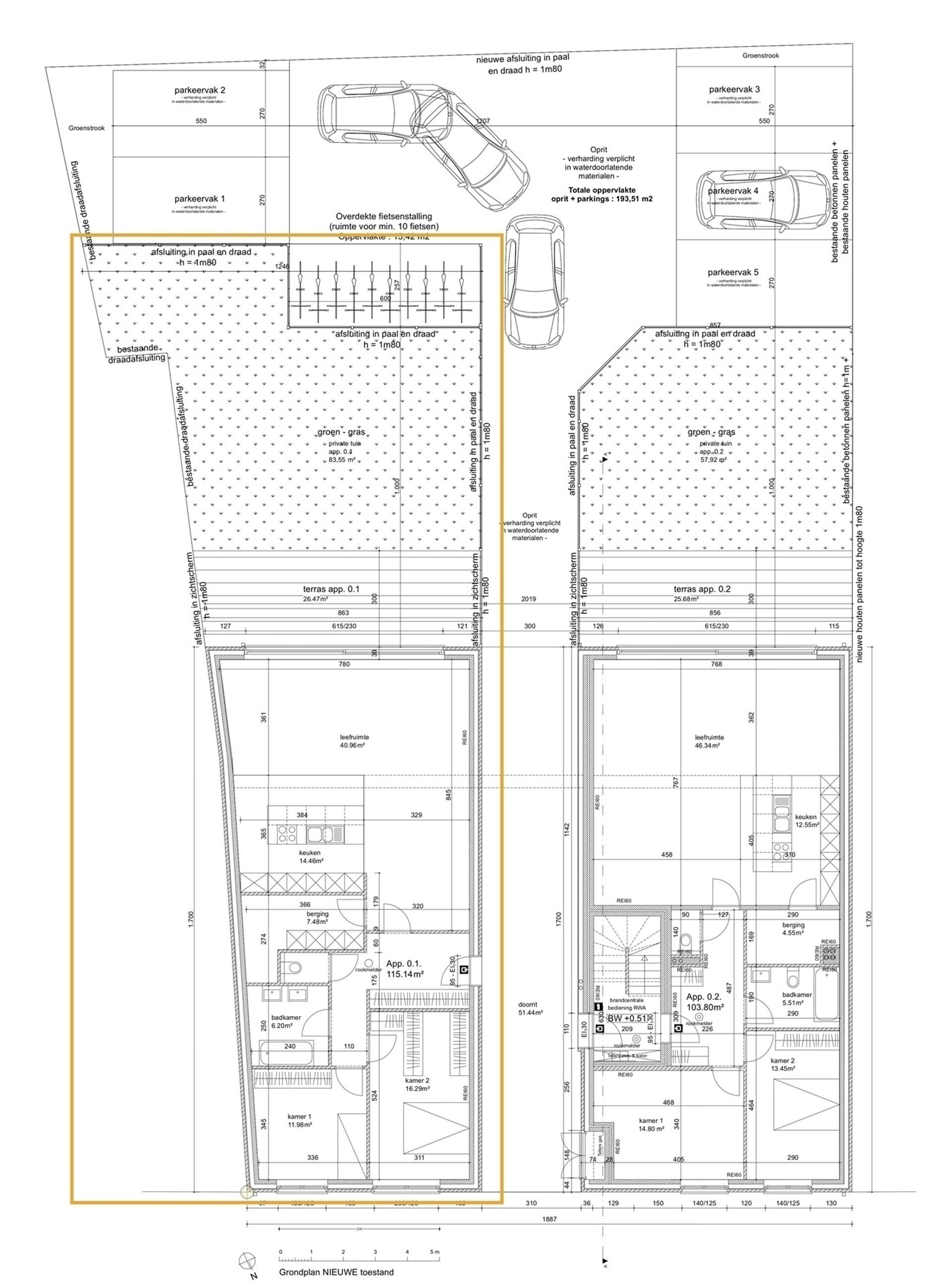
Casco gelijkvloers appartement met tuin & autostaanplaats.
Overzicht
- 115 m² bewoonbaar
- 2 Slaapkamer(s)
- 1 Badkamer(s)
- 1 Toilet(ten)
- 1 Tuin
Overstromingsgevaar perceel
Beschrijving
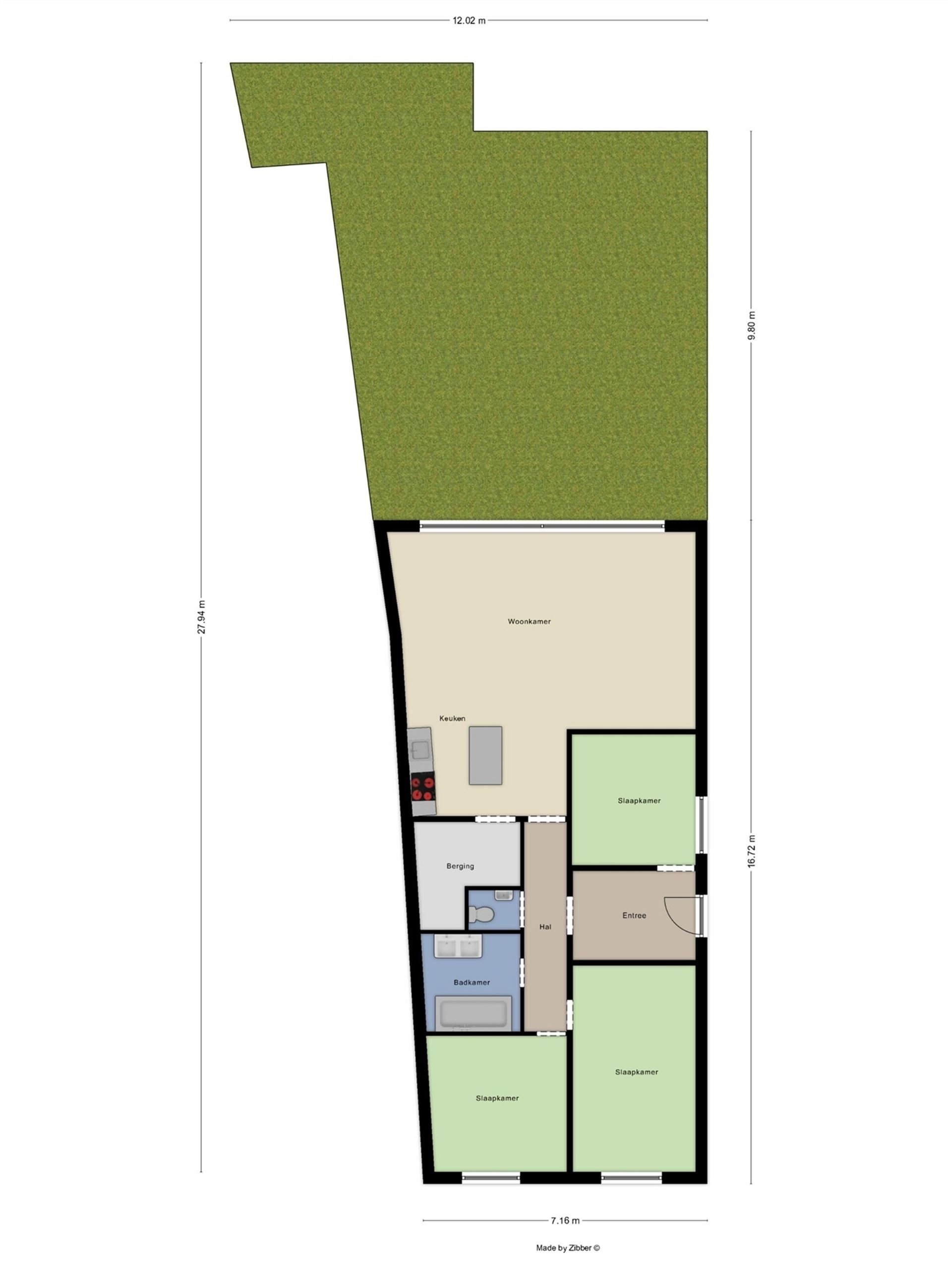
Dit casco gelijkvloers appartement beschikt over een bewoonbare oppervlakte van 115m² en kent een rustige ligging in een kleinschalige residentie dewelke slechts vijf appartementen telt. Winkels, scholen, het openbaar vervoer en belangrijke verbindingswegen zijn vlakbij gelegen. De oplevering zal gebeuren volgens het water- en winddicht principe zijnde afgewerkte gevels, dak en buitenschrijnwerk. Het appartement dient verder afgewerkt te worden door de koper. De indeling is als volgt: een inkomhal met vestiaire mogelijkheid, een gastentoilet, een lichtrijke woonruimte met een open keuken (totale opp.: 55m²), een berging-wasplaats (7,5m²), twee slaapkamers (12m²; 16m²) en een badkamer (6m²). Verder is er een privatieve, zuid georiënteerde tuin aanwezig en behoort er één autostaanplaats tot het appartement. De EPB-startverklaring vermeldt een EPC-label A. Autostaanplaats en afwerking van de gemeenschappelijke delen zijn reeds verwerkt in de vraagprijs. Contacteer ons gerust bij interesse. 015 711 000 - info@clavisvastgoed.be
Energie
![]() |
- EPC Certificaat: DC1576 12040-G-OMV_2023087340/EP18659/SV/A001/D01
- Energieverbruik: 54 kWh/m²/jaar
- E-peil: E28
- Beglazing: Standaard dubbel
Op de kaart

Financieel
Prijs | |
---|---|
Kadastraal inkomen (niet geïndexeerd) | € 0 |
Kadastraal inkomen (geïndexeerd) | € 0 |
Berekening kosten
Je aankoopkosten? Die heb je snel berekent via de knop hieronder.
Bijkomende info
Gebouw
Bouwjaar | 2024 |
---|---|
Staat | Nieuw |
Bouwcertificaat | Nee |
Bewoonbaar (m²) | 115 |
Verdieping | 0 |
Badkamers | 1 |
Slaapkamers | 2 |
Verdiepingen | 2 |
Garages | 0 |
Parkeerplaatsen | 1 |
Doucheruimtes | 0 |
Toiletten | 1 |
Faciliteiten
Keuken uitrusting | Basis |
---|---|
Materiaal ramenomlijstingen | Aluminium |
Beglazing | Standaard dubbel |
Elektrisch keuringsattest | Nee |
Perceel
Overstromingsgevoelig | Geen |
---|---|
P-score | D |
Voorkeurrecht | Ja |
Bebouwde oppervlakte (m²) | 0 |
Tuin oppervlakte (m²) | 84 |
Oppervlakte terras (m²) | 27 |
Oriëntatie tuin | Zuid |
Vergunning
Vergunning | Vergunning beschikbaar |
---|---|
Verkavelingsvergunning | Vergunning beschikbaar |
Uitrusting
Investeringspand | Nee |
---|---|
Geschikt voor praktijk | Nee |
Parking | Ja |
Garage | Nee |
Thuiskantoor | Nee |
Kelder | Nee |
Zolder | Nee |
Tuin | Ja |
Terras | Ja |
Lift | Nee |
Rioolaansluiting | Nee |
Gasaansluiting | Nee |
Wateraansluiting | Nee |
Elektriciteitsaansluiting | Nee |
TV aansluiting | Nee |
Internetaansluiting | Nee |
Telefoonaansluiting | Nee |
Appartementsblok
Aantal verdiepingen | 2 |
---|---|
Lift | Nee |