Ruim casco appartement met terras en autostaanplaats.
Overzicht
- 125 m² bewoonbaar
- 3 Slaapkamer(s)
- 1 Badkamer(s)
- 1 Toilet(ten)
Overstromingsgevaar perceel
Beschrijving
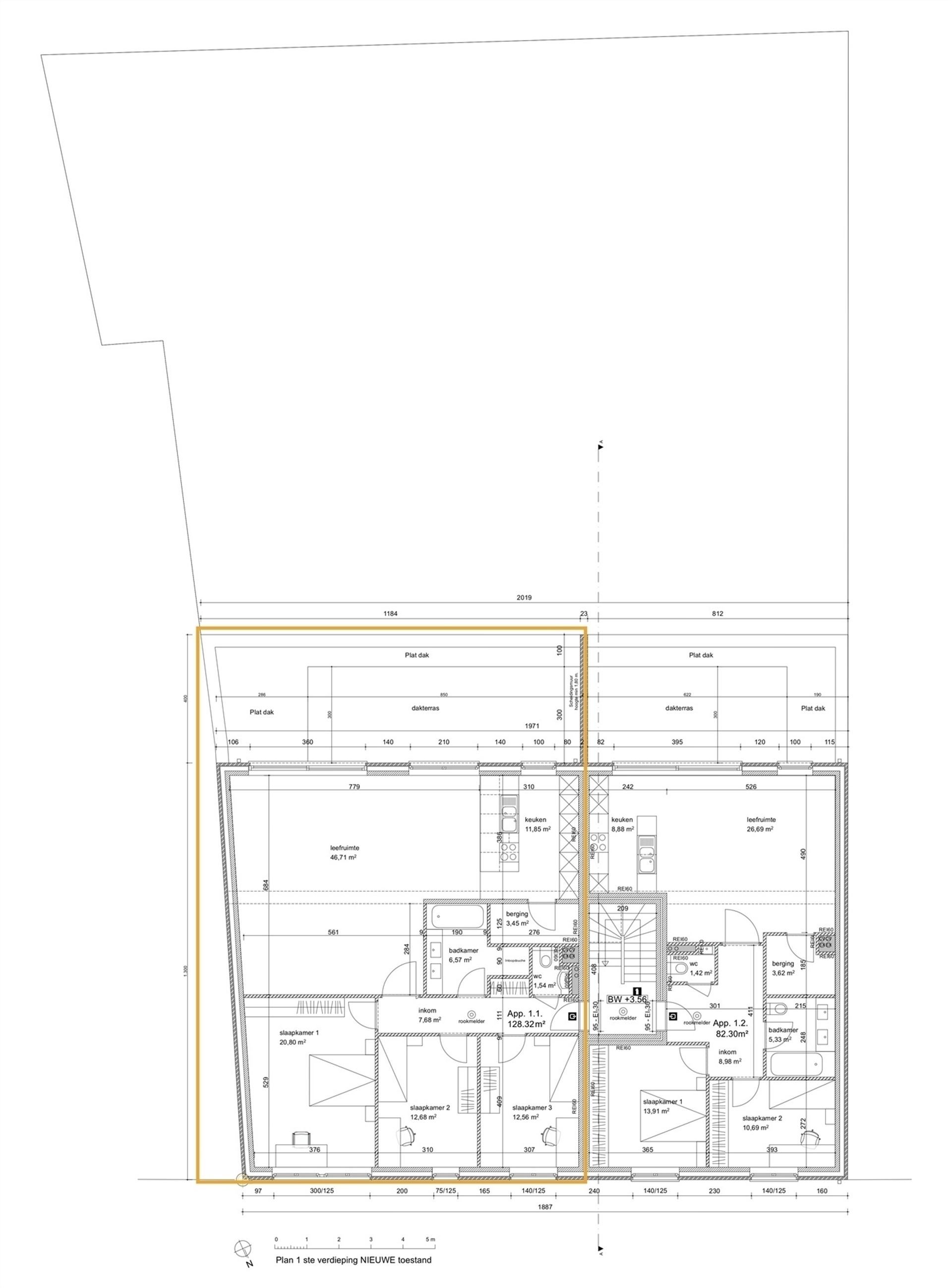
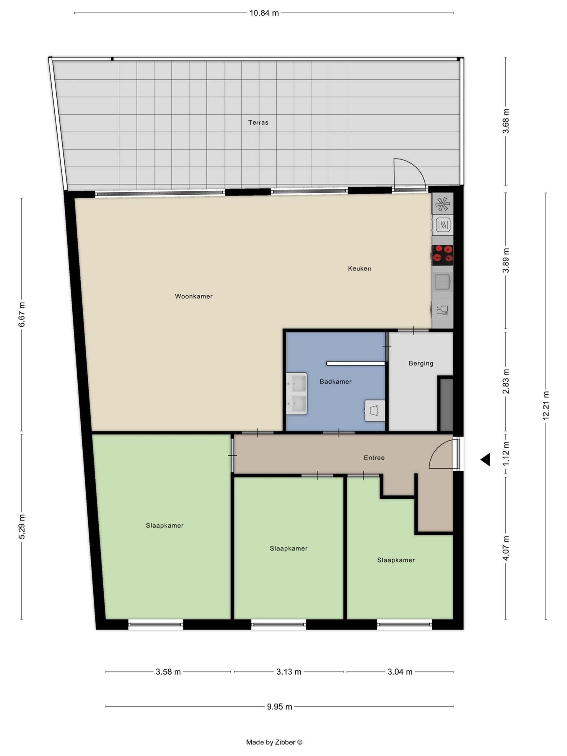
Dit casco appartement met een bewoonbare oppervlakte van 125m² kent een rustige ligging op de eerste verdieping van een kleinschalige residentie dewelke slechts vijf appartementen telt. Winkels, scholen, het openbaar vervoer en belangrijke verbindingswegen zijn vlakbij gelegen. De oplevering zal gebeuren volgens het water- en winddicht principe zijnde afgewerkte gevels, dak inclusief isolatie en buitenschrijnwerk. Het appartement dient verder afgewerkt te worden door de koper. De indeling is als volgt: een inkomhal met gastentoilet, een lichtrijke woonkamer met een open keuken (totale opp; 60m²), een berging-wasplaats (3,5m²), drie slaapkamers (21m²; 13m²; 13m²) en een badkamer (6,5m²). Verder is er een zuid georiënteerd terras (25m²) aanwezig en behoort er één autostaanplaats tot het appartement. De EPB-startverklaring vermeldt een EPC-label A. Autostaanplaats en afwerking van de gemeenschappelijke delen zijn reeds verwerkt in de vraagprijs. Contacteer ons gerust bij interesse. 015 711 000 - info@clavisvastgoed.be
Energie
![]() |
- EPC Certificaat: DC1576 12040-G-OMV_2023087340/EP18659/SV/A001/D01
- Energieverbruik: 47 kWh/m²/jaar
- E-peil: E29
- Beglazing: Standaard dubbel
Op de kaart

Financieel
Prijs | |
---|---|
Kadastraal inkomen (niet geïndexeerd) | € 0 |
Kadastraal inkomen (geïndexeerd) | € 0 |
Berekening kosten
Je aankoopkosten? Die heb je snel berekent via de knop hieronder.
Bijkomende info
Gebouw
Bouwjaar | 2024 |
---|---|
Staat | Nieuw |
Bouwcertificaat | Nee |
Bewoonbaar (m²) | 125 |
Verdieping | 1 |
Badkamers | 1 |
Slaapkamers | 3 |
Verdiepingen | 2 |
Garages | 0 |
Parkeerplaatsen | 1 |
Doucheruimtes | 0 |
Toiletten | 1 |
Faciliteiten
Keuken uitrusting | Basis |
---|---|
Materiaal ramenomlijstingen | Aluminium |
Beglazing | Standaard dubbel |
Elektrisch keuringsattest | Nee |
Perceel
Overstromingsgevoelig | Geen |
---|---|
P-score | D |
Voorkeurrecht | Ja |
Bebouwde oppervlakte (m²) | 0 |
Tuin oppervlakte (m²) | 0 |
Oppervlakte terras (m²) | 25 |
Oriëntatie tuin | Zuid |
Vergunning
Vergunning | Vergunning beschikbaar |
---|---|
Verkavelingsvergunning | Vergunning beschikbaar |
Uitrusting
Investeringspand | Nee |
---|---|
Geschikt voor praktijk | Nee |
Parking | Ja |
Garage | Nee |
Thuiskantoor | Nee |
Kelder | Nee |
Zolder | Nee |
Tuin | Nee |
Terras | Ja |
Lift | Nee |
Rioolaansluiting | Nee |
Gasaansluiting | Nee |
Wateraansluiting | Nee |
Elektriciteitsaansluiting | Nee |
TV aansluiting | Nee |
Internetaansluiting | Nee |
Telefoonaansluiting | Nee |
Appartementsblok
Aantal verdiepingen | 2 |
---|---|
Lift | Nee |