In optie
Project REMI: 6% BTW mogelijk (fase 2) incl. autostaanplaats
€ 299.000
Een pand van De Boer & Partners Kontich
Favoriet
Jouw zoektocht
Jouw scoretabel voor dit pand
Aan het laden...
Jouw geplande bezichtigingen
Aan het laden...
Overzicht
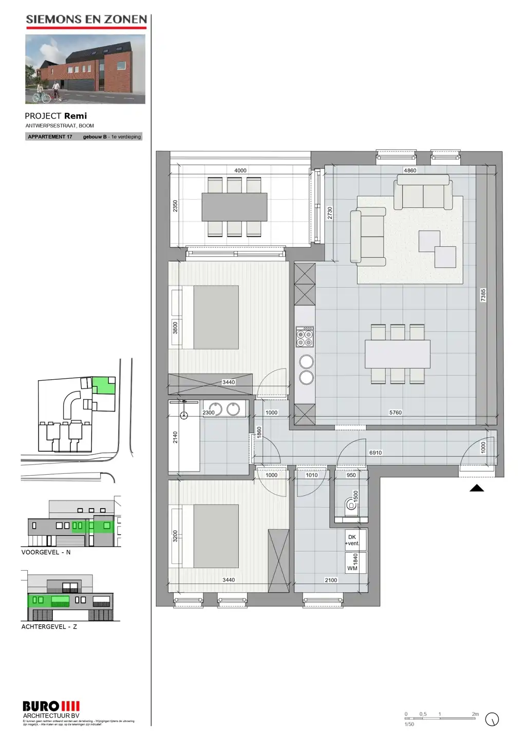
- 85 m² bewoonbaar
- 2 Slaapkamer(s)
- 1 Badkamer(s)
Beschrijving
Centraal gelegen nieuwbouwproject REMI in Boom – met mogelijkheid tot aankoop aan 6% BTW (fase 2)
Dit project is ideaal voor wie op zoek is naar een comfortabele centraal gelegen thuis of naar een zorgeloze investering.
Het project bevindt zich op een uitstekende locatie in Boom, op de hoek van de Antwerpsestraat en de ’S Herenbaan:
- Winkels bevinden zich letterlijk aan de overkant van de straat
- Openbaar vervoer en AZ Rivierenland vlakbij
- Via A12/E19 geniet u van een snelle verbinding naar zowel A'pen als Brussel
Het project omvat in totaal 18 app verdeeld over 2 gebouwen, met een gezamenlijke binnentuin:
- Fase 1 (Gebouw A): 15 app langs de Antwerpsestraat
- Fase 2 (Gebouw B): 3 app aan de ’S Herenbaan – 6% BTW mogelijk
Er zijn 26 autostaanplaatsen beschikbaar. Bij elke aankoop is 1 autostaanplaats inbegrepen in de prijs.
Beschikbaarheid:
Fase 1 (Gebouw A) – ruwbouwfase afgerond
Laatste appartement:
- Penthouse – 103m² met 2 slpks en prachtig W-terras van ca.40m²
Fase 2 (Gebouw B) – 6% BTW mogelijk
Apart gebouw met 3 app en 8 overdekte staanplaatsen vanaf €299.000.
- 2 app (1eV) – 2 slpks, 85m² en 90m², met terrassen van ca.10m²
- Penthouse (2eV) – 2 slpks, 85m², met Z-terras van ca.18m²
Alle app voldoen aan de BEN-normen:
- Warmtepomp
- Privatieve zonnepanelen
- Driedubbel glas
- Vloerverwarming
Prijzen & voorwaarden:
- Incl. autostaanplaats en aantrekkelijke afwerkingsbudgetten
- Prijzen excl. reg. rechten en BTW
Dit project is ideaal voor wie op zoek is naar een comfortabele centraal gelegen thuis of naar een zorgeloze investering.
Het project bevindt zich op een uitstekende locatie in Boom, op de hoek van de Antwerpsestraat en de ’S Herenbaan:
- Winkels bevinden zich letterlijk aan de overkant van de straat
- Openbaar vervoer en AZ Rivierenland vlakbij
- Via A12/E19 geniet u van een snelle verbinding naar zowel A'pen als Brussel
Het project omvat in totaal 18 app verdeeld over 2 gebouwen, met een gezamenlijke binnentuin:
- Fase 1 (Gebouw A): 15 app langs de Antwerpsestraat
- Fase 2 (Gebouw B): 3 app aan de ’S Herenbaan – 6% BTW mogelijk
Er zijn 26 autostaanplaatsen beschikbaar. Bij elke aankoop is 1 autostaanplaats inbegrepen in de prijs.
Beschikbaarheid:
Fase 1 (Gebouw A) – ruwbouwfase afgerond
Laatste appartement:
- Penthouse – 103m² met 2 slpks en prachtig W-terras van ca.40m²
Fase 2 (Gebouw B) – 6% BTW mogelijk
Apart gebouw met 3 app en 8 overdekte staanplaatsen vanaf €299.000.
- 2 app (1eV) – 2 slpks, 85m² en 90m², met terrassen van ca.10m²
- Penthouse (2eV) – 2 slpks, 85m², met Z-terras van ca.18m²
Alle app voldoen aan de BEN-normen:
- Warmtepomp
- Privatieve zonnepanelen
- Driedubbel glas
- Vloerverwarming
Prijzen & voorwaarden:
- Incl. autostaanplaats en aantrekkelijke afwerkingsbudgetten
- Prijzen excl. reg. rechten en BTW
Energie
Op de kaart

Downloads
Financieel
| Prijs |
|---|
Bijkomende info
Gebouw
| Staat | Nieuw |
|---|---|
| Bewoonbaar (m²) | 85 |
| Verdieping | 1 |
| Badkamers | 1 |
| Slaapkamers | 2 |
| Verdiepingen | 2 |
| Parkeerplaatsen | 0 |
Faciliteiten
| Type vloer |
|---|
Perceel
| P-score | A |
|---|---|
| G-score | A |
| Tuin oppervlakte (m²) | 0 |
Vergunning
| Vergunning | Vergunning beschikbaar |
|---|---|
| Verkavelingsvergunning | Geen beschikbaar |
Uitrusting
| Parking | Ja |
|---|---|
| Garage | Nee |
| Tuin | Nee |
| Terras | Ja |
| Lift | Nee |
Een pand van
De Boer & Partners Kontich
De Boer & Partners Kontich
Met meer dan 40 jaar ervaring en 17 kantoren zijn we zonder twijfel uitgegroeid tot een vaste waarde op de vastgoedmarkt in België. Een persoonlijke aanpak is voor ons heel belangrijk, we garanderen een persoonlijke en professionele service waar een grote passie altijd aanwezig is. Onze medewerkers kennen hun regio door en door en staan klaar om u met enthousiasme te begeleiden bij de aankoop, verkoop en verhuur van uw eigendom. We hebben een grote en diverse verkoopportefeuille en zijn thuis in elk marktsegment. Wij staan niet voor een bepaalde prijsklasse, wel voor persoonlijke service en kwaliteit.
Leer meer over vastgoed
23 March 2026
Op Spotto zoeken als een pro: 10 slimme tips
21 March 2026
Hoeveel kan ik lenen om een huis te kopen?
01 March 2026
Wanneer heb ik een bouwvergunning of omgevingsvergunning nodig?
17 February 2026