Ruim nieuwbouwappartement met groot terras
€ 319.000
Een pand van Walbers Immo
Overzicht
- 81.8 m² bewoonbaar
- 2 Slaapkamer(s)
- 1 Badkamer(s)
- 1 Toilet(ten)
Beschrijving
Nieuwbouwresidentie REMI omvat 18 energiezuinige BEN-appartementen op een uitstekende locatie in Boom. De betere supermarktketens, ziekenhuis AZ Rivierenland en het park van Boom liggen op wandelafstand. Bovendien is er een directe verbinding met de A12 en E19 richting Antwerpen, Brussel en Mechelen mobiliteit ten top.
De residentie bestaat uit twee gebouwen die uitgeven op een prachtig aangelegde binnentuin. In totaal zijn er 26 autostaanplaatsen: 14 ondergrondse, 8 overdekte en 4 buitenstaanplaatsen op het gelijkvloers. Elk appartement wordt afgewerkt met hoogwaardige materialen en voorzien van de beste technieken inzake energiezuinigheid.
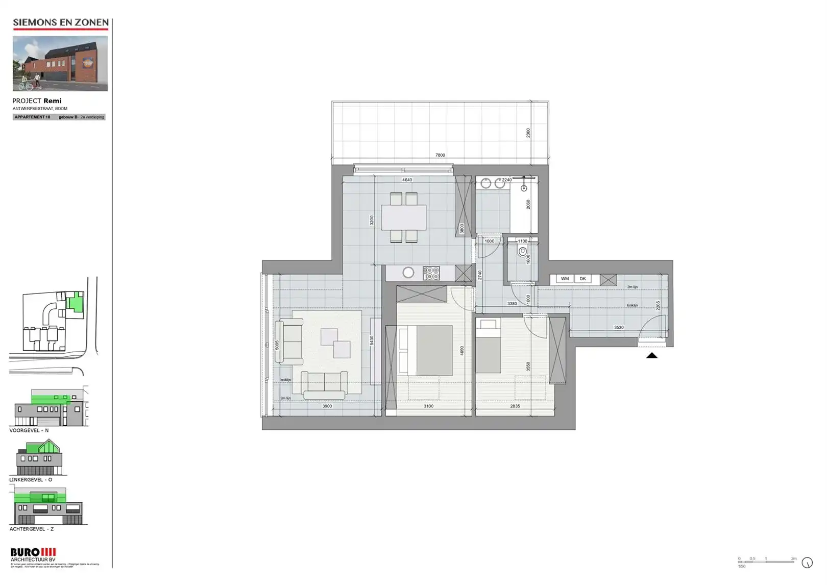
Appartement 18, gelegen in Blok B op de tweede verdieping, omvat: een inkomhal, apart toilet, badkamer, twee slaapkamers, een zitkamer, eetkamer met open keuken en een terras. Dit maakt het appartement ideaal als nieuwe thuis of als investering.
(Wg Vg Gvv Gvkr Gmo)
Overstromingsrisico: P-score A G-score A
EPB in opmaak
Prijs exclusief btw en kosten
Wenst u meer info, een persoonlijke toelichting of overweegt u een aankoop?
Contacteer Wichard via 0493/14.22.63 of wichard@walbersimmo.be
Energie
- E-peil: E0
- Beglazing: Hoog efficient driedubbel
Op de kaart

Financieel
| Prijs | |
|---|---|
| Kadastraal inkomen (niet geïndexeerd) | € 0 |
| Kadastraal inkomen (geïndexeerd) | € 0 |
Berekening kosten
Je aankoopkosten? Die heb je snel berekent via de knop hieronder.
Bijkomende info
Gebouw
| Bouwjaar | 2025 |
|---|---|
| Staat | Nieuw |
| Bouwcertificaat | Nee |
| Bewoonbaar (m²) | 81.8 |
| Verdieping | 2 |
| Badkamers | 1 |
| Slaapkamers | 2 |
| Verdiepingen | 2 |
| Garages | 0 |
| Parkeerplaatsen | 1 |
| Doucheruimtes | 0 |
| Toiletten | 1 |
Faciliteiten
| Materiaal ramenomlijstingen | PVC |
|---|---|
| Beglazing | Hoog efficient driedubbel |
| Elektrisch keuringsattest | Ja |
Perceel
| Overstromingsgevoelig | Geen |
|---|---|
| P-score | A |
| G-score | A |
| Voorkeurrecht | Nee |
| Bebouwde oppervlakte (m²) | 0 |
| Tuin oppervlakte (m²) | 0 |
| Oppervlakte terras (m²) | 17 |
| Oriëntatie tuin | Zuid |
Vergunning
| Vergunning | Vergunning beschikbaar |
|---|---|
| Verkavelingsvergunning | Geen beschikbaar |
Uitrusting
| Investeringspand | Nee |
|---|---|
| Geschikt voor praktijk | Nee |
| Parking | Ja |
| Garage | Nee |
| Thuiskantoor | Nee |
| Kelder | Nee |
| Zolder | Nee |
| Tuin | Nee |
| Terras | Ja |
| Lift | Nee |
| Rioolaansluiting | Nee |
| Gasaansluiting | Nee |
| Wateraansluiting | Nee |
| Elektriciteitsaansluiting | Nee |
| TV aansluiting | Nee |
| Internetaansluiting | Nee |
| Telefoonaansluiting | Nee |
Appartementsblok
| Naam residentie | RESIDENTIE "REMI" - Blok B |
|---|---|
| Aantal verdiepingen | 2 |
| Lift | Nee |