Duurzaam opbrengsteigendom – Aankoop aan 6% BTW mogelijk
€ 947.000
Een pand van De Boer & Partners Kontich
Favoriet
Jouw zoektocht
Jouw scoretabel voor dit pand
Aan het laden...
Jouw geplande bezichtigingen
Aan het laden...
Overzicht
- 260 m² bewoonbaar
- 6 Slaapkamer(s)
- 3 Badkamer(s)
Beschrijving
Duurzaam opbrengsteigendom – Mogelijkheid tot aankoop aan 6% BTW
Bent u op zoek naar een zorgeloze en toekomstgerichte investering? Dan is dit nieuwbouwproject in Boom een uitstekende opportuniteit.
Het project is strategisch gelegen op de hoek van de Antwerpsestraat en de ’s Herenbaan, met tal van voorzieningen op wandelafstand:
- Winkels en supermarkten bevinden zich letterlijk aan de overkant van de straat
- Openbaar vervoer en AZ Rivierenland in de directe nabijheid
- Vlotte verbinding via de A12 en E19 naar zowel Antwerpen als Brussel
De aankoop van dit gebouw is mogelijk aan 6% BTW (mits u voldoet aan de geldende voorwaarden), wat dit project extra interessant maakt voor investeerders.
Indeling van het gebouw:
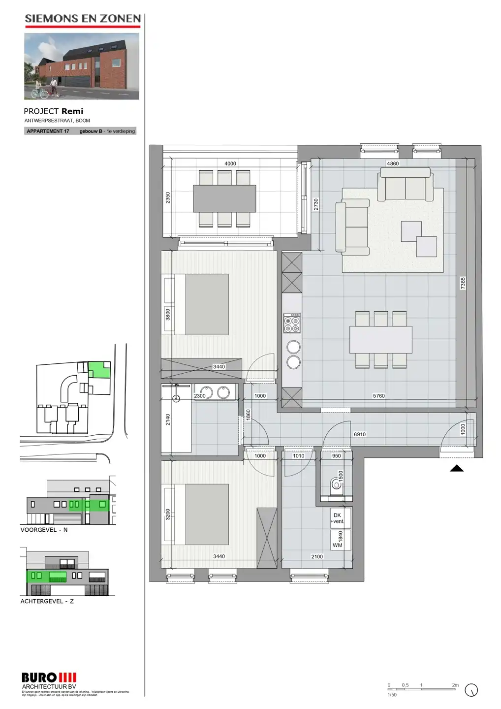
- 2 appartementen (1e verdieping) ; telkens 2 slaapkamers, ca. 85 m² en 90 m², met terrassen van ± 10 m²
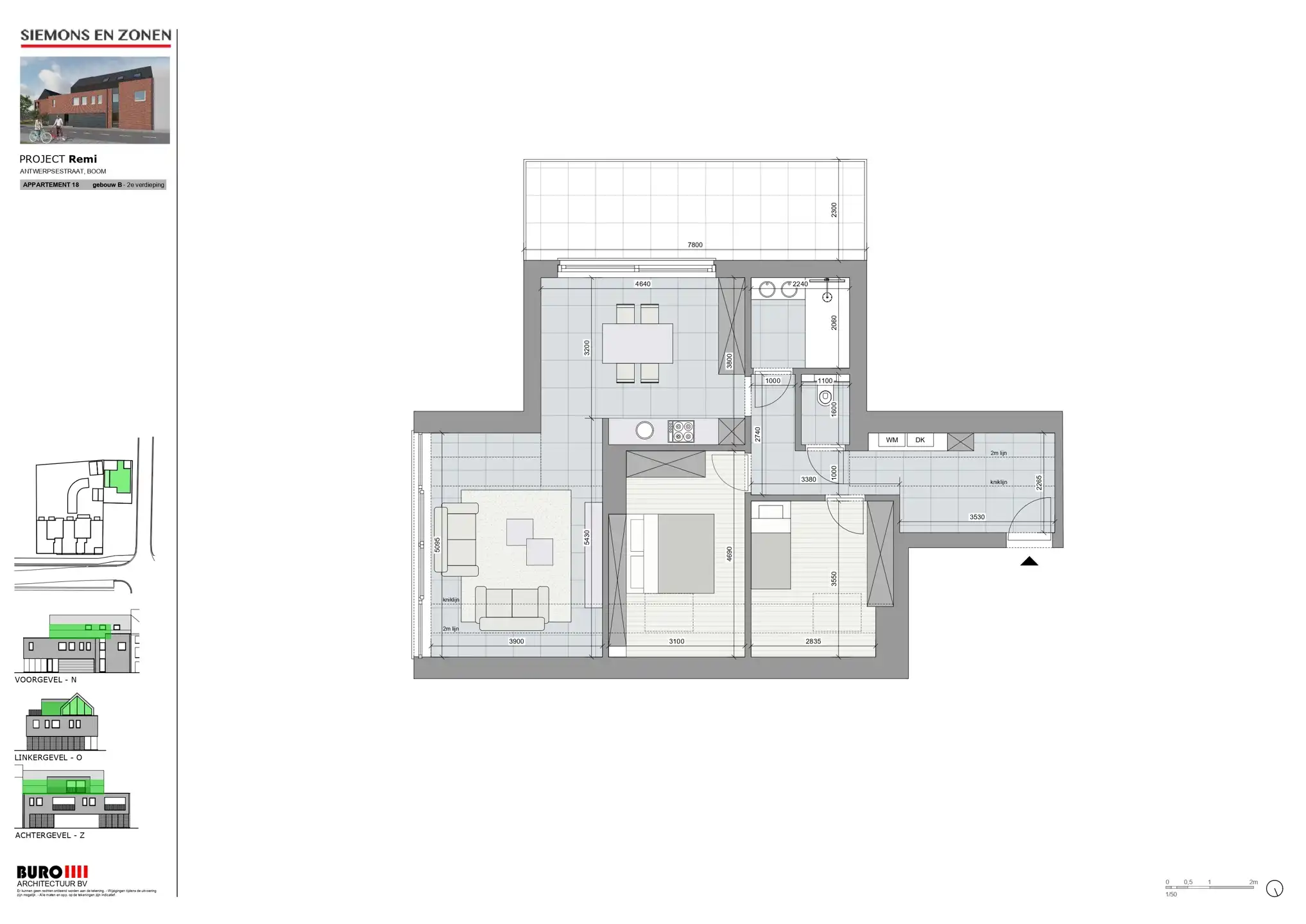
- Penthouse (2e verdieping) ; 2 slaapkamers, ca. 85 m², met zuidgericht terras van ± 18 m²
Alle appartementen beschikken over een private autostaanplaats, inbegrepen in de prijs.
Duurzaam en energiezuinig wonen (BEN-normen):
- Warmtepomp
- Privatieve zonnepanelen
- Driedubbele beglazing
- Vloerverwarming
Dit resulteert in een laag energieverbruik en een verhoogd comfort voor de bewoners, wat tevens de verhuurbaarheid ten goede komt.
Prijzen & voorwaarden:
- Inclusief autostaanplaats
- Inclusief aantrekkelijke afwerkingsbudgetten (keuze mogelijk volgens lastenboek)
- Prijzen exclusief registratierechten en BTW
Bent u op zoek naar een zorgeloze en toekomstgerichte investering? Dan is dit nieuwbouwproject in Boom een uitstekende opportuniteit.
Het project is strategisch gelegen op de hoek van de Antwerpsestraat en de ’s Herenbaan, met tal van voorzieningen op wandelafstand:
- Winkels en supermarkten bevinden zich letterlijk aan de overkant van de straat
- Openbaar vervoer en AZ Rivierenland in de directe nabijheid
- Vlotte verbinding via de A12 en E19 naar zowel Antwerpen als Brussel
De aankoop van dit gebouw is mogelijk aan 6% BTW (mits u voldoet aan de geldende voorwaarden), wat dit project extra interessant maakt voor investeerders.
Indeling van het gebouw:
- 2 appartementen (1e verdieping) ; telkens 2 slaapkamers, ca. 85 m² en 90 m², met terrassen van ± 10 m²
- Penthouse (2e verdieping) ; 2 slaapkamers, ca. 85 m², met zuidgericht terras van ± 18 m²
Alle appartementen beschikken over een private autostaanplaats, inbegrepen in de prijs.
Duurzaam en energiezuinig wonen (BEN-normen):
- Warmtepomp
- Privatieve zonnepanelen
- Driedubbele beglazing
- Vloerverwarming
Dit resulteert in een laag energieverbruik en een verhoogd comfort voor de bewoners, wat tevens de verhuurbaarheid ten goede komt.
Prijzen & voorwaarden:
- Inclusief autostaanplaats
- Inclusief aantrekkelijke afwerkingsbudgetten (keuze mogelijk volgens lastenboek)
- Prijzen exclusief registratierechten en BTW
Duurzaam opbrengsteigendom – Mogelijkheid tot aankoop aan 6% BTW
Energie
Op de kaart

Financieel
| Prijs |
|---|
Berekening kosten
Je aankoopkosten? Die heb je snel berekend via de knop hieronder.
Bijkomende info
Gebouw
| Staat | Nieuw |
|---|---|
| Bewoonbaar (m²) | 260 |
| Gevels | 3 |
| Badkamers | 3 |
| Slaapkamers | 6 |
| Parkeerplaatsen | 0 |
Faciliteiten
| Type vloer |
|---|
Perceel
| P-score | A |
|---|---|
| G-score | A |
| Tuin oppervlakte (m²) | 0 |
Vergunning
| Vergunning | Vergunning beschikbaar |
|---|---|
| Verkavelingsvergunning | Geen beschikbaar |
Uitrusting
| Parking | Ja |
|---|---|
| Garage | Nee |
| Tuin | Nee |
| Terras | Ja |
| Lift | Nee |
| Wateraansluiting | Ja |
| Elektriciteitsaansluiting | Ja |
| TV aansluiting | Ja |
| Telefoonaansluiting | Ja |
Een pand van
De Boer & Partners Kontich
De Boer & Partners Kontich
Met meer dan 40 jaar ervaring en 17 kantoren zijn we zonder twijfel uitgegroeid tot een vaste waarde op de vastgoedmarkt in België. Een persoonlijke aanpak is voor ons heel belangrijk, we garanderen een persoonlijke en professionele service waar een grote passie altijd aanwezig is. Onze medewerkers kennen hun regio door en door en staan klaar om u met enthousiasme te begeleiden bij de aankoop, verkoop en verhuur van uw eigendom. We hebben een grote en diverse verkoopportefeuille en zijn thuis in elk marktsegment. Wij staan niet voor een bepaalde prijsklasse, wel voor persoonlijke service en kwaliteit.
7625601
Leer meer over vastgoed
24 April 2026
Duurzaam gelegen woning? Check je Mobiscore
23 March 2026
Op Spotto zoeken als een pro: 10 slimme tips
21 March 2026
Hoeveel kan ik lenen om een huis te kopen?
01 March 2026