Instapklaar gelijkvloers appartement nabij park Schoten
€ 395.000
Een pand van Immo Vasta
Overzicht
- 112.5 m² bewoonbaar
- 3996 m² grond
- 2 Slaapkamer(s)
- 1 Badkamer(s)
- 2 Toilet(ten)
- 1 Garage(s)
Beschrijving
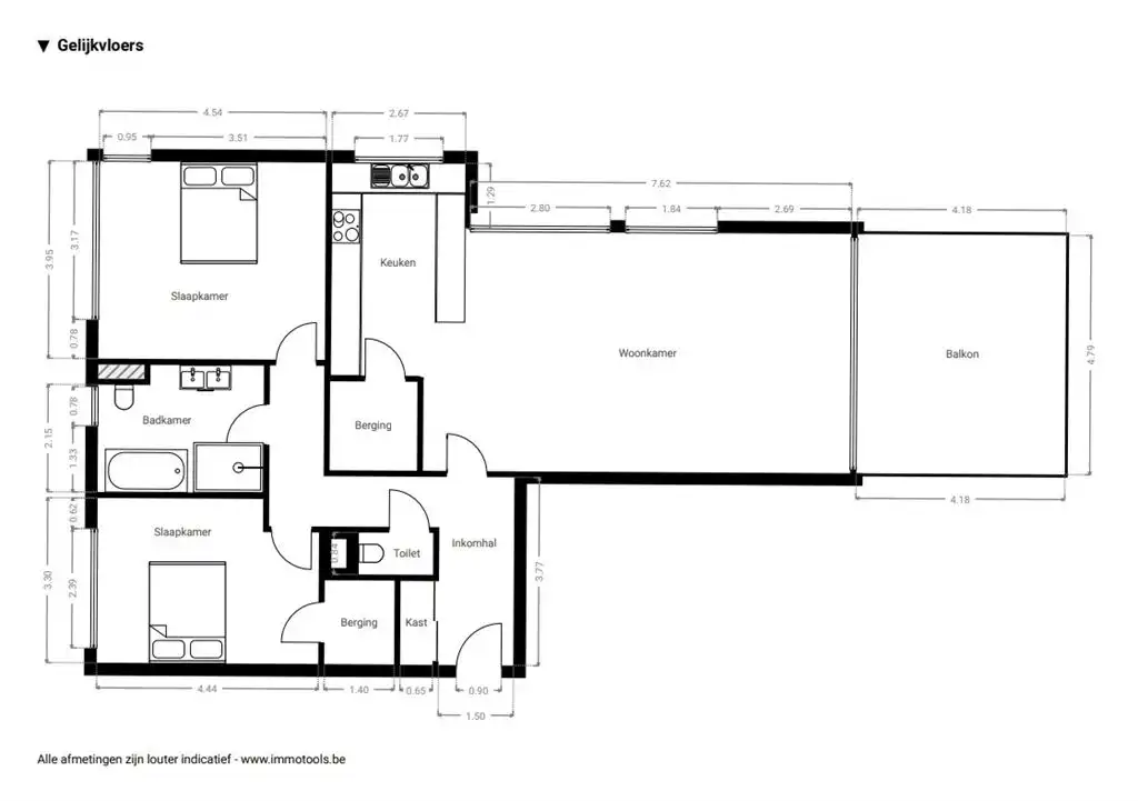
Wonen in alle rust, vlakbij het park van Schoten? Dan zit je hier goed. Dit ruime gelijkvloerse appartement ligt in een rustig privédomein, volledig afgezonderd van de straat. Je geniet hier van open ruimtes, hoge plafonds, veel licht en een mooi zicht op het groen. Met twee grote slaapkamers, een zonnig overdekt terras en een ruime garage is dit een plek waar comfort en rust perfect samenkomen.
Ruimtelijk wonen met veel licht
Je komt binnen via de inkomhal met houtlook parketlaminaat, die meteen een verzorgde en warme indruk geeft. Vooraan bevindt zich een opvallend ruime leefruimte van ca. 44 m². Dankzij de grote aluminium ramen en het brede schuifraam valt hier veel natuurlijk licht binnen. Via het schuifraam stap je rechtstreeks naar het gezellige, overdekte terras met zicht op de gemeenschappelijke tuin — een heerlijke plek om te ontspannen.
Aansluitend ligt de volledig uitgeruste keuken. Die beschikt over een werkblad in natuursteenlook, een elektrisch kookvuur, dubbele spoelbak met afneembare kraan, vaatwasser, hete luchtoven, combi-oven en een ingebouwde koelkast en vriezer. Hier kook je comfortabel met alles binnen handbereik.
Naast de keuken bevindt zich een praktische bijkeuken met extra bergruimte, de individuele verwarmingsketel en de zekeringenkast.
Twee grote slaapkamers
Via de gang bereik je de twee ruime slaapkamers achteraan het appartement. Beide kamers zijn bijzonder royaal, met oppervlaktes van ca. 19 m² en ca. 20 m², en hebben aluminium ramen met HR-dubbel glas en vliegenramen.
De eerste slaapkamer beschikt bovendien over een extra berging met aansluiting voor een wasmachine. Wie wil, kan deze ruimte ook gebruiken om een extra badkamer te installeren.
De badkamer zelf is ruim en stijlvol afgewerkt met grijze wand- en vloertegels. Je vindt hier een ligbad, een inloopdouche met regendouche, een dubbele wastafel met meubel in donkere houtlook en een hangtoilet.
Overdekt terras met zicht op groen
Het ruime terras van ca. 22 m² is overdekt en biedt een mooi uitzicht op de gemeenschappelijke tuin. Dankzij de omliggende haag geniet je hier van veel privacy. Met een wateraansluiting en stopcontacten is dit een praktische en gezellige buitenruimte waar je makkelijk een loungehoek of eettafel plaatst.
Rustig wonen vlakbij het park van Schoten
Dit appartement ligt in een rustig privédomein vlakbij het park van Schoten, een heerlijke plek om te wandelen, sporten of gewoon van het groen te genieten. Tegelijk woon je hier bijzonder praktisch: een bushalte ligt op slechts twee minuten wandelen en ook winkels en andere voorzieningen zijn vlot bereikbaar. Zo combineer je hier rust, natuur en een uitstekende bereikbaarheid.
Ondergrondse garagebox verplicht aan te kopen (€30.000).
Energie
![]() |
- EPC Certificaat: 20260302-0003813581-RES-1
- Energieverbruik: 119 kWh/m²/jaar
- E-peil: E0
- Verwarming: Gas
- Beglazing: Standaard dubbel
Op de kaart

Financieel
| Prijs | |
|---|---|
| Kadastraal inkomen (niet geïndexeerd) | € 1.271 |
| Kadastraal inkomen (geïndexeerd) | € 0 |
Berekening kosten
Je aankoopkosten? Die heb je snel berekend via de knop hieronder.
Bijkomende info
Gebouw
| Bouwjaar | 2007 |
|---|---|
| Staat | Goed onderhouden |
| Bouwcertificaat | Nee |
| Bewoonbaar (m²) | 112.5 |
| Verdieping | 0 |
| Badkamers | 1 |
| Slaapkamers | 2 |
| Verdiepingen | 3 |
| Garages | 1 |
| Parkeerplaatsen | 0 |
| Doucheruimtes | 0 |
| Toiletten | 2 |
Faciliteiten
| Keuken uitrusting | Luxueus uitgerust |
|---|---|
| Materiaal ramenomlijstingen | Aluminium |
| Beglazing | Standaard dubbel |
| Brandstof primaire verwarming | Gas |
| Elektrisch keuringsattest | Nee |
Perceel
| Overstromingsgevoelig | Geen |
|---|---|
| P-score | A |
| G-score | A |
| Voorkeurrecht | Ja |
| Totale oppervlakte (m²) | 3996 |
| Bebouwde oppervlakte (m²) | 0 |
| Tuin oppervlakte (m²) | 0 |
| Oppervlakte terras (m²) | 22 |
| Oriëntatie tuin | ZuidOost |
Vergunning
| Vergunning | Vergunning beschikbaar |
|---|---|
| Verkavelingsvergunning | Vergunning beschikbaar |
Uitrusting
| Investeringspand | Nee |
|---|---|
| Geschikt voor praktijk | Nee |
| Parking | Nee |
| Garage | Ja |
| Thuiskantoor | Nee |
| Kelder | Nee |
| Zolder | Nee |
| Tuin | Nee |
| Terras | Ja |
| Lift | Ja |
| Rioolaansluiting | Nee |
| Gasaansluiting | Nee |
| Wateraansluiting | Nee |
| Elektriciteitsaansluiting | Nee |
| TV aansluiting | Nee |
| Internetaansluiting | Nee |
| Telefoonaansluiting | Nee |
Appartementsblok
| Aantal verdiepingen | 3 |
|---|---|
| Lift | Ja |
