Recent Gerenoveerd Duplex-Appartement met Terras
€ 229.000
Een pand van Reant
Overzicht
- 100 m² bewoonbaar
- 260 m² grond
- 1 Slaapkamer(s)
- 1 Badkamer(s)
- 1 Toilet(ten)
Beschrijving
Recent Gerenoveerd Appartement met Terras
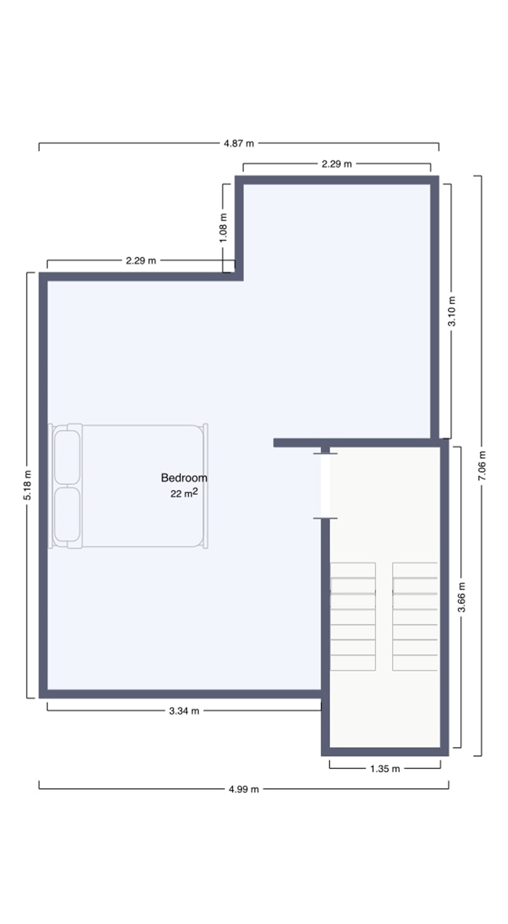
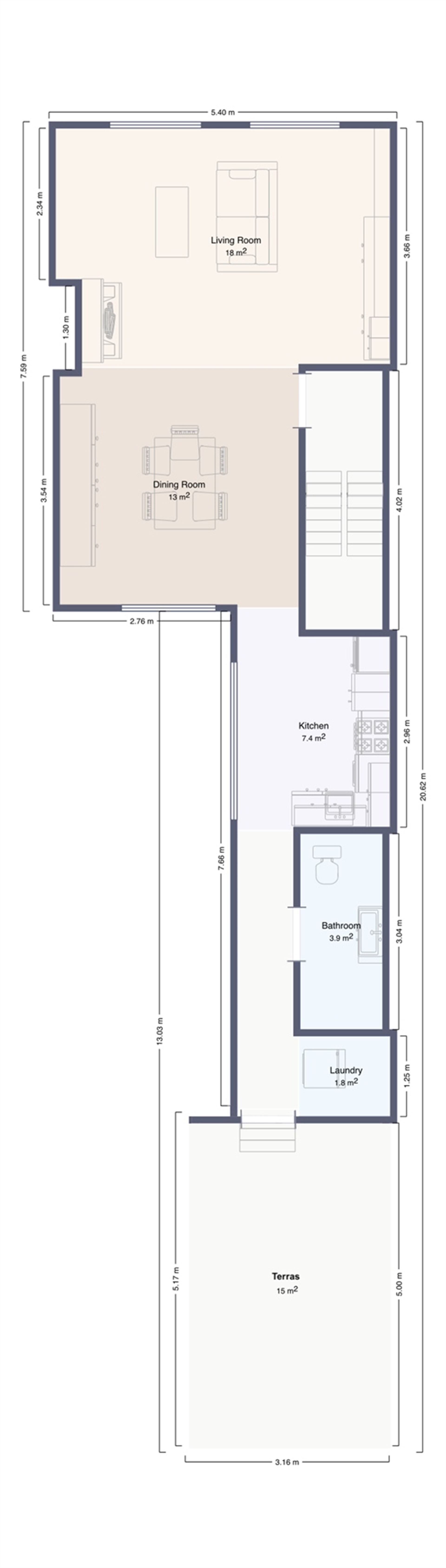
Het duplex-appartement op de eerste en tweede verdieping (eveneens ca. 90 m²) werd gerenoveerd in 2018–2019 en beschikt over een vernieuwde keuken en badkamer, een grote slaapkamer van ca. 25 m² (eventueel opdeelbaar in 2 kamers) onder een geïsoleerd dak en voorzien van airco. Een zuidwestgericht terras biedt een zonnig plekje om te ontspannen. Het appartement beschikt over eigen zonnepanelen.
Het appartement is uitgerust met aparte tellers voor gas, elektriciteit en water.
Het appartement is gelegen in een kleinschalig appartementsgebouw op een gunstige locatie met vlotte bereikbaarheid. Winkels, openbaar vervoer, scholen en belangrijke invalswegen bevinden zich in de nabije omgeving.
TROEVEN
+ Aparte nutsvoorzieningen voor elektriciteit, gas en water
+ Zonnepanelen aanwezig
+ Zuidwestgericht terras
+ EPC C
+ Elektriciteit conform AREI-wetgeving
+ Asbestveilig attest
Energie
![]() |
- EPC Certificaat: 3523261
- Energieverbruik: 265 kWh/m²/jaar
- E-peil: E0
- Verwarming: Gas
- Beglazing: Standaard dubbel
Op de kaart

Financieel
| Prijs | |
|---|---|
| Kadastraal inkomen (niet geïndexeerd) | € 741 |
| Kadastraal inkomen (geïndexeerd) | € 0 |
Berekening kosten
Je aankoopkosten? Die heb je snel berekent via de knop hieronder.
Bijkomende info
Gebouw
| Bouwjaar | 1930 |
|---|---|
| Bouwcertificaat | Nee |
| Bewoonbaar (m²) | 100 |
| Verdieping | 1 |
| Gevelbreedte | 5 |
| Badkamers | 1 |
| Slaapkamers | 1 |
| Verdiepingen | 2 |
| Garages | 0 |
| Parkeerplaatsen | 0 |
| Doucheruimtes | 0 |
| Toiletten | 1 |
Faciliteiten
| Keuken uitrusting | Luxueus uitgerust |
|---|---|
| Materiaal ramenomlijstingen | Aluminium |
| Beglazing | Standaard dubbel |
| Brandstof primaire verwarming | Gas |
| Elektrisch keuringsattest | Ja |
Perceel
| Breedte (m) | 8 |
|---|---|
| Overstromingsgevoelig | Geen |
| P-score | A |
| G-score | A |
| Voorkeurrecht | Nee |
| Totale oppervlakte (m²) | 260 |
| Bebouwde oppervlakte (m²) | 0 |
| Tuin oppervlakte (m²) | 0 |
| Oppervlakte terras (m²) | 15 |
| Oriëntatie tuin | West |
Vergunning
| Vergunning | Vergunning beschikbaar |
|---|---|
| Verkavelingsvergunning | Geen beschikbaar |
Uitrusting
| Investeringspand | Nee |
|---|---|
| Geschikt voor praktijk | Nee |
| Parking | Nee |
| Garage | Nee |
| Thuiskantoor | Nee |
| Kelder | Nee |
| Zolder | Nee |
| Tuin | Nee |
| Terras | Ja |
| Lift | Nee |
| Rioolaansluiting | Ja |
| Gasaansluiting | Ja |
| Wateraansluiting | Ja |
| Elektriciteitsaansluiting | Ja |
| TV aansluiting | Ja |
| Internetaansluiting | Ja |
| Telefoonaansluiting | Nee |
Appartementsblok
| Aantal verdiepingen | 2 |
|---|---|
| Lift | Nee |
