Appartementsgebouw met 2 appartementen en tuin.
€ 545.000
Een pand van Reant
Overzicht
- 205 m² bewoonbaar
- 260 m² grond
- 2 Slaapkamer(s)
- 2 Badkamer(s)
- 2 Toilet(ten)
- 1 Tuin
- 1 Garage(s)
Beschrijving
Recent Gerenoveerd Appartementsgebouw met 2 appartementen en Tuin
Dit kleinschalige appartementsgebouw werd recent gerenoveerd en biedt twee aparte, volledig instapklare appartementen, ideaal als opbrengsteigendom, kangoeroewoning of om wonen en verhuren te combineren. Dankzij de grondige renovaties geniet je hier van hedendaags comfort in een praktische en flexibele indeling.
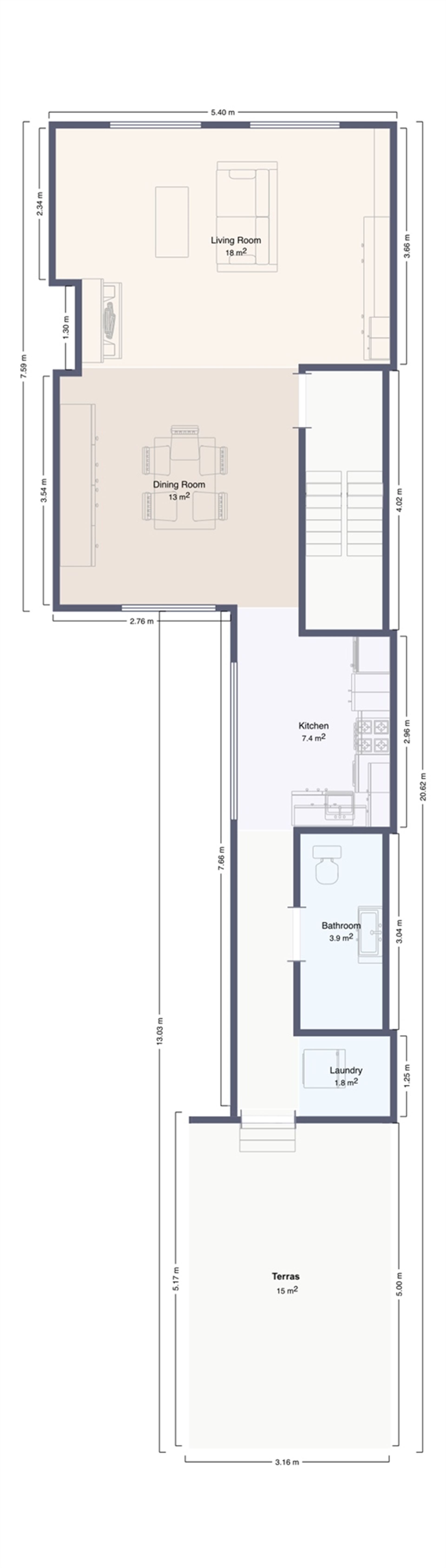
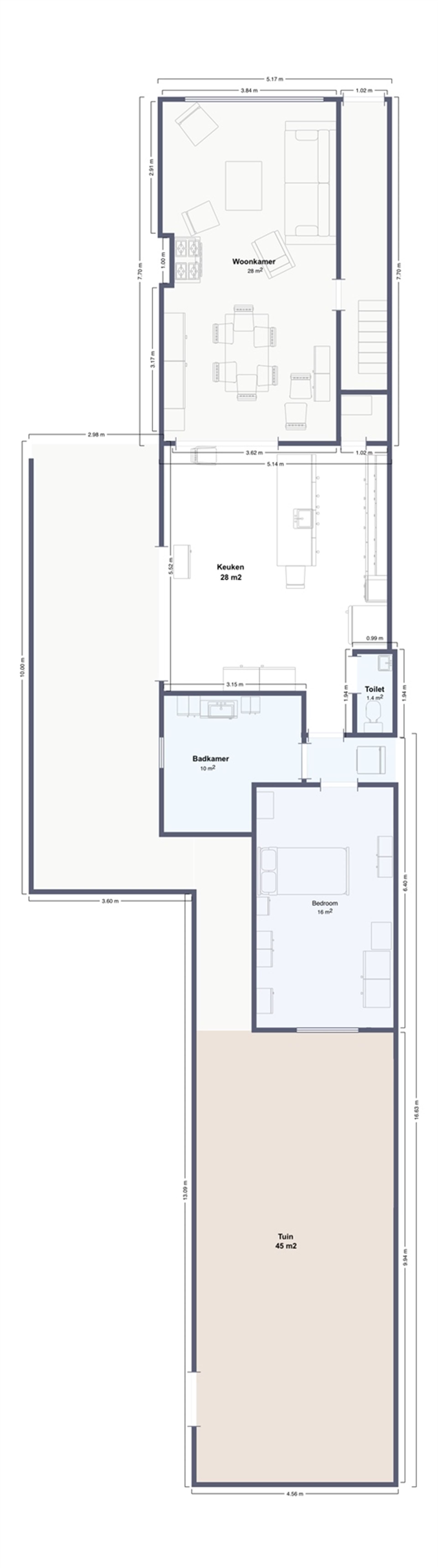
Op het gelijkvloers bevindt zich een ruim appartement van ca. 90 m² met een lichtrijke leefruimte, open keuken met kookeiland en een vernieuwde badkamer. De slaapkamer van ca. 15 m² biedt voldoende ruimte, en de aanwezigheid van een open haard zorgt voor extra gezelligheid. Dit appartement geniet exclusief gebruik van de oprit, de achterliggende tuin en een ruim magazijn/garage van ca. 50 m². Dit appartement beschikt over eigen zonnepanelen.
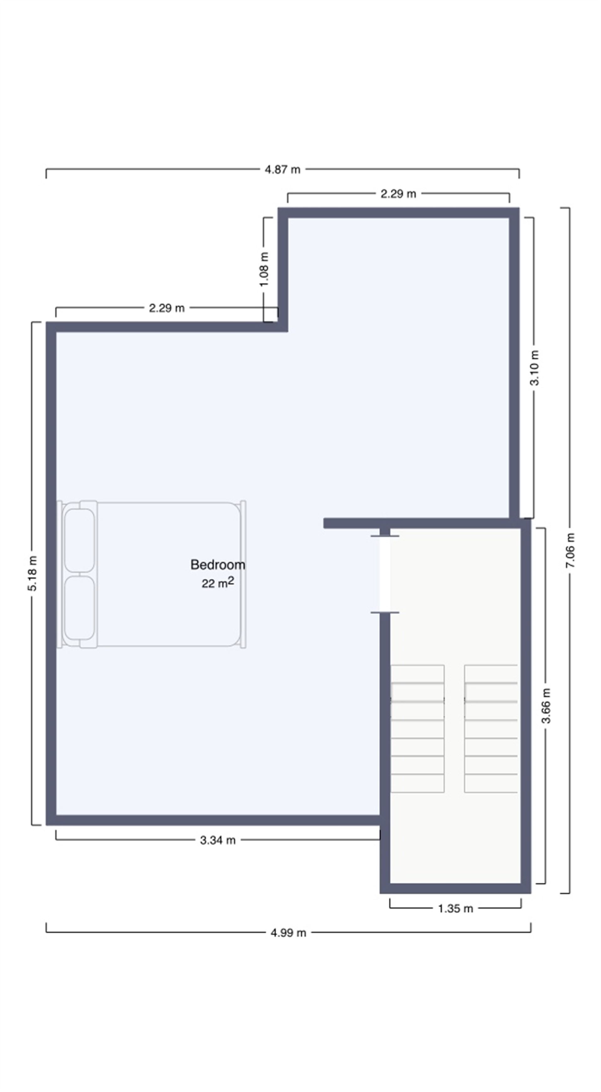
Het duplex-appartement op de eerste en tweede verdieping (eveneens ca. 90 m²) werd gerenoveerd in 2018–2019 en beschikt over een vernieuwde keuken en badkamer, een grote slaapkamer van ca. 25 m² (eventueel opdeelbaar in 2 kamers) onder een geïsoleerd dak en voorzien van airco. Een zuidwestgericht terras biedt een zonnig plekje om te ontspannen. Ook dit appartement beschikt over eigen zonnepanelen.
Beide appartementen zijn uitgerust met aparte tellers voor gas, elektriciteit en water.
Het gebouw is gelegen op een gunstige locatie met vlotte bereikbaarheid. Winkels, openbaar vervoer, scholen en belangrijke invalswegen bevinden zich in de nabije omgeving.
TROEVEN
+ Twee instapklare appartementen van elk ca. 90 m²
+ Aparte nutsvoorzieningen voor elektriciteit, gas en water
+ Zonnepanelen voor beide appartementen
+ Grote garage/magazijn van ca. 50 m² en privatieve tuin voor gelijkvloers
+ Zuidwestgericht terras bij duplex-appartement
+ EPC C voor beide wooneenheden
+ Elektriciteit conform AREI-wetgeving
+ Asbestveilig attest
Energie
![]() |
- EPC Certificaat: 3523261
- Energieverbruik: 265 kWh/m²/jaar
- E-peil: E0
- Verwarming: Gas
- Beglazing: Standaard dubbel
Op de kaart

Financieel
Prijs | |
---|---|
Kadastraal inkomen (niet geïndexeerd) | € 741 |
Kadastraal inkomen (geïndexeerd) | € 0 |
Berekening kosten
Je aankoopkosten? Die heb je snel berekent via de knop hieronder.
Bijkomende info
Gebouw
Bouwjaar | 1930 |
---|---|
Bouwcertificaat | Nee |
Bewoonbaar (m²) | 205 |
Verdieping | 0 |
Gevelbreedte | 5 |
Badkamers | 2 |
Slaapkamers | 2 |
Verdiepingen | 2 |
Garages | 1 |
Parkeerplaatsen | 2 |
Doucheruimtes | 0 |
Toiletten | 2 |
Faciliteiten
Keuken uitrusting | Luxueus uitgerust |
---|---|
Materiaal ramenomlijstingen | Aluminium |
Beglazing | Standaard dubbel |
Brandstof primaire verwarming | Gas |
Elektrisch keuringsattest | Ja |
Perceel
Breedte (m) | 8 |
---|---|
Overstromingsgevoelig | Geen |
P-score | A |
G-score | A |
Voorkeurrecht | Nee |
Totale oppervlakte (m²) | 260 |
Bebouwde oppervlakte (m²) | 0 |
Tuin oppervlakte (m²) | 45 |
Oppervlakte terras (m²) | 15 |
Oriëntatie tuin | West |
Vergunning
Vergunning | Vergunning beschikbaar |
---|---|
Verkavelingsvergunning | Geen beschikbaar |
Uitrusting
Investeringspand | Nee |
---|---|
Geschikt voor praktijk | Nee |
Parking | Ja |
Garage | Ja |
Thuiskantoor | Nee |
Kelder | Nee |
Zolder | Nee |
Tuin | Ja |
Terras | Ja |
Lift | Nee |
Rioolaansluiting | Ja |
Gasaansluiting | Ja |
Wateraansluiting | Ja |
Elektriciteitsaansluiting | Ja |
TV aansluiting | Ja |
Internetaansluiting | Ja |
Telefoonaansluiting | Nee |
Appartementsblok
Aantal verdiepingen | 2 |
---|---|
Lift | Nee |