> Te koop > BRASSCHAAT > Commercieel > Commercieel gelijkvloers in het centrum van Brasschaat

Commercieel gelijkvloers in het centrum van Brasschaat

€ 300.000

2930 BRASSCHAAT

Een pand van Janssen en Janssen

Volledige aanbod

Jouw zoektocht

Jouw scoretabel voor dit pand
Aan het laden...
Aan het laden...
Jouw geplande bezichtigingen
Aan het laden...
Aan het laden...

Overzicht


Beschrijving


Commercieel gelijkvloers in het centrum van Brasschaat

Bent u op zoek naar een strategisch gelegen handelsruimte voor uw kantoor, praktijk of winkel?
Dan is dit commercieel gelijkvloers in het hart van Brasschaat een uitstekende opportuniteit.

Dankzij de uitstekende zichtbaarheid en de centrale ligging in de dorpskern vormt dit pand de ideale uitvalsbasis voor uw onderneming.
Openbaar vervoer, winkels en scholen bevinden zich in de onmiddellijke nabijheid, wat zorgt voor een sterke passage en bereikbaarheid.

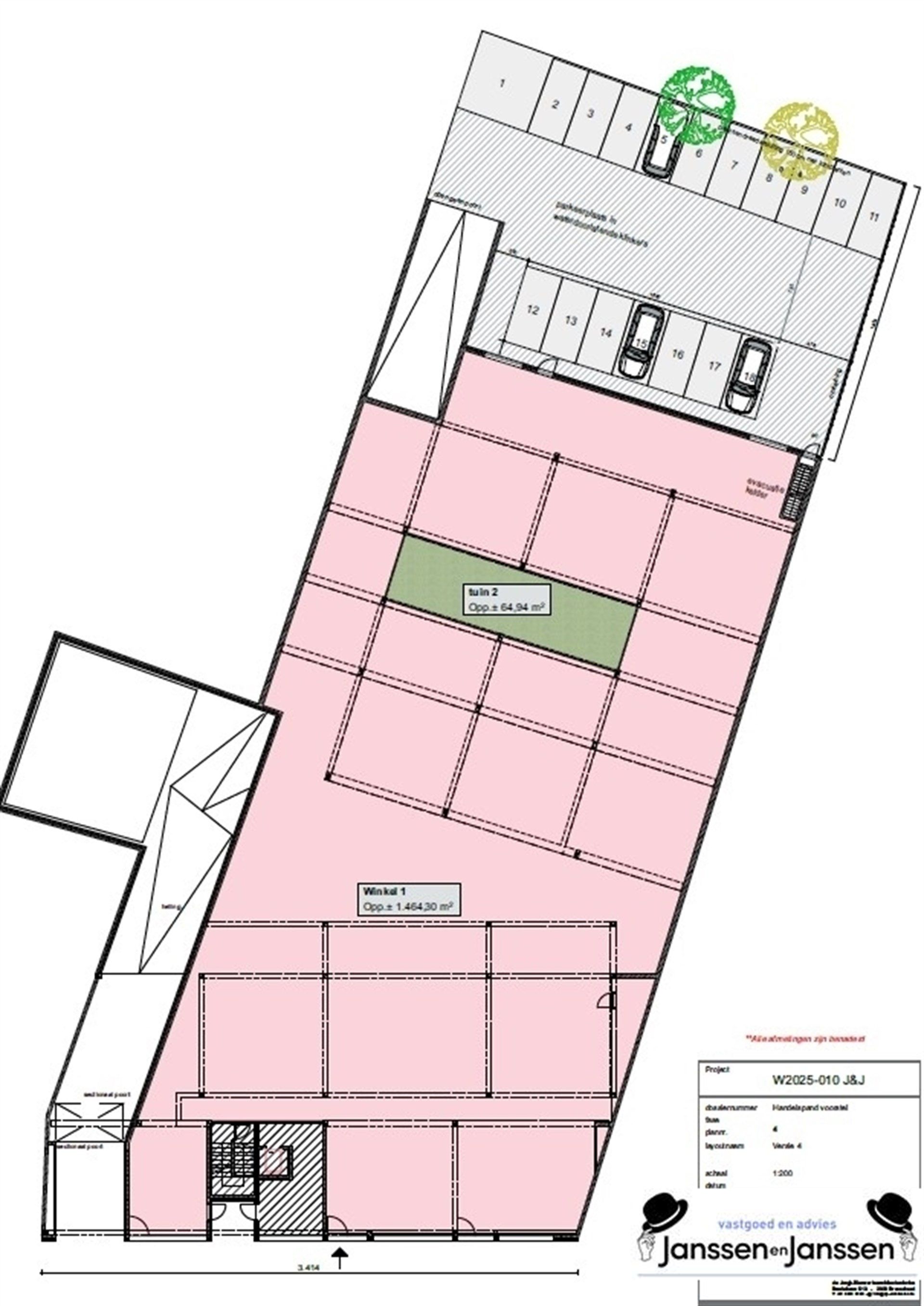
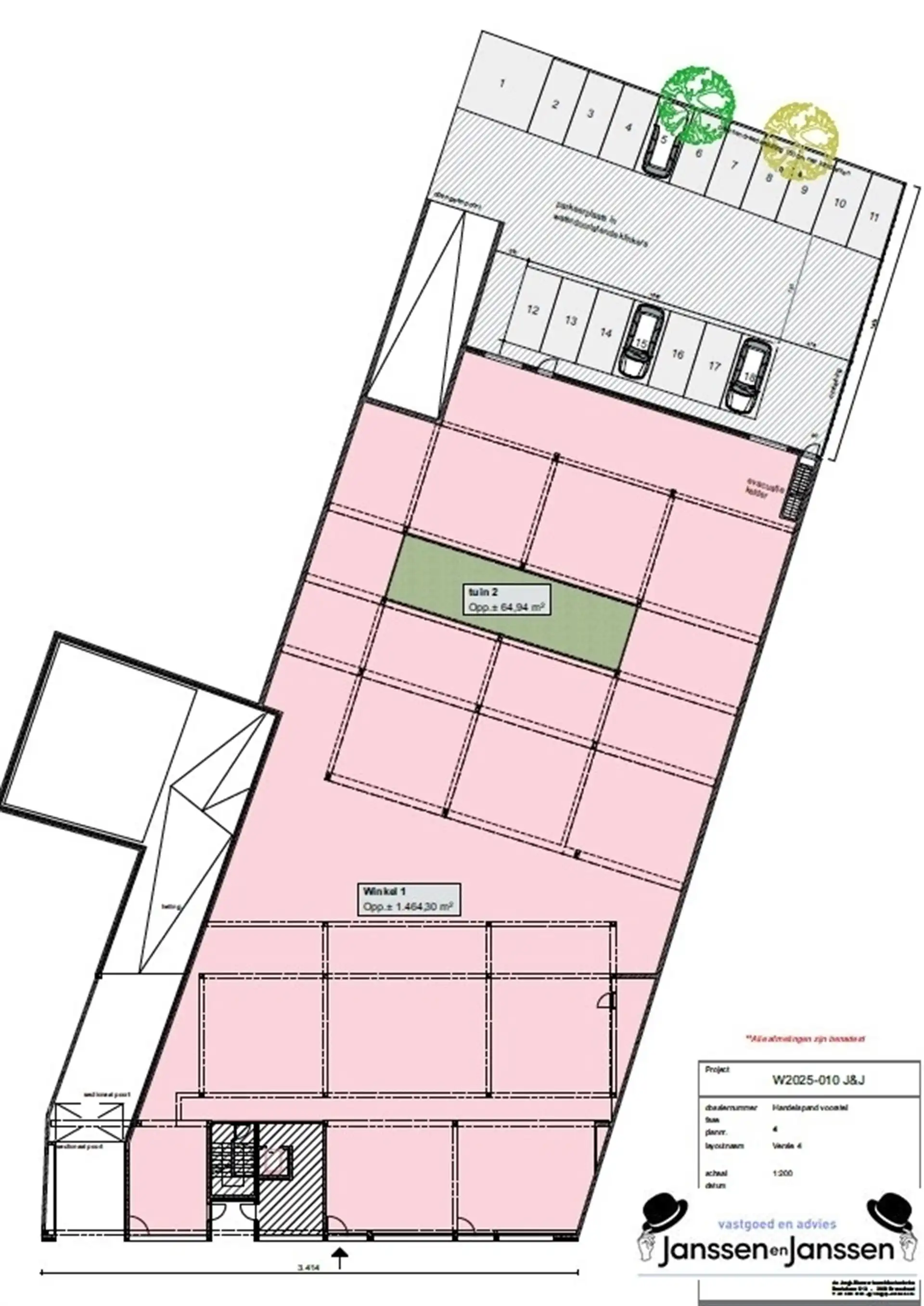
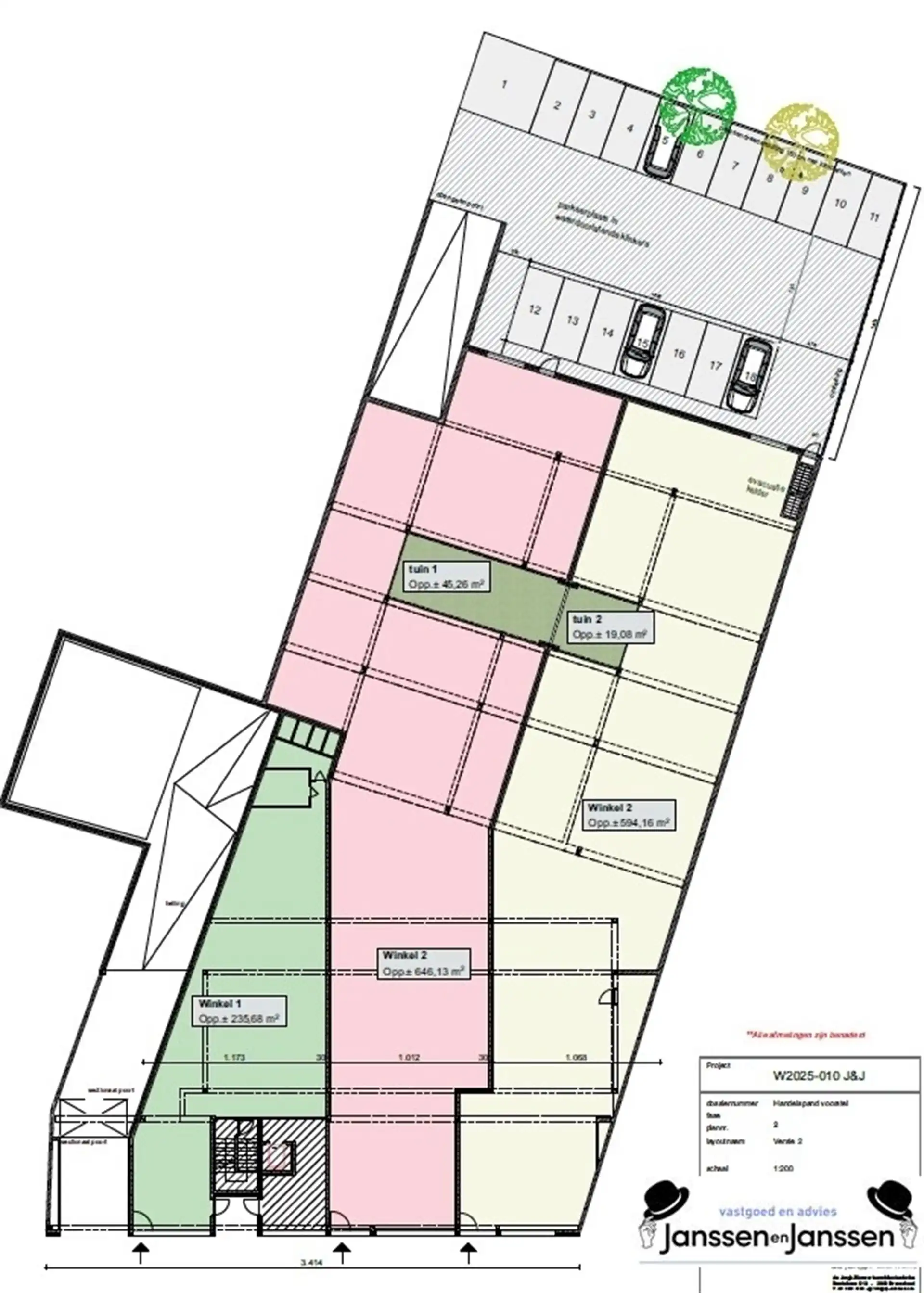
Het pand beschikt over een ruime handelsoppervlakte van 1.464,30 m² en een aangename binnentuin/patio van 64,94 m².
De indeling is flexibel en kan aangepast worden aan uw noden: zowel grotere als kleinere units zijn mogelijk.
In de foto’s vindt u verschillende voorbeeldindelingen ter inspiratie.

Daarnaast zijn er openbare parkeermogelijkheden vlak voor de deur, wat het comfort voor klanten en medewerkers aanzienlijk verhoogt.

Kortom: een veelzijdige commerciële ruimte op een toplocatie, met tal van mogelijkheden voor diverse professionele activiteiten.

 

Energie


  • E-peil: E0
  • Beglazing: Standaard dubbel

Financieel


Prijs € 300.000
Kadastraal inkomen (niet geïndexeerd) € 0
Kadastraal inkomen (geïndexeerd) € 0

Berekening kosten


Je aankoopkosten? Die heb je snel berekend via de knop hieronder.

Bijkomende info


Gebouw
Bouwjaar 2014
Bouwcertificaat Nee
Verdieping 0
Badkamers 0
Slaapkamers 0
Verdiepingen 0
Garages 0
Parkeerplaatsen 0
Doucheruimtes 0
Toiletten 0
Faciliteiten
Materiaal ramenomlijstingen Aluminium
Beglazing Standaard dubbel
Elektrisch keuringsattest Nee
Perceel
Overstromingsgevoelig Geen
P-score B
G-score B
Voorkeurrecht Nee
Bebouwde oppervlakte (m²) 0
Tuin oppervlakte (m²) 0
Oppervlakte terras (m²) 0
Vergunning
Vergunning Vergunning beschikbaar
Verkavelingsvergunning Geen beschikbaar
Uitrusting
Investeringspand Nee
Geschikt voor praktijk Nee
Parking Nee
Garage Nee
Thuiskantoor Ja
Kelder Nee
Zolder Nee
Tuin Nee
Terras Nee
Lift Nee
Rioolaansluiting Nee
Gasaansluiting Nee
Wateraansluiting Nee
Elektriciteitsaansluiting Nee
TV aansluiting Nee
Internetaansluiting Nee
Telefoonaansluiting Nee
Appartementsblok
Lift Nee

Een pand van


Janssen en Janssen
Logo van makelaar: Janssen en Janssen
Janssen en Janssen Vastgoed
Janssen en Janssen: Groot netwerk, lokale expertise Met meer dan 20 jaar ervaring in de vastgoedsector is Janssen en Janssen een betrouwbare partner voor wie op zoek is naar een vlotte verkoop. We combineren de slagkracht van een uitgebreid netwerk met diepgewortelde lokale kennis, waardoor we elk eigendom gericht in de markt kunnen zetten. Onze aanpak is gebouwd op persoonlijke service en transparantie, met als doel steeds het maximale rendement voor uw eigendom te realiseren. Bij ons mag u rekenen op correcte begeleiding, heldere communicatie en een verkoopstrategie op maat.
Logo van makelaar: Janssen en Janssen
BREDABAAN 400 BRASSCHAAT
Commercieel gelijkvloers in het centrum van Brasschaat foto {{pictureIndex}}

Commercieel gelijkvloers in het centrum van Brasschaat

€ 300.000

2930 BRASSCHAAT

Bezoek het pand

Vul jouw contactgegevens hieronder in en de makelaar contacteert je.

Leer meer over vastgoed

04 January 2026
Zoek je een kantoor, een magazijn of… iets ertussenin? Bedrijfsvastgoed uitgelegd
05 November 2024
Bedrijfsvastgoed in transitie: ontdek de toekomst van werkplekken
16 October 2024
Opbrengsteigendom: een slim pad naar passief inkomen en vermogensgroei
09 September 2024
Tijdelijk vastgoed: flexibele oplossingen voor een dynamische markt