Tof gelegen perceel bouwgrond voor een weekendverblijf op 1.812m² in een rustige en groene omgeving!
€ 315.000
Een pand van BUYTAERT Immo Consulting
Overzicht
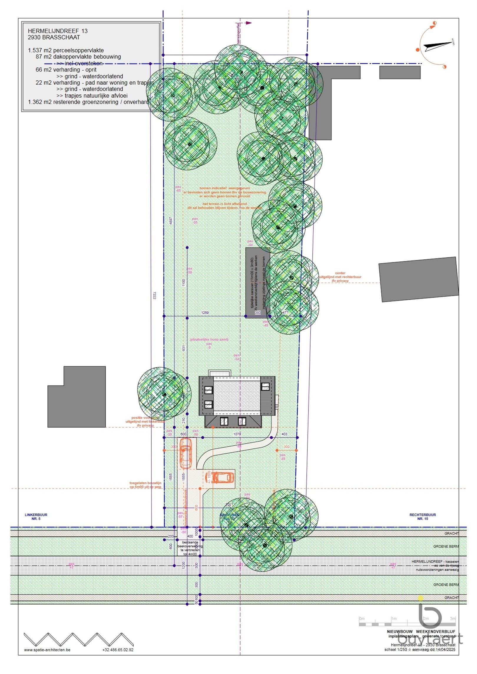
- 1812 m² grond
Beschrijving
Tof gelegen perceel bouwgrond voor een weekendverblijf op 1.812m² te Brasschaat in een rustige en groene omgeving!
De grond met vergunning is gelegen in verblijfsrecreatie met een straatbreedte van ca 20m.
Er is een voorwaardelijke bouwvergunning goedgekeurd op 24/04/2025 (2j geldig) voor het bouwen van een weekendverblijf.
De vraagprijs is inclusief de overname van de vergunning + plannen (spatie architecten).
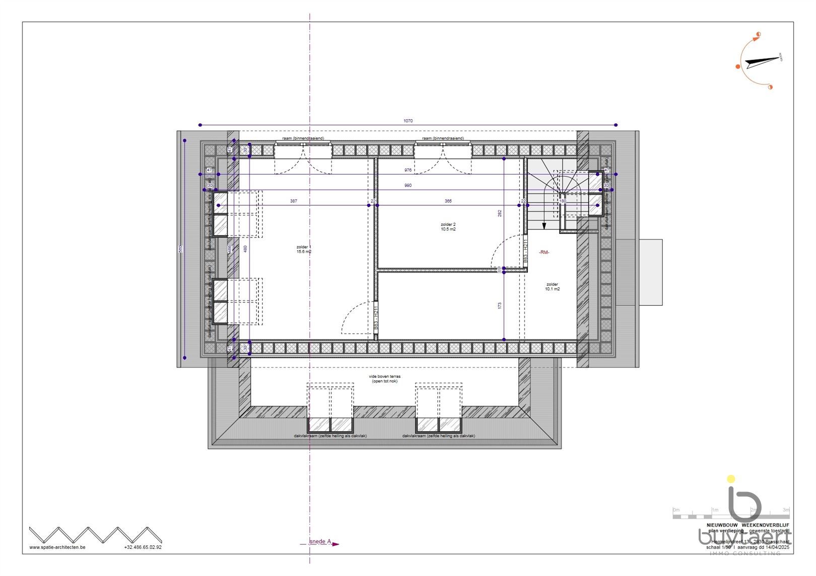
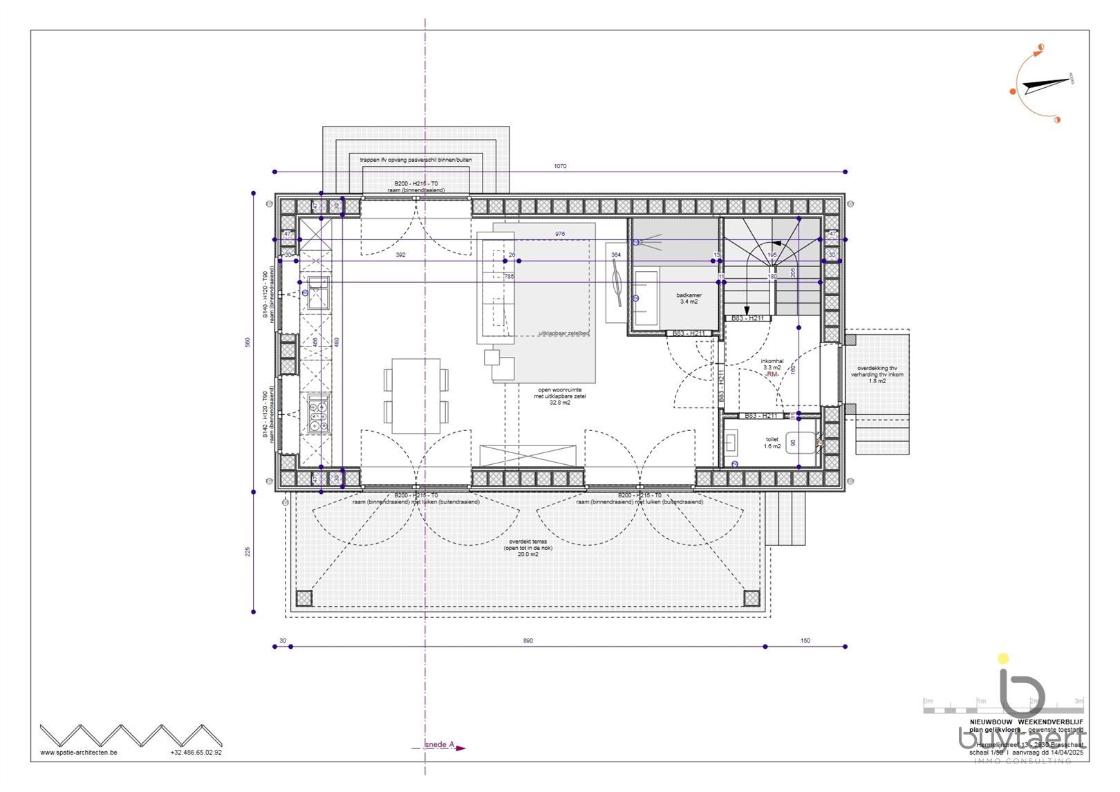
Vergunning voor een vrijstaande woning met een gevelbreedte van 10,7m: inkomhal, gastentoilet, leefruimte (ca 33m²) met aanluitend overdekt terras (20m²) open keuken, badkamer, twee slaapkamers (ca 16m² en 11m²).
Groen en centraal gelegen te Brasschaat met een goede bereikbaarheid en verbinding met uitvalswegen.
Prachtige ligging nabij mooie fiets-en wandelroutes.
Maak met ons een afspraak om de plannen en vergunning in te kijken!
Energie
- EPC Certificaat: nieuwbouw
- E-peil: E0
- Beglazing: Onbekend
Op de kaart

Financieel
| Prijs | |
|---|---|
| Kadastraal inkomen (niet geïndexeerd) | € 0 |
| Kadastraal inkomen (geïndexeerd) | € 0 |
Berekening kosten
Je aankoopkosten? Die heb je snel berekent via de knop hieronder.
Bijkomende info
Gebouw
| Bouwcertificaat | Nee |
|---|
Perceel
| Breedte (m) | 20 |
|---|---|
| Overstromingsgevoelig | Geen |
| P-score | A |
| Voorkeurrecht | Nee |
| Totale oppervlakte (m²) | 1812 |
Vergunning
| Vergunning | Vergunning beschikbaar |
|---|
Uitrusting
| Investeringspand | Nee |
|---|---|
| Rioolaansluiting | Nee |
| Gasaansluiting | Nee |
| Wateraansluiting | Nee |
| Elektriciteitsaansluiting | Nee |
| TV aansluiting | Nee |
| Internetaansluiting | Nee |
| Telefoonaansluiting | Nee |