Nieuw
Handelshuis met 7 slaapkamers in het centrum van Stabroek!
€ 449.000
Een pand van Vastgoed 03
Favoriet
Jouw zoektocht
Jouw scoretabel voor dit pand
Aan het laden...
Jouw geplande bezichtigingen
Aan het laden...
Overzicht
- 241 m² bewoonbaar
- 245 m² grond
- 7 Slaapkamer(s)
- 1 Badkamer(s)
- 3 Toilet(ten)
- 1 Tuin
Beschrijving
Handelshuis met 7 slaapkamers in het centrum van Stabroek!
Bent u op zoek naar een ruime gezinswoning met de mogelijkheid tot werken aan huis?
Dan is dit centraal gelegen handelshuis een unieke opportuniteit die u niet mag missen!
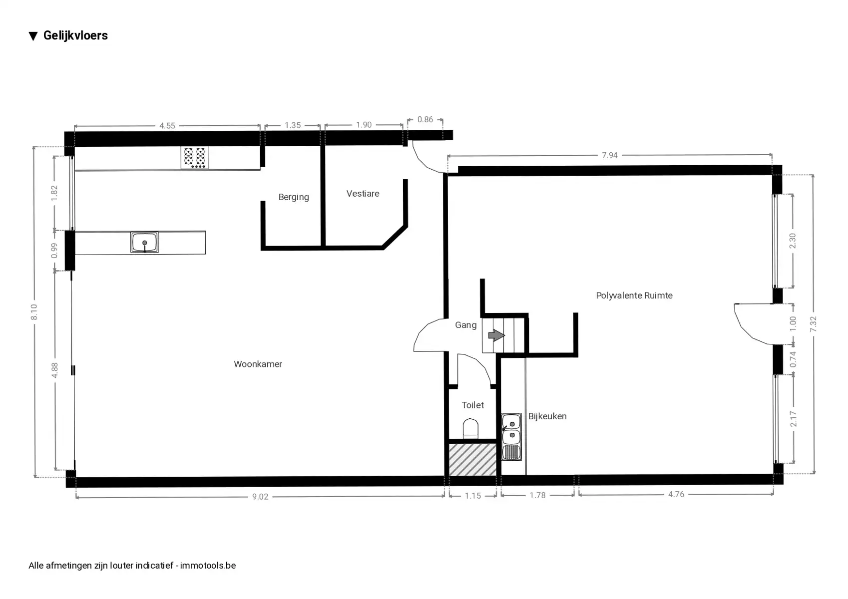
Indeling – gelijkvloers
U betreedt het pand via de polyvalente ruimte, ideaal om in te richten voor een zelfstandige activiteit naar keuze.
Momenteel is deze ingericht als kapperszaak en voorzien van een kitchenette, drie wastafels en ruimte voor een wachthoek.
Achterliggend bevindt zich het privatieve leefgedeelte, volledig afgescheiden van de handelsruimte.
Hier vinden we een gezellige leefruimte, opgedeeld in zithoek en eetkamer, met aansluitend een semi-open, volledig geïnstalleerde keuken en een praktische berging.
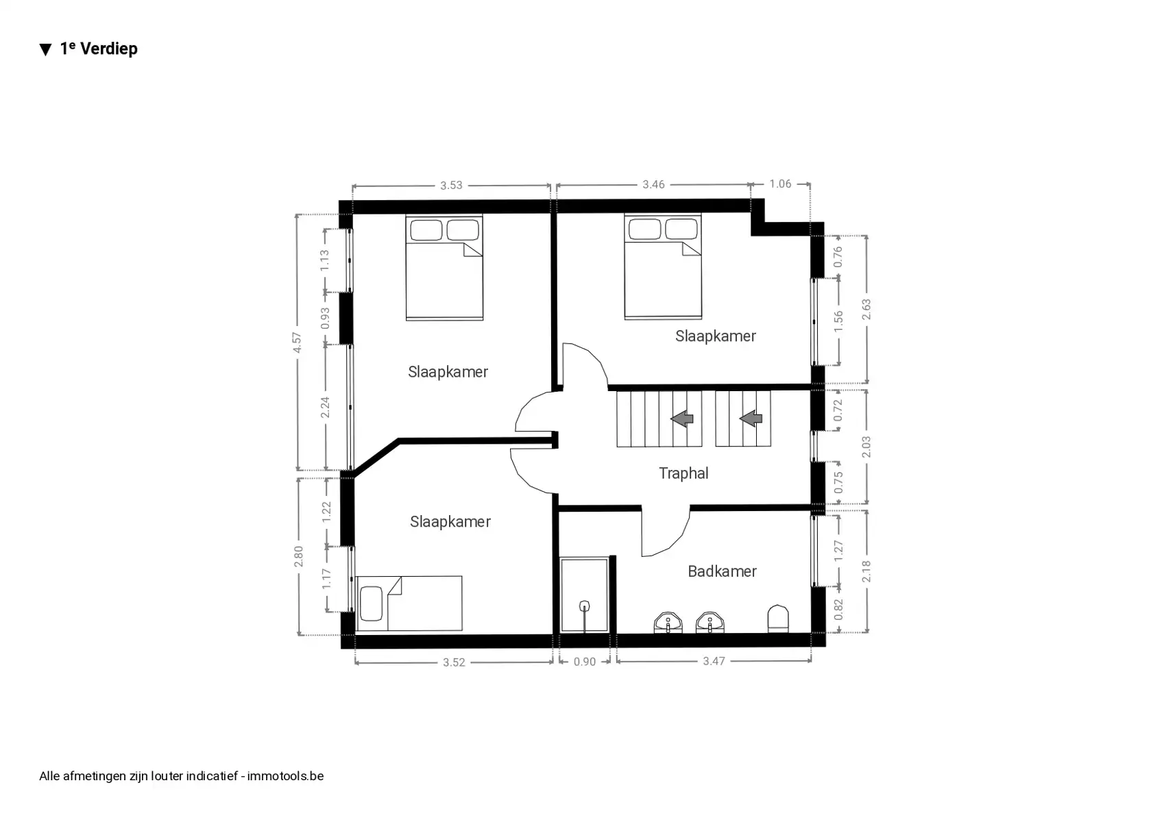
Indeling – eerste verdieping
De eerste verdieping omvat drie ruime slaapkamers.
Daarnaast is er een comfortabele badkamer uitgerust met toilet, dubbele lavabo en inloopdouche.
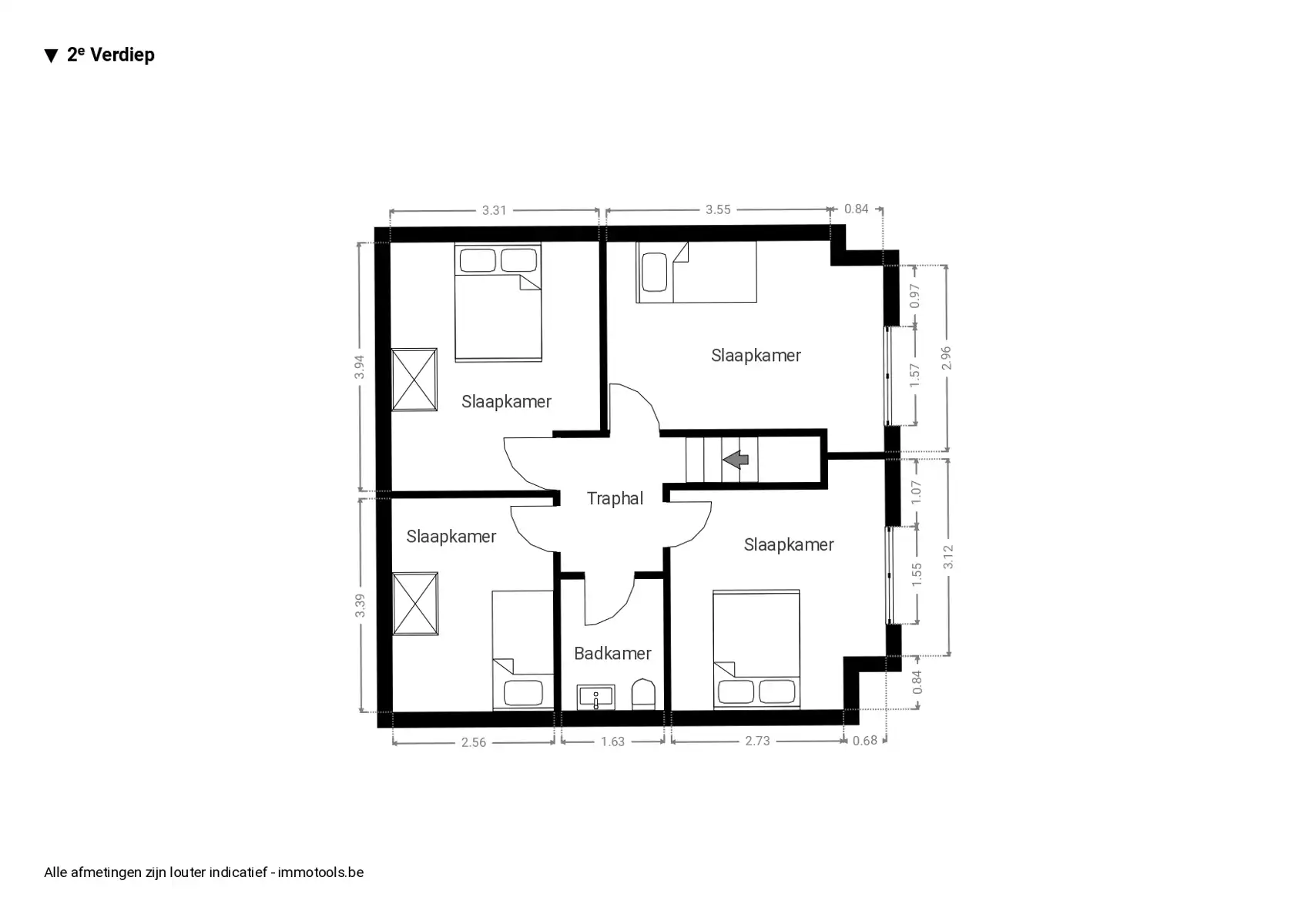
Indeling – tweede verdieping
Op de tweede verdieping bevinden zich nog vier volwaardige slaapkamers, afgewerkt met laminaatvloeren.
Verder is er een apart toilet met handenwasser.
Buitenruimte
Vooraan beschikt de woning over een handige zij-ingang, ideaal voor fietsen of extra bergruimte.
Achteraan geniet u van een onderhoudsvriendelijke tuin met terras, georiënteerd op het zuidoosten.
Troeven
✔ Centrale ligging in Stabroek
✔ 7 volwaardige slaapkamers
✔ Ideaal voor combinatie wonen/werken
✔ EPC C-label – 204 kWh/(m²/j)
✔ Asbestveilig
✔ Verkoop onder registratiestelsel
Interesse?
Laat deze veelzijdige eigendom niet aan u voorbijgaan!
📞 03/568 03 03
✉️ info@vastgoed03.be
👉 Vastgoed 03 – plan vandaag nog uw bezoek!
Bent u op zoek naar een ruime gezinswoning met de mogelijkheid tot werken aan huis?
Dan is dit centraal gelegen handelshuis een unieke opportuniteit die u niet mag missen!
Indeling – gelijkvloers
U betreedt het pand via de polyvalente ruimte, ideaal om in te richten voor een zelfstandige activiteit naar keuze.
Momenteel is deze ingericht als kapperszaak en voorzien van een kitchenette, drie wastafels en ruimte voor een wachthoek.
Achterliggend bevindt zich het privatieve leefgedeelte, volledig afgescheiden van de handelsruimte.
Hier vinden we een gezellige leefruimte, opgedeeld in zithoek en eetkamer, met aansluitend een semi-open, volledig geïnstalleerde keuken en een praktische berging.
Indeling – eerste verdieping
De eerste verdieping omvat drie ruime slaapkamers.
Daarnaast is er een comfortabele badkamer uitgerust met toilet, dubbele lavabo en inloopdouche.
Indeling – tweede verdieping
Op de tweede verdieping bevinden zich nog vier volwaardige slaapkamers, afgewerkt met laminaatvloeren.
Verder is er een apart toilet met handenwasser.
Buitenruimte
Vooraan beschikt de woning over een handige zij-ingang, ideaal voor fietsen of extra bergruimte.
Achteraan geniet u van een onderhoudsvriendelijke tuin met terras, georiënteerd op het zuidoosten.
Troeven
✔ Centrale ligging in Stabroek
✔ 7 volwaardige slaapkamers
✔ Ideaal voor combinatie wonen/werken
✔ EPC C-label – 204 kWh/(m²/j)
✔ Asbestveilig
✔ Verkoop onder registratiestelsel
Interesse?
Laat deze veelzijdige eigendom niet aan u voorbijgaan!
📞 03/568 03 03
✉️ info@vastgoed03.be
👉 Vastgoed 03 – plan vandaag nog uw bezoek!
Handelshuis met 7 slaapkamers in het centrum van Stabroek!
Bent u op zoek naar een ruime gezinswoning met de mogelijkheid tot werken aan huis?
Dan is dit centraal gelegen handelshuis een unieke opportuniteit die u niet mag missen!
Indeling – gelijkvloers
U betreedt het pand via de polyvalente ruimte, ideaal om in te richten voor een zelfstandige activiteit naar keuze.
Momenteel is deze ingericht als kapperszaak en voorzien van een kitchenette, drie wastafels en ruimte voor een wachthoek.
Achterliggend bevindt zich het privatieve leefgedeelte, volledig afgescheiden van de handelsruimte.
Hier vinden we een gezellige leefruimte, opgedeeld in zithoek en eetkamer, met aansluitend een semi-open, volledig geïnstalleerde keuken en een praktische berging.
Indeling – eerste verdieping
De eerste verdieping omvat drie ruime slaapkamers.
Daarnaast is er een comfortabele badkamer uitgerust met toilet, dubbele lavabo en inloopdouche.
Indeling – tweede verdieping
Op de tweede verdieping bevinden zich nog vier volwaardige slaapkamers, afgewerkt met laminaatvloeren.
Verder is er een apart toilet met handenwasser.
Buitenruimte
Vooraan beschikt de woning over een handige zij-ingang, ideaal voor fietsen of extra bergruimte.
Achteraan geniet u van een onderhoudsvriendelijke tuin met terras, georiënteerd op het zuidoosten.
Troeven
✔ Centrale ligging in Stabroek
✔ 7 volwaardige slaapkamers
✔ Ideaal voor combinatie wonen/werken
✔ EPC C-label – 204 kWh/(m²/j)
✔ Asbestveilig
✔ Verkoop onder registratiestelsel
Interesse?
Laat deze veelzijdige eigendom niet aan u voorbijgaan!
📞 03/568 03 03
✉️ info@vastgoed03.be
👉 Vastgoed 03 – plan vandaag nog uw bezoek!
Bent u op zoek naar een ruime gezinswoning met de mogelijkheid tot werken aan huis?
Dan is dit centraal gelegen handelshuis een unieke opportuniteit die u niet mag missen!
Indeling – gelijkvloers
U betreedt het pand via de polyvalente ruimte, ideaal om in te richten voor een zelfstandige activiteit naar keuze.
Momenteel is deze ingericht als kapperszaak en voorzien van een kitchenette, drie wastafels en ruimte voor een wachthoek.
Achterliggend bevindt zich het privatieve leefgedeelte, volledig afgescheiden van de handelsruimte.
Hier vinden we een gezellige leefruimte, opgedeeld in zithoek en eetkamer, met aansluitend een semi-open, volledig geïnstalleerde keuken en een praktische berging.
Indeling – eerste verdieping
De eerste verdieping omvat drie ruime slaapkamers.
Daarnaast is er een comfortabele badkamer uitgerust met toilet, dubbele lavabo en inloopdouche.
Indeling – tweede verdieping
Op de tweede verdieping bevinden zich nog vier volwaardige slaapkamers, afgewerkt met laminaatvloeren.
Verder is er een apart toilet met handenwasser.
Buitenruimte
Vooraan beschikt de woning over een handige zij-ingang, ideaal voor fietsen of extra bergruimte.
Achteraan geniet u van een onderhoudsvriendelijke tuin met terras, georiënteerd op het zuidoosten.
Troeven
✔ Centrale ligging in Stabroek
✔ 7 volwaardige slaapkamers
✔ Ideaal voor combinatie wonen/werken
✔ EPC C-label – 204 kWh/(m²/j)
✔ Asbestveilig
✔ Verkoop onder registratiestelsel
Interesse?
Laat deze veelzijdige eigendom niet aan u voorbijgaan!
📞 03/568 03 03
✉️ info@vastgoed03.be
👉 Vastgoed 03 – plan vandaag nog uw bezoek!
Energie
![]() |
- EPC Certificaat: 20260401-0003837901-RES-1
- Energieverbruik: 204 kWh/m²/jaar
Op de kaart

Downloads
Financieel
| Prijs | |
|---|---|
| Kadastraal inkomen (niet geïndexeerd) | € 1.581 |
Berekening kosten
Je aankoopkosten? Die heb je snel berekend via de knop hieronder.
Bijkomende info
Gebouw
| Bouwjaar | 1918 |
|---|---|
| Staat | Goed onderhouden |
| Bewoonbaar (m²) | 241 |
| Gevels | 2 |
| Badkamers | 1 |
| Slaapkamers | 7 |
| Parkeerplaatsen | 0 |
| Toiletten | 3 |
Faciliteiten
| Type vloer | |
|---|---|
| Elektrisch keuringsattest | Nee |
Perceel
| Overstromingsgevoelig | Geen |
|---|---|
| P-score | A |
| G-score | A |
| Voorkeurrecht | Nee |
| Totale oppervlakte (m²) | 245 |
| Tuin oppervlakte (m²) | 0 |
| Oriëntatie tuin | ZuidOost |
| Oriëntatie terras | ZuidOost |
Vergunning
| Vergunning | Vergunning beschikbaar |
|---|---|
| Verkavelingsvergunning | Geen beschikbaar |
| Bouwovertreding | Geen |
| Bouwovertreding dagvaardiging | Geen |
Uitrusting
| Geschikt voor rolstoelgebruikers | Nee |
|---|---|
| Parking | Nee |
| Garage | Nee |
| Tuin | Ja |
| Terras | Nee |
| Zwembad | Nee |
| Zwemvijver | Nee |
Een pand van
Vastgoed 03
Vastgoed 03, De betrouwbare makelaar in uw regio !
Vastgoed03 werd in 2007 opgericht door Leen Geerts en Christophe Roose. Vandaag de dag is V03 een vertrouwde naam in de regio ten noorden van Antwerpen.
Onze focus ligt op het bieden van een persoonlijke en kwaliteitsvolle service voor elk van onze klanten. Of u nu uw eigendom wil verkopen of verhuren, wij begeleiden u steeds met de glimlach van A tot Z. Met onze jarenlange ervaring in uw regio, kennen wij de markt als geen ander. Bij ons kunt u rekenen op professionele en realistische adviezen van onze sterk opgeleide en ervaren vastgoedmakelaars.
Spring gerust eens binnen in één van onze kantoren in Stabroek, Kapellen of Zandvliet of bel ons op 03 568 03 03.
We hopen u snel te mogen verwelkomen!
Leer meer over vastgoed
23 March 2026
Op Spotto zoeken als een pro: 10 slimme tips
21 March 2026
Hoeveel kan ik lenen om een huis te kopen?
01 March 2026
Wanneer heb ik een bouwvergunning of omgevingsvergunning nodig?
17 February 2026
