Persilstraat 51-52, 3020 Herent
Prijs op aanvraag
Een pand van DGI
Jouw zoektocht
Overzicht
Beschrijving
--------
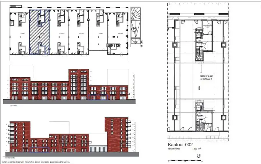
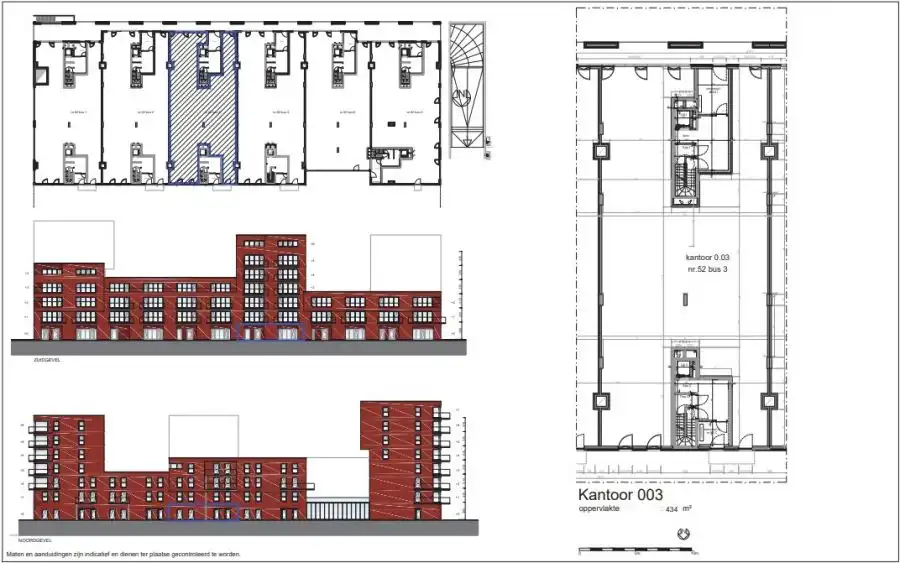
te koop - kantoor (2 units, 429 - 863 m²)
--------
Deze nieuwbouw kantoorruimtes in Gebouw B op de site Park 51 maken een professionele basis mogelijk op een locatie met een rijke historie. De site combineert een tijdloze architectuur met een subtiele verwijzing naar het industriële verleden van de voormalige Henkelfabriek. Je bevindt je hier op wandelafstand van het centrum van Herent, in een omgeving die een landelijk karakter koppelt aan een levendig handelscentrum. Door de uitstekende verbindingen met zowel het wegennet als het openbaar vervoer is dit een strategische plek voor groei en visibiliteit.
Hoogtepunten
- Kantoorruimtes/handelruimten beschikbaar vanaf 429 m²;
- Strategische ligging op minder dan 1 km van centrum Herent;
- Uitstekende ontsluiting naar E314, Leuven, Brussel en Mechelen;
- Gelegen op wandelafstand van het vernieuwde treinstation;
- Modern ontwerp met karakter en een sterke ideniteit;
- Gelijkvloerse units met optimale toegankelijkheid;
- Hoge Mobiscore van 8,4/10.
Locatie & Bereikbaarheid
De site is gelegen in een getransformeerd handelscentrum in Herent, grenzend aan de stedelijke periferie van Leuven.
Nabije voorzieningen
Horeca/winkels/stadskern: 0,8 km
- Rechtstreekse aansluiting via een nieuw aan te leggen fiets- en wandelpad naar het station en centrum;
- Auto E314 afrit: 2,8 km (6 min);
- Centrum Leuven: 5 km (15 min);
- Station Herent: 0,8 km (10 min wandelen);
- Bushalte: 250 meter;
- Brussels Airport (BRU): 21 km (18 min);
- Luik Airport (LGG): 65 km (42 min);
- Haven/waterweg: Kanaal Leuven-Dijle;
- Containerterminal: Multimodal Inland Container Terminal Vilvoorde: 18 km.
Het Gebouw
De site Park 51 is ontwikkeld op de locatie van de voormalige Henkelfabriek. Gebouw B kenmerkt zich door een strak en fris design dat inspeelt op de lokale leefgemeenschap en omgeving. Het project biedt een kwalitatieve uitstraling waarbij modern werkcomfort centraal staat in een duurzame context.
Gemeenschappelijke Voorzieningen
- Parking: Ondergrondse en/of bovengrondse plaatsen beschikbaar;
- Fietsenstalling: Aanwezig op de site;
- Beveiliging: Aanwezig.
Kantoor
De kantoorruimtes bevinden zich op het gelijkvloerse niveau, wat zorgt voor een directe interactie met de omgeving en een gemakkelijke toegang. De ruimtes genieten van veel natuurlijk lichtinval door de grote raampartijen en bieden een flexibele indeling voor diverse kantoorconcepten.
Kenmerken
- Sanitair: Voorzien per unit.
Interesse?
Deze nieuwbouwunits op Park 51 bieden een moderne werkomgeving met een uitstekende bereikbaarheid en een sterke architecturale identiteit. Of je nu een representatief hoofdkantoor zoekt of een strategische kmo-basis nabij Leuven, deze locatie faciliteert professionele groei in een levendige omgeving.
Neem contact op met DGI voor een bezichtiging ter plaatse of voor meer informatie.
Energie
Op de kaart

Financieel
| Prijs |
|---|
Berekening kosten
Je aankoopkosten? Die heb je snel berekend via de knop hieronder.