Nieuw
Uw droomwoning op maat in het hart van Sint-Agatha-Rode
Een pand van Polares
Overzicht
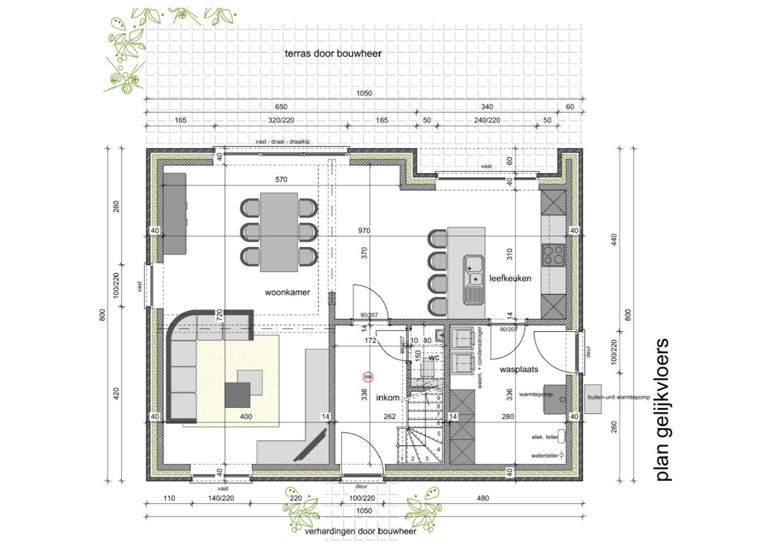
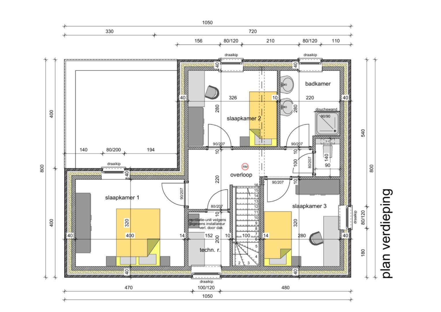
- 170 m² bewoonbaar
- 2363 m² grond
- 3 Slaapkamer(s)
- 1 Badkamer(s)
- 2 Toilet(ten)
- 1 Tuin
Overstromingsgevaar perceel
Beschrijving
Op een riant, vlak perceel van 23 are in het charmante Sint-Agatha-Rode realiseren we uw nieuwbouwwoning volledig volgens uw eigen smaak en wensen. Deze prachtige ligging, zuidwest georiënteerd, biedt een perfecte combinatie van rust, ruimte en zon — de ideale plek om te wonen, te ontspannen en te genieten.
De voorgestelde woning (voorbeeldplan – volledig aanpasbaar) heeft een bewoonbare oppervlakte van circa 170 m² en is voorzien van de nieuwste duurzame technieken:
✅ Warmtepomp ✅ Vloerverwarming ✅ Zonnepanelen ✅ Ventilatiesysteem D+
Elke keuze wat betreft indeling, materialen en afwerking kan in overleg worden bepaald, zodat uw woning volledig aansluit bij uw levensstijl en persoonlijke voorkeur.
Detotale prijs van deze woning bedraagt € 756.315, inclusief 12% registratierechten op de grond en 21% btw op de constructie.
Deze unieke eigendom biedt een uitgelezen kans om uw droomwoning te realiseren op een uitzonderlijke locatie – midden in het groen, met alle comfort en kwaliteit die u mag verwachten.
📞 Meer informatie en plannen beschikbaar op kantoor.
De voorgestelde woning (voorbeeldplan – volledig aanpasbaar) heeft een bewoonbare oppervlakte van circa 170 m² en is voorzien van de nieuwste duurzame technieken:
✅ Warmtepomp ✅ Vloerverwarming ✅ Zonnepanelen ✅ Ventilatiesysteem D+
Elke keuze wat betreft indeling, materialen en afwerking kan in overleg worden bepaald, zodat uw woning volledig aansluit bij uw levensstijl en persoonlijke voorkeur.
Detotale prijs van deze woning bedraagt € 756.315, inclusief 12% registratierechten op de grond en 21% btw op de constructie.
Deze unieke eigendom biedt een uitgelezen kans om uw droomwoning te realiseren op een uitzonderlijke locatie – midden in het groen, met alle comfort en kwaliteit die u mag verwachten.
📞 Meer informatie en plannen beschikbaar op kantoor.
Energie
- Verwarming: Geen
- Beglazing: Onbekend
Op de kaart

Financieel
| Prijs | |
|---|---|
| Kadastraal inkomen (niet geïndexeerd) | € 13 |
Bijkomende info
Gebouw
| Is beschermd | Nee |
|---|---|
| Bewoonbaar (m²) | 170 |
| Badkamers | 1 |
| Slaapkamers | 3 |
| Toiletten | 2 |
Faciliteiten
| Luiken | Nee |
|---|---|
| Primair verwarmingstype | Geen verwarming |
| Brandstof primaire verwarming | Geen |
| Warm water type | Geen verwarming |
Perceel
| Overstromingsgevoelig | Geen |
|---|---|
| P-score | D |
| Voorkeurrecht | Ja |
| Totale oppervlakte (m²) | 2363 |
| Bebouwde oppervlakte (m²) | 96 |
| Oriëntatie tuin | Zuidwest |
Vergunning
| Vergunning | Geen beschikbaar |
|---|---|
| Verkavelingsvergunning | Vergunning beschikbaar |
| Bouwovertreding dagvaardiging | Geen |
| Type gebied | Landelijk |
Uitrusting
| Meerdere eigenaars | Nee |
|---|---|
| Geschikt als kangoeroewoning | Nee |
| Geschikt voor rolstoelgebruikers | Nee |
| Geschikt voor praktijk | Nee |
| Volledig onderkelderd | Nee |
| Parking | Nee |
| Garage | Nee |
| Thuiskantoor | Nee |
| Kelder | Nee |
| Zolder | Nee |
| Opslagruimte | Nee |
| Tuin | Ja |
| Terras | Nee |
| Lift | Nee |
| Rioolaansluiting | Nee |
| Gasaansluiting | Nee |
| Wateraansluiting | Nee |
| Elektriciteitsaansluiting | Nee |
| TV aansluiting | Nee |
| Internetaansluiting | Nee |
| Zonnepanelen | Nee |
| Zonneboiler | Nee |
| Alarm | Nee |
| Zwembad | Nee |
| Jacuzzi | Nee |
| Toonzaal | Nee |
| Ventilatie | Nee |
Een pand van
Polares
Polares - Your way to real estate
Bij Polares zijn we ervan overtuigd dat we u pas goed van dienst kunnen zijn als we u écht kennen, en andersom.
Daarom gaan we voor een doorgedreven persoonlijke aanpak. Geen anonieme maatpakken en gladde praatjes: bij Polares staan transparantie, openheid en vertrouwen centraal.
Bovendien stopt de samenwerking voor ons nooit volledig.
Ook na afsluiting van uw dossier blijven we bereikbaar voor advies en updates – of gewoon voor een fijne babbel.
TK/25231
Leer meer over vastgoed
Nieuw
22 October 2025
Hoeveel kan ik lenen om een huis te kopen?
11 June 2025
Huis kopen met bouwovertreding? Dit moet je weten
11 May 2025
Renoveren? Vraag je Mijn VerbouwPremie aan
22 April 2025