VELDSTRAAT 22A BEGIJNENDIJK
€ 449.500
Een pand van Immo Liv'it
Jouw zoektocht
Overzicht
- 160 m² bewoonbaar
- 400 m² grond
- 3 Slaapkamer(s)
- 1 Badkamer(s)
- 2 Toilet(ten)
- 1 Tuin
- 1 Garage(s)
Beschrijving
Ontdek deze energiezuinige halfopen bebouwing in het project Veldzicht, gelegen op een rustige en groene locatie nabij het centrum van Begijnendijk.
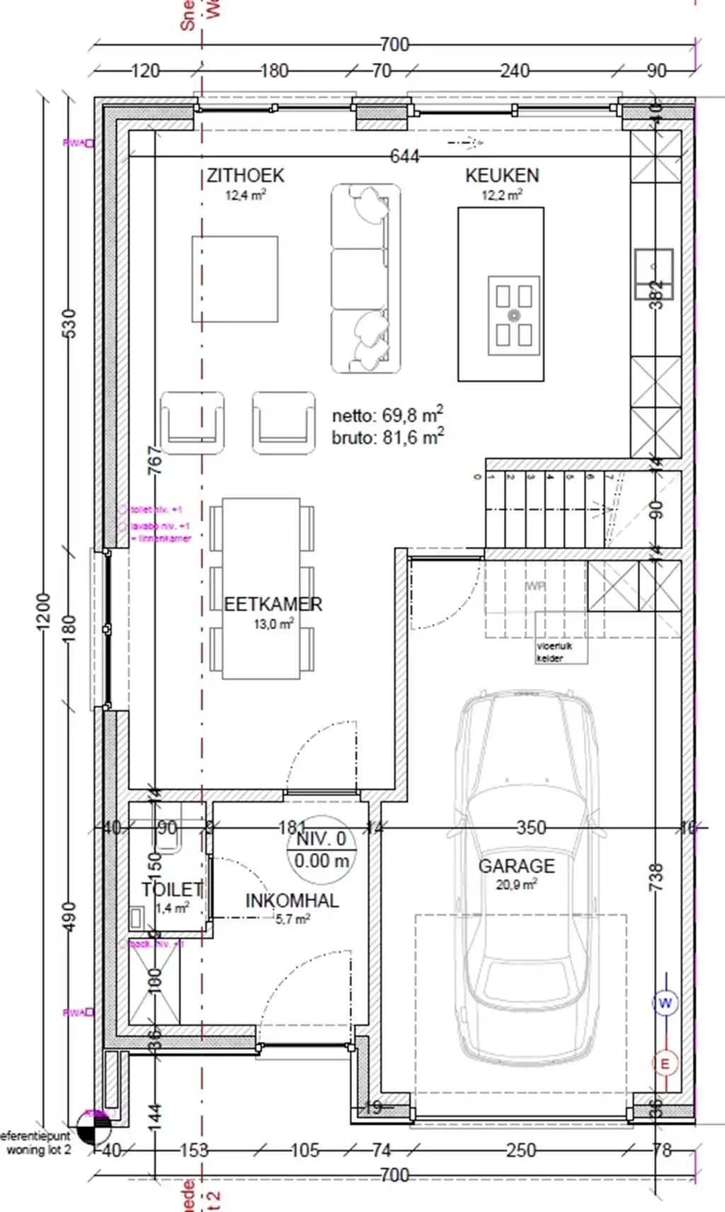
Bij binnenkomst is er een inkomhal met gastentoilet, gevolgd door een praktische garage. De open leefruimte met zithoek, eetkamer en keuken biedt een uitzicht op de tuin met achterliggende groene weide.
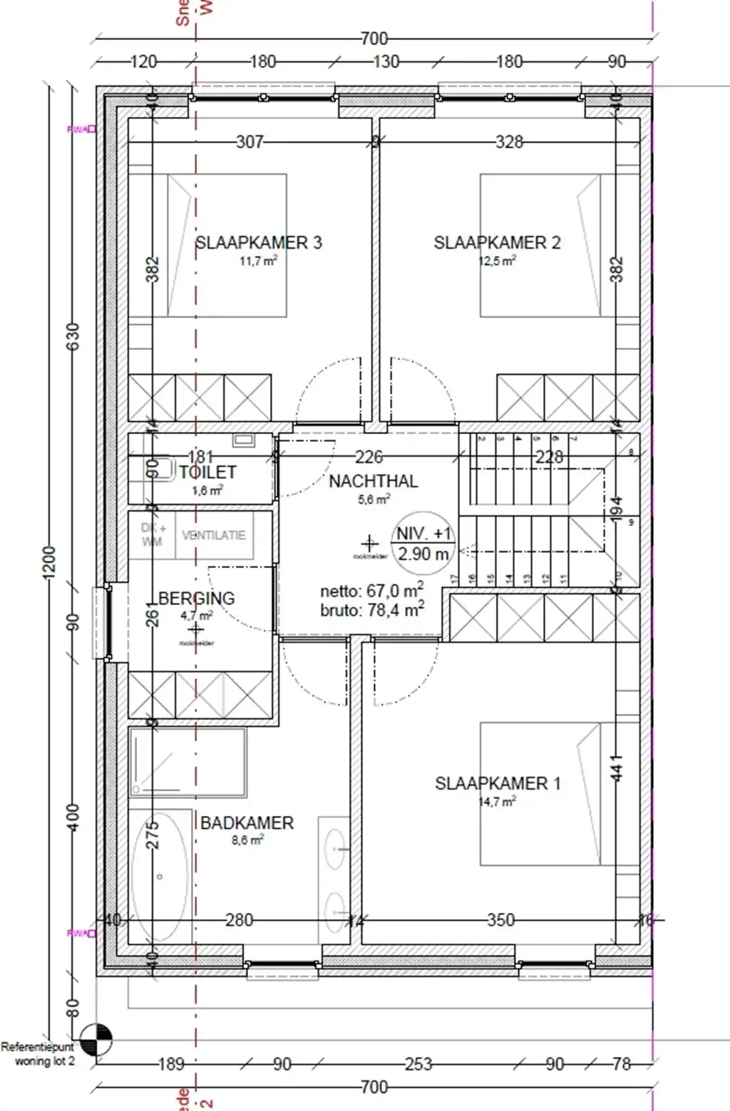
Op de eerste verdieping vind je een nachthal, een apart toilet, drie volwaardige slaapkamers, een handige bergruimte met aansluitingen voor wasmachine en droogkast, en een moderne badkamer met ligbad, douche en dubbele wastafel.
Deze woning is uitgerust met zonnepanelen (4500 Wp), een warmtepomp gekoppeld aan vloerverwarming, ventilatiesysteem type D en regenwaterrecuperatie. Beslis tijdig en pas de woning naar jouw eigen wens aan!
*Project Veldzicht is momenteel in opbouw. Verkoop onder de Wet Breyne (12% registratierechten op de grond, 21% btw op de constructie).
Interesse in deze woning? Contacteer ons op 016 15 31 15 of info@immolivit.be
Energie
- E-peil: E30
- Beglazing: Standaard dubbel
Op de kaart

Financieel
| Prijs | |
|---|---|
| Kadastraal inkomen (niet geïndexeerd) | € 0 |
| Kadastraal inkomen (geïndexeerd) | € 0 |
Bijkomende info
Gebouw
| Bouwjaar | 2026 |
|---|---|
| Staat | Nieuw |
| Bouwcertificaat | Nee |
| Bewoonbaar (m²) | 160 |
| Verdieping | 0 |
| Gevelbreedte | 7 |
| Badkamers | 1 |
| Slaapkamers | 3 |
| Verdiepingen | 2 |
| Garages | 1 |
| Parkeerplaatsen | 0 |
| Doucheruimtes | 0 |
| Toiletten | 2 |
Faciliteiten
| Keuken uitrusting | Luxueus uitgerust |
|---|---|
| Materiaal ramenomlijstingen | PVC |
| Beglazing | Standaard dubbel |
| Elektrisch keuringsattest | Ja |
Perceel
| Diepte (m) | 40 |
|---|---|
| Breedte (m) | 10 |
| Overstromingsgevoelig | Geen |
| P-score | A |
| G-score | A |
| Voorkeurrecht | Nee |
| Totale oppervlakte (m²) | 400 |
| Bebouwde oppervlakte (m²) | 81 |
| Tuin oppervlakte (m²) | 0 |
| Oppervlakte terras (m²) | 0 |
| Oriëntatie tuin | Noordwest |
Vergunning
| Vergunning | Vergunning beschikbaar |
|---|---|
| Verkavelingsvergunning | Vergunning beschikbaar |
Uitrusting
| Investeringspand | Nee |
|---|---|
| Geschikt voor praktijk | Nee |
| Parking | Nee |
| Garage | Ja |
| Thuiskantoor | Nee |
| Kelder | Nee |
| Zolder | Nee |
| Tuin | Ja |
| Terras | Ja |
| Lift | Nee |
| Rioolaansluiting | Nee |
| Gasaansluiting | Nee |
| Wateraansluiting | Nee |
| Elektriciteitsaansluiting | Nee |
| TV aansluiting | Nee |
| Internetaansluiting | Nee |
| Telefoonaansluiting | Nee |