VELDSTRAAT 22B BEGIJNENDIJK
€ 458.500
Een pand van Immo Liv'it
Jouw zoektocht
Overzicht
- 168 m² bewoonbaar
- 400 m² grond
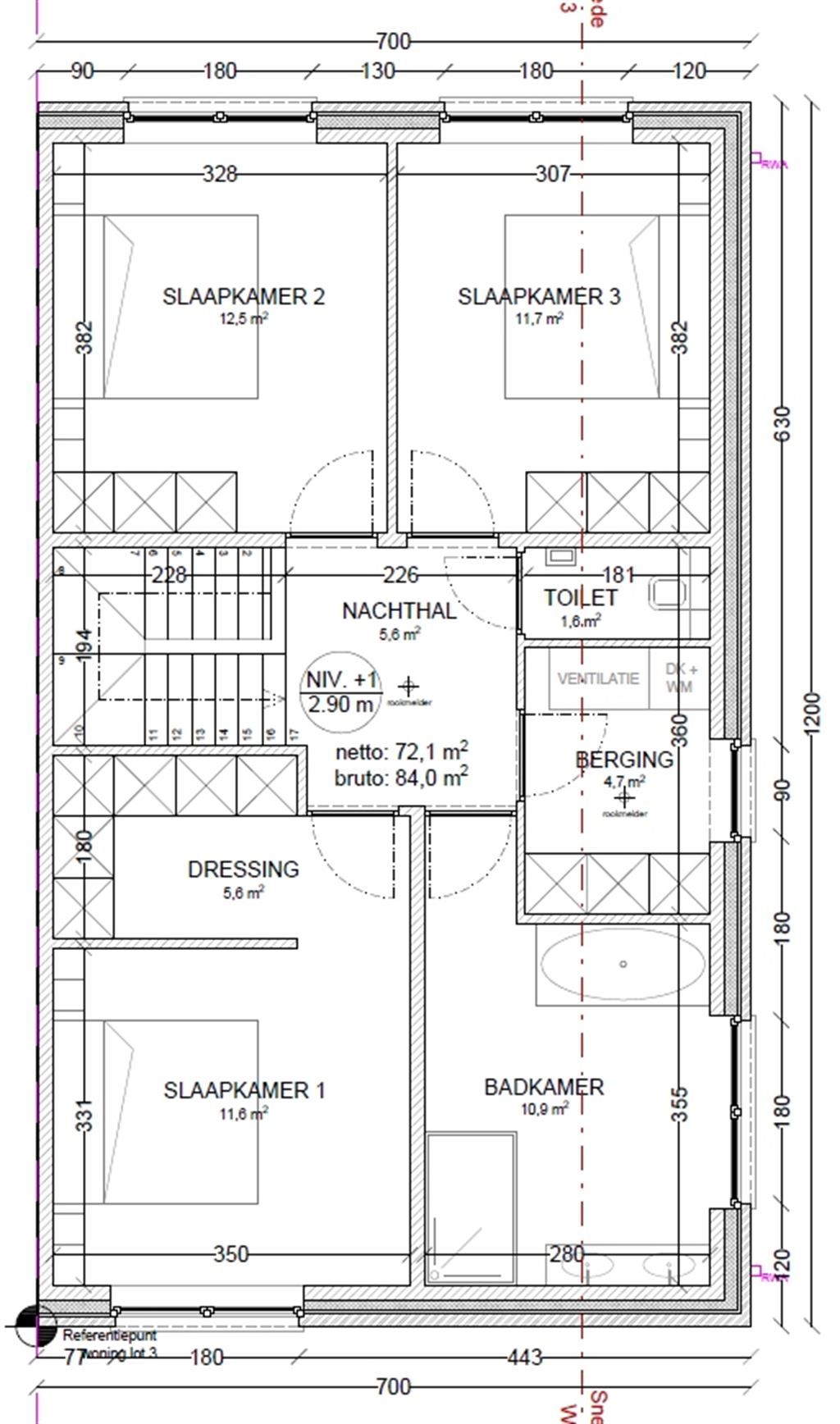
- 3 Slaapkamer(s)
- 1 Badkamer(s)
- 2 Toilet(ten)
- 1 Tuin
- 1 Garage(s)
Beschrijving
Energiezuinige woning vlakbij het centrum van Begijnendijk!
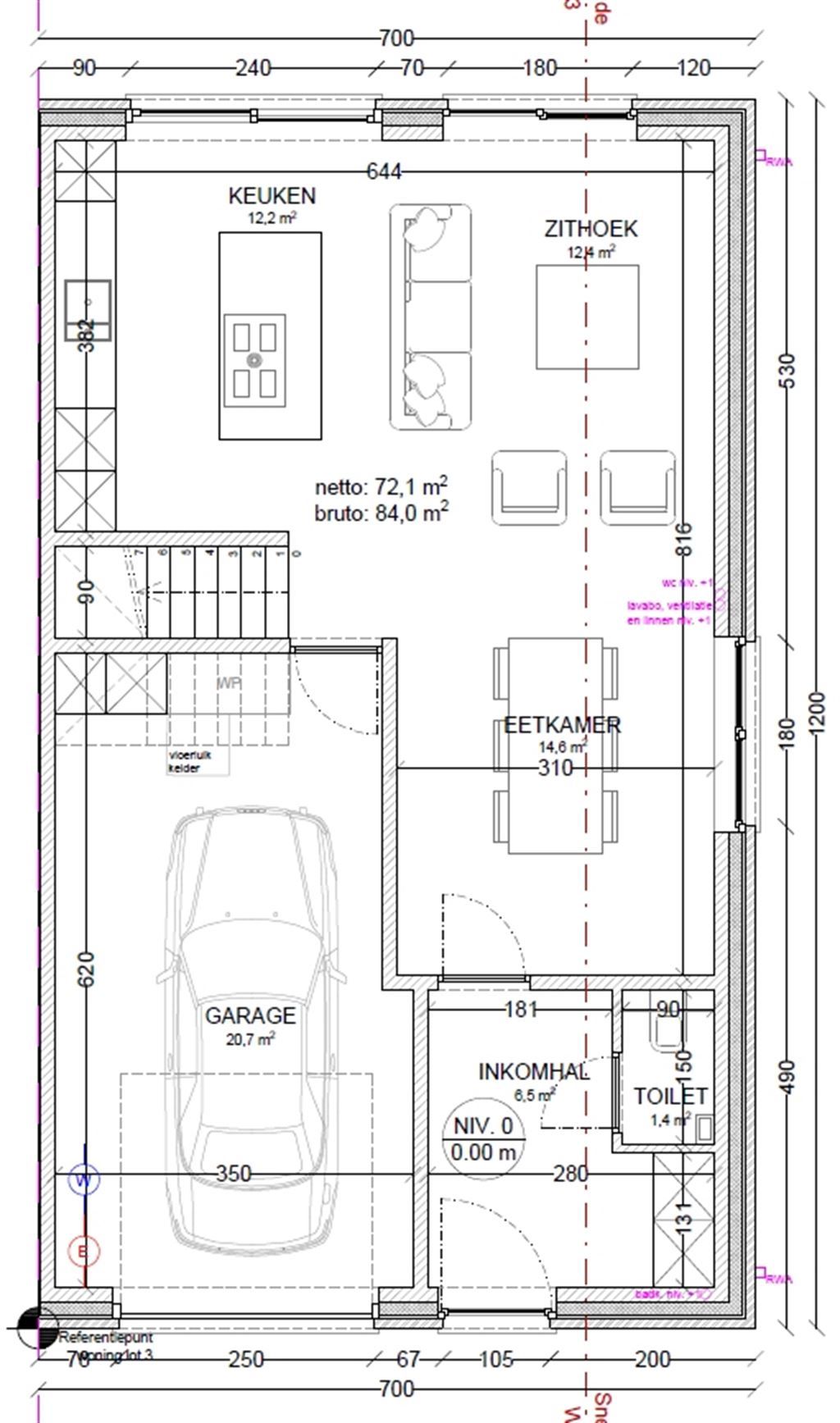
Op het gelijkvloers geniet je van een inkomhal met gastentoilet, een garage en een open leefruimte met zithoek, eetkamer en keuken. Grote ramen zorgen voor een overvloed aan natuurlijk licht en een prachtig uitzicht op het groen.
De eerste verdieping biedt een nachthal, apart toilet, drie ruime slaapkamers, een bergruimte met voorziening wasmachine en droogkast en een badkamer met ligbad, douche en dubbele wastafel. De hoofdslaapkamer beschikt bovendien over een ingebouwde dressing, ideaal voor extra comfort.
Net zoals de andere woningen is deze voorzien van zonnepanelen (4500 Wp), warmtepomp met vloerverwarming, ventilatiesysteem en regenwaterrecuperatie. Beslis tijdig en pas de woning naar jouw eigen wens aan!
*Project Veldzicht is momenteel in opbouw. Verkoop onder de Wet Breyne (12% registratierechten op de grond, 21% btw op de constructie).
Interesse in deze woning? Contacteer ons op 016 15 31 15 of info@immolivit.be
Energie
- E-peil: E30
- Beglazing: Standaard dubbel
Op de kaart

Financieel
| Prijs | |
|---|---|
| Kadastraal inkomen (niet geïndexeerd) | € 0 |
| Kadastraal inkomen (geïndexeerd) | € 0 |
Bijkomende info
Gebouw
| Bouwjaar | 2026 |
|---|---|
| Staat | Nieuw |
| Bouwcertificaat | Nee |
| Bewoonbaar (m²) | 168 |
| Verdieping | 0 |
| Gevelbreedte | 7 |
| Badkamers | 1 |
| Slaapkamers | 3 |
| Verdiepingen | 2 |
| Garages | 1 |
| Parkeerplaatsen | 0 |
| Doucheruimtes | 0 |
| Toiletten | 2 |
Faciliteiten
| Keuken uitrusting | Luxueus uitgerust |
|---|---|
| Materiaal ramenomlijstingen | PVC |
| Beglazing | Standaard dubbel |
| Elektrisch keuringsattest | Ja |
Perceel
| Diepte (m) | 40 |
|---|---|
| Breedte (m) | 10 |
| Overstromingsgevoelig | Geen |
| P-score | A |
| G-score | A |
| Voorkeurrecht | Nee |
| Totale oppervlakte (m²) | 400 |
| Bebouwde oppervlakte (m²) | 84 |
| Tuin oppervlakte (m²) | 0 |
| Oppervlakte terras (m²) | 0 |
| Oriëntatie tuin | Noordwest |
Vergunning
| Vergunning | Vergunning beschikbaar |
|---|---|
| Verkavelingsvergunning | Vergunning beschikbaar |
Uitrusting
| Investeringspand | Nee |
|---|---|
| Geschikt voor praktijk | Nee |
| Parking | Nee |
| Garage | Ja |
| Thuiskantoor | Nee |
| Kelder | Nee |
| Zolder | Nee |
| Tuin | Ja |
| Terras | Ja |
| Lift | Nee |
| Rioolaansluiting | Nee |
| Gasaansluiting | Nee |
| Wateraansluiting | Nee |
| Elektriciteitsaansluiting | Nee |
| TV aansluiting | Nee |
| Internetaansluiting | Nee |
| Telefoonaansluiting | Nee |