Nieuw Virtual tour
Verrassend ruime en energiezuinige halfopen bebouwing met polyvalente mogelijkheden in Bekkevoort
€ 448.000
Een pand van Immo Persyn
Overzicht
- 221 m² bewoonbaar
- 615 m² grond
- 3 Slaapkamer(s)
- 1 Badkamer(s)
- 2 Toilet(ten)
- 1 Garage(s)
Beschrijving
Ben je op zoek naar een woning die authentieke charme moeiteloos combineert met hedendaags wooncomfort en een uitmuntende energiezuinigheid?
Dan heten we je van harte welkom in deze karaktervolle halfopen bebouwing in het groene Bekkevoort. Oorspronkelijk gebouwd in 1932 , maar grondig gerenoveerd in 2012, biedt dit pand een unieke mix van sfeer en moderne technieken. Met een indrukwekkend EPC-label B (122 kWh/m²) , maar liefst 22 zonnepanelen (7.500 Wp) en een thuisbatterij van 10 kVA, ben je hier volledig klaar voor de toekomst en geniet je van een uiterst lage energierekening.
Wat deze woning écht uniek maakt, is de multifunctionele ruimte op het gelijkvloers. Waar voorheen een kinderdagverblijf werd uitgebaat, heb je nu een zee aan mogelijkheden. Droom je van een eigen plek voor je zelfstandig bijberoep, een kantoor aan huis of praktijkruimte? Of wens je deze oppervlakte liever om te toveren tot extra riante leefruimte of speelkamer?
De keuze is volledig aan jou.
De woning zelf ademt een warme sfeer uit, mede dankzij de zichtbare houten gewelven en robuuste bakstenen accentmuren die zorgen voor een gezellig loft-gevoel.
Buiten is het heerlijk vertoeven in de onderhoudsvriendelijke tuin, compleet met een uitnodigend zwembad en een gezellige loungehoek waar je in alle rust van de zomeravonden kunt genieten.
Parkeerstress is hier verleden tijd: met twee garages en een ruime oprit met plaats voor wel vijf wagens, is er altijd plek voor jezelf en je gasten.
Indeling:
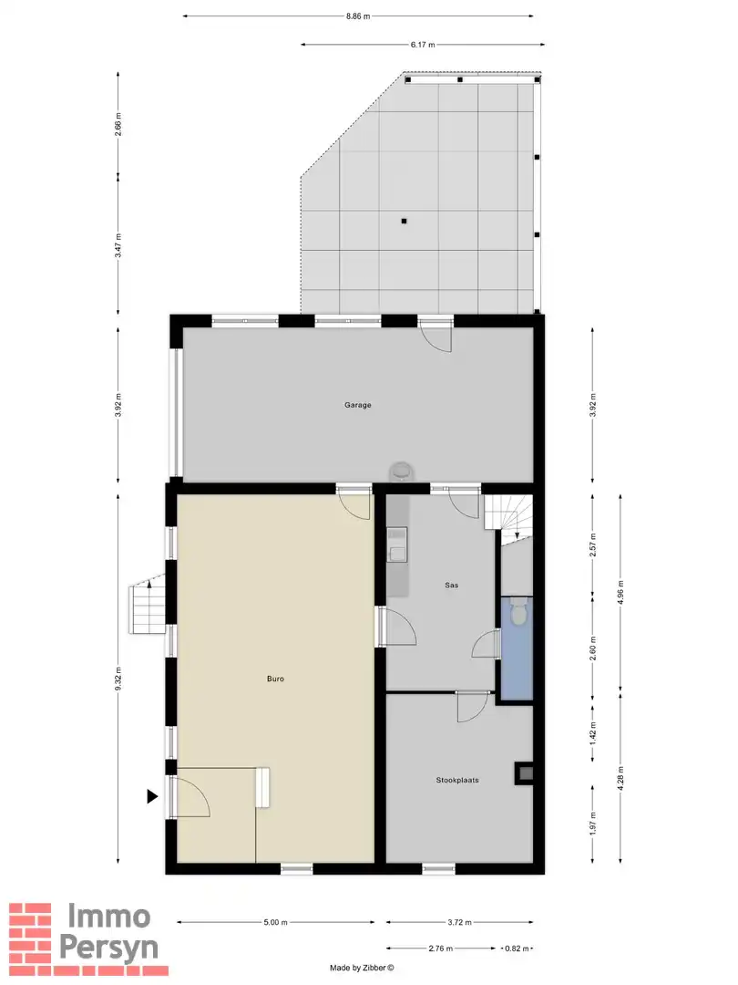
Gelijkvloers: Ruime inkomhal met mogelijkheden voor handel of vrij beroep (polyvalente ruimte) , keuken, toilet met doucheruimte, technische ruimte met CV-ketel en omvormers , grote werkplaats/bergruimte en inpandige garage.
Eerste verdiep: Lichtrijke leefruimte , keuken , directe toegang tot het terras , badkamer , apart toilet en een praktische berging.
Tweede verdiep: Nachthal met toegang tot 3 slaapkamers en een toilet. Er is mogelijkheid om dit uit te breiden naar 4 of 5 kamers.
Tuin: zwembad en lounge , ruime oprit.
Ervaar zelf de vele voordelen van deze woning tijdens een persoonlijke rondleiding.
Maak vandaag nog je afspraak.
Mail naar info@immopersyn.be of bel 013 444 008.
Dan heten we je van harte welkom in deze karaktervolle halfopen bebouwing in het groene Bekkevoort. Oorspronkelijk gebouwd in 1932 , maar grondig gerenoveerd in 2012, biedt dit pand een unieke mix van sfeer en moderne technieken. Met een indrukwekkend EPC-label B (122 kWh/m²) , maar liefst 22 zonnepanelen (7.500 Wp) en een thuisbatterij van 10 kVA, ben je hier volledig klaar voor de toekomst en geniet je van een uiterst lage energierekening.
Wat deze woning écht uniek maakt, is de multifunctionele ruimte op het gelijkvloers. Waar voorheen een kinderdagverblijf werd uitgebaat, heb je nu een zee aan mogelijkheden. Droom je van een eigen plek voor je zelfstandig bijberoep, een kantoor aan huis of praktijkruimte? Of wens je deze oppervlakte liever om te toveren tot extra riante leefruimte of speelkamer?
De keuze is volledig aan jou.
De woning zelf ademt een warme sfeer uit, mede dankzij de zichtbare houten gewelven en robuuste bakstenen accentmuren die zorgen voor een gezellig loft-gevoel.
Buiten is het heerlijk vertoeven in de onderhoudsvriendelijke tuin, compleet met een uitnodigend zwembad en een gezellige loungehoek waar je in alle rust van de zomeravonden kunt genieten.
Parkeerstress is hier verleden tijd: met twee garages en een ruime oprit met plaats voor wel vijf wagens, is er altijd plek voor jezelf en je gasten.
Indeling:
Gelijkvloers: Ruime inkomhal met mogelijkheden voor handel of vrij beroep (polyvalente ruimte) , keuken, toilet met doucheruimte, technische ruimte met CV-ketel en omvormers , grote werkplaats/bergruimte en inpandige garage.
Eerste verdiep: Lichtrijke leefruimte , keuken , directe toegang tot het terras , badkamer , apart toilet en een praktische berging.
Tweede verdiep: Nachthal met toegang tot 3 slaapkamers en een toilet. Er is mogelijkheid om dit uit te breiden naar 4 of 5 kamers.
Tuin: zwembad en lounge , ruime oprit.
Ervaar zelf de vele voordelen van deze woning tijdens een persoonlijke rondleiding.
Maak vandaag nog je afspraak.
Mail naar info@immopersyn.be of bel 013 444 008.
Energie
![]() |
- EPC Certificaat: 20260129-0003774104-RES-1
- Energieverbruik: 115 kWh/m²/jaar
- E-peil: E0
- Verwarming: Gas
- Beglazing: Onbekend
Op de kaart

Financieel
| Prijs | |
|---|---|
| Kadastraal inkomen (niet geïndexeerd) | € 1.314 |
Berekening kosten
Je aankoopkosten? Die heb je snel berekent via de knop hieronder.
Bijkomende info
Gebouw
| Bouwjaar | 1932 |
|---|---|
| Renovatie jaar | 2012 |
| Bewoonbaar (m²) | 221 |
| Gevelbreedte | 9 |
| Badkamers | 1 |
| Slaapkamers | 3 |
| Verdiepingen | 2 |
| Garages | 1 |
| Parkeerplaatsen | 0 |
| Toiletten | 2 |
Faciliteiten
| Brandstof primaire verwarming | Gas |
|---|---|
| Septische tank | Nee |
Perceel
| Diepte (m) | 55 |
|---|---|
| Breedte (m) | 25 |
| Overstromingsgevoelig | Geen |
| P-score | A |
| G-score | A |
| Totale oppervlakte (m²) | 615 |
| Bebouwde oppervlakte (m²) | 0 |
| Oppervlakte terras (m²) | 0 |
| Oriëntatie tuin | ZuidOost |
Vergunning
| Verkavelingsvergunning | Geen beschikbaar |
|---|
Uitrusting
| Investeringspand | Nee |
|---|---|
| Parking | Nee |
| Garage | Ja |
| Opslagruimte | Ja |
| Terras | Ja |
| Lift | Nee |
| Rioolaansluiting | Nee |
| Gasaansluiting | Ja |
| Wateraansluiting | Ja |
| Elektriciteitsaansluiting | Ja |
| Internetaansluiting | Nee |
| Telefoonaansluiting | Nee |
| Zonnepanelen | Nee |
| Zonneboiler | Nee |
| Alarm | Nee |
| Videofoon | Nee |
| Grondwaterput | Nee |
Een pand van
Immo Persyn
Wij staan voor u klaar om u te begeleiden in de zoektocht naar uw thuis
U, als klant, staat bij ons centraal.
Wij maken graag tijd voor u.
Wij stellen onze expertise ten dienste van u.
Wij gaan niet voor kwantiteit, maar voor kwaliteit.
Daarom dat wij ook ’s avonds en op zaterdag beschikbaar zijn voor u.
BEKDEN11D
Leer meer over vastgoed
24 November 2025
Uitgezocht voor jouw gemeente: Hoeveel stijgt de waarde van je woning door een renovatie?
22 October 2025
Hoeveel kan ik lenen om een huis te kopen?
11 June 2025
Huis kopen met bouwovertreding? Dit moet je weten
11 May 2025
