Moderne nieuwbouwwoning te Bekkevoort
€ 521.000
Een pand van Immo Diest
Overzicht
- 178 m² bewoonbaar
- 1035 m² grond
- 3 Slaapkamer(s)
- 1 Badkamer(s)
- 2 Toilet(ten)
Overstromingsgevaar gebouw
Overstromingsgevaar perceel
Beschrijving
**KIJKDAG**
Op zaterdag 18 en zondag 19 oktober.
Telkens van 13u-15u.
Wees zeker van een plekje en reserveer je tijdslot: Bel Immo Diest: 013 31 25 22.
Het project LA VUE ( Struikstraat 77A, 77B, 77C en 77 D ) omvat 4 duurzame halfopen bebouwingen.
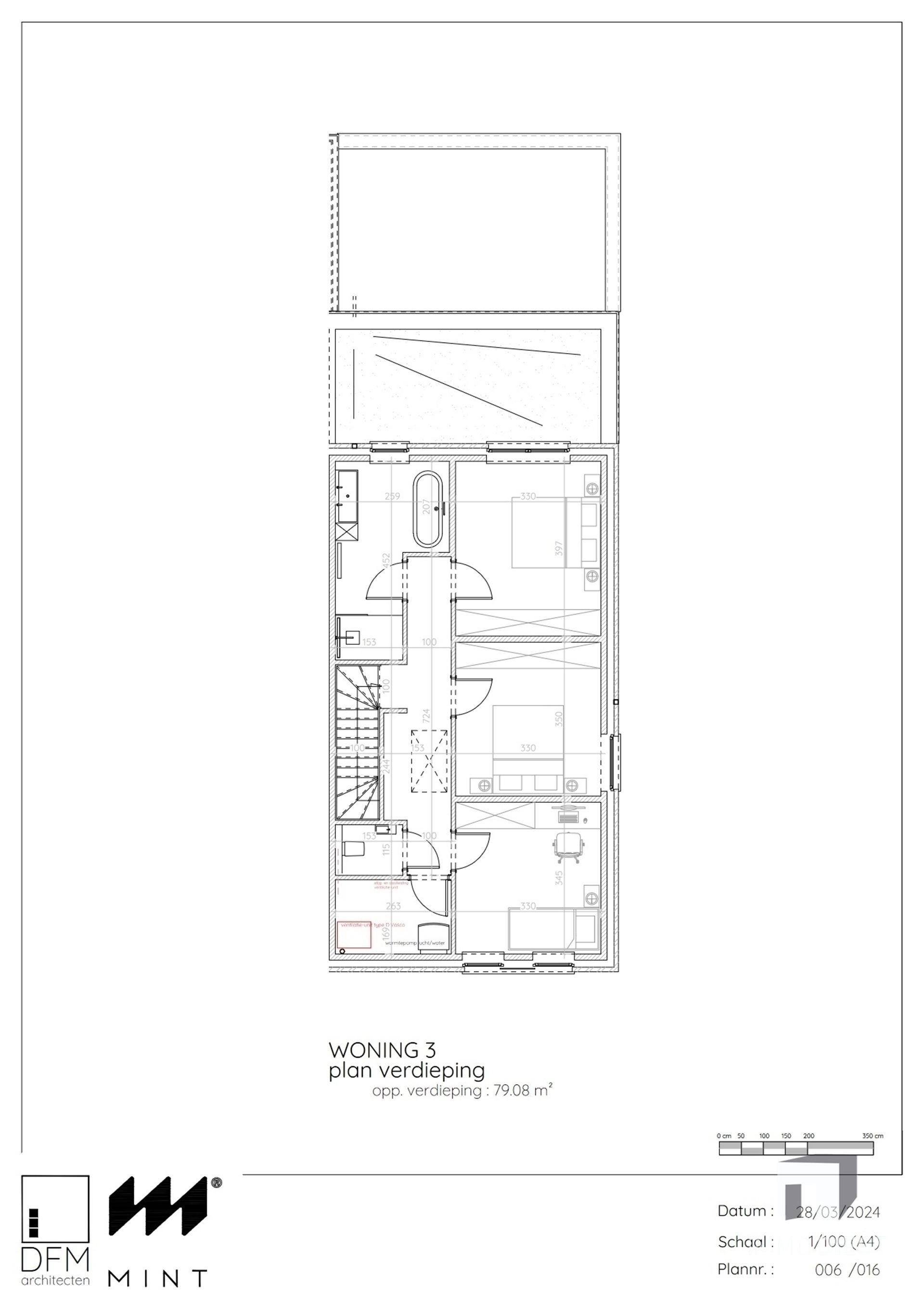
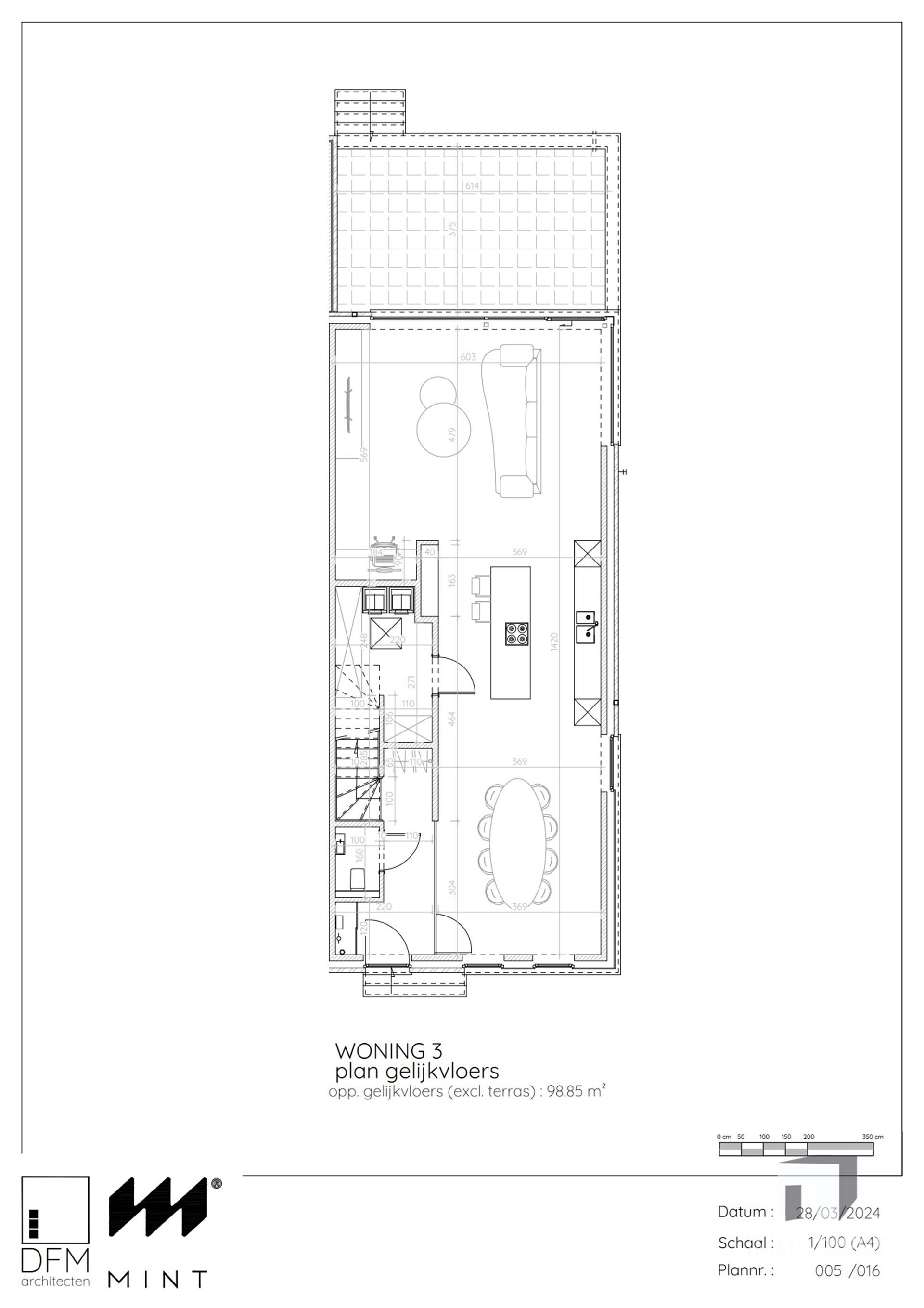
Woning Struikstraat 77C heeft 180 m² woon- en leefruimte en omvat:
- kruipkelder;
- gelijkvloers: inkomhall, wc, eetruimte, centrale keuken, leefruimte met bureel, ruime berging, superterras van 25 m²;
- op de verdieping zijn er drie slaapkamers, nachthall en een ruime badkamer en technische berging;
Dit alles op een prachtig perceel grond van 1035 m² met een fraai zicht op een Hagelandse helling.
Kwaliteiten
- lichtrijk;
- grote leefruimte;
- uniek zuidgericht terras;
- label A;
- duurzaam: zonnepanelen met warmtepomp voor verwarming en warm water;
- vlakbij Bekkevoort en Diest;
- op 5 minuten van de autostrade Genk-Leuven-Brussel-Antwerpen
- aan de voet van het mooie Hageland, de verborgen parel van Vlaanderen, aar heuvels fluisteren en wijnranken zingen.
U kan nog een aantal keuzes maken in de afwerking ( keuken, sanitaire toestellen, vloeren en faiences en binnendeuren ).
Deze woning is klaar voor de toekomst.
LA VUE is een project van Mint Projects.
Verkoop door Immodiest, samen thuis in vastgoed.
De koper staat centraal.
U mag mij persoonlijk bellen op 0498 52 64 52 of mailen naar jan@immodiest.be
Steeds bereikbaar en tot uw dienst.
Energie
![]() |
- E-peil: E20
- Beglazing: Standaard dubbel
Op de kaart

Financieel
Prijs | |
---|---|
Kadastraal inkomen (niet geïndexeerd) | € 0 |
Kadastraal inkomen (geïndexeerd) | € 0 |
Berekening kosten
Je aankoopkosten? Die heb je snel berekent via de knop hieronder.
Bijkomende info
Gebouw
Bouwjaar | 2025 |
---|---|
Staat | Nieuw |
Bouwcertificaat | Nee |
Bewoonbaar (m²) | 178 |
Verdieping | 0 |
Badkamers | 1 |
Slaapkamers | 3 |
Verdiepingen | 0 |
Garages | 0 |
Parkeerplaatsen | 0 |
Doucheruimtes | 0 |
Toiletten | 2 |
Faciliteiten
Keuken uitrusting | Luxueus uitgerust |
---|---|
Materiaal ramenomlijstingen | Aluminium |
Beglazing | Standaard dubbel |
Elektrisch keuringsattest | Ja |
Perceel
Overstromingsgevoelig | Geen |
---|---|
P-score | D |
G-score | D |
Voorkeurrecht | Nee |
Totale oppervlakte (m²) | 1035 |
Bebouwde oppervlakte (m²) | 0 |
Tuin oppervlakte (m²) | 0 |
Oppervlakte terras (m²) | 25 |
Oriëntatie tuin | Zuid |
Vergunning
Vergunning | Vergunning beschikbaar |
---|
Uitrusting
Investeringspand | Nee |
---|---|
Geschikt voor praktijk | Nee |
Parking | Nee |
Garage | Nee |
Thuiskantoor | Nee |
Kelder | Nee |
Zolder | Nee |
Tuin | Nee |
Terras | Ja |
Lift | Nee |
Rioolaansluiting | Nee |
Gasaansluiting | Nee |
Wateraansluiting | Nee |
Elektriciteitsaansluiting | Nee |
TV aansluiting | Nee |
Internetaansluiting | Nee |
Telefoonaansluiting | Nee |