Villabouwgrond
€ 199.000
Een pand van CDS IMMO
Overzicht
- 1258 m² grond
- 1 Tuin
Beschrijving
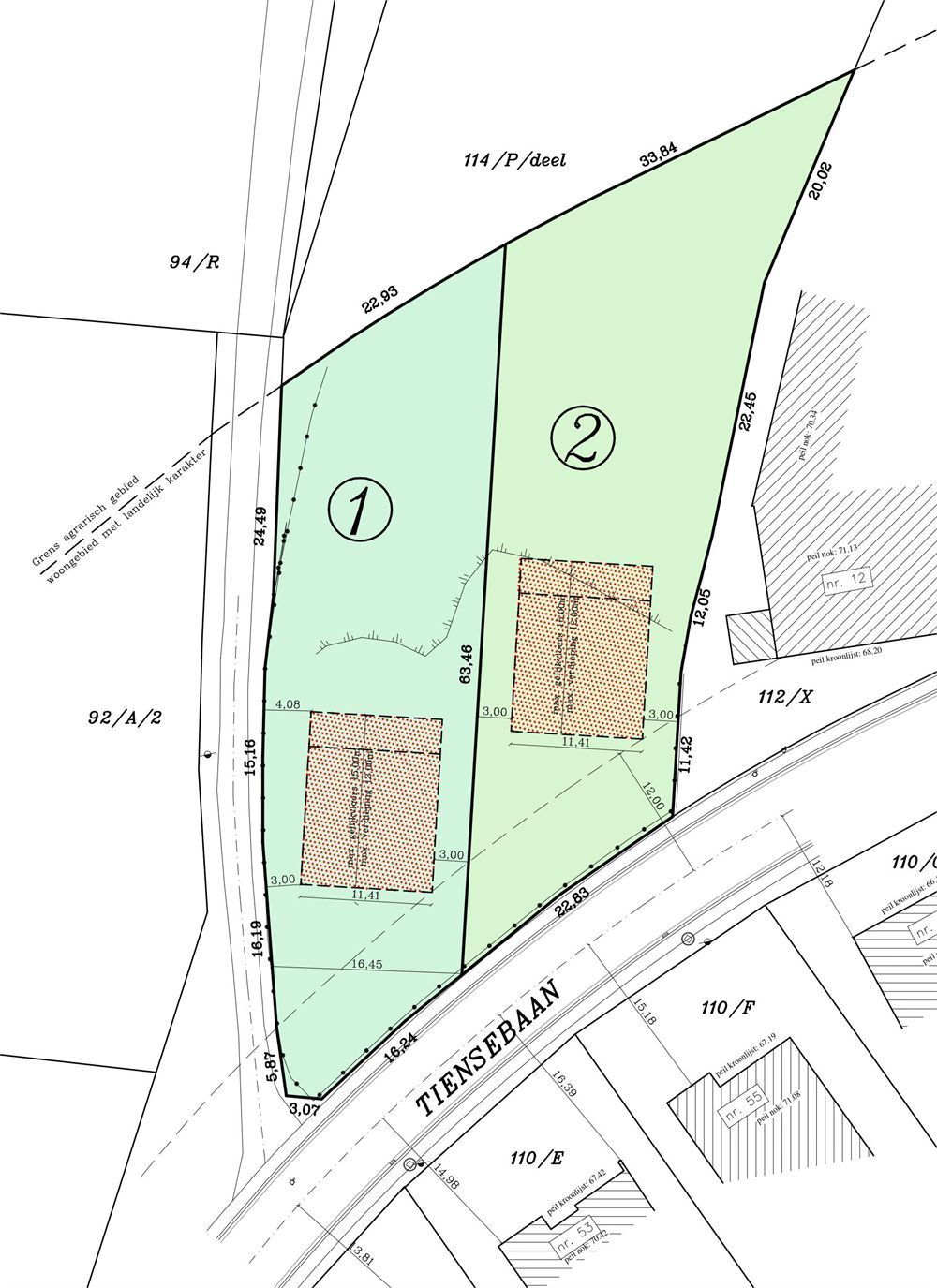
LAATSTE PERCEEL !! Zeer landelijk gelegen VILLABOUWGROND (lot 2) met een oppervlakte van 12,58 are en een wijds vergezicht op de weilanden en akkers. Met een straatbreedte van 22,83m en een zuidoost georiênteerde tuin, is deze bouwgrond een opportuniteit. Er is geen bouwverplichting! De maximale bewoonbare oppervlakte voor een nieuwbouw woning bedraagt 308m² (+ ev. zolder en kelder), de maximale bebouwde grondoppervlakte van een nieuwbouw woning is 171,15 m².
Bouwvoorschriften : de woning moet ingeplant worden op 12m uit de as van de weg en op min. 3m van de zijdelingse perceelsgrenzen, de dakvorm is vrij van keuze. Complementaire bedrijvigheid is eveneens toegestaan tot max 100m². Plan in pdf vindt u op www.cdsimmo.be onder 'downloads'. VP 199.000 EUR. Voor meer informatie bel op 016/620105 of mail naar info@cdsimmo.be.
Wenst u ook uw woning, appartement of bouwgrond snel en aan een marktconforme prijs te verkopen, neem dan zeker even contact op voor een GRATIS SCHATTING ! Bel Anouck voor een vrijblijvende afspraak op 0497/58.11.18.
Bouwvoorschriften : de woning moet ingeplant worden op 12m uit de as van de weg en op min. 3m van de zijdelingse perceelsgrenzen, de dakvorm is vrij van keuze. Complementaire bedrijvigheid is eveneens toegestaan tot max 100m². Plan in pdf vindt u op www.cdsimmo.be onder 'downloads'. VP 199.000 EUR. Voor meer informatie bel op 016/620105 of mail naar info@cdsimmo.be.
Wenst u ook uw woning, appartement of bouwgrond snel en aan een marktconforme prijs te verkopen, neem dan zeker even contact op voor een GRATIS SCHATTING ! Bel Anouck voor een vrijblijvende afspraak op 0497/58.11.18.
Energie
- E-peil: E0
- Beglazing: Onbekend
Op de kaart

Financieel
| Prijs |
|---|
Berekening kosten
Je aankoopkosten? Die heb je snel berekent via de knop hieronder.
Bijkomende info
Perceel
| Overstromingsgevoelig | Geen |
|---|---|
| P-score | A |
| Totale oppervlakte (m²) | 1258 |
| Oriëntatie tuin | ZuidOost |
Vergunning
| Verkavelingsvergunning | Vergunning beschikbaar |
|---|
Uitrusting
| Investeringspand | Nee |
|---|---|
| Rioolaansluiting | Nee |
| Gasaansluiting | Ja |
| Wateraansluiting | Ja |
| Elektriciteitsaansluiting | Ja |
| Internetaansluiting | Nee |
| Telefoonaansluiting | Nee |
Een pand van
CDS IMMO
CDS IMMO - Dat is pas thuiskomen!
Jarne De Schaepmeester groeide op in de wereld van vastgoed en stapte in 2015 vol enthousiasme in het familiebedrijf CDS IMMO, opgericht in 1991 door zijn ouders, Christophe De Schaepmeester en Nadine Schrevens. Met hun jarenlange ervaring aan zijn zijde brengt Jarne een frisse, moderne aanpak in de sector. Ook zijn zus Anouck maakt deel uit van het team en draagt bij aan de persoonlijke service waar CDS IMMO om bekendstaat.
Of u nu wilt kopen, verkopen, huren of verhuren, bij CDS IMMO bent u in goede handen. We begeleiden u met expertise, eerlijkheid en een warme, persoonlijke aanpak.
VK025003/24043
Leer meer over vastgoed
Nieuw
24 November 2025
Uitgezocht voor jouw gemeente: Hoeveel stijgt de waarde van je woning door een renovatie?
22 October 2025
Hoeveel kan ik lenen om een huis te kopen?
11 June 2025
Huis kopen met bouwovertreding? Dit moet je weten
11 May 2025