Nieuw
Instapklaar 1-slaapkamerappartement nabij centrum.
€ 189.000
Een pand van Vestio
Favoriet
Jouw zoektocht
Jouw scoretabel voor dit pand
Aan het laden...
Jouw geplande bezichtigingen
Aan het laden...
Overzicht
- 64 m² bewoonbaar
- 1 Slaapkamer(s)
- 1 Badkamer(s)
- 1 Toilet(ten)
Overstromingsgevaar gebouw
Overstromingsgevaar perceel
Beschrijving
Dit instapklaar appartement is gelegen op de eerste verdieping van een kleinschalig gebouw uit 1999 en heeft een bewoonbare oppervlakte van ca. 64 m² (volgens EPC). Het gebouw beschikt over een lift en de keuken werd recentelijk vernieuwd, wat zorgt voor extra comfort en een moderne uitstraling.
De ligging is bijzonder gunstig, centraal tussen de kleine en de grote Ring aan de Havenstraat 10. Dankzij de aanwezigheid van lokale handelaars en supermarkten in de directe omgeving bevinden alle dagelijkse voorzieningen zich op wandelafstand. Ook het centrum bereik je in slechts enkele minuten.
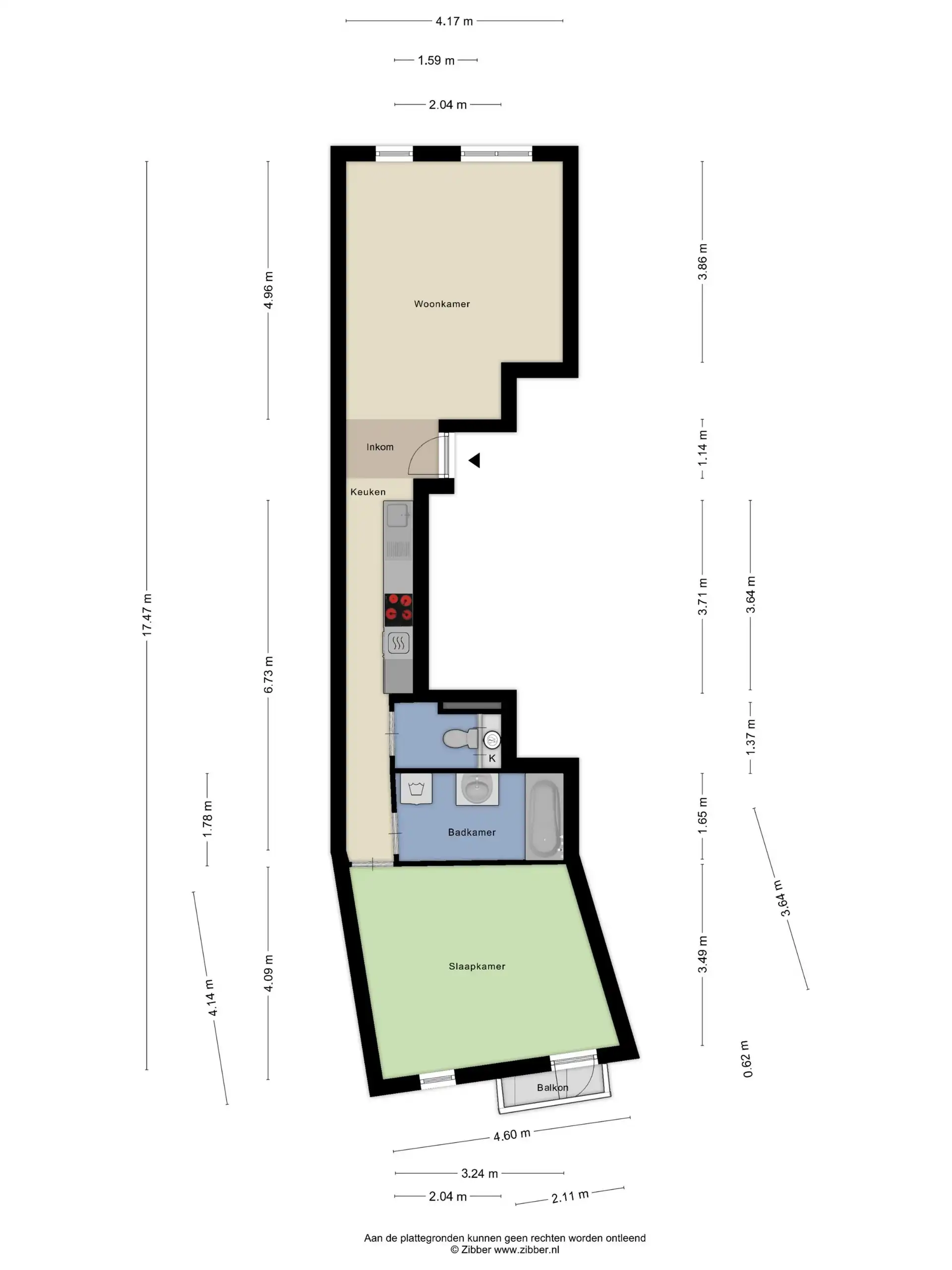
Via de trap of lift bereik je het appartement. De leefruimte is een rechthoekige ruimte met een aangename lichtinval en voldoende plaats voor een zit- en eethoek. De moderne keuken is volledig geïnstalleerd en uitgerust met een inductiekookplaat, koelkast, dampkap, spoelbak, microgolfoven en oven.
De slaapkamer bevindt zich aan de achterzijde van het appartement, wat zorgt voor extra rust, en beschikt over een mooie oppervlakte. De badkamer is ingericht met een ligbad, wastafel en aansluiting voor een wasmachine. Daarnaast is er een apart toilet aanwezig.
De verwarming gebeurt via accumulatiekachels en het warme water wordt voorzien door een elektrische privatieve boiler.
De maandelijkse kosten bedragen € 100,20.
Enkele PLUSPUNTEN nog eens op een rijtje:
+ Instapklaar
+ Lift
+ Op slechts enkele min. van het centrum
+ Perfect instap- of investeringsappartement
Maak snel een afspraak via stephanie@vestio.com of bel naar 0474-73 64 84 en kom dit gezellig appartement samen ontdekken!
De ligging is bijzonder gunstig, centraal tussen de kleine en de grote Ring aan de Havenstraat 10. Dankzij de aanwezigheid van lokale handelaars en supermarkten in de directe omgeving bevinden alle dagelijkse voorzieningen zich op wandelafstand. Ook het centrum bereik je in slechts enkele minuten.
Via de trap of lift bereik je het appartement. De leefruimte is een rechthoekige ruimte met een aangename lichtinval en voldoende plaats voor een zit- en eethoek. De moderne keuken is volledig geïnstalleerd en uitgerust met een inductiekookplaat, koelkast, dampkap, spoelbak, microgolfoven en oven.
De slaapkamer bevindt zich aan de achterzijde van het appartement, wat zorgt voor extra rust, en beschikt over een mooie oppervlakte. De badkamer is ingericht met een ligbad, wastafel en aansluiting voor een wasmachine. Daarnaast is er een apart toilet aanwezig.
De verwarming gebeurt via accumulatiekachels en het warme water wordt voorzien door een elektrische privatieve boiler.
De maandelijkse kosten bedragen € 100,20.
Enkele PLUSPUNTEN nog eens op een rijtje:
+ Instapklaar
+ Lift
+ Op slechts enkele min. van het centrum
+ Perfect instap- of investeringsappartement
Maak snel een afspraak via stephanie@vestio.com of bel naar 0474-73 64 84 en kom dit gezellig appartement samen ontdekken!
Energie
![]() |
- EPC Certificaat: 20221122-0002733141-RES-1
- Energieverbruik: 233 kWh/m²/jaar
- E-peil: E0
- Beglazing: Standaard dubbel
Op de kaart

Financieel
| Prijs | |
|---|---|
| Kadastraal inkomen (niet geïndexeerd) | € 685 |
Berekening kosten
Je aankoopkosten? Die heb je snel berekend via de knop hieronder.
Bijkomende info
Gebouw
| Bouwjaar | 1999 |
|---|---|
| Staat | Goed onderhouden |
| Bouwcertificaat | Nee |
| Bewoonbaar (m²) | 64 |
| Verdieping | 1 |
| Badkamers | 1 |
| Slaapkamers | 1 |
| Verdiepingen | 3 |
| Garages | 0 |
| Parkeerplaatsen | 0 |
| Toiletten | 1 |
Faciliteiten
| Beglazing | Standaard dubbel |
|---|---|
| Septische tank | Nee |
Perceel
| Overstromingsgevoelig | Geen |
|---|---|
| P-score | D |
| G-score | D |
| Bebouwde oppervlakte (m²) | 0 |
| Oriëntatie tuin | Zuidwest |
Vergunning
| Verkavelingsvergunning | Geen beschikbaar |
|---|
Uitrusting
| Investeringspand | Nee |
|---|---|
| Parking | Nee |
| Garage | Nee |
| Lift | Ja |
| Rioolaansluiting | Nee |
| Gasaansluiting | Nee |
| Wateraansluiting | Ja |
| Elektriciteitsaansluiting | Ja |
| Internetaansluiting | Nee |
| Telefoonaansluiting | Nee |
| Zonnepanelen | Nee |
| Zonneboiler | Nee |
| Alarm | Nee |
| Videofoon | Nee |
| Grondwaterput | Nee |
Appartementsblok
| Aantal verdiepingen | 3 |
|---|---|
| Lift | Ja |
| Intercom | Nee |
Een pand van
Vestio
Vangronsveld & Somers, thuis in ontwikkeling
Vestio staat voor 'Vangronsveld & Somers, thuis in ontwikkeling'. Vestio is actief in de realisatie van residentiële vastgoedprojecten op toplocaties in het binnenland en aan de Belgische kust in Knokke. Daarbij hecht de vastgoedspecialist veel belang aan een goede begeleiding. Vestio biedt ook assistentie bij de projectontwikkeling van woningen, appartementen, retail, verkavelingen, woon- en zorgcentra en de koop en verkoop van bestaand vastgoed. Een totaalaanpak die al meer dan 20 jaar werkt en tot heel wat exclusieve woonprojecten heeft geleid.
VKTK0267-SOC
Leer meer over vastgoed
23 March 2026
Op Spotto zoeken als een pro: 10 slimme tips
21 March 2026
Hoeveel kan ik lenen om een huis te kopen?
01 March 2026
Wanneer heb ik een bouwvergunning of omgevingsvergunning nodig?
17 February 2026
