RUIM, MODERN APPARTEMENT 120 M² MET 3 SLAAPKAMERS
Een pand van Vestio
Favoriet
Jouw zoektocht
Jouw scoretabel voor dit pand
Aan het laden...
Jouw geplande bezichtigingen
Aan het laden...
Overzicht
- 120 m² bewoonbaar
- 3 Slaapkamer(s)
- 1 Badkamer(s)
- 1 Toilet(ten)
Beschrijving
RUIM, MODERN APPARTEMENT 120 M² MET 3 SLAAPKAMERS
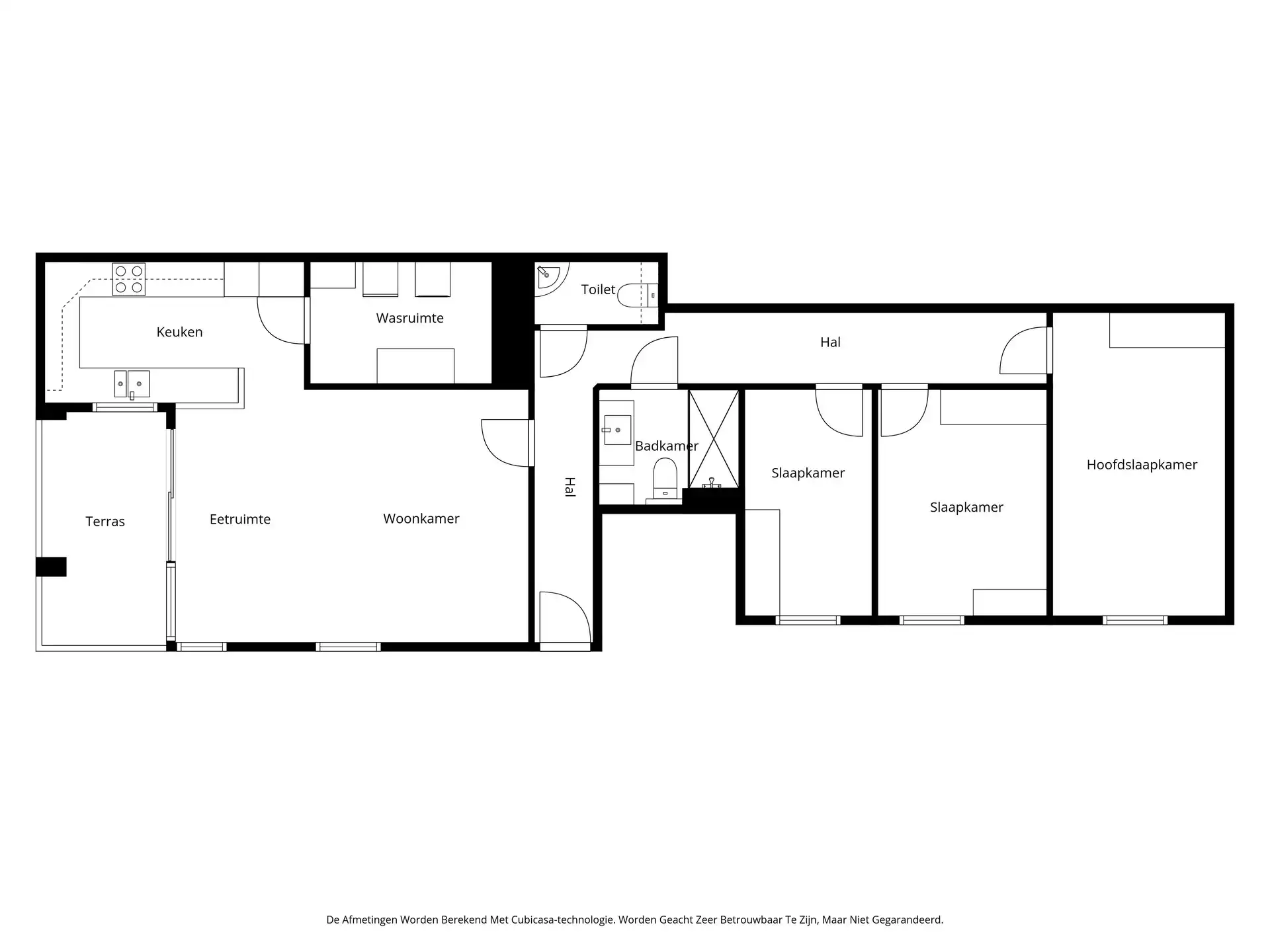
Op een toplocatie vlak buiten de Hasseltse kleine ring treffen we dit ruime appartement van 120 m² aan op de eerste verdieping van Residentie Maastrichterpoort, een kleinschalige residentie bestaande uit slechts 8 appartementen. Dit appartement daterende uit 2009 is bovendien recent nog deels gerenoveerd, zo werden de vloeren van het appartement en van het terras volledig vernieuwd en werden er rolluiken geïnstalleerd aan de 3 slaapkamers en aan de voordeur.
Het leefgedeelte van dit lichtrijke appartement is gelegen aan de straatzijde en is opgedeeld in een goed uitgeruste keuken, een zithoek en een eetplaats. Van hieruit heeft u toegang tot het zuidelijk georiënteerde, overdekte terras. Aanpalend aan de keuken is er nog een zeer praktische berging / wasruimte. Voorts zijn er aan de achterzijde 3 grote slaapkamers voorzien, een moderne badkamer, een ruime nachtgang en een inkomhal met apart gastentoilet.
Uw wagen kan u parkeren op uw privatieve, ondergrondse autostaanplaats. Ook zijn er nog een gemeenschappelijke fietsenberging en een afvalberging voorzien in de kelderverdieping.
Enkele TROEVEN van dit appartement opgelijst:
+ Goed onderhouden en 100% instapklaar
+ Ruim appartement 120 m² ( volgens EPC ) met 3 slaapkamers
+ Aankoop aan 2% registratierechten mogelijk
+ Toplocatie aan Hasselt-centrum
+ Moderne, kleinschalige residentie met slechts 8 appartementen
+ Zuidelijk georiënteerd, overdekt terras
+ Energiezuinig: EPC A-label !!!
+ Ondergrondse autostaanplaats inbegrepen
+ Gemeenschappelijke fietsen- en afvalberging
+ Vloeren + terras vernieuwd
+ Rolluiken voorzien aan de voordeur en de 3 slaapkamers
+ Elektriciteit is goedgekeurd (tot 2051)
Kortom, een ruim en 100% instapklaar appartement op een toplocatie aan het bruisende centrum van Hasselt. Meer info? Neem contact op met Maarten Delbroek via maarten@vestio.com of bel naar 0471/034804.
Op een toplocatie vlak buiten de Hasseltse kleine ring treffen we dit ruime appartement van 120 m² aan op de eerste verdieping van Residentie Maastrichterpoort, een kleinschalige residentie bestaande uit slechts 8 appartementen. Dit appartement daterende uit 2009 is bovendien recent nog deels gerenoveerd, zo werden de vloeren van het appartement en van het terras volledig vernieuwd en werden er rolluiken geïnstalleerd aan de 3 slaapkamers en aan de voordeur.
Het leefgedeelte van dit lichtrijke appartement is gelegen aan de straatzijde en is opgedeeld in een goed uitgeruste keuken, een zithoek en een eetplaats. Van hieruit heeft u toegang tot het zuidelijk georiënteerde, overdekte terras. Aanpalend aan de keuken is er nog een zeer praktische berging / wasruimte. Voorts zijn er aan de achterzijde 3 grote slaapkamers voorzien, een moderne badkamer, een ruime nachtgang en een inkomhal met apart gastentoilet.
Uw wagen kan u parkeren op uw privatieve, ondergrondse autostaanplaats. Ook zijn er nog een gemeenschappelijke fietsenberging en een afvalberging voorzien in de kelderverdieping.
Enkele TROEVEN van dit appartement opgelijst:
+ Goed onderhouden en 100% instapklaar
+ Ruim appartement 120 m² ( volgens EPC ) met 3 slaapkamers
+ Aankoop aan 2% registratierechten mogelijk
+ Toplocatie aan Hasselt-centrum
+ Moderne, kleinschalige residentie met slechts 8 appartementen
+ Zuidelijk georiënteerd, overdekt terras
+ Energiezuinig: EPC A-label !!!
+ Ondergrondse autostaanplaats inbegrepen
+ Gemeenschappelijke fietsen- en afvalberging
+ Vloeren + terras vernieuwd
+ Rolluiken voorzien aan de voordeur en de 3 slaapkamers
+ Elektriciteit is goedgekeurd (tot 2051)
Kortom, een ruim en 100% instapklaar appartement op een toplocatie aan het bruisende centrum van Hasselt. Meer info? Neem contact op met Maarten Delbroek via maarten@vestio.com of bel naar 0471/034804.
Energie
![]() |
- Energieverbruik: 98 kWh/m²/jaar
- E-peil: E0
- Verwarming: Gas
- Beglazing: Standaard dubbel
Op de kaart

Financieel
| Prijs | |
|---|---|
| Kadastraal inkomen (niet geïndexeerd) | € 1.048 |
Berekening kosten
Je aankoopkosten? Die heb je snel berekend via de knop hieronder.
Bijkomende info
Gebouw
| Bouwjaar | 2009 |
|---|---|
| Staat | Goed onderhouden |
| Bewoonbaar (m²) | 120 |
| Verdieping | 1 |
| Badkamers | 1 |
| Slaapkamers | 3 |
| Verdiepingen | 3 |
| Garages | 0 |
| Parkeerplaatsen | 0 |
| Toiletten | 1 |
Faciliteiten
| Beglazing | Standaard dubbel |
|---|---|
| Brandstof primaire verwarming | Gas |
| Septische tank | Nee |
Perceel
| P-score | C |
|---|---|
| G-score | C |
| Bebouwde oppervlakte (m²) | 0 |
| Oppervlakte terras (m²) | 9 |
| Oriëntatie tuin | Zuid |
Vergunning
| Verkavelingsvergunning | Vergunning beschikbaar |
|---|
Uitrusting
| Investeringspand | Nee |
|---|---|
| Parking | Nee |
| Garage | Nee |
| Opslagruimte | Ja |
| Terras | Ja |
| Lift | Ja |
| Rioolaansluiting | Nee |
| Gasaansluiting | Ja |
| Wateraansluiting | Ja |
| Elektriciteitsaansluiting | Ja |
| Internetaansluiting | Nee |
| Telefoonaansluiting | Nee |
| Zonnepanelen | Nee |
| Zonneboiler | Nee |
| Alarm | Nee |
| Videofoon | Nee |
| Grondwaterput | Nee |
Appartementsblok
| Aantal verdiepingen | 3 |
|---|---|
| Lift | Ja |
| Intercom | Nee |
Een pand van
Vestio
Vangronsveld & Somers, thuis in ontwikkeling
Vestio staat voor 'Vangronsveld & Somers, thuis in ontwikkeling'. Vestio is actief in de realisatie van residentiële vastgoedprojecten op toplocaties in het binnenland en aan de Belgische kust in Knokke. Daarbij hecht de vastgoedspecialist veel belang aan een goede begeleiding. Vestio biedt ook assistentie bij de projectontwikkeling van woningen, appartementen, retail, verkavelingen, woon- en zorgcentra en de koop en verkoop van bestaand vastgoed. Een totaalaanpak die al meer dan 20 jaar werkt en tot heel wat exclusieve woonprojecten heeft geleid.
VKTK0511-MDC
Leer meer over vastgoed
24 April 2026
Duurzaam gelegen woning? Check je Mobiscore
23 March 2026
Op Spotto zoeken als een pro: 10 slimme tips
21 March 2026
Hoeveel kan ik lenen om een huis te kopen?
01 March 2026
