STATIGE WONING MET 4 SLKS OP EEN TOPLOCATIE
€ 499.000
Een pand van De woonmakers
Overzicht
- 196 m² grond
- 5 Slaapkamer(s)
- 3 Badkamer(s)
- 4 Toilet(ten)
Overstromingsgevaar perceel
Beschrijving
Ook is er een vlotte verbinding met de omliggende steden.
Deze oerdegelijke woning is opgetrokken in 1955 en werd door de huidige eigenaars steeds goed onderhouden. Zo beschikt de woning over ramen met dubbele beglazing en is er centrale verwarming op gas met een condesatieketel voorzien. De woning heeft een bewoonbare oppervlakte van 196m² en biedt tal van mogelijkheden. Verschillende authentieke elementen zorgen voor een charmant gevoel dat doorheen de hele woning behouden blijft.
Bij het betreden van de woning komen we terecht in de inkomhal die ons meteen naar alle vertrekken leidt. Zo kan men hier al een polyvalente ruimte terugvinden.
verder treffen we de knusse leefruimte.Via de hal bereiken we ook de mooie leeufkeuken.
Tot slot kan men op het gelijkvloers als twee ruime slaapkamers terugvinden.
Via de trap in de inkomhal bereikt men de eerste verdieping. De nachthal leidt ons hier naar de twee overblijvende slaapkamers.
Bijkomend is de woning nog voorzien van een ruime kelder.
De woning is gelegen op een knap perceel van maar liefst 14a71ca.
Nieuwsgierig geworden na het zien van dit zoekertje? Maak dan snel een afspraak op 011/98.88.98 of via info@dewoonmakers.be
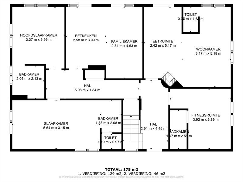
In Hasselt vinden we langs de Genkersteenweg, ter hoogte van nummer 212 deze zeer ruime gezinswoning terug. Het pand is gelegen op een centrale ligging nabij de Grote Ring en op een aantal minuten van het centrum van Hasselt. Hierdoor liggen alle faciliteiten binnen handbereik.
Ook is er een vlotte verbinding met de omliggende steden.
Deze oerdegelijke woning is opgetrokken in 1955 en werd door de huidige eigenaars steeds goed onderhouden. Zo beschikt de woning over ramen met dubbele beglazing en is er centrale verwarming op gas met een condesatieketel voorzien. De woning heeft een bewoonbare oppervlakte van 196m² en biedt tal van mogelijkheden. Verschillende authentieke elementen zorgen voor een charmant gevoel dat doorheen de hele woning behouden blijft.
Bij het betreden van de woning komen we terecht in de inkomhal die ons meteen naar alle vertrekken leidt. Zo kan men hier al een polyvalente ruimte terugvinden die momenteel is ingekleed als fitnessruimte met eigen toilet en douche.
verder treffen we de knusse leefruimte. De gashaard zorgt hier alvast voor de nodige warmte en gezelligheid tijdens de koude winterdagen. Via de hal bereiken we ook de mooie leeufkeuken. Deze is voldoende ruim om er ook een eettafel te plaatsen.
Tot slot kan men op het gelijkvloers als twee ruime slaapkamers terugvinden. Beide slaapkamers zijn bovendien voorzien van een eigen douche en lavabo.
Via de trap in de inkomhal bereikt men de eerste verdieping. De nachthal leidt ons hier naar de twee overblijvende slaapkamers. ook hier werd één van de slaapkamers voorzien van een eigen doucheruimte.
Bovendien is er hier voldoende ruimte om een extra bureau of opbergplaats te creëren.
Bijkomend is de woning nog voorzien van een ruime kelder. Aan opbergruimte dus geen gebrek!
Ook aan het parkeren van de wagens werd gedacht. Op het perceel is er voldoende parkeerruimte voorzien.
De woning is gelegen op een knap perceel van maar liefst 14a71ca. Op het omvangrijke perceel zijn er vele hoekjes om te ontdekken. Wie plaats behoeft voor ravottende kinderen of viervoeters is hier zeker aan het juiste adres.
Nieuwsgierig geworden na het zien van dit zoekertje? Maak dan snel een afspraak op 011/98.88.98 of via info@dewoonmakers.be
Energie
![]() |
- Energieverbruik: 540 kWh/m²/jaar
- E-peil: E0
- Verwarming: Gas
- Beglazing: Standaard dubbel
Extra budget nodig voor je renovatie?

Op de kaart

Financieel
| Prijs | |
|---|---|
| Kadastraal inkomen (niet geïndexeerd) | € 1.768 |
Berekening kosten
Je aankoopkosten? Die heb je snel berekent via de knop hieronder.
Bijkomende info
Gebouw
| Bouwjaar | 1956 |
|---|---|
| Staat | Goed onderhouden |
| Verdieping | 0 |
| Badkamers | 3 |
| Slaapkamers | 5 |
| Verdiepingen | 0 |
| Garages | 0 |
| Parkeerplaatsen | 0 |
| Toiletten | 4 |
Faciliteiten
| Keuken uitrusting | Goed uitgerust |
|---|---|
| Beglazing | Standaard dubbel |
| Brandstof primaire verwarming | Gas |
| Septische tank | Nee |
Perceel
| Diepte (m) | 41 |
|---|---|
| Overstromingsgevoelig | Geen |
| P-score | D |
| G-score | A |
| Totale oppervlakte (m²) | 196 |
| Bebouwde oppervlakte (m²) | 0 |
Vergunning
| Verkavelingsvergunning | Geen beschikbaar |
|---|
Uitrusting
| Investeringspand | Nee |
|---|---|
| Parking | Nee |
| Garage | Nee |
| Lift | Nee |
| Rioolaansluiting | Nee |
| Gasaansluiting | Nee |
| Wateraansluiting | Nee |
| Elektriciteitsaansluiting | Nee |
| Internetaansluiting | Nee |
| Telefoonaansluiting | Nee |
| Zonnepanelen | Nee |
| Zonneboiler | Nee |
| Alarm | Nee |
| Videofoon | Nee |
| Grondwaterput | Nee |



