Nieuw
Te renoveren woning met goedgekeurde plannen – Hasselt
€ 219.000
Overzicht
- 137 m² bewoonbaar
- 3 Slaapkamer(s)
- 2 Badkamer(s)
- 3 Toilet(ten)
- 1 Tuin
Beschrijving
Gelegen in de gegeerde Goetsbloetsstraat te Hasselt, op korte afstand van winkels, scholen, openbaar vervoer en de belangrijkste invalswegen. Een rustige woonstraat net buiten het centrum, waar je toch geniet van een vlotte bereikbaarheid en alle dagelijkse voorzieningen om de hoek.
Deze woning op een perceel van 1a50ca werd reeds zo goed als volledig gestript en vormt de perfecte basis voor wie zonder vertraging een renovatieproject wil opstarten. De vergunning is volledig goedgekeurd, waardoor je onmiddellijk aan de slag kunt. Geen lange aanvraagprocedures, enkel nog bouwen volgens het plan dat voor je klaar ligt.
Indeling volgens de goedgekeurde plannen
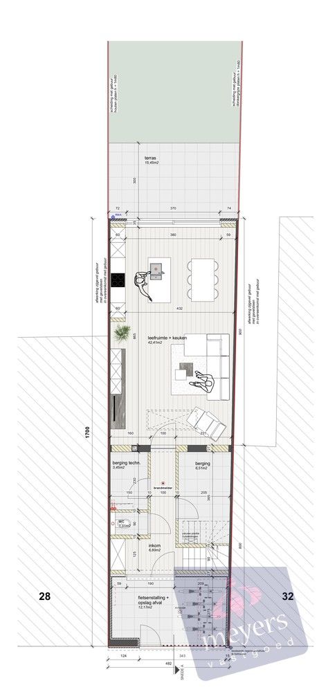
Gelijkvloers
Eerste verdieping
Tweede verdieping
Deze woning is ideaal voor wie een kwaliteitsvolle, moderne gezinswoning wil creëren op een toplocatie in Hasselt — zonder de kopzorgen van een lange vergunningsprocedure of onvoorspelbare sloopkosten.
Klaar om dit project te realiseren?
Grijp deze kans en maak vandaag nog een afspraak. Ontdek zelf het potentieel van deze woning en zet de eerste stap richting jouw nieuwe thuis.
Deze woning op een perceel van 1a50ca werd reeds zo goed als volledig gestript en vormt de perfecte basis voor wie zonder vertraging een renovatieproject wil opstarten. De vergunning is volledig goedgekeurd, waardoor je onmiddellijk aan de slag kunt. Geen lange aanvraagprocedures, enkel nog bouwen volgens het plan dat voor je klaar ligt.
Indeling volgens de goedgekeurde plannen
Gelijkvloers
- Inkomhal met vestiairehoek
- Gastentoilet
- Toegang tot berging/technische ruimte
- Lichte leefruimte met open keuken en zicht op het terras
- Zuidoostelijk georiënteerde tuin
- Overdekte fietsenstalling aan de voorzijde
Eerste verdieping
- Twee volwaardige slaapkamers
- Badkamer met ligbad, douche en toilet
Tweede verdieping
- Derde slaapkamer met aansluitende dressing
- Tweede badkamer met ligbad én douche
- Apart toilet
- Extra kamer, vrij in te vullen (bureau, hobbyruimte, logeerkamer, …)
Deze woning is ideaal voor wie een kwaliteitsvolle, moderne gezinswoning wil creëren op een toplocatie in Hasselt — zonder de kopzorgen van een lange vergunningsprocedure of onvoorspelbare sloopkosten.
Klaar om dit project te realiseren?
Grijp deze kans en maak vandaag nog een afspraak. Ontdek zelf het potentieel van deze woning en zet de eerste stap richting jouw nieuwe thuis.
Energie
![]() |
- EPC Certificaat: 20230315-0002835723-RES-1
- Energieverbruik: 664 kWh/m²/jaar
- E-peil: E0
- Beglazing: Enkel
Let op, de renovatieverplichting in Vlaanderen verplicht de koper om deze woning na aankoop te renoveren tot een betere energieprestatie. Lees er alles over in dit artikel
Op de kaart

Financieel
| Prijs | |
|---|---|
| Kadastraal inkomen (niet geïndexeerd) | € 371 |
Berekening kosten
Je aankoopkosten? Die heb je snel berekent via de knop hieronder.
Bijkomende info
Gebouw
| Bouwjaar | 1918 |
|---|---|
| Staat | Te renoveren |
| Bewoonbaar (m²) | 137 |
| Badkamers | 2 |
| Slaapkamers | 3 |
| Verdiepingen | 0 |
| Garages | 0 |
| Parkeerplaatsen | 0 |
| Toiletten | 3 |
Faciliteiten
| Keuken uitrusting | Basis |
|---|---|
| Beglazing | Enkel |
| Septische tank | Nee |
Perceel
| Overstromingsgevoelig | Geen |
|---|---|
| P-score | A |
| G-score | A |
| Bebouwde oppervlakte (m²) | 0 |
| Tuin oppervlakte (m²) | 0 |
| Oppervlakte terras (m²) | 0 |
| Oriëntatie tuin | ZuidOost |
Vergunning
| Verkavelingsvergunning | Geen beschikbaar |
|---|
Uitrusting
| Investeringspand | Nee |
|---|---|
| Parking | Nee |
| Garage | Nee |
| Thuiskantoor | Ja |
| Opslagruimte | Ja |
| Tuin | Ja |
| Terras | Ja |
| Lift | Nee |
| Rioolaansluiting | Ja |
| Gasaansluiting | Ja |
| Wateraansluiting | Ja |
| Elektriciteitsaansluiting | Ja |
| Internetaansluiting | Ja |
| Telefoonaansluiting | Ja |
| Zonnepanelen | Nee |
| Zonneboiler | Nee |
| Alarm | Nee |
| Videofoon | Nee |
| Grondwaterput | Nee |
Leer meer over vastgoed

Nieuw
24 November 2025
Uitgezocht voor jouw gemeente: Hoeveel stijgt de waarde van je woning door een renovatie?
22 October 2025
Hoeveel kan ik lenen om een huis te kopen?
11 June 2025
Huis kopen met bouwovertreding? Dit moet je weten
11 May 2025
