Te renoveren woning met goedgekeurde plannen in hartje Hasselt
 € 219.000  
Overzicht
- 137 m² bewoonbaar
 - 3 Slaapkamer(s)
 - 2 Badkamer(s)
 - 3 Toilet(ten)
 - 1 Tuin
 
Beschrijving
In de rustige Goetsbloetsstraat 30, op een steenworp van het levendige stadscentrum van Hasselt én in de nabijheid van winkels, scholen en openbaar vervoer, bevindt zich deze unieke kans. Deze eengezinswoning, reeds volledig gestript en gelegen op een perceel van 1a50ca, beschikt over een bewoonbare oppervlakte van 137 m². Het pand biedt de ideale basis voor wie droomt van een renovatieproject met karakter, zonder zelf nog doorheen het vergunningstraject te moeten.
De verkoop omvat immers reeds goedgekeurde renovatieplannen, waardoor jij onmiddellijk van start kunt gaan. Dankzij de slimme indeling, de compacte perceelgrootte en de zuidoostelijk georiënteerde tuin combineert dit huis praktisch comfort met woonkwaliteit.
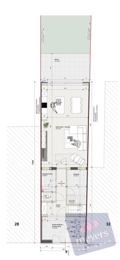
Indeling volgens de goedgekeurde plannen
Troeven op een rijtje:
Een woning die je volledig naar eigen smaak kunt afwerken, mét de zekerheid dat de plannen al klaar en vergund zijn?
Contacteer ons vandaag nog voor meer informatie of een afspraak ter plaatse.
De verkoop omvat immers reeds goedgekeurde renovatieplannen, waardoor jij onmiddellijk van start kunt gaan. Dankzij de slimme indeling, de compacte perceelgrootte en de zuidoostelijk georiënteerde tuin combineert dit huis praktisch comfort met woonkwaliteit.
Indeling volgens de goedgekeurde plannen
- Gelijkvloers: ruime inkomhal met vestiairehoek, gastentoilet en toegang tot een berging/technische ruimte. De open leefruimte met keuken baadt in het licht en sluit mooi aan op het terras en de gezellige stadstuin. Een overdekte fietsenstalling maakt het plaatje compleet.
 - Eerste verdieping: twee volwaardige slaapkamers en een badkamer met ligbad, douche en toilet.
 - Tweede verdieping: een derde slaapkamer met aansluitende dressing, een tweede badkamer met ligbad en douche, een apart toilet en een extra kamer die dienst kan doen als bureau, logeerkamer of hobbyruimte.
 
Troeven op een rijtje:
- Karaktervolle stadswoning met goedgekeurde renovatieplannen
 - Centrale ligging in een rustige straat op wandelafstand van Hasselt-centrum
 - Efficiënt ingedeeld perceel met 137 m² bewoonbare oppervlakte
 - Zuid-oost gerichte tuin
 - Geschikt voor gezinnen, koppels of investeerders
 
Een woning die je volledig naar eigen smaak kunt afwerken, mét de zekerheid dat de plannen al klaar en vergund zijn?
Contacteer ons vandaag nog voor meer informatie of een afspraak ter plaatse.
Energie
![]()  | 
- EPC Certificaat: 20230315-0002835723-RES-1
 - Energieverbruik: 664 kWh/m²/jaar
 - E-peil: E0
 - Beglazing: Enkel
 
 Let op, de renovatieverplichting in Vlaanderen verplicht de koper om deze woning na aankoop te renoveren tot een betere energieprestatie.  Lees er alles over in dit artikel
Op de kaart

Financieel
| Prijs | |
|---|---|
| Kadastraal inkomen (niet geïndexeerd) | € 371 | 
Berekening kosten
Je aankoopkosten? Die heb je snel berekent via de knop hieronder.
Bijkomende info
Gebouw
| Bouwjaar | 1918 | 
|---|---|
| Staat | Te renoveren | 
| Bewoonbaar (m²) | 137 | 
| Badkamers | 2 | 
| Slaapkamers | 3 | 
| Verdiepingen | 0 | 
| Garages | 0 | 
| Parkeerplaatsen | 0 | 
| Toiletten | 3 | 
Faciliteiten
| Keuken uitrusting | Basis | 
|---|---|
| Beglazing | Enkel | 
| Septische tank | Nee | 
Perceel
| Overstromingsgevoelig | Geen | 
|---|---|
| P-score | A | 
| G-score | A | 
| Bebouwde oppervlakte (m²) | 0 | 
| Tuin oppervlakte (m²) | 0 | 
| Oppervlakte terras (m²) | 0 | 
| Oriëntatie tuin | ZuidOost | 
Vergunning
| Verkavelingsvergunning | Geen beschikbaar | 
|---|
Uitrusting
| Investeringspand | Nee | 
|---|---|
| Parking | Nee | 
| Garage | Nee | 
| Thuiskantoor | Ja | 
| Opslagruimte | Ja | 
| Tuin | Ja | 
| Terras | Ja | 
| Lift | Nee | 
| Rioolaansluiting | Ja | 
| Gasaansluiting | Ja | 
| Wateraansluiting | Ja | 
| Elektriciteitsaansluiting | Ja | 
| Internetaansluiting | Ja | 
| Telefoonaansluiting | Ja | 
| Zonnepanelen | Nee | 
| Zonneboiler | Nee | 
| Alarm | Nee | 
| Videofoon | Nee | 
| Grondwaterput | Nee | 
Leer meer over vastgoed
 Nieuw 
 22 October 2025 
Hoeveel kan ik lenen om een huis te kopen?
 11 June 2025 
Huis kopen met bouwovertreding? Dit moet je weten
 11 May 2025 
Renoveren? Vraag je Mijn VerbouwPremie aan
 22 April 2025 
