In optie
Te renoveren woning met goedgekeurde plannen – Hasselt
€ 219.000
Overzicht
- 137 m² bewoonbaar
- 3 Slaapkamer(s)
- 2 Badkamer(s)
- 3 Toilet(ten)
- 1 Tuin
Beschrijving
Deze woning in de gegeerde Goetsbloetsstraat te Hasselt combineert rust en bereikbaarheid. Gelegen in een aangename, rustige woonstraat net buiten het centrum, heb je winkels, scholen, openbaar vervoer en de belangrijkste invalswegen binnen handbereik. Alle dagelijkse voorzieningen liggen letterlijk om de hoek, waardoor je geniet van het beste van twee werelden: een rustige woonomgeving met een vlotte bereikbaarheid.
Het perceel van 1a50ca biedt een uitstekende basis voor een renovatieproject. De woning is grotendeels gestript en de vergunning is volledig goedgekeurd, waardoor je meteen aan de slag kunt. Geen wachttijden, geen lange procedures, enkel nog bouwen volgens de plannen die al voor je klaar liggen.
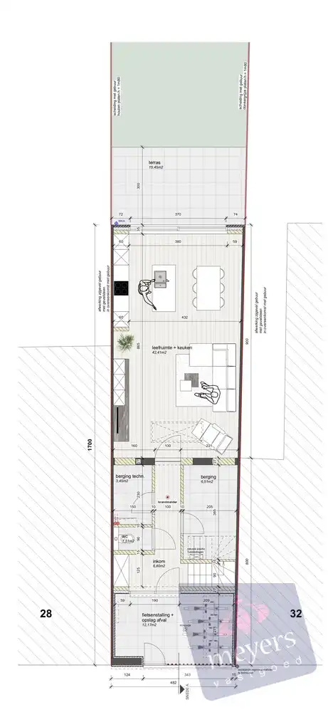
Op het gelijkvloers voorziet de indeling een ruime inkomhal met vestiairehoek en gastentoilet, toegang tot de berging en technische ruimte, en een lichte leefruimte met open keuken die uitkijkt op het terras en de zuidoostelijk georiënteerde tuin. Aan de voorzijde is bovendien een overdekte fietsenstalling voorzien.
Op de eerste verdieping zijn twee volwaardige slaapkamers en een badkamer met ligbad, douche en toilet voorzien. De tweede verdieping biedt een derde slaapkamer met aansluitende dressing, een tweede badkamer met ligbad en douche, een apart toilet en een extra kamer die vrij in te vullen is, bijvoorbeeld als bureau, hobbyruimte of logeerkamer.
Deze woning is ideaal voor wie een moderne en kwaliteitsvolle gezinswoning wil creëren op een toplocatie in Hasselt, zonder de kopzorgen van een lange vergunningsprocedure of onverwachte sloopkosten.
Grijp deze kans, plan vandaag nog een bezoek en ontdek zelf het potentieel van deze woning. Zet de eerste stap naar jouw nieuwe thuis en geef jouw renovatieproject een vliegende start.
Het perceel van 1a50ca biedt een uitstekende basis voor een renovatieproject. De woning is grotendeels gestript en de vergunning is volledig goedgekeurd, waardoor je meteen aan de slag kunt. Geen wachttijden, geen lange procedures, enkel nog bouwen volgens de plannen die al voor je klaar liggen.
Op het gelijkvloers voorziet de indeling een ruime inkomhal met vestiairehoek en gastentoilet, toegang tot de berging en technische ruimte, en een lichte leefruimte met open keuken die uitkijkt op het terras en de zuidoostelijk georiënteerde tuin. Aan de voorzijde is bovendien een overdekte fietsenstalling voorzien.
Op de eerste verdieping zijn twee volwaardige slaapkamers en een badkamer met ligbad, douche en toilet voorzien. De tweede verdieping biedt een derde slaapkamer met aansluitende dressing, een tweede badkamer met ligbad en douche, een apart toilet en een extra kamer die vrij in te vullen is, bijvoorbeeld als bureau, hobbyruimte of logeerkamer.
Deze woning is ideaal voor wie een moderne en kwaliteitsvolle gezinswoning wil creëren op een toplocatie in Hasselt, zonder de kopzorgen van een lange vergunningsprocedure of onverwachte sloopkosten.
Grijp deze kans, plan vandaag nog een bezoek en ontdek zelf het potentieel van deze woning. Zet de eerste stap naar jouw nieuwe thuis en geef jouw renovatieproject een vliegende start.
Energie
![]() |
- EPC Certificaat: 20230315-0002835723-RES-1
- Energieverbruik: 664 kWh/m²/jaar
- E-peil: E0
- Beglazing: Enkel
Let op, de renovatieverplichting in Vlaanderen verplicht de koper om deze woning na aankoop te renoveren tot een betere energieprestatie. Lees er alles over in dit artikel
Op de kaart

Financieel
| Prijs | |
|---|---|
| Kadastraal inkomen (niet geïndexeerd) | € 371 |
Berekening kosten
Je aankoopkosten? Die heb je snel berekend via de knop hieronder.
Bijkomende info
Gebouw
| Bouwjaar | 1918 |
|---|---|
| Staat | Te renoveren |
| Bewoonbaar (m²) | 137 |
| Badkamers | 2 |
| Slaapkamers | 3 |
| Verdiepingen | 0 |
| Garages | 0 |
| Parkeerplaatsen | 0 |
| Toiletten | 3 |
Faciliteiten
| Keuken uitrusting | Basis |
|---|---|
| Beglazing | Enkel |
| Septische tank | Nee |
Perceel
| Overstromingsgevoelig | Geen |
|---|---|
| P-score | A |
| G-score | A |
| Bebouwde oppervlakte (m²) | 0 |
| Tuin oppervlakte (m²) | 0 |
| Oppervlakte terras (m²) | 0 |
| Oriëntatie tuin | ZuidOost |
Vergunning
| Verkavelingsvergunning | Geen beschikbaar |
|---|
Uitrusting
| Investeringspand | Nee |
|---|---|
| Parking | Nee |
| Garage | Nee |
| Thuiskantoor | Ja |
| Opslagruimte | Ja |
| Tuin | Ja |
| Terras | Ja |
| Lift | Nee |
| Rioolaansluiting | Ja |
| Gasaansluiting | Ja |
| Wateraansluiting | Ja |
| Elektriciteitsaansluiting | Ja |
| Internetaansluiting | Ja |
| Telefoonaansluiting | Ja |
| Zonnepanelen | Nee |
| Zonneboiler | Nee |
| Alarm | Nee |
| Videofoon | Nee |
| Grondwaterput | Nee |
Leer meer over vastgoed
24 November 2025
Uitgezocht voor jouw gemeente: Hoeveel stijgt de waarde van je woning door een renovatie?
22 October 2025
Hoeveel kan ik lenen om een huis te kopen?
11 June 2025
Huis kopen met bouwovertreding? Dit moet je weten
11 May 2025
