Nieuw 
WONING VAN 200M² EN GROTE TUIN VAN 20A92CA TE KERMT
 € 249.000  
Een pand van Het Vastgoedkantoor
Overzicht
- 200 m² bewoonbaar
 - 2092 m² grond
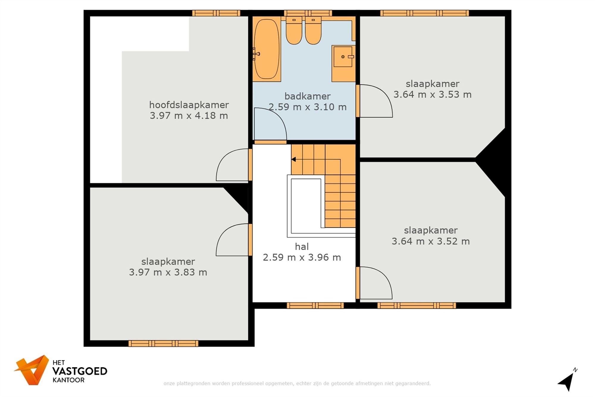
 - 4 Slaapkamer(s)
 - 1 Badkamer(s)
 - 1 Garage(s)
 
Beschrijving
Halfopen bebouwing van 200m² met renovatiepotentieel en grote tuin van 20a92 te Kermt.
Belangrijkste troeven:
- Centrale ligging
- Grote tuin van 20a92 met een groene omgeving aan de achterkant
- 4 slaapkamers
- Volledig onderkelderd
- Muren en zolder zijn reeds geïsoleerd dus geen renovatieverplichting
- Garage in de tuin
Bekijk zeker ook de grondplannen met de afmetingen. Zo krijgt u van thuis uit al een perfect beeld van wat deze woning te bieden heeft!
Wenst u meer info of een vrijblijvende bezichtiging, contacteer dan ons kantoor op het nummer 011 85 15 15 en wij helpen u graag verder.
Energie
![]()  | 
- EPC Certificaat: 20241105-0003436867-RES-1
 - Energieverbruik: 390 kWh/m²/jaar
 - E-peil: E0
 - Beglazing: Enkel
 
Extra budget nodig voor je renovatie?
 De overheid helpt je dit pand energetisch te renoveren! Hieronder zie je het premiebedrag dat je mogelijks van de overheid krijgt. 
Het huidige EPC-label is:

Op de kaart

Financieel
| Prijs | |
|---|---|
| Kadastraal inkomen (niet geïndexeerd) | € 0 | 
| Kadastraal inkomen (geïndexeerd) | € 0 | 
Berekening kosten
Je aankoopkosten? Die heb je snel berekent via de knop hieronder.
Bijkomende info
Gebouw
| Bouwcertificaat | Nee | 
|---|---|
| Bewoonbaar (m²) | 200 | 
| Verdieping | 2 | 
| Badkamers | 1 | 
| Slaapkamers | 4 | 
| Verdiepingen | 0 | 
| Garages | 1 | 
| Parkeerplaatsen | 0 | 
| Doucheruimtes | 0 | 
| Toiletten | 0 | 
Faciliteiten
| Materiaal ramenomlijstingen | Hout | 
|---|---|
| Beglazing | Enkel | 
| Elektrisch keuringsattest | Nee | 
Perceel
| Overstromingsgevoelig | Geen | 
|---|---|
| P-score | A | 
| G-score | A | 
| Voorkeurrecht | Nee | 
| Totale oppervlakte (m²) | 2092 | 
| Bebouwde oppervlakte (m²) | 0 | 
| Tuin oppervlakte (m²) | 0 | 
| Oppervlakte terras (m²) | 0 | 
Uitrusting
| Investeringspand | Nee | 
|---|---|
| Geschikt voor praktijk | Nee | 
| Parking | Nee | 
| Garage | Ja | 
| Thuiskantoor | Nee | 
| Kelder | Nee | 
| Zolder | Nee | 
| Tuin | Nee | 
| Terras | Nee | 
| Lift | Nee | 
| Rioolaansluiting | Nee | 
| Gasaansluiting | Nee | 
| Wateraansluiting | Nee | 
| Elektriciteitsaansluiting | Nee | 
| TV aansluiting | Nee | 
| Internetaansluiting | Nee | 
| Telefoonaansluiting | Nee | 
Een pand van
Het Vastgoedkantoor
 Het Vastgoedkantoor 
 Een nieuw begin, Welkom thuis! 
 Koorstraat 9, Kermt 
Leer meer over vastgoed
 Nieuw 
 22 October 2025 
Hoeveel kan ik lenen om een huis te kopen?
 11 June 2025 
Huis kopen met bouwovertreding? Dit moet je weten
 11 May 2025 
Renoveren? Vraag je Mijn VerbouwPremie aan
 22 April 2025 


