PRACHTIG HERENHUIS MET 4 SLKS EN GARAGE IN HASSELT
€ 409.000
Een pand van De woonmakers
Overzicht
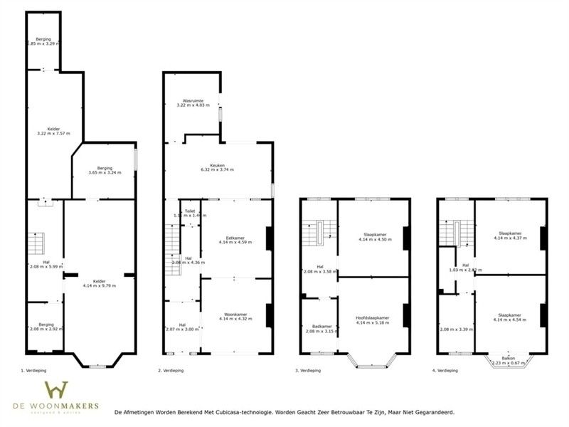
- 163 m² bewoonbaar
- 238 m² grond
- 4 Slaapkamer(s)
- 1 Badkamer(s)
Beschrijving
Zodra je binnenstapt in dit herenhuis, voel je de sfeer van weleer. Mooie originele details, hoge plafonds en een statige uitstraling geven deze woning een unieke ziel die je niet vaak meer tegenkomt. De ruimtes zijn licht, open en uitnodigend, ideaal voor wie houdt van karaktervol wonen in de stad.
Op het gelijkvloers wordt je verwelkomd door een prachtig geheel, waar living, eetkamer en keuken in elkaar overvloeien en een aangename, luchtige leefomgeving creëren. Aan de achterzijde bevindt zich een praktische wasplaats, die handig wegvalt in het geheel en zorgt voor extra comfort.
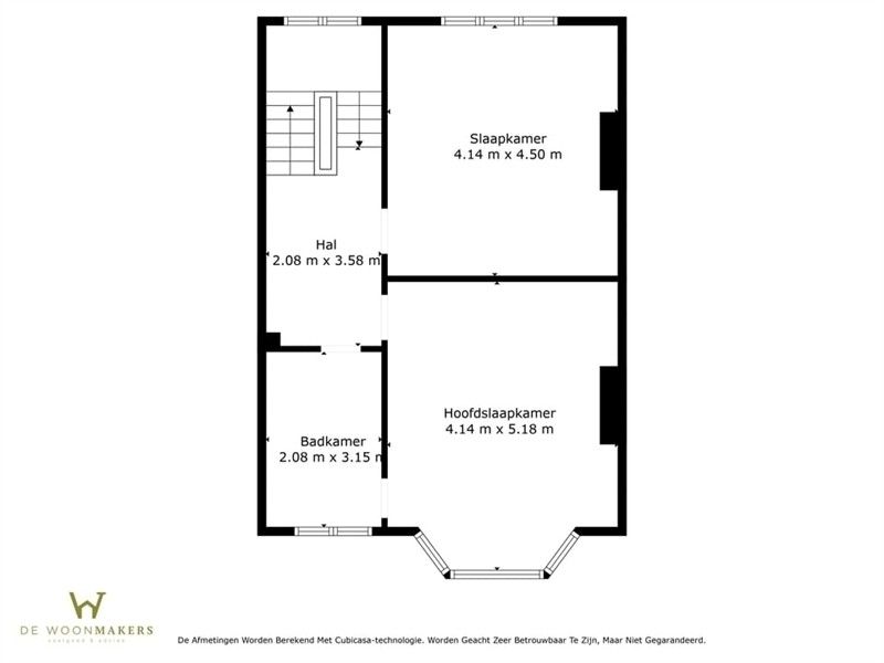
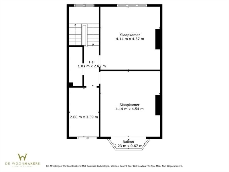
De eerste verdieping biedt plaats aan twee royale slaapkamers en de verzorgde badkamer. Op de tweede verdieping bevinden zich nog eens twee slaapkamers, samen met een tweede keuken die perfect kan worden omgevormd tot een bijkomende badkamer. Dit geeft je de mogelijkheid om de woning nog verder aan te passen aan jouw wensen en comfort.
Een belangrijk pluspunt van de woning is dat deze volledig onderkelderd is.
Grootste troef van deze woning is de ruime garage. Deze biedt parkeergemak en extra opslag.
Neem contact met ons op het nummer 011/98.88.98 of via info@dewoonmakers.be
Welkom op de Kuringersteenweg 275, waar tijdloze elegantie en praktische woonkwaliteit elkaar ontmoeten. Dit prachtig herenhuis met stadstuin, gelegen op een uitstekende locatie in hasselt, combineert grandeur van authentieke elementen met een royale woon indeling en een ruime garage.
Zodra je binnenstapt in dit herenhuis, voel je de sfeer van weleer. Mooie originele details, hoge plafonds en een statige uitstraling geven deze woning een unieke ziel die je niet vaak meer tegenkomt. De ruimtes zijn licht, open en uitnodigend, ideaal voor wie houdt van karaktervol wonen in de stad.
Op het gelijkvloers wordt je verwelkomd door een prachtig geheel, waar living, eetkamer en keuken in elkaar overvloeien en een aangename, luchtige leefomgeving creëren. Dankzij de harmonieuze indeling geniet je hier zowel van ruimte als van gezelligheid. Aan de achterzijde bevindt zich een praktische wasplaats, die handig wegvalt in het geheel en zorgt voor extra comfort.
De eerste verdieping biedt plaats aan twee royale slaapkamers en de verzorgde badkamer. Op de tweede verdieping bevinden zich nog eens twee slaapkamers, samen met een tweede keuken die perfect kan worden omgevormd tot een bijkomende badkamer. Dit geeft je de mogelijkheid om de woning nog verder aan te passen aan jouw wensen en comfort.
Een belangrijk pluspunt van de woning is dat deze volledig onderkelderd is. Deze biedt niet alleen veel bergruimte, maar ook extra mogelijkheden voor hobby's of voorraad.
Grootste troef van deze woning is de ruime garage. Deze biedt parkeergemak en extra opslag.
Achteraan de woning ligt een charmante stadstuin, waar je in alle rust kan genieten van een koffie in de ochtendzon of een gezellige avond met vrienden.
Ben jij op zoek naar een solide en ruime woning met karakter, op een toplocatie? Dan is dit herenhuis zeker jouw bezoek waard. Neem contact met ons op het nummer 011/98.88.98 of via info@dewoonmakers.be
De vermelde oppervlaktes zijn indicatief. De Woonmakers kan niet verantwoordelijk gesteld worden voor de juistheid van de door zijn verstrekte gegevens.
Energie
![]() |
- EPC Certificaat: 20250403-0003569497-RES-1
- Energieverbruik: 231 kWh/m²/jaar
- E-peil: E0
- Verwarming: Gas
- Beglazing: Standaard dubbel
Op de kaart

Financieel
| Prijs | |
|---|---|
| Kadastraal inkomen (niet geïndexeerd) | € 1.245 |
Berekening kosten
Je aankoopkosten? Die heb je snel berekent via de knop hieronder.
Bijkomende info
Gebouw
| Bouwjaar | 1952 |
|---|---|
| Staat | Goed onderhouden |
| Bewoonbaar (m²) | 163 |
| Verdieping | 0 |
| Badkamers | 1 |
| Slaapkamers | 4 |
| Verdiepingen | 0 |
| Garages | 0 |
| Parkeerplaatsen | 0 |
| Toiletten | 0 |
Faciliteiten
| Keuken uitrusting | Goed uitgerust |
|---|---|
| Beglazing | Standaard dubbel |
| Brandstof primaire verwarming | Gas |
| Septische tank | Nee |
Perceel
| Overstromingsgevoelig | Geen |
|---|---|
| P-score | A |
| G-score | A |
| Totale oppervlakte (m²) | 238 |
| Bebouwde oppervlakte (m²) | 0 |
Vergunning
| Verkavelingsvergunning | Geen beschikbaar |
|---|
Uitrusting
| Investeringspand | Nee |
|---|---|
| Parking | Nee |
| Garage | Nee |
| Lift | Nee |
| Rioolaansluiting | Nee |
| Gasaansluiting | Nee |
| Wateraansluiting | Nee |
| Elektriciteitsaansluiting | Nee |
| Internetaansluiting | Nee |
| Telefoonaansluiting | Nee |
| Zonnepanelen | Nee |
| Zonneboiler | Nee |
| Alarm | Nee |
| Videofoon | Nee |
| Grondwaterput | Nee |
