TE RENOVEREN GEZINSWONING MET GARAGE GARAGE IN VLIERMAAL
€ 249.000
Een pand van De woonmakers
Overzicht
- 181 m² bewoonbaar
- 678 m² grond
- 2 Slaapkamer(s)
- 1 Badkamer(s)
- 1 Garage(s)
Beschrijving
Deze verder op te frissen gezinswoning op een ruim perceel vinden we terug in de Loostraat ter hoogte van nummer 69.
Het centrum van Wellen kan men hier in een mum van tijd bereiken alsook Bilzen, Hasselt en Diepenbeek zijn vlot bereikbaar. Niettegenstaande de centrale ligging woon je hier bijzonder rustig en omringd door velden! De ideale gezinswoning dus..
Deze woning is gelegen op een mooi perceel van maar liefst 6A78CA! Mits de nodige opfriswerken hier en daar kan je deze weer omvormen tot een echte parel. Ideaal voor wie zijn eigen stempel op deze woning wilt drukken.
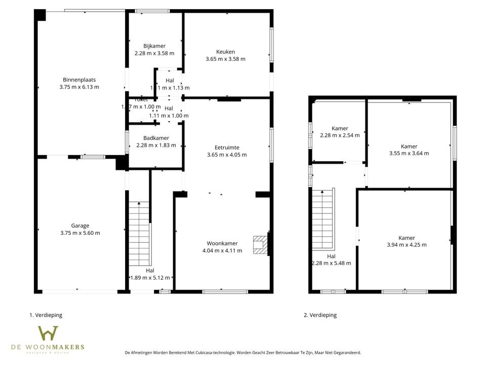
We betreden de woning via de inkomhal. Deze leidt ons meteen naar de leefruimte die hier voldoende ruim is voor het onderbrengen van een zit- en eetkamer. Aansluitend treffen we de recent gerenoveerde keuken. Alle toestellen zijn hier voorzien voor het bereiden van een heerlijke maaltijd.
Verder kan men op dit verdiep nog een berging, een polyvalente ruimte en de badkamer terugvinden. Deze laatste is voorzien van een douche en een badkamermeubel met lavabo.
De bovenverdieping heeft nog wat renovatiewerk nodig. Hier kan men nog drie kamers terugvinden.
Grote troef is dat deze woning voorzien is van een ruime garage.
Neem dan snel contact met ons op voor een afspraak op het nummer 011/98.88.98 of via info@dewoonmakers.be
Het centrum van Wellen kan men hier in een mum van tijd bereiken alsook Bilzen, Hasselt en Diepenbeek zijn vlot bereikbaar. Niettegenstaande de centrale ligging woon je hier bijzonder rustig en omringd door velden! De ideale gezinswoning dus..
Deze woning is gelegen op een mooi perceel van maar liefst 6A78CA! Mits de nodige opfriswerken hier en daar kan je deze weer omvormen tot een echte parel. Ideaal voor wie zijn eigen stempel op deze woning wilt drukken.
We betreden de woning via de inkomhal. Deze leidt ons meteen naar de leefruimte die hier voldoende ruim is voor het onderbrengen van een zit- en eetkamer. Aansluitend treffen we de recent gerenoveerde keuken. Alle toestellen zijn hier voorzien voor het bereiden van een heerlijke maaltijd.
Verder kan men op dit verdiep nog een berging, een polyvalente ruimte en de badkamer terugvinden. Deze laatste is voorzien van een douche en een badkamermeubel met lavabo.
De bovenverdieping heeft nog wat renovatiewerk nodig. Hier kan men nog drie kamers terugvinden.
Grote troef is dat deze woning voorzien is van een ruime garage.
Neem dan snel contact met ons op voor een afspraak op het nummer 011/98.88.98 of via info@dewoonmakers.be
Deze verder op te frissen gezinswoning op een ruim perceel vinden we terug in de Loostraat ter hoogte van nummer 69.
Het centrum van Wellen kan men hier in een mum van tijd bereiken alsook Bilzen, Hasselt en Diepenbeek zijn vlot bereikbaar. Niettegenstaande de centrale ligging woon je hier bijzonder rustig en omringd door velden! De ideale gezinswoning dus..
Deze woning is gelegen op een mooi perceel van maar liefst 6A78CA! Mits de nodige opfriswerken hier en daar kan je deze weer omvormen tot een echte parel. Ideaal voor wie zijn eigen stempel op deze woning wilt drukken.
We betreden de woning via de inkomhal. Deze leidt ons meteen naar de leefruimte die hier voldoende ruim is voor het onderbrengen van een zit- en eetkamer. Aansluitend treffen we de recent gerenoveerde keuken. Alle toestellen zijn hier voorzien voor het bereiden van een heerlijke maaltijd.
Verder kan men op dit verdiep nog een berging, een polyvalente ruimte en de badkamer terugvinden. Deze laatste is voorzien van een douche en een badkamermeubel met lavabo.
De bovenverdieping heeft nog wat renovatiewerk nodig. Hier kan men nog drie kamers terugvinden.
Op het omvangrijke perceel zijn er vele hoekjes te ontdekken. Wie plaats behoeft voor ravottende kinderen of viervoeters is hier zeker aan het juiste adres. Gezien de uitgestrektheid van het lot is er steeds een plek in de zon waar je op een vrij moment tot rust kan komen.
Grote troef is dat deze woning voorzien is van een ruime garage.
Hebben wij uw interesse kunnen wekken voor dit pand? Neem dan snel contact met ons op voor een afspraak op het nummer 011/98.88.98 of via info@dewoonmakers.be
De vermelde oppervlaktes zijn indicatief. De Woonmakers kan niet verantwoordelijk gesteld worden voor de juistheid van de door zijn verstrekte gegevens.
Het centrum van Wellen kan men hier in een mum van tijd bereiken alsook Bilzen, Hasselt en Diepenbeek zijn vlot bereikbaar. Niettegenstaande de centrale ligging woon je hier bijzonder rustig en omringd door velden! De ideale gezinswoning dus..
Deze woning is gelegen op een mooi perceel van maar liefst 6A78CA! Mits de nodige opfriswerken hier en daar kan je deze weer omvormen tot een echte parel. Ideaal voor wie zijn eigen stempel op deze woning wilt drukken.
We betreden de woning via de inkomhal. Deze leidt ons meteen naar de leefruimte die hier voldoende ruim is voor het onderbrengen van een zit- en eetkamer. Aansluitend treffen we de recent gerenoveerde keuken. Alle toestellen zijn hier voorzien voor het bereiden van een heerlijke maaltijd.
Verder kan men op dit verdiep nog een berging, een polyvalente ruimte en de badkamer terugvinden. Deze laatste is voorzien van een douche en een badkamermeubel met lavabo.
De bovenverdieping heeft nog wat renovatiewerk nodig. Hier kan men nog drie kamers terugvinden.
Op het omvangrijke perceel zijn er vele hoekjes te ontdekken. Wie plaats behoeft voor ravottende kinderen of viervoeters is hier zeker aan het juiste adres. Gezien de uitgestrektheid van het lot is er steeds een plek in de zon waar je op een vrij moment tot rust kan komen.
Grote troef is dat deze woning voorzien is van een ruime garage.
Hebben wij uw interesse kunnen wekken voor dit pand? Neem dan snel contact met ons op voor een afspraak op het nummer 011/98.88.98 of via info@dewoonmakers.be
De vermelde oppervlaktes zijn indicatief. De Woonmakers kan niet verantwoordelijk gesteld worden voor de juistheid van de door zijn verstrekte gegevens.
Energie
![]() |
- EPC Certificaat: 20250829-0003670548-RES-1
- Energieverbruik: 491 kWh/m²/jaar
- E-peil: E0
- Verwarming: Pellets
- Beglazing: Hoog efficient driedubbel
Let op, de renovatieverplichting in Vlaanderen verplicht de koper om deze woning na aankoop te renoveren tot een betere energieprestatie. Lees er alles over in dit artikel
Extra budget nodig voor je renovatie?
De overheid helpt je dit pand energetisch te renoveren! Hieronder zie je het premiebedrag dat je mogelijks van de overheid krijgt.
Het huidige EPC-label is:

Op de kaart

Financieel
| Prijs | |
|---|---|
| Kadastraal inkomen (niet geïndexeerd) | € 542 |
Berekening kosten
Je aankoopkosten? Die heb je snel berekent via de knop hieronder.
Bijkomende info
Gebouw
| Bouwjaar | 1951 |
|---|---|
| Bouwcertificaat | Nee |
| Bewoonbaar (m²) | 181 |
| Verdieping | 0 |
| Badkamers | 1 |
| Slaapkamers | 2 |
| Verdiepingen | 0 |
| Garages | 1 |
| Parkeerplaatsen | 0 |
| Toiletten | 0 |
Faciliteiten
| Beglazing | Hoog efficient driedubbel |
|---|---|
| Brandstof primaire verwarming | Pellets |
| Septische tank | Nee |
Perceel
| Overstromingsgevoelig | Geen |
|---|---|
| P-score | A |
| G-score | A |
| Totale oppervlakte (m²) | 678 |
| Bebouwde oppervlakte (m²) | 0 |
Vergunning
| Verkavelingsvergunning | Geen beschikbaar |
|---|
Uitrusting
| Investeringspand | Nee |
|---|---|
| Parking | Nee |
| Garage | Ja |
| Opslagruimte | Ja |
| Lift | Nee |
| Rioolaansluiting | Nee |
| Gasaansluiting | Nee |
| Wateraansluiting | Nee |
| Elektriciteitsaansluiting | Nee |
| Internetaansluiting | Nee |
| Telefoonaansluiting | Nee |
| Zonnepanelen | Nee |
| Zonneboiler | Nee |
| Alarm | Nee |
| Videofoon | Nee |
| Grondwaterput | Nee |
Een pand van
De woonmakers
De Woonmakers Win-win in vastgoed
Bij De Woonmakers staat ervaring centraal. Sinds onze oprichting in 2020 hebben we ons voortdurend ontwikkeld als toonaangevend bedrijf in de vastgoedsector. Gedurende deze periode hebben we waardevolle inzichten verzameld en ons vakmanschap verfijnd om onze klanten een ongeëvenaarde dienstverlening te bieden.
Onze missie is om de perfecte match te creëren tussen individuen en vastgoed, en dit streven we na door onze diepgaande kennis van de markt te combineren met een innovatieve benadering van klantinteractie. Door te luisteren naar uw woonvoorkeuren en -behoeften, zijn we in staat om op maat gemaakte oplossingen te presenteren die naadloos aansluiten op uw levensstijl.
De drijvende krachten achter De Woonmakers, Jan en Krisja, delen een passie voor vastgoed en een toewijding om de klanten te voorzien van een ongeëvenaarde ervaring. Met jarenlange expertise in verschillende facetten van de vastgoedmarkt streven zij ernaar om een service te bieden die verder gaat dan alleen transacties. “Onze klanten kunnen rekenen op een persoonlijke aanpak die gericht is op het creëren van langdurige relaties en het leveren van op maat gemaakte oplossingen die voldoen aan hun specifieke behoeften.”
LOOSTRAAT 69 HASSELT-2244
Leer meer over vastgoed
Nieuw
24 November 2025
Uitgezocht voor jouw gemeente: Hoeveel stijgt de waarde van je woning door een renovatie?
22 October 2025
Hoeveel kan ik lenen om een huis te kopen?
11 June 2025
Huis kopen met bouwovertreding? Dit moet je weten
11 May 2025



