RUIME OPEN BEBOUWING MET KANTOOR EN ADEMBENEMEND ZICHT IN HASSELT
€ 998.500
Een pand van De woonmakers
Overzicht
- 408 m² bewoonbaar
- 1575 m² grond
- 4 Slaapkamer(s)
- 3 Badkamer(s)
Overstromingsgevaar perceel
Beschrijving
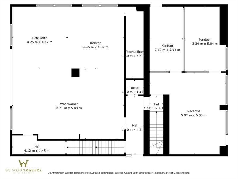
Op het gelijkvloers bevindt zich aan de voorzijde een volledig ingericht kantoor met meerdere afzonderlijke werkruimtes en een receptie.
Aan de achterzijde ontvouwt zich het woongedeelte met een open leefruimte die bestaat uit een stijlvolle keuken, een eetruimte en een gezellige woonkamer.
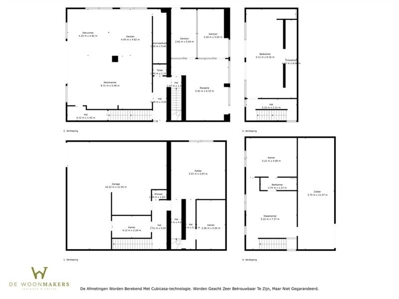
De eerste verdieping biedt alle comfort aan die je mag verwachten in een eigentijdse woning. Hier bevindt zich een prachtig master bedroom met open badkamer en een royale dressing.
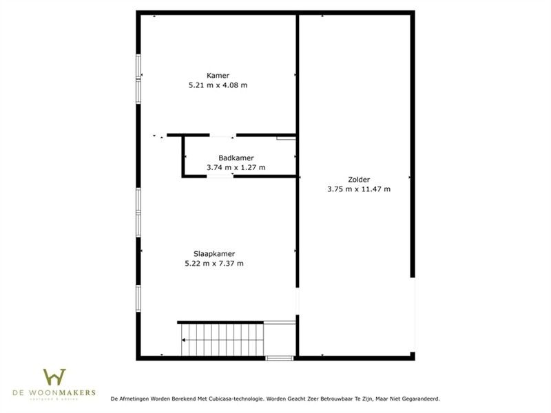
Op de tweede verdieping is de woning nog voorzien van 2 ruime slaapkamers met een gemeenschappelijke badkamer en een zolderruimte.
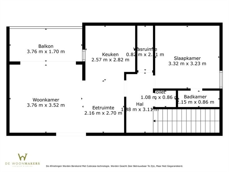
Groot pluspunt is het bijkomend appartement, dat eveneens op de eerste verdieping is ondergebracht. Dit appartement beschikt over een gezellige leefruimte met keuken, een aparte slaapkamer met badkamer, een wasruimte en een eigen balkon.
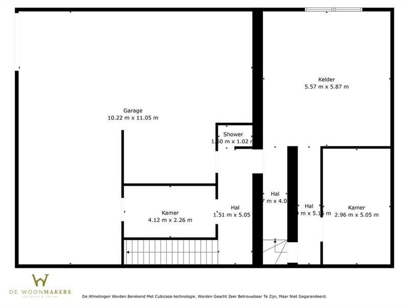
Onder de woning bevindt zich een ruime kelder die over de volledige oppervlakte van het huis loopt. Hier is eveneens voldoende ruimte voor het parkeren van meerdere wagens.
Bovendien bestaat de mogelijkheid om het achtergelegen weiland bij te kopen.
Contacteer ons op het nummer 011/98.88.98 of via info@dewoonmakers.be
Welkom op de Luikersteenweg 693, waar wonen en werken op harmonieuze wijze kunnen samenkomen. Deze open bebouwing, opgetrokken in 2014, combineert moderne architectuur, een royale oppervlakte van maar liefst 408m² bewoonbare ruimte en een prachtige ligging op een perceel van 15A75CA, met een open zicht op de achterliggende weilanden. Dankzij de flexibele indeling en de aanwezigheid van zowel een ruim kantoor als een apart appartement biedt deze woning mogelijkheden te over.
Op het gelijkvloers bevindt zich aan de voorzijde een volledig ingericht kantoor met meerdere afzonderlijke werkruimtes en een receptie. Dankzij de aparte ingang kan dit deel van de woning volledig als professionele werkplek gebruikt worden.
Aan de achterzijde ontvouwt zich het woongedeelte met een open leefruimte die bestaat uit een stijlvolle keuken, een eetruimte en een gezellige woonkamer. Een apart gastentoilet en een praktische berging vervolledigen dit niveau.
De eerste verdieping biedt alle comfort aan die je mag verwachten in een eigentijdse woning. Hier bevindt zich een prachtig master bedroom met open badkamer en een royale dressing. Ook vanuit deze kamer geniet je van het weide uitzicht.
Op de tweede verdieping is de woning nog voorzien van 2 ruime slaapkamers met een gemeenschappelijke badkamer en een zolderruimte, ideaal voor extra opbergruimte.
Groot pluspunt is het bijkomend appartement, dat eveneens op de eerste verdieping is ondergebracht.
Onder de woning bevindt zich een ruime kelder die over de volledige oppervlakte van het huis loopt.
Bovendien bestaat de mogelijkheid om het achtergelegen weiland bij te kopen, zodat je nog meer buitenruimte en privacy kan creëren.
Heeft dit knap geheel jouw interesse gewekt? Aarzel niet en contacteer ons op het nummer 011/98.88.98 of via info@dewoonmakers.be
De vermelde oppervlaktes zijn indicatief. De Woonmakers kan niet verantwoordelijk gesteld worden voor de juistheid van de door zijn verstrekte gegevens.
Energie
![]() |
- EPC Certificaat: 71022-G-2011/00927/CD/EP13430/A001/D01/SD001
- Energieverbruik: 90 kWh/m²/jaar
- E-peil: E0
- Verwarming: Gas
- Beglazing: Standaard dubbel
Op de kaart

Financieel
| Prijs | |
|---|---|
| Kadastraal inkomen (niet geïndexeerd) | € 2.540 |
Berekening kosten
Je aankoopkosten? Die heb je snel berekent via de knop hieronder.
Bijkomende info
Gebouw
| Bouwjaar | 2014 |
|---|---|
| Bewoonbaar (m²) | 408 |
| Verdieping | 0 |
| Badkamers | 3 |
| Slaapkamers | 4 |
| Verdiepingen | 0 |
| Garages | 0 |
| Parkeerplaatsen | 0 |
| Toiletten | 0 |
Faciliteiten
| Keuken uitrusting | Goed uitgerust |
|---|---|
| Beglazing | Standaard dubbel |
| Brandstof primaire verwarming | Gas |
| Septische tank | Nee |
Perceel
| Overstromingsgevoelig | Geen |
|---|---|
| P-score | D |
| G-score | A |
| Totale oppervlakte (m²) | 1575 |
| Bebouwde oppervlakte (m²) | 0 |
Vergunning
| Verkavelingsvergunning | Geen beschikbaar |
|---|
Uitrusting
| Investeringspand | Nee |
|---|---|
| Parking | Nee |
| Garage | Nee |
| Lift | Nee |
| Rioolaansluiting | Nee |
| Gasaansluiting | Nee |
| Wateraansluiting | Nee |
| Elektriciteitsaansluiting | Nee |
| Internetaansluiting | Nee |
| Telefoonaansluiting | Nee |
| Zonnepanelen | Nee |
| Zonneboiler | Nee |
| Alarm | Nee |
| Videofoon | Nee |
| Grondwaterput | Nee |
