Nieuw
Charmante, ruime woning (205m²) op toplocatie in Hasselt
€ 445.000
Een pand van Frère Vastgoed
Overzicht
- 205 m² bewoonbaar
- 645 m² grond
- 3 Slaapkamer(s)
- 1 Badkamer(s)
- 1 Garage(s)
Beschrijving
Welkom op de Nobellaan 1, 3500 Hasselt
Deze charmante woning ligt in een van de meest geliefde, groene wijken van Hasselt en biedt een woonoppervlakte van 205 m² exclusief garage op een perceel van 6a45ca. Dankzij de royale leefruimte, de lichtrijke keuken en de rustige ligging vlak bij natuur en invalswegen is dit een ideale thuis voor wie comfort, ruimte en rust zoekt.
Ontdek deze woning alvast via de virtuele rondleiding:
https://player.vimeo.com/video/1145561567
Troeven
Indeling
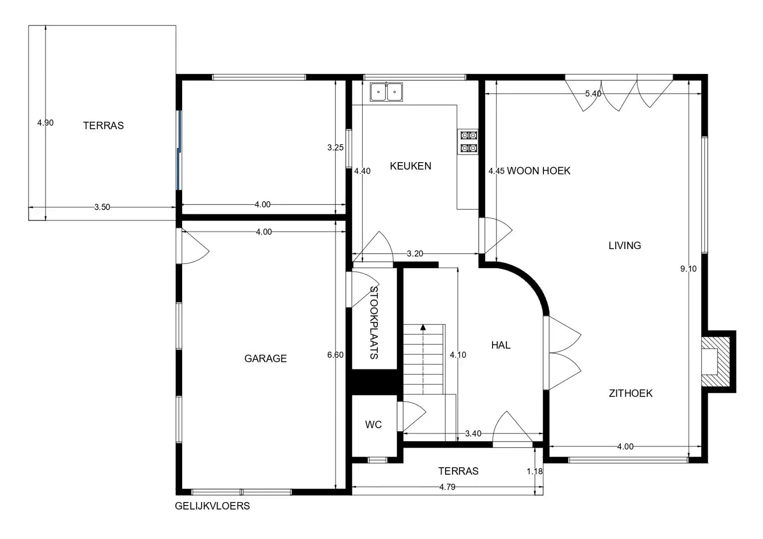
Gelijkvloers
Bij het binnenkomen word je ontvangen in een ruime hal. Vanuit deze inkomhal begeef je je naar de grote leefruimte, een open en lichtrijk geheel waar de woonkamer, keuken en eetkamer in elkaar overlopen. De grote raampartijen zorgen voor veel natuurlijk licht en geven een aangenaam zicht op de tuin.
Daarnaast is er op het gelijkvloers een garage met extra bergruimte, ideaal voor een auto, fietsen, tuinmateriaal of stock.
Verdieping
Op de bovenverdieping bevinden zich drie ruime slaapkamers. Daarnaast is er een bureau, ideaal voor thuiswerk of een hobbyruimte.
De badkamer is praktisch ingericht en centraal gelegen op de nachthal.
Documenten
De plannen, het EPC-verslag en het conformiteitsattest stookolietank kan u eenvoudig downloaden in bijlage.
Wenst u meer informatie of een bezoek ter plaatse?
Neem gerust contact met ons op via 089 391 555 of stuur een e-mail naar info@frerevastgoed.be.
* Opmetingen van de binnenmaten zijn indicatief en kunnen licht afwijken.
Deze charmante woning ligt in een van de meest geliefde, groene wijken van Hasselt en biedt een woonoppervlakte van 205 m² exclusief garage op een perceel van 6a45ca. Dankzij de royale leefruimte, de lichtrijke keuken en de rustige ligging vlak bij natuur en invalswegen is dit een ideale thuis voor wie comfort, ruimte en rust zoekt.
Ontdek deze woning alvast via de virtuele rondleiding:
https://player.vimeo.com/video/1145561567
Troeven
- 205 m² bewoonbare oppervlakte (excl. garage)
- Goede indeling met veel ruimte in de wijk ‘berkenveld’
- 3 slaapkamers (uitbreidbaar tot 4)
- Volledig geïsoleerd dak
- Geen renovatieverplichting
- Gelegen in een rustige en groene buurt
- Op wandelafstand van natuurgebied De Platwijers en Vlakbij De borggraaf en Bokrijk
- Topligging qua Mobiliteit naar invalswegen en Hasselt-centrum
- Op een boogscheut van het treinstation Kiewit , De lijn, Corda Campus en scholen
- Midden in het fietspaden netwerk Limburg
- Charmante uitstraling en een verzorgde staat
Indeling
Gelijkvloers
Bij het binnenkomen word je ontvangen in een ruime hal. Vanuit deze inkomhal begeef je je naar de grote leefruimte, een open en lichtrijk geheel waar de woonkamer, keuken en eetkamer in elkaar overlopen. De grote raampartijen zorgen voor veel natuurlijk licht en geven een aangenaam zicht op de tuin.
Daarnaast is er op het gelijkvloers een garage met extra bergruimte, ideaal voor een auto, fietsen, tuinmateriaal of stock.
Verdieping
Op de bovenverdieping bevinden zich drie ruime slaapkamers. Daarnaast is er een bureau, ideaal voor thuiswerk of een hobbyruimte.
De badkamer is praktisch ingericht en centraal gelegen op de nachthal.
Documenten
De plannen, het EPC-verslag en het conformiteitsattest stookolietank kan u eenvoudig downloaden in bijlage.
Wenst u meer informatie of een bezoek ter plaatse?
Neem gerust contact met ons op via 089 391 555 of stuur een e-mail naar info@frerevastgoed.be.
* Opmetingen van de binnenmaten zijn indicatief en kunnen licht afwijken.
Energie
![]() |
- EPC Certificaat: 20250606-0003617329-RES-1
- Energieverbruik: 366 kWh/m²/jaar
- E-peil: E0
- Beglazing: Standaard dubbel
Extra budget nodig voor je renovatie?
De overheid helpt je dit pand energetisch te renoveren! Hieronder zie je het premiebedrag dat je mogelijks van de overheid krijgt.
Het huidige EPC-label is:

Op de kaart

Financieel
| Prijs |
|---|
Berekening kosten
Je aankoopkosten? Die heb je snel berekent via de knop hieronder.
Bijkomende info
Gebouw
| Bouwjaar | 1972 |
|---|---|
| Staat | Op te frissen |
| Bewoonbaar (m²) | 205 |
| Verdieping | 1 |
| Badkamers | 1 |
| Slaapkamers | 3 |
| Verdiepingen | 0 |
| Garages | 1 |
| Parkeerplaatsen | 0 |
| Toiletten | 0 |
Faciliteiten
| Keuken uitrusting | Goed uitgerust |
|---|---|
| Beglazing | Standaard dubbel |
| Septische tank | Nee |
Perceel
| Overstromingsgevoelig | Geen |
|---|---|
| P-score | B |
| G-score | A |
| Totale oppervlakte (m²) | 645 |
| Bebouwde oppervlakte (m²) | 0 |
Vergunning
| Verkavelingsvergunning | Geen beschikbaar |
|---|
Uitrusting
| Investeringspand | Nee |
|---|---|
| Parking | Nee |
| Garage | Ja |
| Thuiskantoor | Ja |
| Opslagruimte | Ja |
| Lift | Nee |
| Rioolaansluiting | Ja |
| Gasaansluiting | Nee |
| Wateraansluiting | Ja |
| Elektriciteitsaansluiting | Ja |
| Internetaansluiting | Ja |
| Telefoonaansluiting | Ja |
| Zonnepanelen | Nee |
| Zonneboiler | Nee |
| Alarm | Nee |
| Videofoon | Nee |
| Grondwaterput | Nee |
Een pand van
Frère Vastgoed
Welkom bij Frère Vastgoed.
Frère Vastgoed is uw partner bij de verkoop, verhuur of aankoop van elk type vastgoed.
Het verkopen, verhuren of aankopen van vastgoed is een ingewikkeld proces.
Frère Vastgoed helpt u graag met een resultaatgerichte en persoonlijke begeleiding bij één van de belangrijkste transacties in uw leven.
Nobellaan 1, 3500 HasseltC
Leer meer over vastgoed
24 November 2025
Uitgezocht voor jouw gemeente: Hoeveel stijgt de waarde van je woning door een renovatie?
22 October 2025
Hoeveel kan ik lenen om een huis te kopen?
11 June 2025
Huis kopen met bouwovertreding? Dit moet je weten
11 May 2025


