KNUSSE GEZINSWONING MET GEZELLIGE STADSTUIN IN HASSELT
€ 299.000
Een pand van De woonmakers
Overzicht
- 163 m² bewoonbaar
- 144 m² grond
- 4 Slaapkamer(s)
- 1 Badkamer(s)
Beschrijving
Ook zijn de omliggende steden vlot bereikbaar.
Deze gezinswoning is gelegen op een onderhoudsvriendelijk perceel van 1A44CA en telt een bewoonbare oppervlakte van 163m².
U komt hier binnen in de inkomhal die uitgeeft op de ruime leefruimte. Deze kan perfect onderverdeeld worden in een zit- en eetgedeelte.
Aansluitend komen we in de ruime open keuken. Hier is eveneens voldoende plaats voor het plaatsen van een eettafel om deze om te vormen tot echte leefkeuken.
Tot slot kunnen we op het gelijkvloers nog een apart toilet en de badkamer terugvinden. Deze laatste is voorzien van een douche en een badkamermeubel met dubbele lavabo.
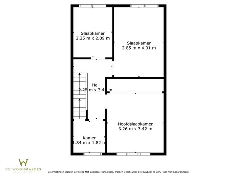
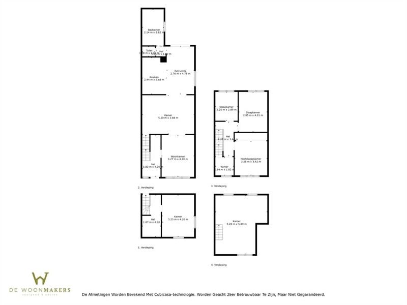
Op het verdiep kunnen we twee ruime slaapkamers en een kleinere slaapkamer terugvinden. Bovendien treffen we hier ook nog een berging aan.
Via een vaste trap bereikt men de tweede verdieping. Hier kan men de master bedroom terugvinden.
Grote troef aan deze woning is de ruime stadstuin.
Bijkomend pluspunt is dat de woning voorzien is van een ruime kelder. IDeaal voor extra opbergruimte, maar eventueel ook hobbykamer.
Neem dan contact met ons op het nummer 011/98.88.98 of via info@dewoonmakers.be
In Hasselt vinden we langs de Paters Adonsstraat, ter hoogte van nummer 9 deze op te frissen gezinswoning terug. De woning is gelegen op een centrale ligging nabij de Grote Ring en op een aantal minuten van het centrum van Hasselt. Daar treffen we tevens ook alle nodige faciliteiten aan.
Ook zijn de omliggende steden vlot bereikbaar.
Deze gezinswoning is gelegen op een onderhoudsvriendelijk perceel van 1A44CA en telt een bewoonbare oppervlakte van 163m².
U komt hier binnen in de inkomhal die uitgeeft op de ruime leefruimte. Deze kan perfect onderverdeeld worden in een zit- en eetgedeelte.
Aansluitend komen we in de ruime open keuken. Hier is eveneens voldoende plaats voor het plaatsen van een eettafel om deze om te vormen tot echte leefkeuken.
Tot slot kunnen we op het gelijkvloers nog een apart toilet en de badkamer terugvinden. Deze laatste is voorzien van een douche en een badkamermeubel met dubbele lavabo.
Op het verdiep kunnen we twee ruime slaapkamers en een kleinere slaapkamer terugvinden. Bovendien treffen we hier ook nog een berging aan.
Via een vaste trap bereikt men de tweede verdieping. Hier kan men de master bedroom terugvinden.
Grote troef aan deze woning is de ruime stadstuin. Ideaal voor een frisse neus op te halen of om lekker te genieten na een drukke werkdag.
Bijkomend pluspunt is dat de woning voorzien is van een ruime kelder. IDeaal voor extra opbergruimte, maar eventueel ook hobbykamer.
Hebben wij uw interesse kunnen wekken voor deze woning met een gezellige stadstuin? Neem dan contact met ons op het nummer 011/98.88.98 of via info@dewoonmakers.be
De vermelde oppervlaktes zijn indicatief. De Woonmakers kan niet verantwoordelijk gesteld worden voor de juistheid van de door zijn verstrekte gegevens.
Energie
![]() |
- EPC Certificaat: 20250519-0003605279-RES-1
- Energieverbruik: 338 kWh/m²/jaar
- E-peil: E0
- Verwarming: Gas
- Beglazing: Hoog efficient driedubbel
Extra budget nodig voor je renovatie?

Op de kaart

Financieel
| Prijs | |
|---|---|
| Kadastraal inkomen (niet geïndexeerd) | € 733 |
Berekening kosten
Je aankoopkosten? Die heb je snel berekent via de knop hieronder.
Bijkomende info
Gebouw
| Bouwjaar | 1950 |
|---|---|
| Staat | Op te frissen |
| Bouwcertificaat | Nee |
| Bewoonbaar (m²) | 163 |
| Verdieping | 0 |
| Badkamers | 1 |
| Slaapkamers | 4 |
| Verdiepingen | 0 |
| Garages | 0 |
| Parkeerplaatsen | 0 |
| Toiletten | 0 |
Faciliteiten
| Keuken uitrusting | Standaard |
|---|---|
| Beglazing | Hoog efficient driedubbel |
| Brandstof primaire verwarming | Gas |
| Septische tank | Nee |
Perceel
| Overstromingsgevoelig | Geen |
|---|---|
| P-score | A |
| G-score | A |
| Totale oppervlakte (m²) | 144 |
| Bebouwde oppervlakte (m²) | 0 |
Vergunning
| Verkavelingsvergunning | Geen beschikbaar |
|---|
Uitrusting
| Investeringspand | Nee |
|---|---|
| Parking | Nee |
| Garage | Nee |
| Lift | Nee |
| Rioolaansluiting | Nee |
| Gasaansluiting | Nee |
| Wateraansluiting | Nee |
| Elektriciteitsaansluiting | Nee |
| Internetaansluiting | Nee |
| Telefoonaansluiting | Nee |
| Zonnepanelen | Nee |
| Zonneboiler | Nee |
| Alarm | Nee |
| Videofoon | Nee |
| Grondwaterput | Nee |


