Virtual tour
Nieuwbouw KMO units op bedrijvenpark C-Site te Hasselt
€ 320.750
Een pand van CEUSTERS
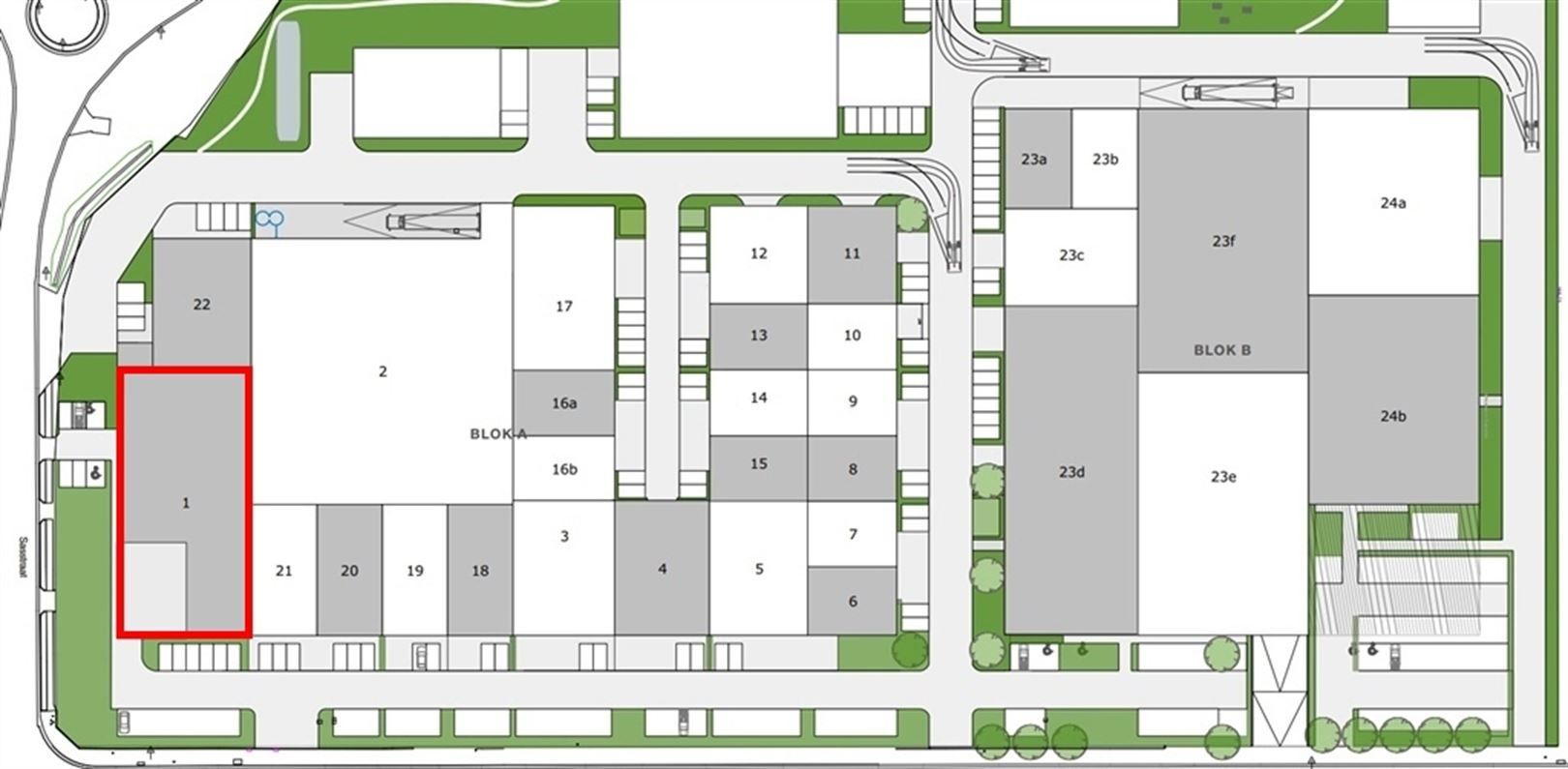
Overzicht
- 226 m² bewoonbaar
Overstromingsgevaar perceel
Beschrijving
- Brandklasse Klasse C cfr. Basisnorm brandpreventie voor industriële gebouwen
- EPB K-peil 40 voor loodsen + max. U-waarden materialen
- Buitengevels Een zichtbare staalstructuur ingevuld met geïsoleerde en gelakte aluminium sandwichpanelen met 100 mm PUR isolatie in combinatie met invulmetselwerk met 100 mm PUR isolatie
- Lichtstraten Lichtgebogen lichtstraten in meerwandig polycarbonaat met geïntegreerde rook- en warmteafvoer
- Dak Geprofileerde staalplaten, PIR isolatie, PVC dakdichting
- Poorten Elektrische geïsoleerde sectionaalpoorten (breedte 4 m, hoogte 5m)
- Wanden Scheidingswanden tussen de units in betonpanelen/cellenbetonpanelen
- Nutsleidingen Alle individuele nutsaansluitingen zijn inbegrepen
- Riolering Afvoer voor aansluiting van fecaal en huishoudelijk afvalwater + regenwaterputten
- Vloer Gepolierde betonvloer met vloerbelasting van 1 ton/m² in de loodsen en toonzalen
- Constructie Gebouw A: Constructie uit beton, vrije hoogte van min. 6 m
Gebouw B: Constructie uit staal, vrije hoogte van min. 6 m
- Buitenschrijnwerk Aluminium buitenschrijnwerk met thermisch onderbroken profielen en dubbele beglazing (K-waarde 1,1)
- Omgeving Parkeerplaatsen | Gemeenschappelijke groenzone | Totem met brievenbussen | Waterbuffering | Mogelijkheid tot elektrische laadpalen
-Lastenboek: op aanvraag-
-Plannen: op aanvraag-
-Combinatie van units mogelijk-
Energie
- E-peil: E0
- Beglazing: Onbekend
Op de kaart

Financieel
| Prijs | |
|---|---|
| Kadastraal inkomen (niet geïndexeerd) | € 0 |
| Kadastraal inkomen (geïndexeerd) | € 0 |
Berekening kosten
Je aankoopkosten? Die heb je snel berekent via de knop hieronder.
Bijkomende info
Gebouw
| Bouwcertificaat | Nee |
|---|---|
| Bewoonbaar (m²) | 226 |
| Verdieping | 0 |
| Badkamers | 0 |
| Slaapkamers | 0 |
| Verdiepingen | 0 |
| Garages | 0 |
| Parkeerplaatsen | 0 |
| Doucheruimtes | 0 |
| Toiletten | 0 |
Faciliteiten
| Elektrisch keuringsattest | Nee |
|---|
Perceel
| Overstromingsgevoelig | Geen |
|---|---|
| P-score | D |
| G-score | C |
| Voorkeurrecht | Ja |
| Bebouwde oppervlakte (m²) | 0 |
| Tuin oppervlakte (m²) | 0 |
| Oppervlakte terras (m²) | 0 |
Vergunning
| Vergunning | Vergunning beschikbaar |
|---|
Uitrusting
| Investeringspand | Nee |
|---|---|
| Geschikt voor praktijk | Nee |
| Parking | Nee |
| Garage | Nee |
| Thuiskantoor | Nee |
| Kelder | Nee |
| Zolder | Nee |
| Tuin | Nee |
| Terras | Nee |
| Lift | Nee |
| Rioolaansluiting | Ja |
| Gasaansluiting | Ja |
| Wateraansluiting | Ja |
| Elektriciteitsaansluiting | Ja |
| TV aansluiting | Nee |
| Internetaansluiting | Nee |
| Telefoonaansluiting | Ja |
Appartementsblok
| Lift | Nee |
|---|
Een pand van
CEUSTERS
CEUSTERS
Onze experts in property management en vastgoedadvies stellen een kwalitatieve dienstverlening voorop. Creatief en flexibel gaat ons team op zoek naar kansen en oplossingen voor elke klant. Telkens een stapje verder. Naast onze kantoren in Antwerpen, Gent, Brussel, Hasselt en Rotterdam (Nederland), opereert CEUSTERS vanuit zes andere vestigingen verspreid over heel België. In deze snel veranderende wereld staat ons sterk inzicht in de lokale markt garant voor continuïteit.
C-site Futurn
Leer meer over vastgoed
05 November 2024
Bedrijfsvastgoed in transitie: ontdek de toekomst van werkplekken
16 October 2024
Opbrengsteigendom: een slim pad naar passief inkomen en vermogensgroei
09 September 2024
Tijdelijk vastgoed: flexibele oplossingen voor een dynamische markt
12 August 2024