RE|CORE kantoorgebouw met zichtlocatie Hasselt
€ 1.539.449.984
Een pand van CEUSTERS
Jouw zoektocht
Overzicht
- 622 m² bewoonbaar
Beschrijving
Recore site wordt herontwikkelt tot een duurzame bedrijvencampus. De herontwikkeling gaat gepaard met een nieuwe naam voor de site, die net zo future proof is als de site zelf: RE|CORE
Met als doelstelling één van de meest duurzame — misschien wel dé duurzaamste — bedrijvencampussen van Vlaanderen realiseren. Het nieuwe uithangbord voor de site, RE|CORE, staat voor de terugkeer naar de kern: een duurzame bedrijfseconomische context creëren die toelaat rendabel te zijn én die de gezondheid van mens en milieu voorop plaatst.
Futurn en Mathieu Gijbels (her)ontwikkelen de voormalige Recorsite in Hasselt tot een duurzame bedrijvencampus. De herontwikkeling gaat gepaard met een nieuwe naam voor de site, die net zo future proof is als de site zelf: RE|CORE
Futurn en Mathieu Gijbels hebben hoge ambities voor de Recorsite: één van de meest duurzame misschien wel dé duurzaamste bedrijvencampussen van Vlaanderen realiseren. Dat doen we samen met een aantal partners. Architectencollectief UAU Collectiv, ook verantwoordelijk voor het Hasseltse Stadhuis, neemt plaats aan de tekentafel. Daarnaast werken we intensief samen met landschapsarchitect Studio Basta en Enerdo, een studiebureau voor energie en duurzaamheid.
Het nieuwe uithangbord voor de site, RE|CORE, staat voor de terugkeer naar de kern: een duurzame bedrijfseconomische context creëren die toelaat rendabel te zijn én die de gezondheid van mens en milieu voorop plaatst.
De reconversie van het iconische kantoorgebouw is volop aan de gang. Futurn en Mathieu Gijbels zijn dan ook klaar voor de commercialisatie van de vijf beschikbare verdiepingen.
We doopten het gebouw 'A1: the Office'. Elke verdieping van het kantoorgebouw wordt als doordacht, duurzaam geheel te koop aangeboden. Daarom werd de binnenafwerking ook opgenomen in het totaalconcept.
De betonnen constructie van het gebouw is dermate in het collectieve geheugen gegrift, dat het vanzelfsprekend was om de kwalitatieve structuur te behouden en in zijn oorspronkelijke glorie te herstellen. Met toepassing van hedendaagse technieken (isolatie, aansluiting op gemeenschappelijk warmtenet, klimaatplafonds, etc.) slagen we erin een bijna-energieneutraal gebouw (BEN) te realiseren.
Ook de neon letters zullen worden teruggebracht, desalniettemin in een nieuw jasje.
Vraagprijs excl. kosten
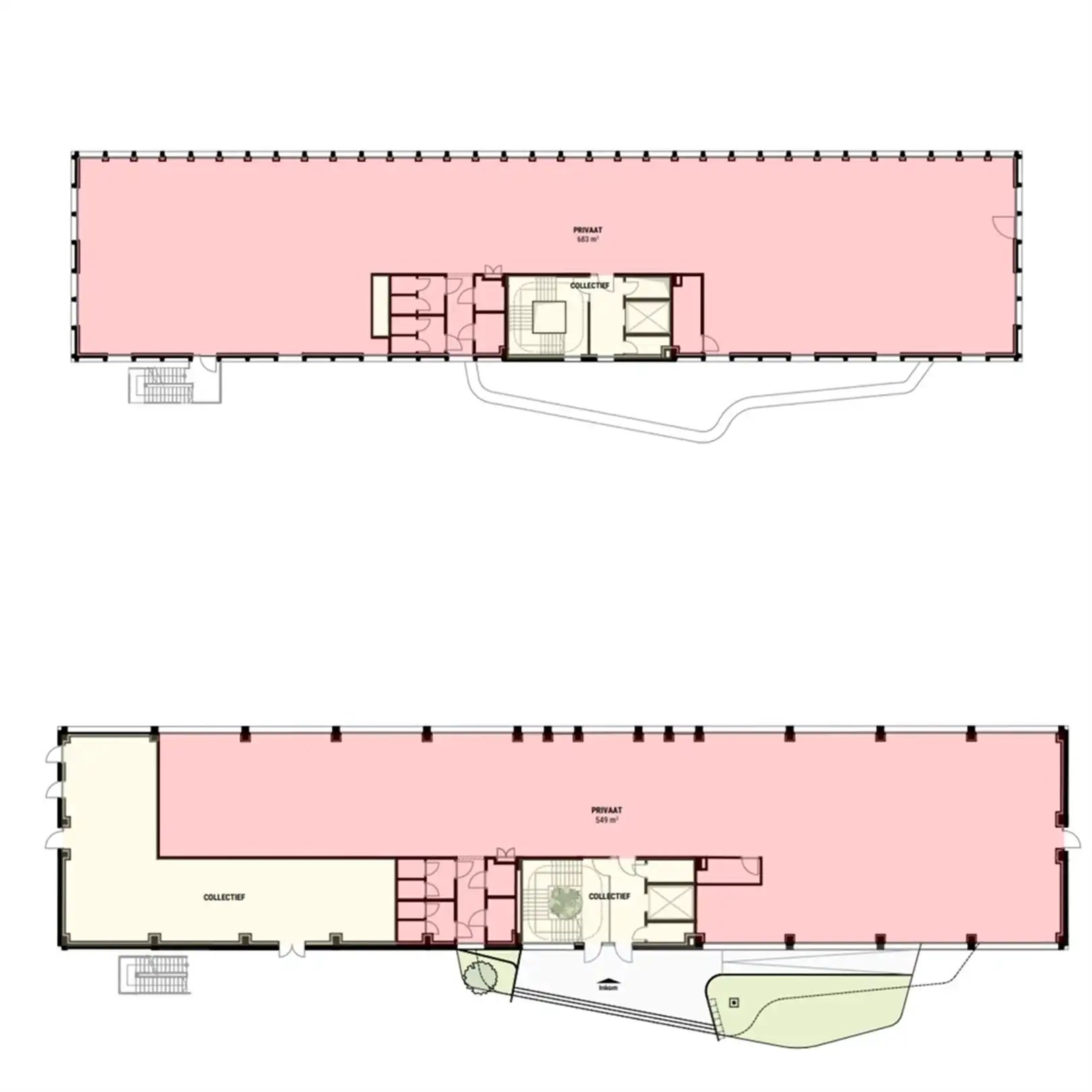
Het is een combinatie van kantoren, kmo-units, experience ruimte, opslag, ateliers en sport.
Er zijn kantoren te koop vanaf 622 m².
Deze oppervlaktes zijn bruto oppervlaktes, exclusief collectieve delen zoals circulatie en technieken. Collectieve delen worden pro rata verdeeld.
Energie
- E-peil: E0
- Beglazing: Onbekend
Op de kaart

Financieel
| Prijs | |
|---|---|
| Kadastraal inkomen (niet geïndexeerd) | € 0 |
| Kadastraal inkomen (geïndexeerd) | € 0 |
Berekening kosten
Je aankoopkosten? Die heb je snel berekend via de knop hieronder.
Bijkomende info
Gebouw
| Bouwcertificaat | Ja |
|---|---|
| Bewoonbaar (m²) | 622 |
| Verdieping | 0 |
| Badkamers | 0 |
| Slaapkamers | 0 |
| Verdiepingen | 0 |
| Garages | 0 |
| Parkeerplaatsen | 0 |
| Doucheruimtes | 0 |
| Toiletten | 0 |
Faciliteiten
| Elektrisch keuringsattest | Ja |
|---|
Perceel
| Overstromingsgevoelig | Geen |
|---|---|
| Voorkeurrecht | Nee |
| Bebouwde oppervlakte (m²) | 0 |
| Tuin oppervlakte (m²) | 0 |
| Oppervlakte terras (m²) | 0 |
Vergunning
| Vergunning | Vergunning beschikbaar |
|---|---|
| Type gebied | Stedelijk |
Uitrusting
| Investeringspand | Nee |
|---|---|
| Geschikt voor praktijk | Nee |
| Parking | Nee |
| Garage | Nee |
| Thuiskantoor | Nee |
| Kelder | Nee |
| Zolder | Nee |
| Tuin | Nee |
| Terras | Nee |
| Lift | Nee |
| Rioolaansluiting | Ja |
| Gasaansluiting | Ja |
| Wateraansluiting | Ja |
| Elektriciteitsaansluiting | Ja |
| TV aansluiting | Ja |
| Internetaansluiting | Ja |
| Telefoonaansluiting | Ja |
Appartementsblok
| Naam residentie | RE|CORE |
|---|---|
| Lift | Nee |