Nieuw 
Bouwgrond met bouwvergunnning
 € 265.000  
Een pand van Vastgoed Minnaert
Overzicht
Beschrijving
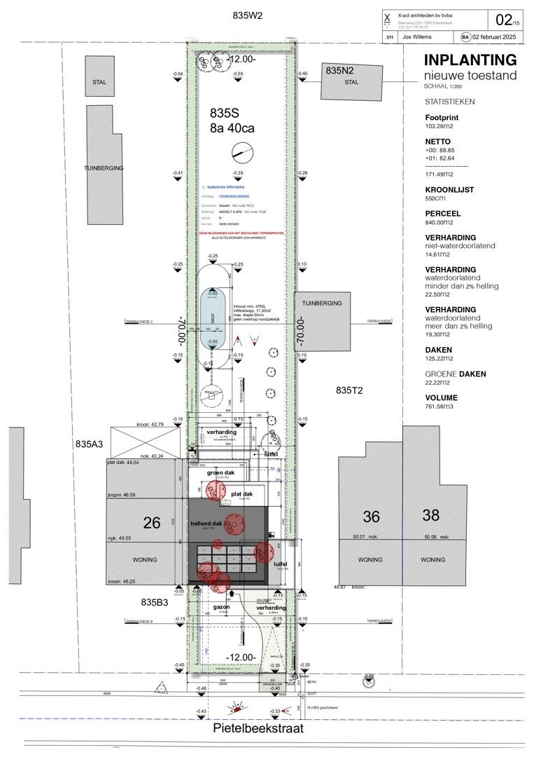
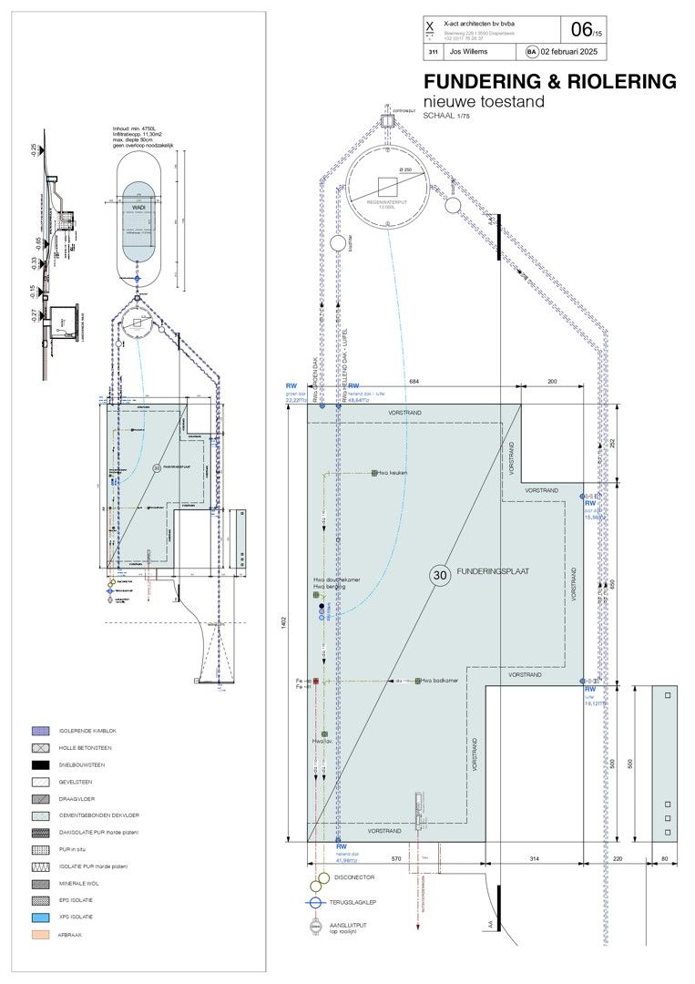
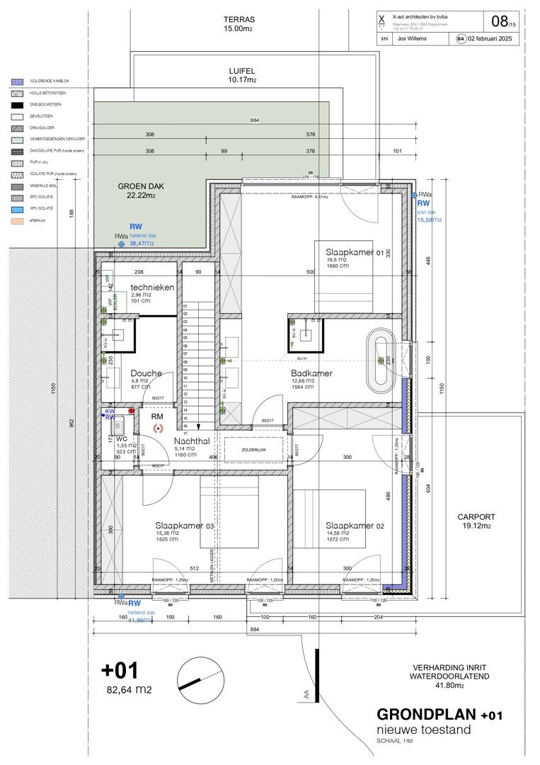
Bouwgrond met bouwvergunning voor een halfopen bebouwing , eengezinswoning met architecturale plannen. Startklaar maar geen verplichting van de architect.Ook een romantischere versie van de goedgekeurde plannen beschikbaar.
Energie
- E-peil: E0
- Beglazing: Onbekend
Op de kaart

Financieel
| Prijs | 
|---|
Berekening kosten
Je aankoopkosten? Die heb je snel berekent via de knop hieronder.
Bijkomende info
Perceel
| Overstromingsgevoelig | Geen | 
|---|---|
| P-score | B | 
Vergunning
| Verkavelingsvergunning | Geen beschikbaar | 
|---|
Uitrusting
| Investeringspand | Nee | 
|---|---|
| Rioolaansluiting | Nee | 
| Gasaansluiting | Nee | 
| Wateraansluiting | Nee | 
| Elektriciteitsaansluiting | Nee | 
| Internetaansluiting | Nee | 
| Telefoonaansluiting | Nee | 
Een pand van
Vastgoed Minnaert
 Vastgoed Minnaert opent deuren voor jou 
 Alles begint bij een eerste babbel. We staan voor een eerlijke en open communicatie. Alle kennis hebben wij in huis om jou te begeleiden van A tot Z: administratief, juridisch en fiscaal. 
We plaatsen het hart en de ziel van jouw woning in de kijker om zo de geschikte koper/ huurder te vinden.
Én dit alles samen met jou. Stap met ons mee in vastgoedland want zowel jij als jouw eigendom verdienen de beste aanpak! 
 
 Pietelbeekstraat Bouwgrond 
Leer meer over vastgoed
 Nieuw 
 22 October 2025 
Hoeveel kan ik lenen om een huis te kopen?
 11 June 2025 
Huis kopen met bouwovertreding? Dit moet je weten
 11 May 2025 
Renoveren? Vraag je Mijn VerbouwPremie aan
 22 April 2025