Investeringskans mét vaste basisopbrengst én uitbreidingspotentieel
€ 449.700
Een pand van Immo Diest
Overzicht
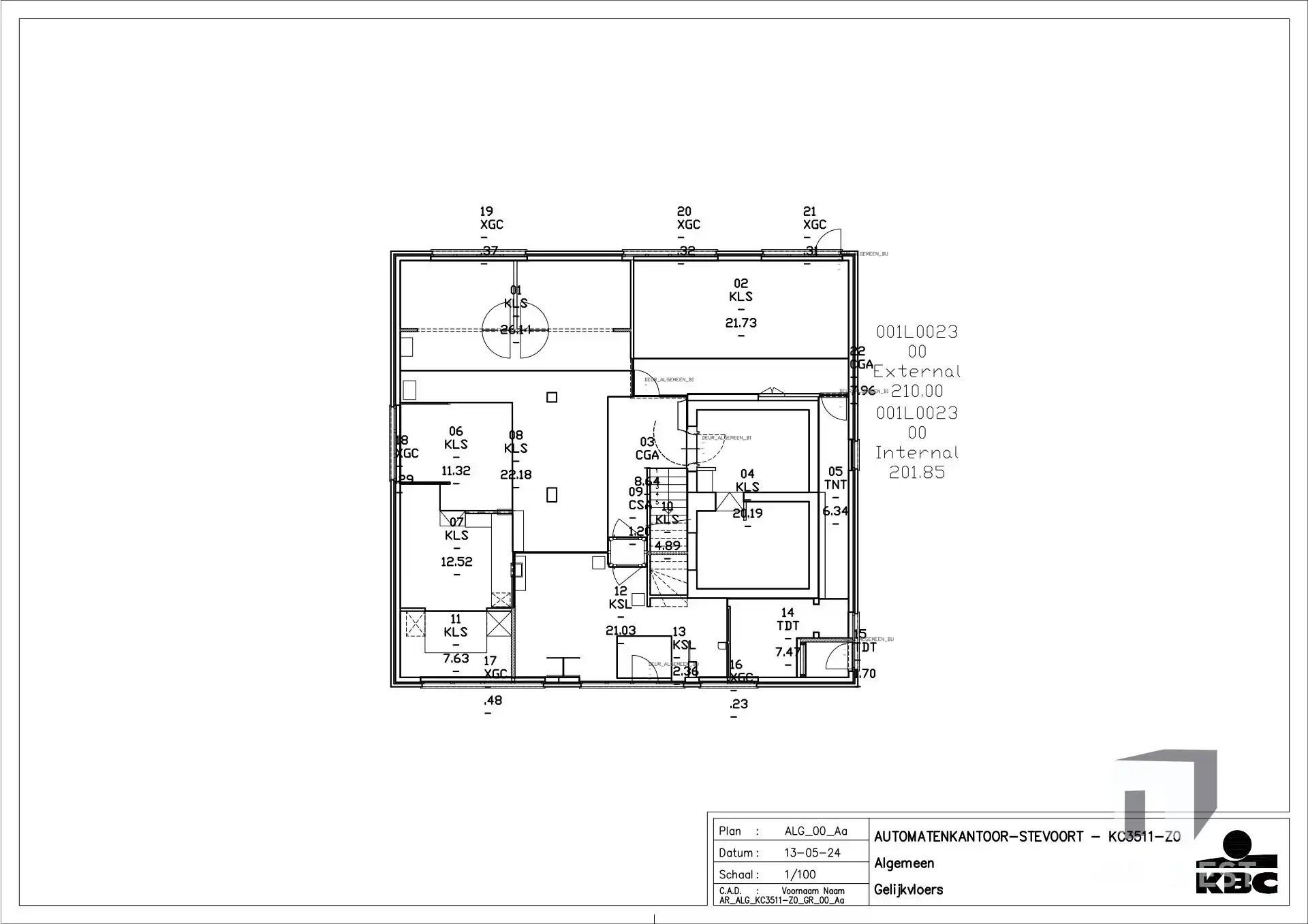
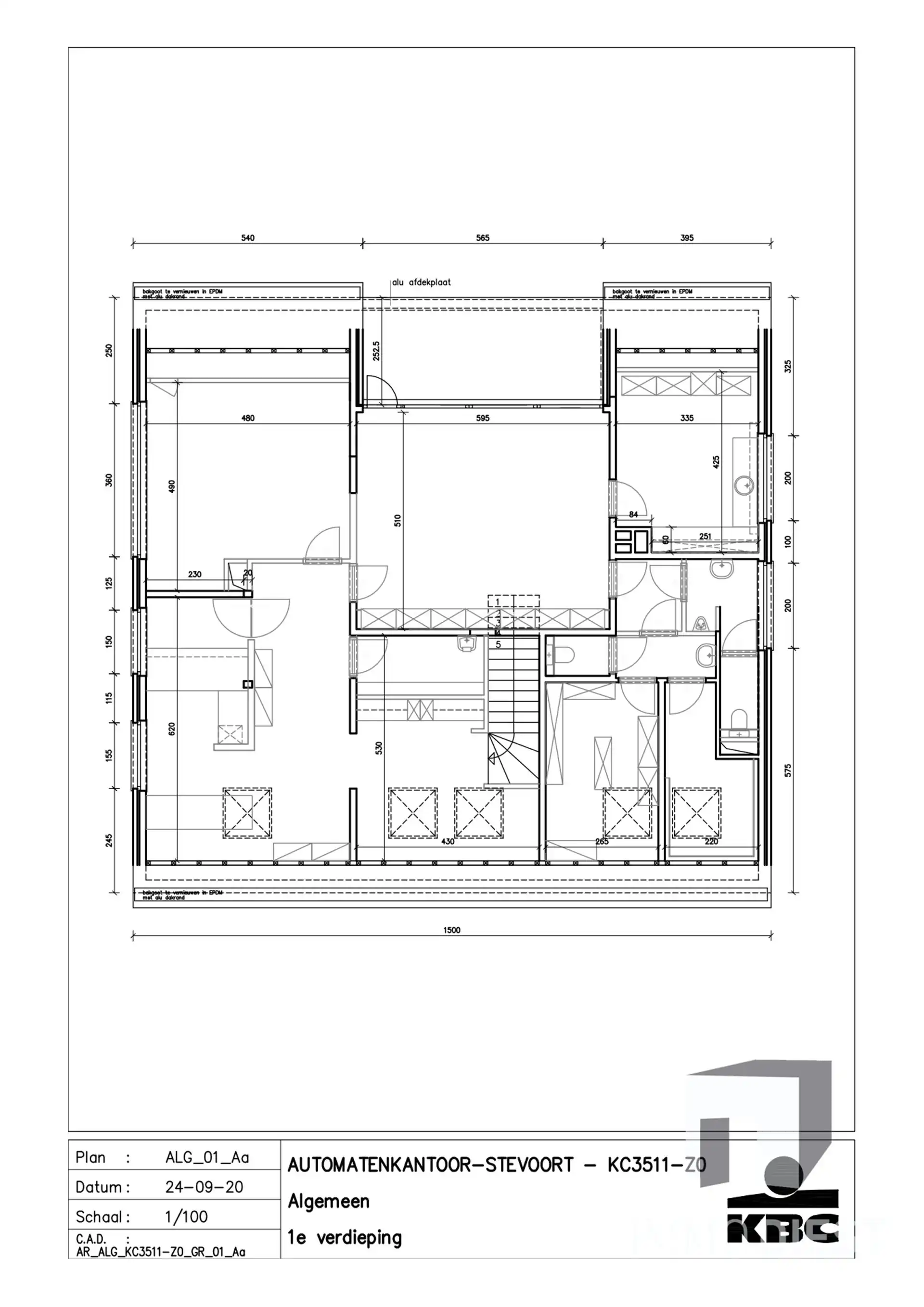
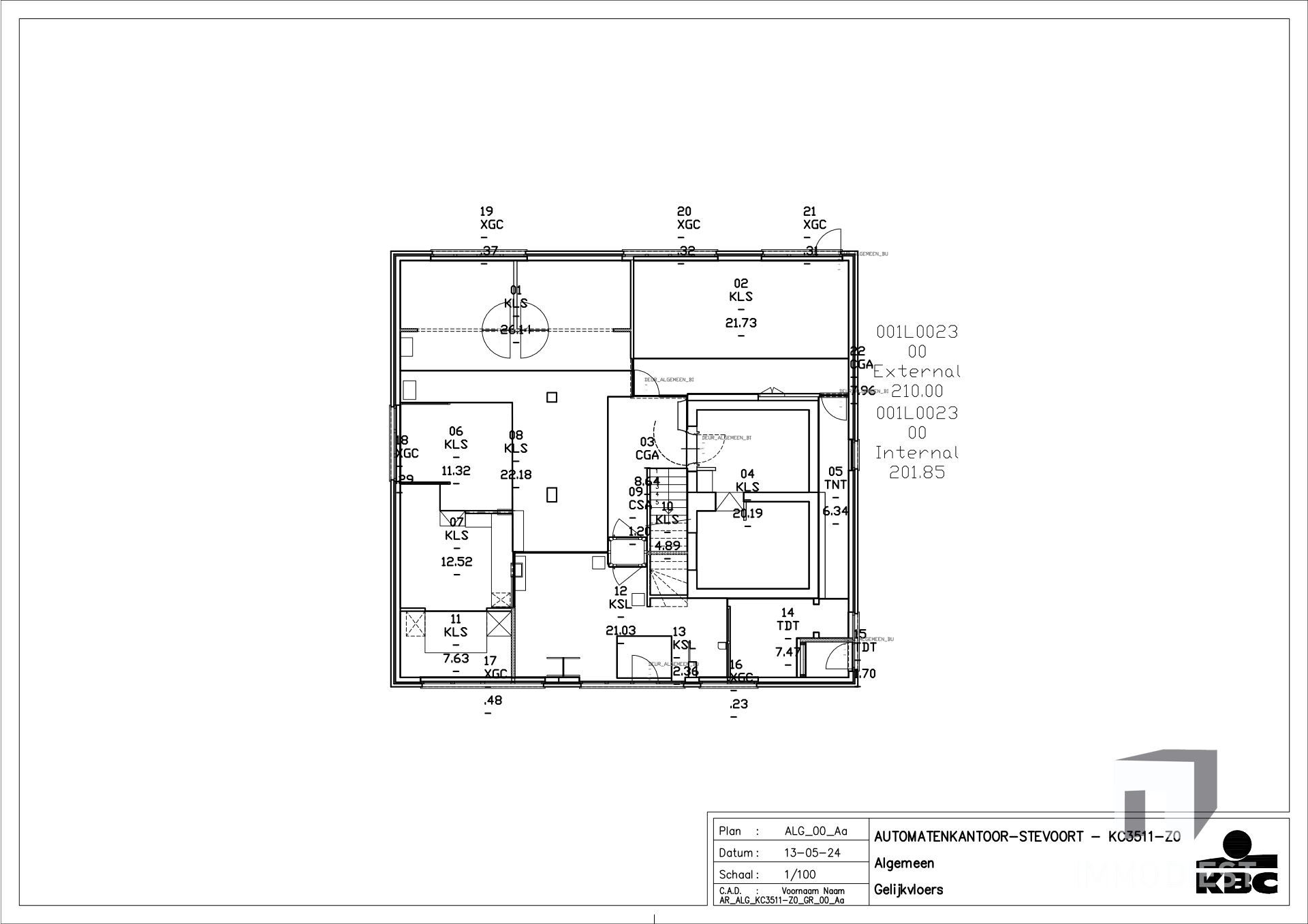
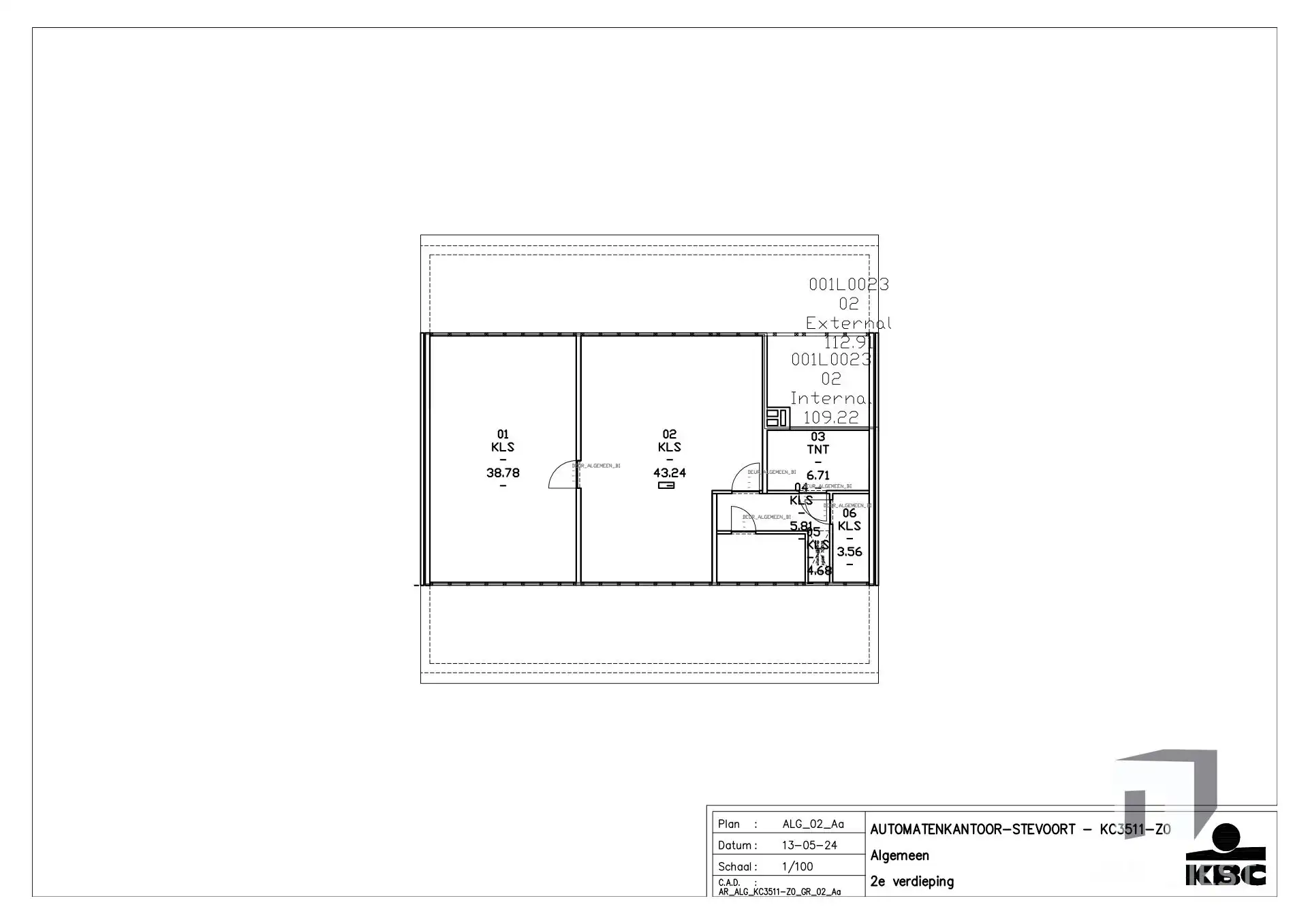
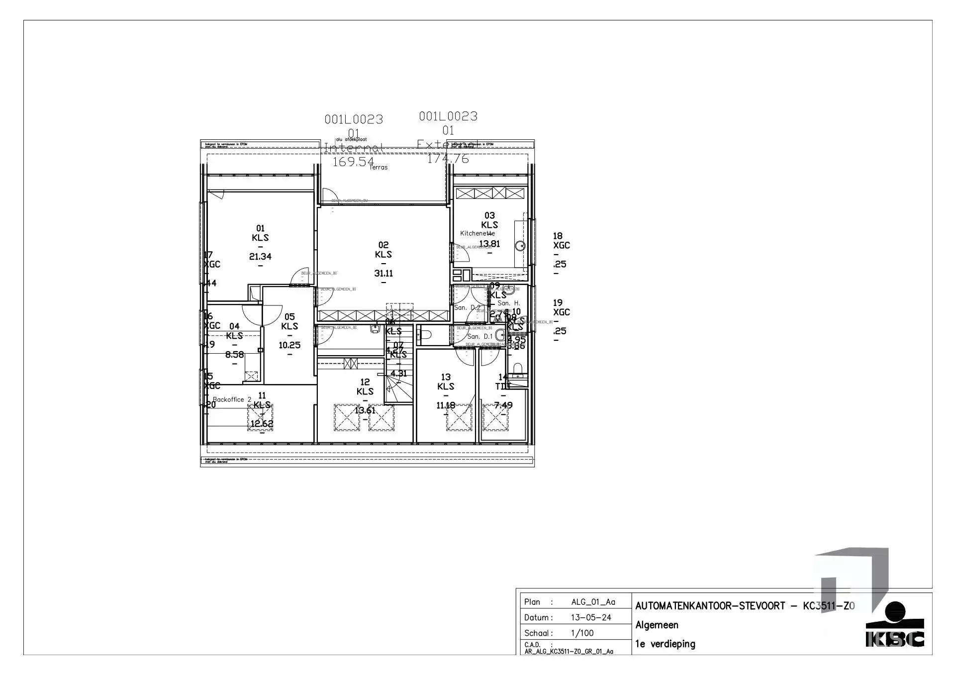
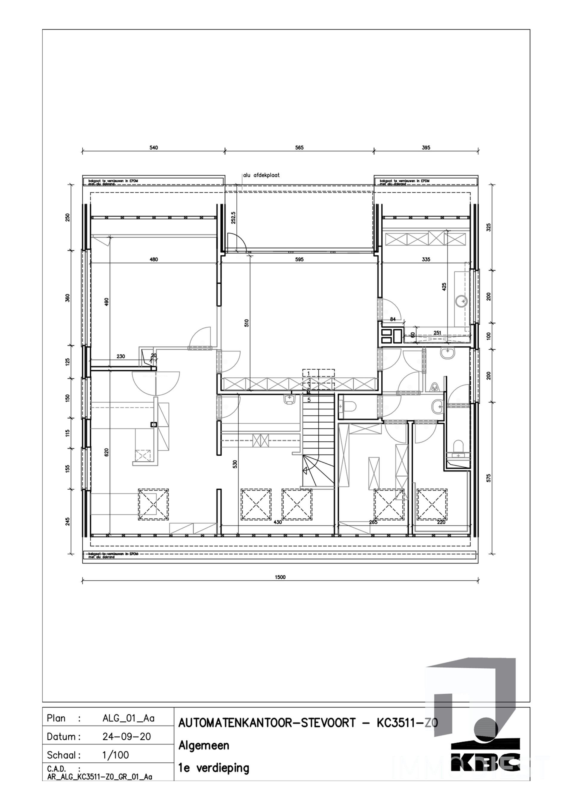
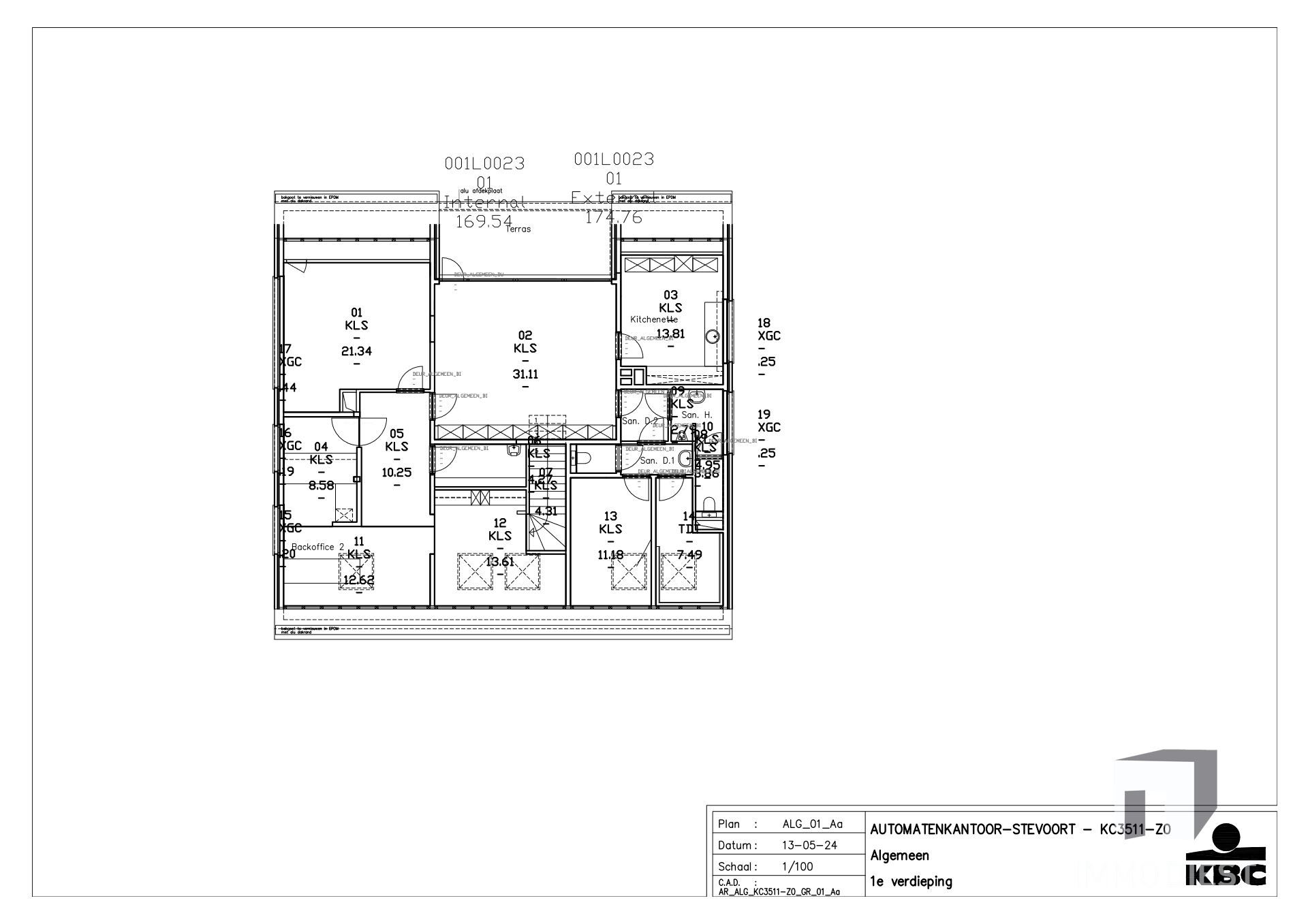
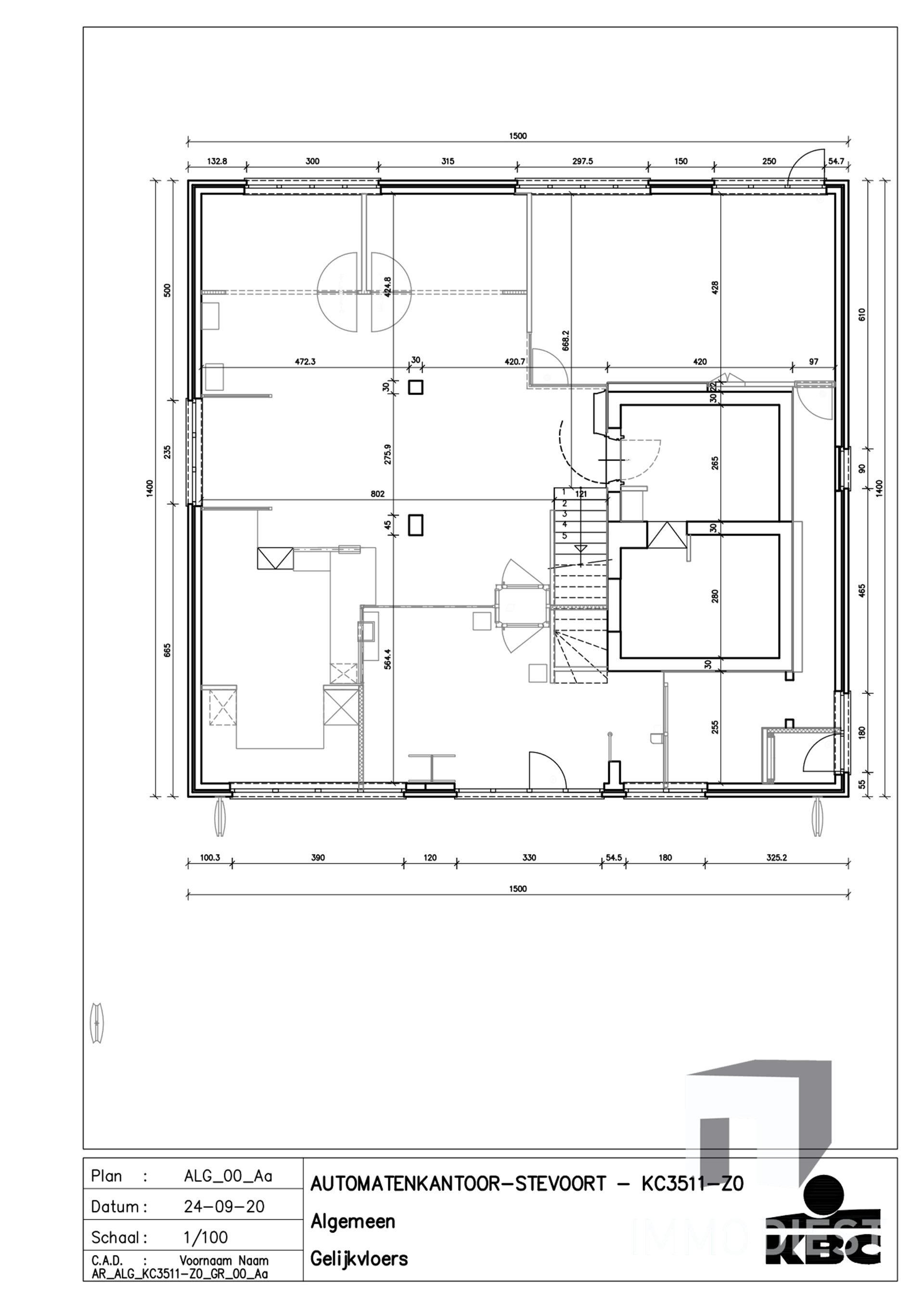
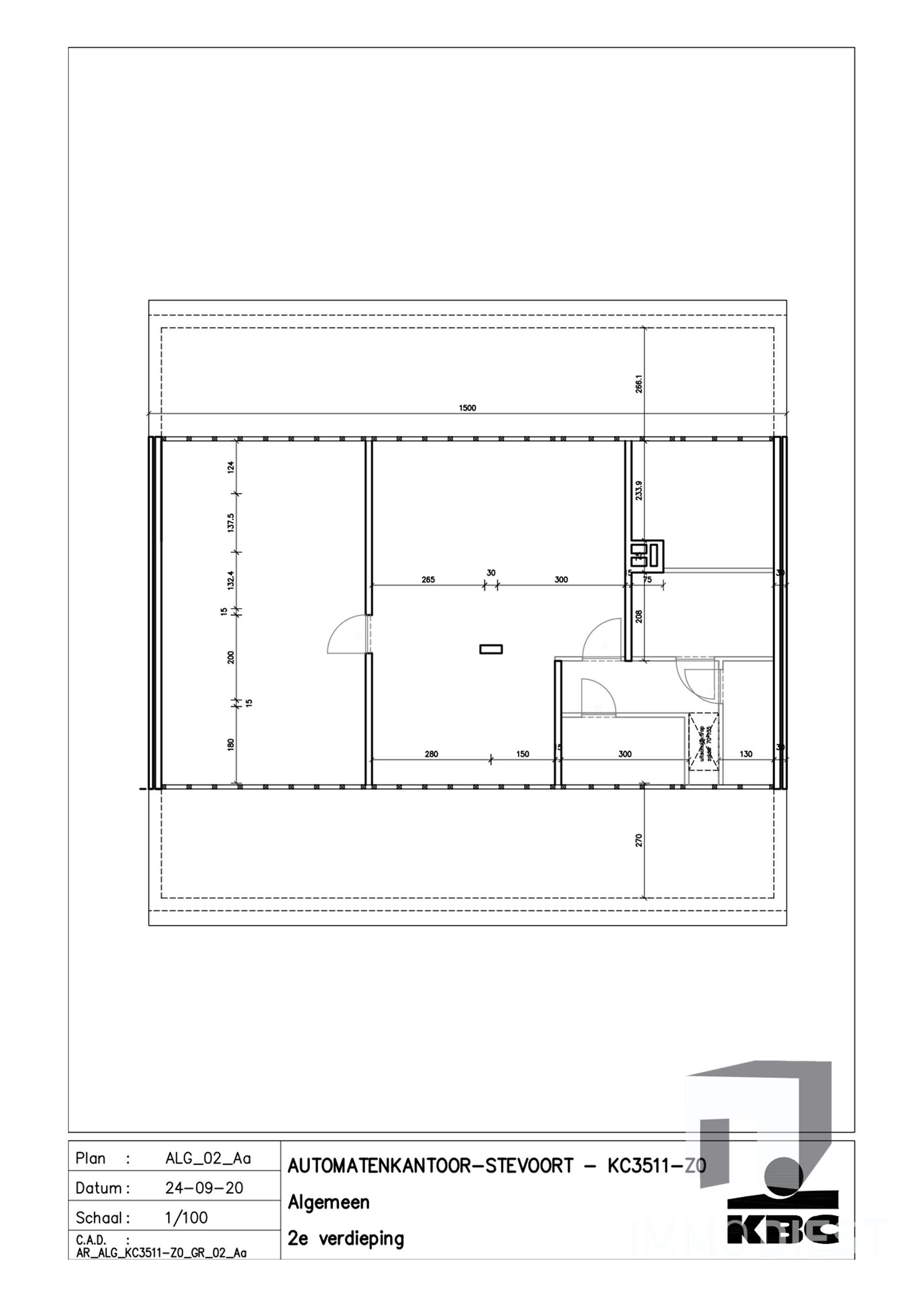
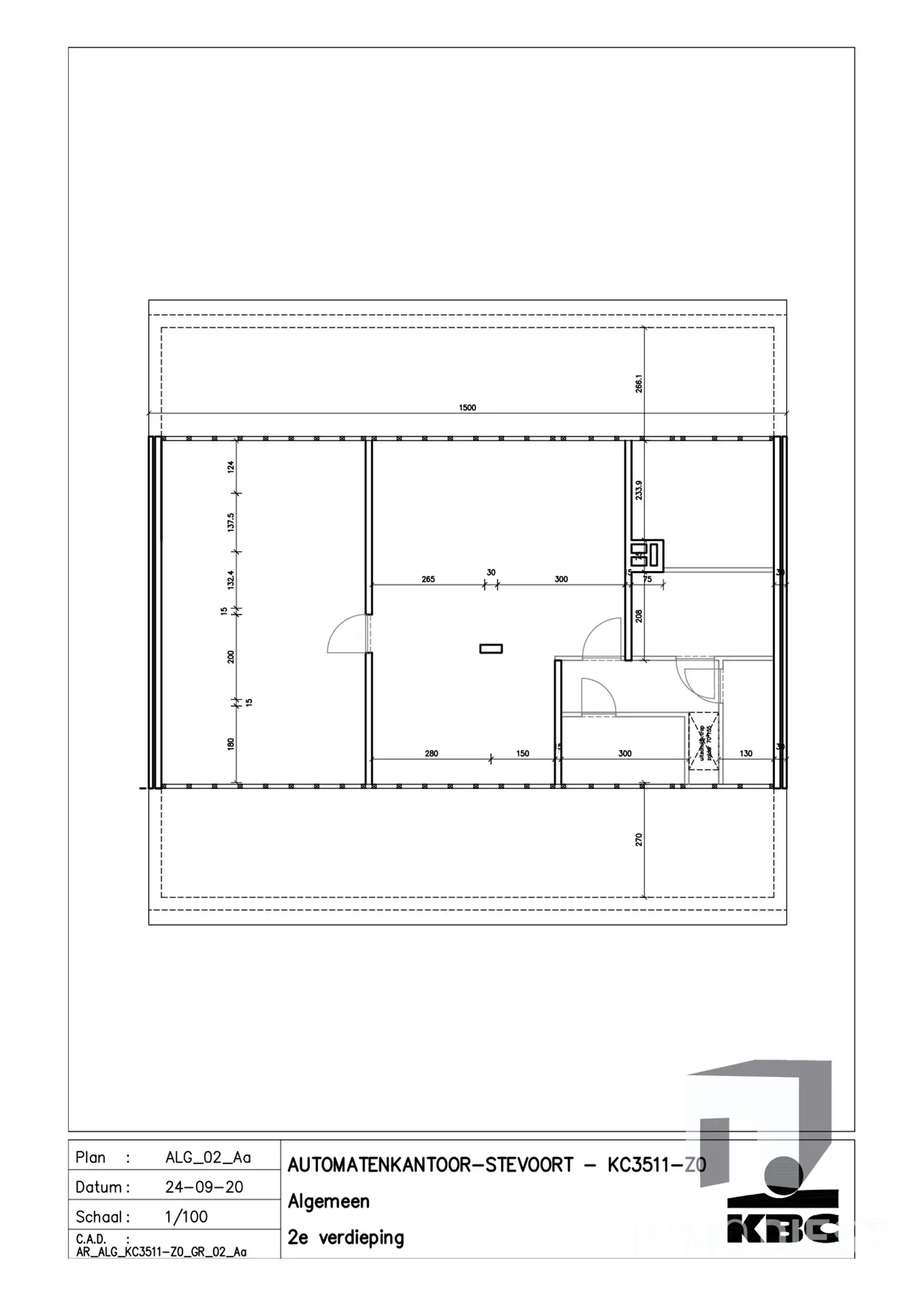
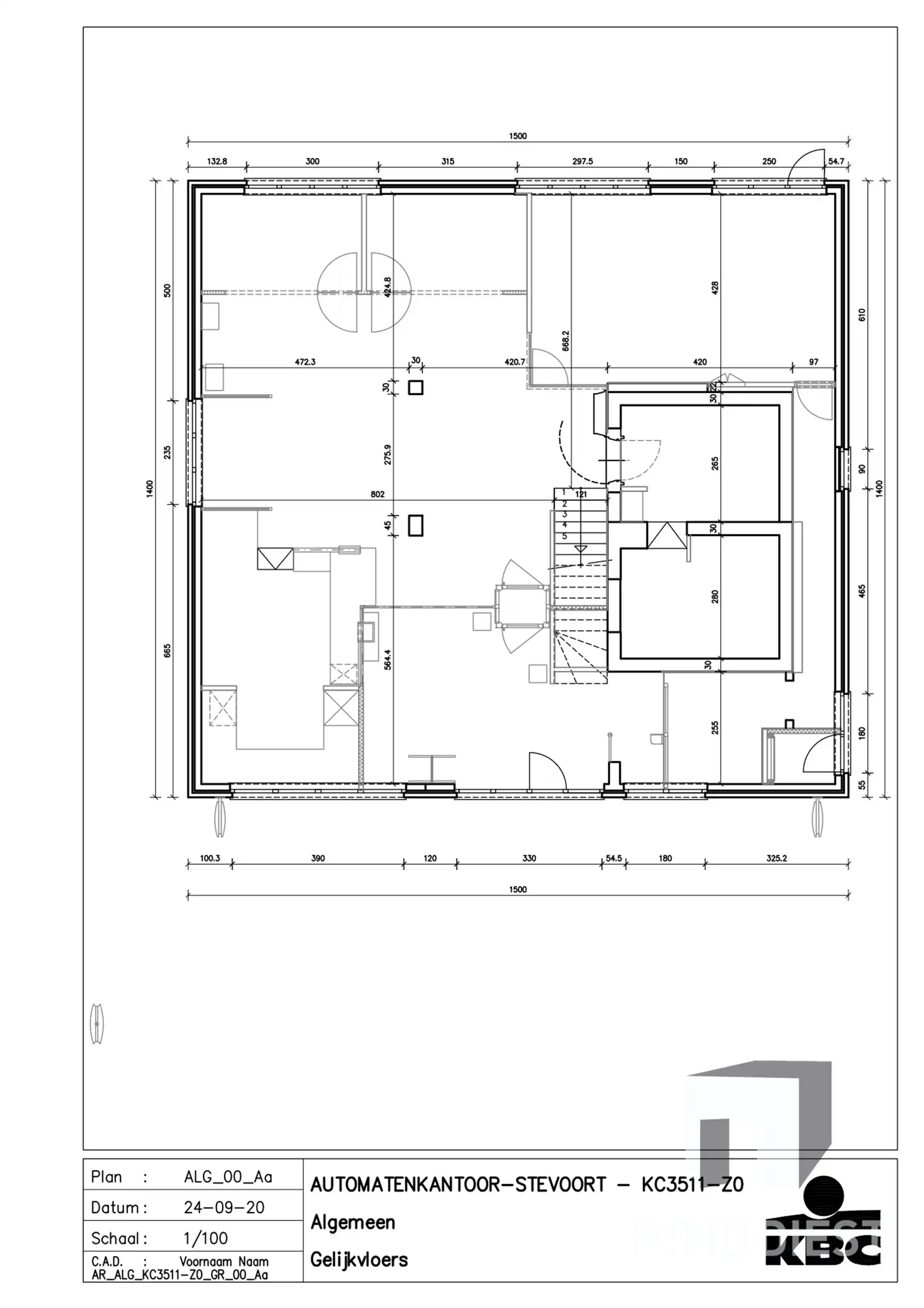
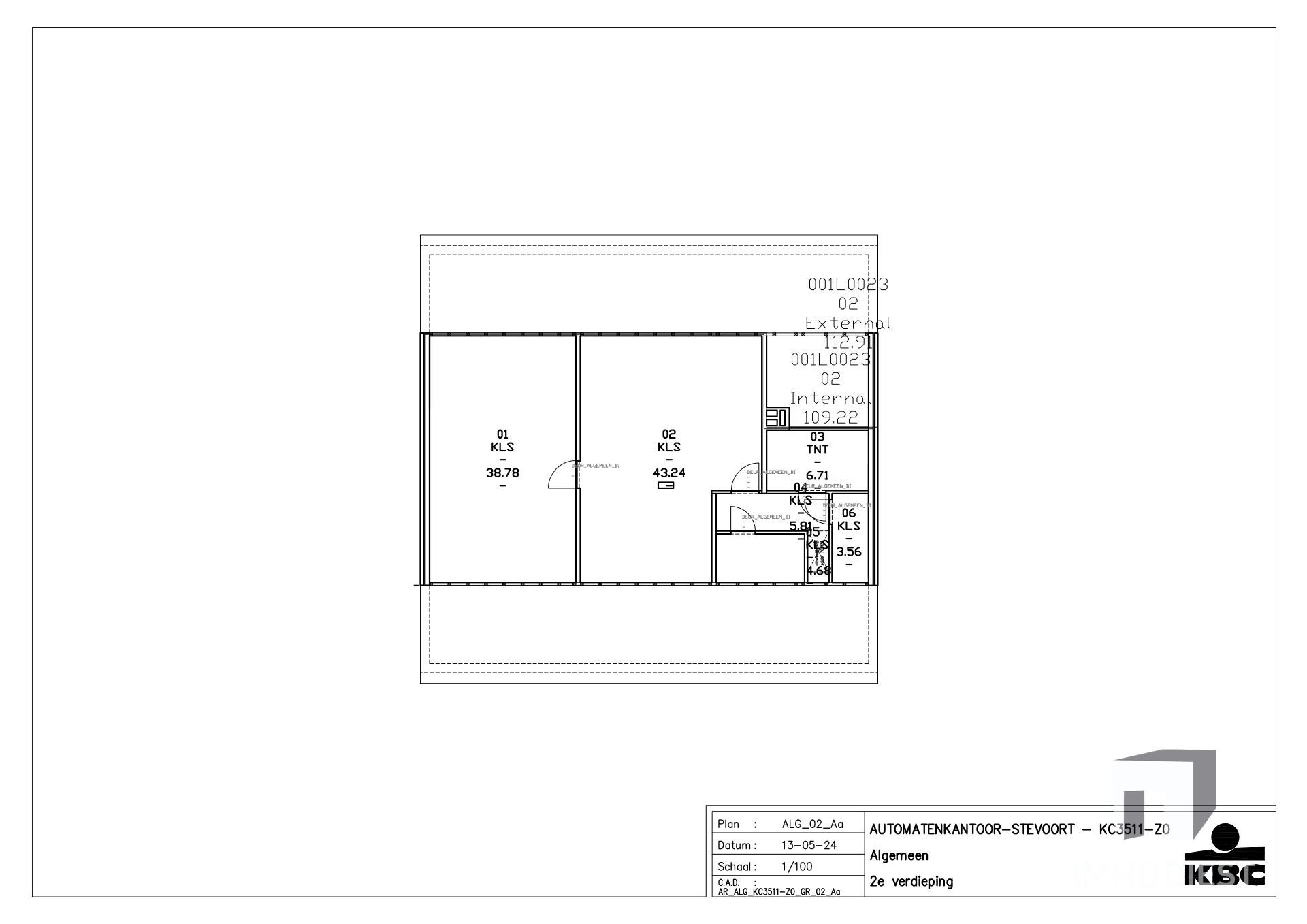
- 366 m² bewoonbaar
- 965 m² grond
- 2 Toilet(ten)
Overstromingsgevaar perceel
Beschrijving
Contacteer Jan voor een bezoek of een toelichting via jan.vanonckelen@immodiest.be of 0498 52 64 52
Op zoek naar een vastgoedbelegging die vandaag al inkomsten genereert én tegelijk ruimte laat om extra rendement te creëren?
Dit voormalige KBC-bankkantoor met appartement op de Hasseltse Dreef in Stevoort is zo’n zeldzame opportuniteit waar cashflow, flexibiliteit en toekomstmogelijkheden samenkomen.
1) Meteen rendement: Bancontact (Batopin) als stabiele huurder
Een deel van het gelijkvloers is verhuurd aan Bancontact (Batopin) via handelshuur tot 2033, goed voor een gegarandeerde huurinkomst van € 12.000/jaar. Dat betekent: een stevige basis waarop je als investeerder verder kan bouwen, met minder leegstandsrisico vanaf dag één.
2) 3 potentiële huuropbrengsten onder één dak
Dit pand biedt een bijzonder interessante “3-in-1” structuur voor investeerders:
Huur 1: Bancontact (lopende handelshuur tot 2033) – vaste jaarlijkse opbrengst.
Huur 2: bijkomend gelijkvloers deel als kantoor/dienstverlening/vrij beroep
Volgens het advies van Stad Hasselt valt het pand onder de functie kantoor/dienstverlening/vrij beroep. Dat opent mogelijkheden voor o.a. praktijkruimte, consultatie, dienstverlenend kantoor of zelfs kinderopvang (binnen dezelfde functie).
Huur 3: appartement op de verdieping
Ideaal als residentiële verhuur, of als combinatie wonen + werken.
Resultaat: één gebouw dat kan evolueren naar een gespreide opbrengst met meerdere huurders (en dus minder afhankelijkheid van één inkomstenbron).
3) Ook perfect voor “eigen zaak + verhuur” (slim combineren)
Ben je zelfstandige of vrij beroep? Dan is dit pand extra interessant:
Je kan je eigen praktijk/kantoor uitbaten op (een deel van) het gelijkvloers,
terwijl je tegelijk Bancontact behoudt als vaste huurder,
én het appartement verhuurt (of zelf gebruikt).
Een combinatie die vaak leidt tot een sterke mix van comfort, controle én rendement.
4) Parkeercomfort inbegrepen
Er zijn 11 vergunde parkeerplaatsen aanwezig — een enorme troef voor elke dienstverlenende invulling (klanten/patiënten/bezoekers), én aantrekkelijk voor huurders. Bovendien is er ruimte om, waar gewenst, te denken aan ontharding en vergroening.
5) Stedenbouwkundige krijtlijnen (duidelijkheid voor investeerders)
Het advies van Stad Hasselt geeft heldere richting:
Handel is hier niet voorzien (dit hoort in de kern).
Kantoor/dienstverlening/vrij beroep is de logische invulling.
Terug naar wonen kan ook: bv. eengezinswoning, of 1 appartement per verdieping, of woning met praktijk.
Binnen bepaalde afstandsregels zijn constructies/verhardingen mogelijk.
Info/plannen bezoek: Immo Diest 013 31 25 22 of info@immodiest.be
Energie
![]() |
- EPC Certificaat: 20240618-0003285067-KNR-1
- E-peil: E0
- Verwarming: Gas
- Beglazing: Standaard dubbel
Op de kaart

Financieel
| Prijs | |
|---|---|
| Kadastraal inkomen (niet geïndexeerd) | € 3.096 |
| Kadastraal inkomen (geïndexeerd) | € 0 |
Berekening kosten
Je aankoopkosten? Die heb je snel berekent via de knop hieronder.
Bijkomende info
Gebouw
| Bouwjaar | 1977 |
|---|---|
| Staat | Goed onderhouden |
| Bouwcertificaat | Nee |
| Bewoonbaar (m²) | 366 |
| Verdieping | 1 |
| Gevelbreedte | 15 |
| Badkamers | 0 |
| Slaapkamers | 0 |
| Verdiepingen | 0 |
| Garages | 0 |
| Parkeerplaatsen | 11 |
| Doucheruimtes | 0 |
| Toiletten | 2 |
Faciliteiten
| Keuken uitrusting | Standaard |
|---|---|
| Materiaal ramenomlijstingen | Aluminium |
| Beglazing | Standaard dubbel |
| Brandstof primaire verwarming | Gas |
| Elektrisch keuringsattest | Ja |
Perceel
| Diepte (m) | 47 |
|---|---|
| Breedte (m) | 22 |
| Overstromingsgevoelig | Geen |
| P-score | D |
| G-score | C |
| Voorkeurrecht | Nee |
| Totale oppervlakte (m²) | 965 |
| Bebouwde oppervlakte (m²) | 0 |
| Tuin oppervlakte (m²) | 0 |
| Oppervlakte terras (m²) | 0 |
| Oriëntatie tuin | Zuid |
Vergunning
| Vergunning | Vergunning beschikbaar |
|---|---|
| Verkavelingsvergunning | Vergunning beschikbaar |
Uitrusting
| Investeringspand | Nee |
|---|---|
| Geschikt voor praktijk | Nee |
| Parking | Ja |
| Garage | Nee |
| Thuiskantoor | Nee |
| Kelder | Nee |
| Zolder | Ja |
| Tuin | Nee |
| Terras | Nee |
| Lift | Nee |
| Rioolaansluiting | Ja |
| Gasaansluiting | Ja |
| Wateraansluiting | Ja |
| Elektriciteitsaansluiting | Ja |
| TV aansluiting | Ja |
| Internetaansluiting | Ja |
| Telefoonaansluiting | Ja |
Appartementsblok
| Lift | Nee |
|---|
