Polyvalente , uitstekend onderhouden villa met vijf slaapkamers
€ 597.000
Een pand van Immovadis
Overzicht
- 200 m² bewoonbaar
- 5 Slaapkamer(s)
Beschrijving
Op een absolute toplocatie in Zonhoven bevindt zich deze ruime, perfect onderhouden villa, ideaal voor wie wonen en werken wil combineren.
Het pand beschikt over vijf volwaardige slaapkamers waarvan één is ingericht als relaxkamer op het gelijkvloers, elk voorzien van een eigen privébadkamer, wat zorgt voor maximaal comfort en privacy voor bewoners, bezoekers of cliënten.
De indeling en het karakter van de villa maken ze bijzonder geschikt voor een vrij medisch beroep, zelfstandige activiteit, praktijkruimte, kantoor of een andere professionele invulling. Momenteel wordt de villa uitgebaat als succesvolle B&B.
Het pand wordt omringd door een verzorgde tuin en biedt een zeer ruime parking op het domein, met mogelijkheid tot verdere uitbreiding.
Dankzij de strategische ligging is er een uitstekende bereikbaarheid: belangrijke voorzieningen bevinden zich in de directe omgeving en de autosnelwegen E314 en E313 liggen op enkele minuten rijden.
Het centrum van Hasselt is vlot en snel bereikbaar.
Een unieke kans voor wie op zoek is naar een ruime, instapklare eigendom met tal van mogelijkheden op een zeer gegeerde toplocatie.
Beschrijving:
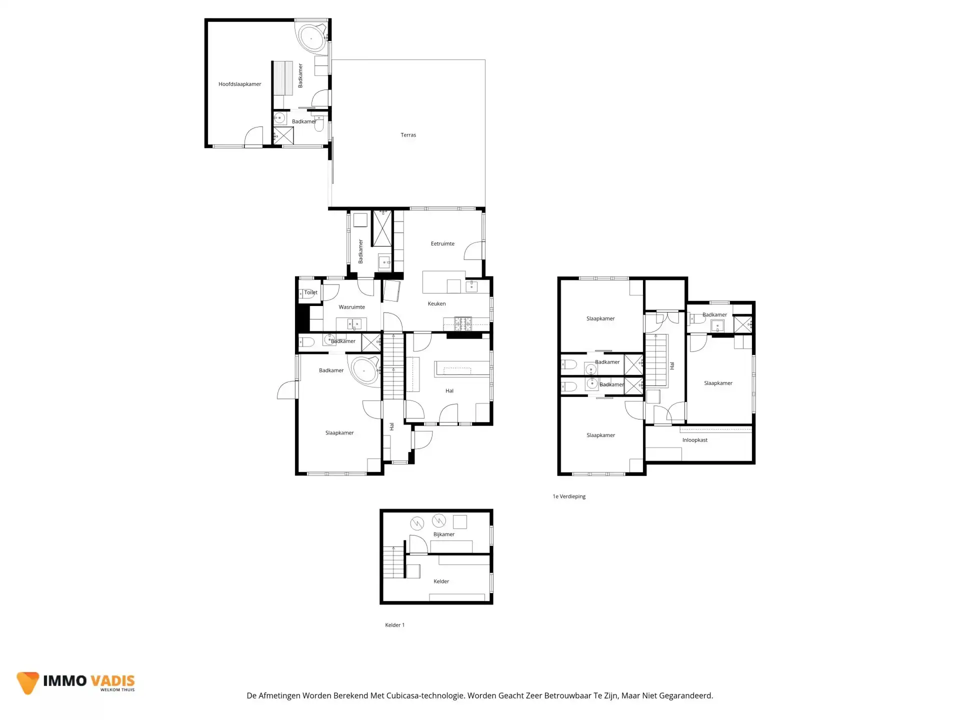
Gelijkvloers:
- Inkomhal met receptie (16 m²)
- Keuken (30 m²) met 6-pits industrieel Siemens gasfornuis met oven, granieten werktablet
- Aansluitend: eetkamer
- Bijkeuken (6 m²) met dubbele uitgietbak en vaatwasser
- Toilet
- Berging (6 m²) met wastafel, douche en voorzieningen voor wasmachine en droogkast
- Gang naar slaapkamer
- Slaapkamer één (24 m²) en badkamer met jacuzzibad, wastafel, douche en toilet
- Slaapkamer twee (18 m²) als relaxkamer ingericht met bijhorende badkamer (14 m²) met wastafel, jacuzzi, douche en toilet. Aansluitend is er een overdekt terras (14 m²) en een privé buitenterras (10 m²).
- Gelijkvloers is betegeld met vloerverwarming
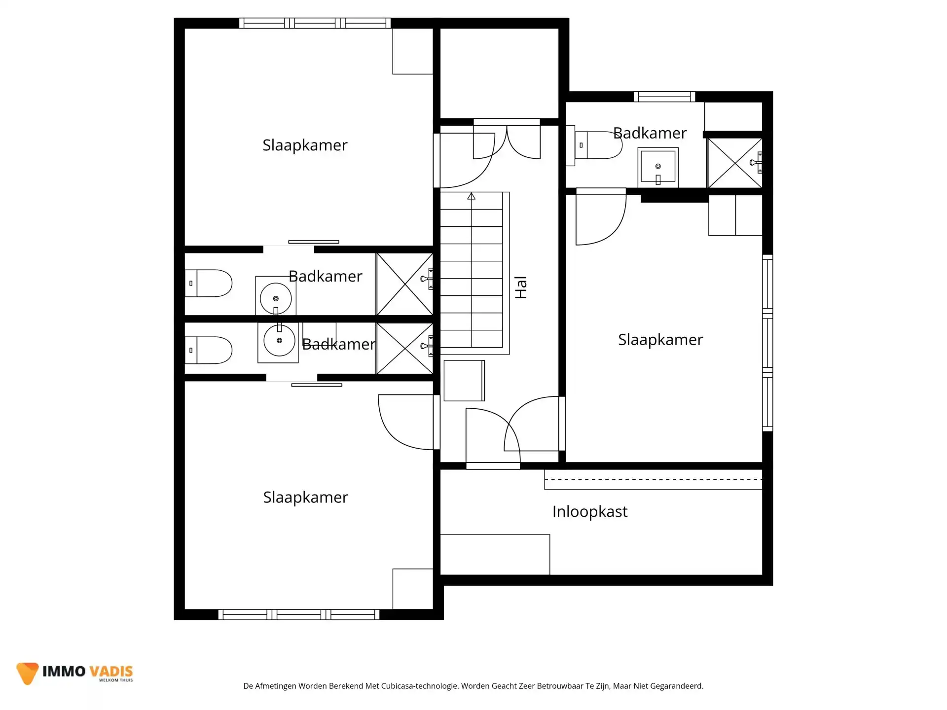
1ste verdieping:
- Trap en nachthal (10 m²)
- Slaapkamer drie (16 m²) en badkamer met wastafel, douche, toilet
- Slaapkamer vier (17 m²) en badkamer met wastafel, douche, toilet
- Slaapkamer vijf (16 m²) en badkamer met wastafel, douche, toilet
- Berging (7 m²)
Bergzolder (50 m²)
Kelder (20 m²) met waterontharder en grondwaterpomp waarop toiletten zijn aangesloten.
De villa is uitgerust met een alarm- en brandinstallatie en videobewaking.
Centrale verwarming op gas; alle ruimtes zijn voorzien van een eigen klimaatregeling
24 zonnepanelen met een vermogen van 9.600/kWh met certificaten à rato van € 1.000/jaar, zonnebatterij van 10.000/kWh, twee zonneboilers.
Interesse?
Neem snel contact op voor meer informatie of een bezoek:
- 0487/32.19.97
- bianca@immovadis.be
Het pand beschikt over vijf volwaardige slaapkamers waarvan één is ingericht als relaxkamer op het gelijkvloers, elk voorzien van een eigen privébadkamer, wat zorgt voor maximaal comfort en privacy voor bewoners, bezoekers of cliënten.
De indeling en het karakter van de villa maken ze bijzonder geschikt voor een vrij medisch beroep, zelfstandige activiteit, praktijkruimte, kantoor of een andere professionele invulling. Momenteel wordt de villa uitgebaat als succesvolle B&B.
Het pand wordt omringd door een verzorgde tuin en biedt een zeer ruime parking op het domein, met mogelijkheid tot verdere uitbreiding.
Dankzij de strategische ligging is er een uitstekende bereikbaarheid: belangrijke voorzieningen bevinden zich in de directe omgeving en de autosnelwegen E314 en E313 liggen op enkele minuten rijden.
Het centrum van Hasselt is vlot en snel bereikbaar.
Een unieke kans voor wie op zoek is naar een ruime, instapklare eigendom met tal van mogelijkheden op een zeer gegeerde toplocatie.
Beschrijving:
Gelijkvloers:
- Inkomhal met receptie (16 m²)
- Keuken (30 m²) met 6-pits industrieel Siemens gasfornuis met oven, granieten werktablet
- Aansluitend: eetkamer
- Bijkeuken (6 m²) met dubbele uitgietbak en vaatwasser
- Toilet
- Berging (6 m²) met wastafel, douche en voorzieningen voor wasmachine en droogkast
- Gang naar slaapkamer
- Slaapkamer één (24 m²) en badkamer met jacuzzibad, wastafel, douche en toilet
- Slaapkamer twee (18 m²) als relaxkamer ingericht met bijhorende badkamer (14 m²) met wastafel, jacuzzi, douche en toilet. Aansluitend is er een overdekt terras (14 m²) en een privé buitenterras (10 m²).
- Gelijkvloers is betegeld met vloerverwarming
1ste verdieping:
- Trap en nachthal (10 m²)
- Slaapkamer drie (16 m²) en badkamer met wastafel, douche, toilet
- Slaapkamer vier (17 m²) en badkamer met wastafel, douche, toilet
- Slaapkamer vijf (16 m²) en badkamer met wastafel, douche, toilet
- Berging (7 m²)
Bergzolder (50 m²)
Kelder (20 m²) met waterontharder en grondwaterpomp waarop toiletten zijn aangesloten.
De villa is uitgerust met een alarm- en brandinstallatie en videobewaking.
Centrale verwarming op gas; alle ruimtes zijn voorzien van een eigen klimaatregeling
24 zonnepanelen met een vermogen van 9.600/kWh met certificaten à rato van € 1.000/jaar, zonnebatterij van 10.000/kWh, twee zonneboilers.
Interesse?
Neem snel contact op voor meer informatie of een bezoek:
- 0487/32.19.97
- bianca@immovadis.be
Energie
![]() |
- EPC Certificaat: 20230324-0002836073-RES-1
- Energieverbruik: 144 kWh/m²/jaar
- Verwarming: Gas
- Beglazing: Standaard dubbel
Op de kaart

Financieel
| Prijs |
|---|
Berekening kosten
Je aankoopkosten? Die heb je snel berekent via de knop hieronder.
Bijkomende info
Gebouw
| Bouwjaar | 1957 |
|---|---|
| Renovatie jaar | 2012 |
| Staat | Goed onderhouden |
| Is beschermd | Ja |
| Bouwcertificaat | Nee |
| Bewoonbaar (m²) | 200 |
| Verdieping | 0 |
| Slaapkamers | 5 |
| Verdiepingen | 0 |
Ruimtes
| Slaapkamer | 91 m² |
|---|
Faciliteiten
| Materiaal ramenomlijstingen | PVC |
|---|---|
| Beglazing | Standaard dubbel |
| Luiken | Nee |
| Primaire verwarmingsbron | Warmtenet |
| Brandstof primaire verwarming | Gas |
| Elektrisch keuringsattest | Ja |
| Septische tank | Nee |
| Beerput | Nee |
Perceel
| Overstromingsgevoelig | Geen |
|---|---|
| Voorkeurrecht | Nee |
| Bebouwde oppervlakte (m²) | 200 |
Vergunning
| Vergunning | Vergunning beschikbaar |
|---|
Uitrusting
| Investeringspand | Nee |
|---|---|
| Geschikt als kangoeroewoning | Nee |
| Geschikt voor rolstoelgebruikers | Nee |
| Parking | Nee |
| Garage | Nee |
| Thuiskantoor | Nee |
| Kelder | Nee |
| Zolder | Nee |
| Opslagruimte | Nee |
| Tuin | Nee |
| Terras | Nee |
| Lift | Nee |
| Rioolaansluiting | Nee |
| Gasaansluiting | Ja |
| Wateraansluiting | Ja |
| Elektriciteitsaansluiting | Ja |
| TV aansluiting | Nee |
| Internetaansluiting | Nee |
| Zonnepanelen | Ja |
| Zonneboiler | Nee |
| Thuisbatterij | Nee |
| Alarm | Ja |
| Zwembad | Nee |
| Sauna | Ja |
| Jacuzzi | Ja |
| Videofoon | Nee |
| Domotica | Ja |
| Grondwaterput | Nee |
| Ventilatie | Ja |
Een pand van
Immovadis
Welkom Thuis
Geen alledaagse standaard makelaar!
ImmoVadis staat voor anders durven zijn, maar wel binnen de professionele kaders.
Wij pakken uw vastgoed professioneel, duidelijk (helder) en tijdgericht aan, waarbij u als klant ten allen tijde centraal staat en zich WELKOM THUIS voelt!
ImmoVadis gelooft in 'anders durven denken', samen met een realistische, no-nonsense aanpak. Daarnaast is vertrouwen, passie en een goede relatie met de klant van zeer groot belang.
Wij streven ernaar om onze klanten altijd tevreden te houden. ImmoVadis is dan ook een klantgericht kantoor met een hoogwaardig dienstverleningsniveau.
Team
Immovadis bestaat uit een team van medewerkers en partners, onder leiding van een vat vol ervaring op niveau van makelaardij, Guy Clerinx in samenwerking met een bouwkundig aannemer, Wim Lambrechts (ProMaCon BV).
Door deze samenwerking kunnen we op het vlak van bouwkundigheid een meerwaarde toevoegen aan het gebruikelijk takenpakket van een standaard makelaar.
Als klant krijgt u deze deskundige meerwaarde automatisch mee inbegrepen in onze dienstverlening.
86601449
Leer meer over vastgoed
24 November 2025
Uitgezocht voor jouw gemeente: Hoeveel stijgt de waarde van je woning door een renovatie?
22 October 2025
Hoeveel kan ik lenen om een huis te kopen?
11 June 2025
Huis kopen met bouwovertreding? Dit moet je weten
11 May 2025
