Wonen op een royaal perceel in het groene Gellik
€ 485.000
Een pand van Nancy Aerts Vastgoed
Jouw zoektocht
Overzicht
- 167 m² bewoonbaar
- 1582 m² grond
- 3 Slaapkamer(s)
- 1 Badkamer(s)
- 2 Toilet(ten)
- 1 Tuin
Overstromingsgevaar perceel
Beschrijving
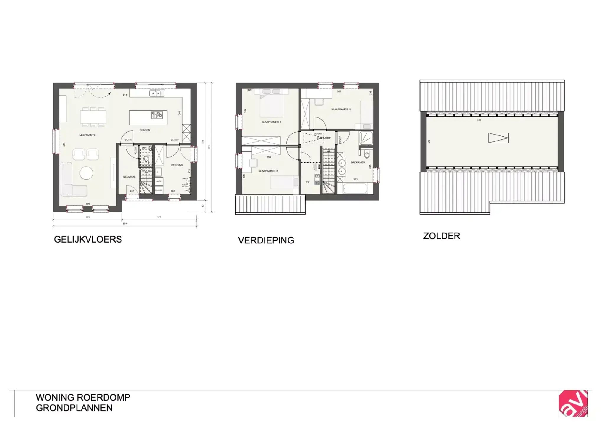
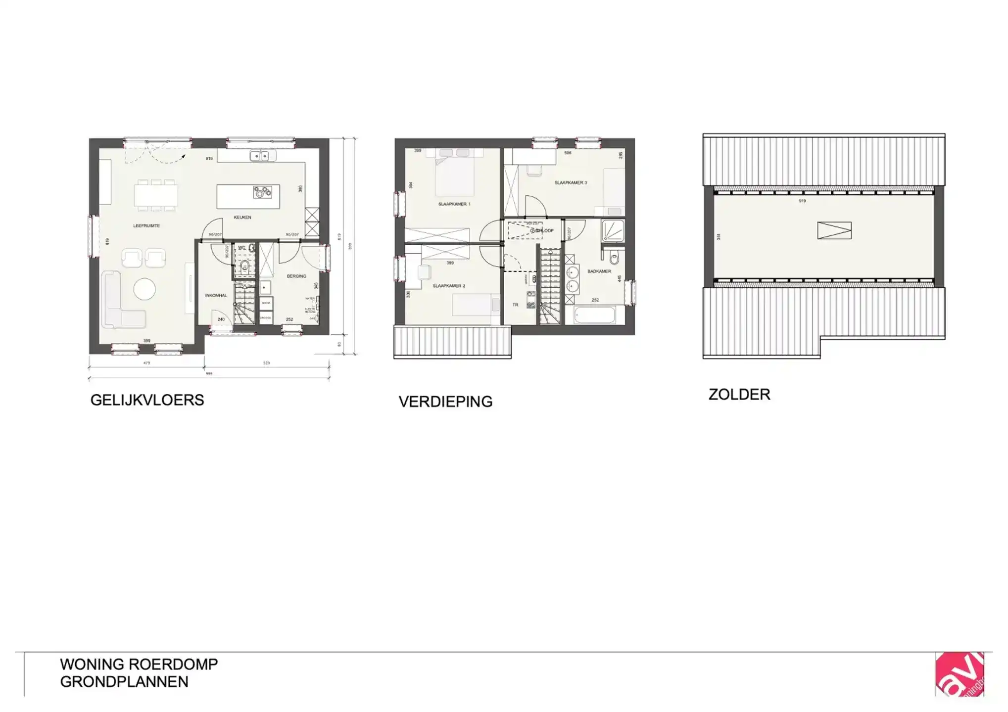
Er is reeds een eerste ontwerp beschikbaar voor een vrijstaande woning van 167 m² bewoonbare oppervlakte, aangevuld met een zolder van 35 m². Dit plan voorziet in een open leefruimte, een ruime keuken met berging, drie slaapkamers en een badkamer met bad en douche. Duurzame technieken (warmtepomp, vloerverwarming, zonnepanelen en ventilatiesysteem D+) zorgen voor energiezuinig wonen.
Je kiest zelf voor een casco-uitvoering of sleutel-op-de-deur afwerking, volledig op maat. Samenwerking met AVL Woningbouw garandeert een kwaliteitsvolle afwerking.
Prijs sleutel-op-de-deur: € 485.000 excl. kosten (€ 590.000 incl. kosten).
Op zoek naar een ruim perceel met een toekomstgericht bouwproject? Contacteer ons voor meer info of een afspraak.
Wonen op een royaal perceel in het groene Gellik
Aan de rustige Dorpsstraat in Gellik ligt een perceel met bijzonder veel mogelijkheden. Met een oppervlakte van maar liefst 15a82ca en een royale perceelbreedte van 28 meter aan de straatkant, biedt dit stuk bouwgrond alle ruimte om jouw ideale thuis waar te maken. De tuinzijde is 12 meter breed, de diepte reikt tot 116 meter. Dat betekent volop kansen om een vrijstaande woning te ontwerpen die helemaal is afgestemd op jouw levensstijl.
Hier woon je in een charmante straat in Gellik, een gezellige deelgemeente van Lanaken waar rust en bereikbaarheid mooi samengaan. Het centrum van Lanaken ligt vlakbij, net als Maastricht en Genk, waardoor je vlot verbonden bent met zowel stad als natuur. En wie houdt van wandelen of fietsen, vindt in het nabijgelegen Nationaal Park Hoge Kempen en de omliggende routes het perfecte decor voor actieve ontspanning.
Voor wie al inspiratie zoekt, is er een eerste ontwerp van een klassieke woning met een bewoonbare oppervlakte van 167 m², aangevuld met een zolder van 35 m². Het ontwerp voorziet in een lichtrijke leefruimte met eet- en zithoek, een ruime keuken met berging, drie slaapkamers en een badkamer met bad en douche. Duurzame technieken zoals een warmtepomp, vloerverwarming, zonnepanelen en ventilatiesysteem D+ maken van deze woning een energiezuinige en toekomstgerichte plek om te wonen.
Maar niets ligt vast: zowel het ontwerp als de afwerking zijn volledig bespreekbaar. Je kiest zelf of je gaat voor een casco-uitvoering, waarbij je stap voor stap verder bouwt met alle zekerheden en garanties, of liever meteen instapt in een volledig afgewerkt thuis.
Dit project wordt aangeboden in samenwerking met AVL Woningbouw.
PRIJS SLEUTEL OP DE DEUR: € 485 000
€ 485 000 excl. alle kosten op grond en constructie
€ 590 000 incl. alle kosten op grond en constructie
Sleutel op de deur afwerking
- Casco
- Afgewerkte keuken
- Sanitaire toestellen
- Tegelvloeren op het gelijkvloers en in de badkamer
- Binnendeuren
- Voegwerken
- Trap in rubberwood
Meer weten? Neem gerust contact op, misschien zet jij hier binnenkort de eerste stap naar jouw nieuwe thuis
Energie
Op de kaart

Financieel
| Prijs |
|---|
Berekening kosten
Je aankoopkosten? Die heb je snel berekend via de knop hieronder.
Bijkomende info
Gebouw
| Staat | Nieuw |
|---|---|
| Bewoonbaar (m²) | 167 |
| Gevels | 4 |
| Badkamers | 1 |
| Slaapkamers | 3 |
| Parkeerplaatsen | 0 |
| Toiletten | 2 |
Faciliteiten
| Type vloer | |
|---|---|
| Keuken uitrusting | Goed uitgerust |
Perceel
| P-score | D |
|---|---|
| Voorkeurrecht | Ja |
| Totale oppervlakte (m²) | 1582 |
| Tuin oppervlakte (m²) | 0 |
| Oriëntatie voorgevel | Zuid |
| Oriëntatie terras | Noordwest |
Vergunning
| Vergunning | Geen beschikbaar |
|---|---|
| Verkavelingsvergunning | Vergunning beschikbaar |
| Bouwovertreding | Geen |
| Bouwovertreding dagvaardiging | Geen |
Uitrusting
| Geschikt voor rolstoelgebruikers | Nee |
|---|---|
| Parking | Ja |
| Garage | Nee |
| Zolder | Ja |
| Tuin | Ja |
| Terras | Nee |
| Gasaansluiting | Ja |
| Wateraansluiting | Ja |
| Elektriciteitsaansluiting | Ja |
| TV aansluiting | Ja |
| Telefoonaansluiting | Ja |