Nieuw 
Exclusief appartement te koop in ‘Villa Aragone’
Een pand van IMMO VERSLEGERS
Overzicht
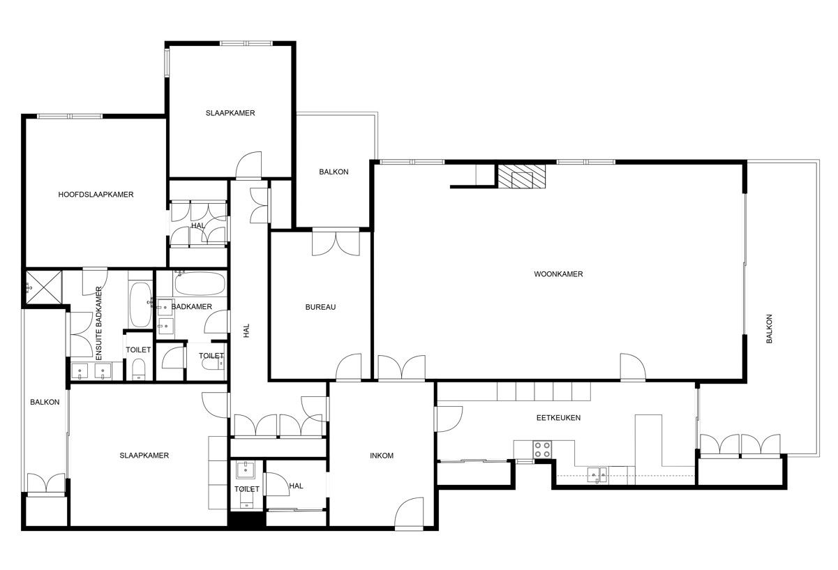
- 274 m² bewoonbaar
 - 4 Slaapkamer(s)
 - 2 Badkamer(s)
 - 1 Toilet(ten)
 
Beschrijving
Bent u op zoek naar een ruim en luxueus appartement te midden van groen en rust?
Dan is dit unieke appartement in residentie ‘Villa Aragone’, gelegen in het exclusieve parkdomein Petersheim nabij het historische kasteel Pietersheim, precies wat u zoekt!
Zijn uitzonderlijke ligging, in een oase van rust.
Via de oprijlaan bereikt u de residentie, waar u verwelkomd wordt in de imposante inkomhal van het gebouw.
Met zowel trap als lift heeft u toegang tot dit prachtige appartement, gelegen op de eerste verdieping.
De ligging in het parkdomein garandeert u rust, privacy en een prachtig uitzicht op de natuurlijke omgeving, terwijl winkels, horeca en verbindingswegen zich op korte afstand bevinden.
Praktisch en ruimtelijk wonen.
Met een indrukwekkend bewoonbare oppervlakte van maar liefst 274 m² ervaart u bij het binnenkomen in de inkomhal onmiddellijk de grandeur van dit appartement.
De hal beschikt over een vestiaire en gastentoilet en vormt het centrale punt van waaruit u toegang heeft tot alle ruimten.
De dubbele glazen deuren leiden naar de ruime woonkamer, waar natuurlijke lichtinval en een prachtig zicht op het terras zorgen voor een aangename sfeer.
Het ruime terras vormt een verlengstuk van de leefruimte en is dé ideale plek om te genieten van elk moment van de dag: een zonnige ochtendkoffie, een ontspannen lunch in de namiddag of een sfeervol diner in de avondschemering.
De recent vernieuwde keuken is volledig uitgerust met moderne toestellen en biedt vooral veel opbergmogelijkheden.
Dit is dé plek waar kookliefhebbers hun hart kunnen ophalen en waar functionaliteit en design hand in hand gaan.
Het appartement beschikt over vier slaapkamers, waarvan één momenteel dienstdoet als bureau met toegang tot een eigen terras.
De masterbedroom is voorzien van een dressing en ensuite badkamer.
Daarnaast is er een tweede badkamer uitgerust met een ligbad, dubbele wastafel en toilet.
Tot slot bevinden zich in de kelderverdieping een handige kelderberging en twee ruime autostaanplaatsen die vlot bereikbaar zijn.
Waarom kiezen voor dit appartement in Villa Aragone?
Dit appartement biedt een combinatie van luxe, rust en natuur in het prachtige domein Petersheim, met alle voorzieningen in de nabijheid.
Wilt u dit unieke appartement zelf ervaren? Contacteer ons dan gerust via het nummer 089 23 44 22 of per mail via info@immoverslegers.be!
Dan is dit unieke appartement in residentie ‘Villa Aragone’, gelegen in het exclusieve parkdomein Petersheim nabij het historische kasteel Pietersheim, precies wat u zoekt!
Zijn uitzonderlijke ligging, in een oase van rust.
Via de oprijlaan bereikt u de residentie, waar u verwelkomd wordt in de imposante inkomhal van het gebouw.
Met zowel trap als lift heeft u toegang tot dit prachtige appartement, gelegen op de eerste verdieping.
De ligging in het parkdomein garandeert u rust, privacy en een prachtig uitzicht op de natuurlijke omgeving, terwijl winkels, horeca en verbindingswegen zich op korte afstand bevinden.
Praktisch en ruimtelijk wonen.
Met een indrukwekkend bewoonbare oppervlakte van maar liefst 274 m² ervaart u bij het binnenkomen in de inkomhal onmiddellijk de grandeur van dit appartement.
De hal beschikt over een vestiaire en gastentoilet en vormt het centrale punt van waaruit u toegang heeft tot alle ruimten.
De dubbele glazen deuren leiden naar de ruime woonkamer, waar natuurlijke lichtinval en een prachtig zicht op het terras zorgen voor een aangename sfeer.
Het ruime terras vormt een verlengstuk van de leefruimte en is dé ideale plek om te genieten van elk moment van de dag: een zonnige ochtendkoffie, een ontspannen lunch in de namiddag of een sfeervol diner in de avondschemering.
De recent vernieuwde keuken is volledig uitgerust met moderne toestellen en biedt vooral veel opbergmogelijkheden.
Dit is dé plek waar kookliefhebbers hun hart kunnen ophalen en waar functionaliteit en design hand in hand gaan.
Het appartement beschikt over vier slaapkamers, waarvan één momenteel dienstdoet als bureau met toegang tot een eigen terras.
De masterbedroom is voorzien van een dressing en ensuite badkamer.
Daarnaast is er een tweede badkamer uitgerust met een ligbad, dubbele wastafel en toilet.
Tot slot bevinden zich in de kelderverdieping een handige kelderberging en twee ruime autostaanplaatsen die vlot bereikbaar zijn.
Waarom kiezen voor dit appartement in Villa Aragone?
- Exclusieve ligging in het parkdomein Petersheim;
 - Bewoonbare oppervlakte van maar liefst 274 m²;
 - Twee terrassen met zicht op groen;
 - Recent vernieuwde keuken;
 - Vier slaapkamers, twee badkamers en dressing;
 - Twee autostaanplaatsen inbegrepen;
 - Rust, ruimte en elegantie op een unieke locatie!
 
Dit appartement biedt een combinatie van luxe, rust en natuur in het prachtige domein Petersheim, met alle voorzieningen in de nabijheid.
Wilt u dit unieke appartement zelf ervaren? Contacteer ons dan gerust via het nummer 089 23 44 22 of per mail via info@immoverslegers.be!
Energie
![]()  | 
- EPC Certificaat: 20241026-0003423949-RES-1
 - Energieverbruik: 206 kWh/m²/jaar
 - E-peil: E0
 - Beglazing: Onbekend
 
Op de kaart

Financieel
Berekening kosten
Je aankoopkosten? Die heb je snel berekent via de knop hieronder.
Bijkomende info
Gebouw
| Bouwjaar | 1989 | 
|---|---|
| Bewoonbaar (m²) | 274 | 
| Verdieping | 1 | 
| Badkamers | 2 | 
| Slaapkamers | 4 | 
| Verdiepingen | 2 | 
| Garages | 0 | 
| Parkeerplaatsen | 2 | 
| Toiletten | 1 | 
Faciliteiten
| Septische tank | Nee | 
|---|
Perceel
| Overstromingsgevoelig | Geen | 
|---|---|
| P-score | C | 
| G-score | A | 
| Bebouwde oppervlakte (m²) | 0 | 
| Oppervlakte terras (m²) | 0 | 
| Oriëntatie tuin | ZuidOost | 
Vergunning
| Verkavelingsvergunning | Geen beschikbaar | 
|---|
Uitrusting
| Investeringspand | Nee | 
|---|---|
| Parking | Ja | 
| Garage | Nee | 
| Opslagruimte | Ja | 
| Terras | Ja | 
| Lift | Ja | 
| Rioolaansluiting | Ja | 
| Gasaansluiting | Nee | 
| Wateraansluiting | Ja | 
| Elektriciteitsaansluiting | Ja | 
| Internetaansluiting | Ja | 
| Telefoonaansluiting | Ja | 
| Zonnepanelen | Nee | 
| Zonneboiler | Nee | 
| Alarm | Nee | 
| Videofoon | Nee | 
| Grondwaterput | Nee | 
Appartementsblok
| Aantal verdiepingen | 2 | 
|---|---|
| Lift | Ja | 
| Intercom | Nee | 
Een pand van
IMMO VERSLEGERS
 Welkom bij IMMO VERSLEGERS 
 UW VERTROUWENSPARTNER IN VASTGOED IN LANAKEN EN OMSTREKEN!
Een persoonlijke aanpak, correcte en vlotte service en het juiste technische en juridisch advies vormen de kenmerken van ons kantoor.
Wij helpen u dan ook graag verder in de aankoop, verkoop of verhuur van uw eigendom. Met passie voor vastgoed en het enthousiasme voor het ondernemen gaan we samen met u voor een succesvolle verkoop!
Immo Verslegers staat u graag bij wat betreft:
- Verkoop
- Verhuur
- Nieuwbouw
- Buitenlandsvastgoed
- Bedrijfsvastgoed
- Aankoopbegeleiding
- Verzekeringen
Gratis schatting van uw eigendom door een vastgoed expert!
Anouk Verslegers, Gunter Verslegers, Sjulie Frijns en Mirthe Hermans heten u van harte welkom! 
 Merodelaan72 
Leer meer over vastgoed
 Nieuw 
 22 October 2025 
Hoeveel kan ik lenen om een huis te kopen?
 11 June 2025 
Huis kopen met bouwovertreding? Dit moet je weten
 11 May 2025 
Renoveren? Vraag je Mijn VerbouwPremie aan
 22 April 2025 
