Nieuw
INSTAPKLARE GEZINSWONING OP EEN KINDVRIENDELIJKE LOCATIE TE SMEERMAAS !
€ 359.000
Overzicht
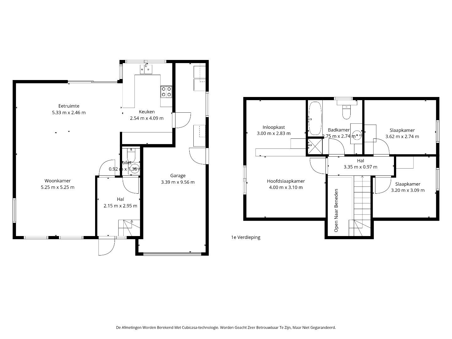
- 140 m² bewoonbaar
- 611 m² grond
- 3 Slaapkamer(s)
- 1 Badkamer(s)
- 2 Toilet(ten)
- 1 Tuin
- 1 Garage(s)
Beschrijving
INSTAPKLARE GEZINSWONING OP EEN KINDVRIENDELIJKE LOCATIE TE SMEERMAAS !
We vinden deze open woning met een bewoonbare oppervlakte van 140 m² terug op een perceel van 6a 11ca in Smeermaas-Lanaken.
Voor meer informatie, neem zeker een kijkje op onze website via de volgende link:
https://www.sterkvastgoedmakelaars.be/detail/te-koop-woning-lanaken/7420032?dosearch=True&flowstatus=ForSale,ForSaleReserved,ForSaleWithBid,ToCompleteForSale,SoldUnderReserve,Sold&pageindex=1&pagesize=12&searchpage=ForSale&sortdirection=DESC&sortfield=pub_flowstatus&transactiontype=Sale
We vinden deze open woning met een bewoonbare oppervlakte van 140 m² terug op een perceel van 6a 11ca in Smeermaas-Lanaken.
Voor meer informatie, neem zeker een kijkje op onze website via de volgende link:
https://www.sterkvastgoedmakelaars.be/detail/te-koop-woning-lanaken/7420032?dosearch=True&flowstatus=ForSale,ForSaleReserved,ForSaleWithBid,ToCompleteForSale,SoldUnderReserve,Sold&pageindex=1&pagesize=12&searchpage=ForSale&sortdirection=DESC&sortfield=pub_flowstatus&transactiontype=Sale
Energie
![]() |
- Verwarming: Gas
- Beglazing: Standaard dubbel
Op de kaart

Financieel
| Prijs | |
|---|---|
| Kadastraal inkomen (niet geïndexeerd) | € 726 |
Berekening kosten
Je aankoopkosten? Die heb je snel berekent via de knop hieronder.
Bijkomende info
Gebouw
| Bouwjaar | 1999 |
|---|---|
| Staat | Goed onderhouden |
| Is beschermd | Nee |
| Bewoonbaar (m²) | 140 |
| Badkamers | 1 |
| Slaapkamers | 3 |
| Garages | 1 |
| Parkeerplaatsen | 3 |
| Toiletten | 2 |
Faciliteiten
| Materiaal ramenomlijstingen | PVC |
|---|---|
| Beglazing | Standaard dubbel |
| Luiken | Nee |
| Brandstof primaire verwarming | Gas |
| Warm water type | Geen verwarming |
Perceel
| P-score | A |
|---|---|
| G-score | A |
| Voorkeurrecht | Ja |
| Totale oppervlakte (m²) | 611 |
| Oriëntatie tuin | Noordwest |
Vergunning
| Vergunning | Vergunning beschikbaar |
|---|---|
| Verkavelingsvergunning | Vergunning beschikbaar |
| Bouwovertreding dagvaardiging | Geen |
Uitrusting
| Meerdere eigenaars | Nee |
|---|---|
| Geschikt als kangoeroewoning | Nee |
| Geschikt voor rolstoelgebruikers | Nee |
| Geschikt voor praktijk | Nee |
| Volledig onderkelderd | Nee |
| Parking | Ja |
| Garage | Ja |
| Thuiskantoor | Nee |
| Kelder | Nee |
| Zolder | Ja |
| Opslagruimte | Ja |
| Tuin | Ja |
| Terras | Ja |
| Lift | Nee |
| Rioolaansluiting | Nee |
| Gasaansluiting | Ja |
| Wateraansluiting | Ja |
| Elektriciteitsaansluiting | Ja |
| TV aansluiting | Nee |
| Internetaansluiting | Nee |
| Zonnepanelen | Nee |
| Zonneboiler | Nee |
| Alarm | Nee |
| Zwembad | Nee |
| Jacuzzi | Nee |
| Toonzaal | Nee |
| Ventilatie | Nee |
Leer meer over vastgoed
24 November 2025
Uitgezocht voor jouw gemeente: Hoeveel stijgt de waarde van je woning door een renovatie?
22 October 2025
Hoeveel kan ik lenen om een huis te kopen?
11 June 2025
Huis kopen met bouwovertreding? Dit moet je weten
11 May 2025
