Woning met vijf slaapkamers en inpandige garage
€ 383.000
Een pand van Immovadis
Overzicht
- 210 m² bewoonbaar
- 5 Slaapkamer(s)
- 2 Badkamer(s)
- 1 Toilet(ten)
- 1 Living(s)
- 1 Garage(s)
Beschrijving
Deze vrijstaande woning is gelegen in een bosrijke omgeving in de Dennenstraat 4 te Lanaken.
In een rustige residentiële buurt, op slechts 1 km van het centrum, bevindt zich deze vrijstaande woning die een totaalrenovatie vereist: een ideale basis om naar eigen smaak een moderne en energiezuinige woning op te richten.
Dankzij de zuidgerichte tuin geniet je van veel licht en de goede afscherming zorgt voor volledige privacy.
Een extra troef zijn de 27 zonnepanelen met een vermogen van 5,1/kWh met certificaten van € 270/1.000kWh à rato van 5 certificaten op jaarbasis.
Alle voorzieningen qua scholen, winkels en openbaar vervoer zijn in de omgeving te vinden.
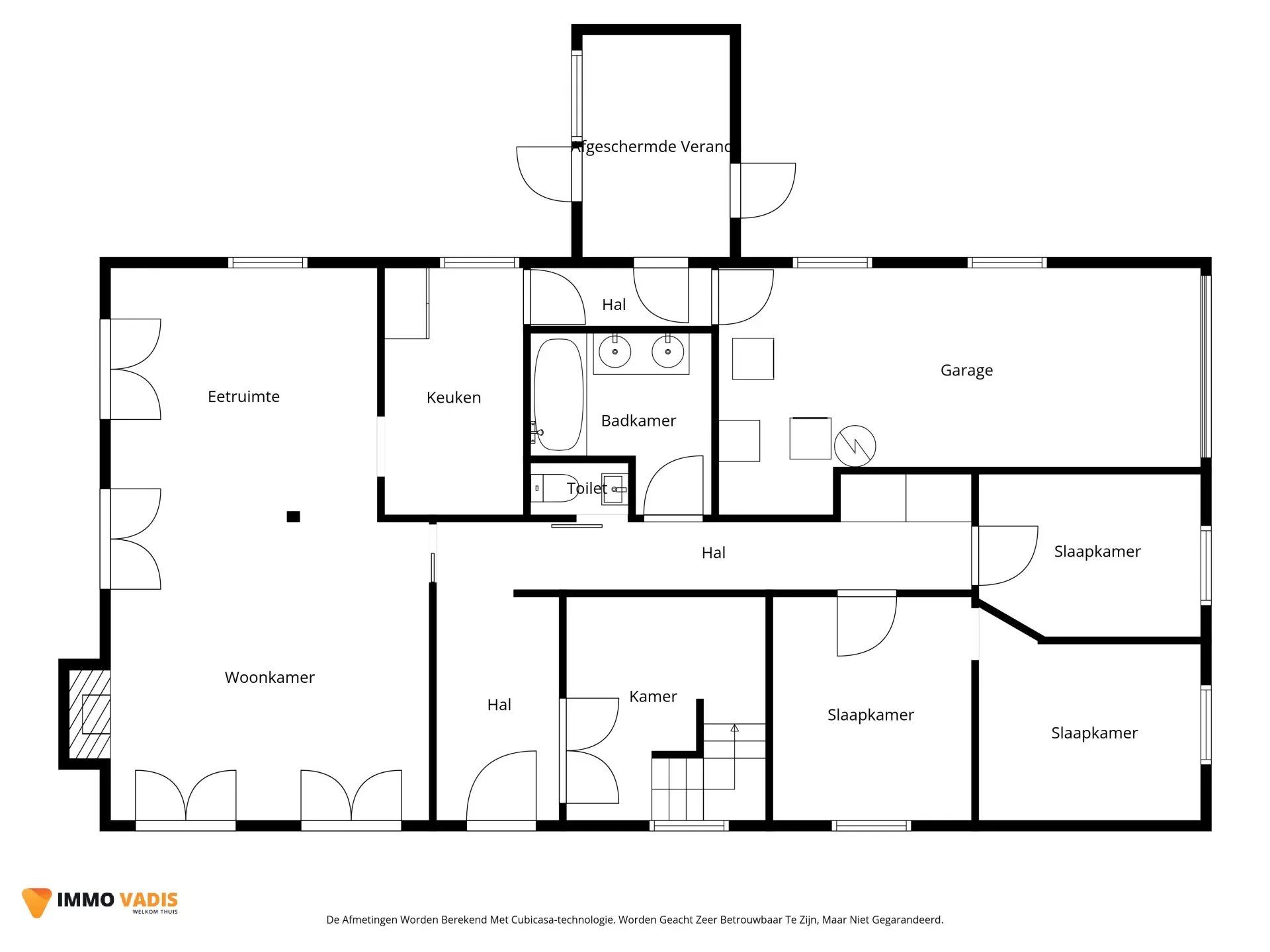
Indeling:
Gelijkvloers :
- Inkomhal met vestiaire en trap naar verdieping
- Woonkamer (38 m²) met open haard en parketvloer
- Keukenruimte (8 m²)
- Toegang naar garage en berging
- Berging (9 m²)
- Inpandige garage (21 m²)
- Naastliggende carport (22 m²)
- Nachthal met inbouwkasten en parketvloer
- Toilet met wasbakje
- Badkamer (7 m²) met dubbele wastafel en ligbad
- Slaapkamer (9 m²) met dressing (8 m²)
- Slaapkamer (8 m²)
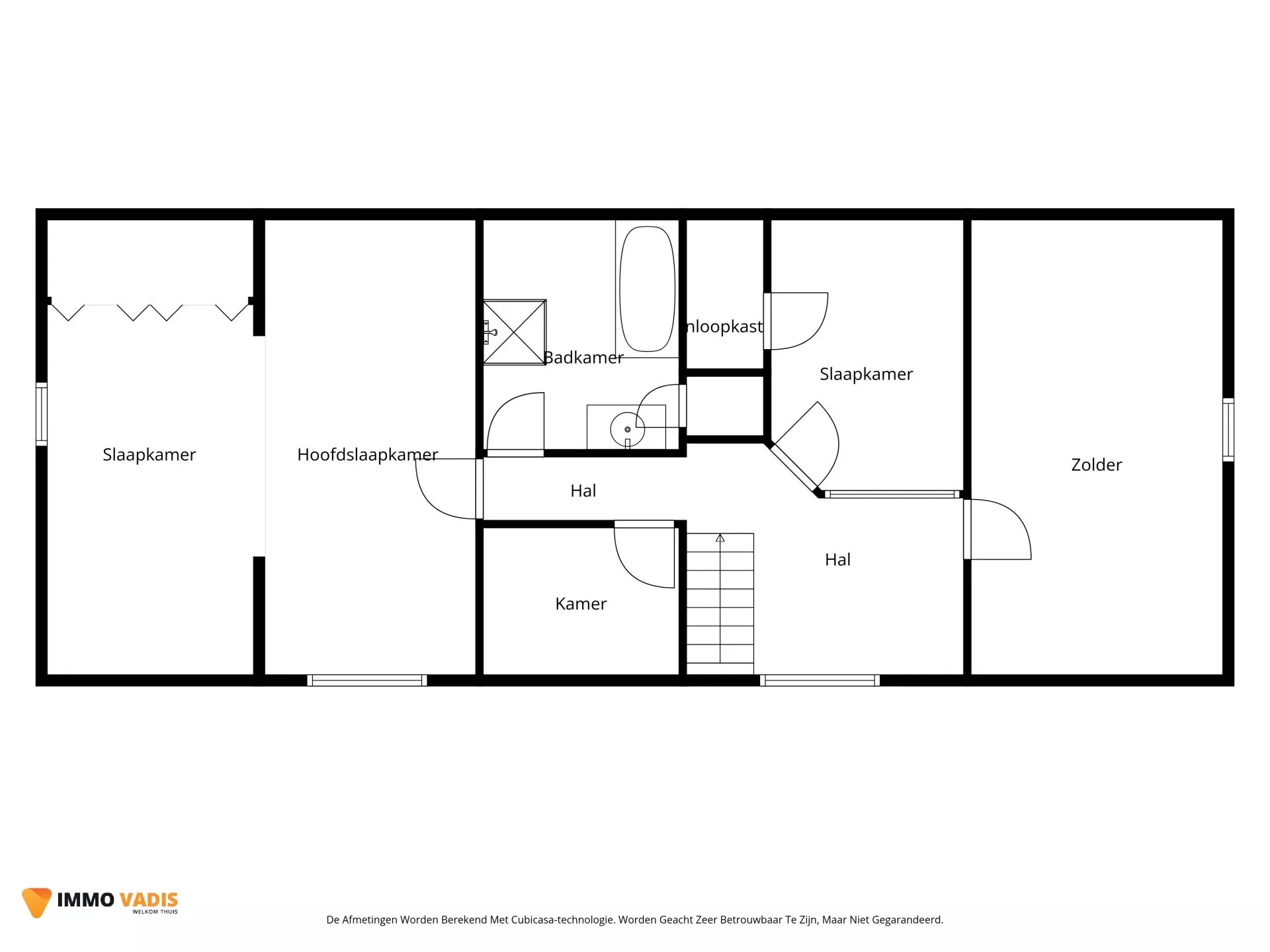
1ste verdieping:
- Ruime overloop met plaats voor bureauruimte (7 m²)
- Twee slaapkamers van 10 m² en 22 m²
- Slaapkamer met dressing (36 m²)
- Badkamer (9 m²) met wastafel, ligbad, douche, toilet
Kruipkelder onder de hele woning waar luchtkanalen van verwarming zijn ondergebracht
Centrale verwarming op aardgas
Houten ramen met dubbel glas
Geïsoleerd pannendak
Voor- en achtertuin zuidgericht, naar eigen smaak aan te leggen
Interesse?
Je kan ons contacteren via bianca@immovadis.be of 0487/32.19.97.
In een rustige residentiële buurt, op slechts 1 km van het centrum, bevindt zich deze vrijstaande woning die een totaalrenovatie vereist: een ideale basis om naar eigen smaak een moderne en energiezuinige woning op te richten.
Dankzij de zuidgerichte tuin geniet je van veel licht en de goede afscherming zorgt voor volledige privacy.
Een extra troef zijn de 27 zonnepanelen met een vermogen van 5,1/kWh met certificaten van € 270/1.000kWh à rato van 5 certificaten op jaarbasis.
Alle voorzieningen qua scholen, winkels en openbaar vervoer zijn in de omgeving te vinden.
Indeling:
Gelijkvloers :
- Inkomhal met vestiaire en trap naar verdieping
- Woonkamer (38 m²) met open haard en parketvloer
- Keukenruimte (8 m²)
- Toegang naar garage en berging
- Berging (9 m²)
- Inpandige garage (21 m²)
- Naastliggende carport (22 m²)
- Nachthal met inbouwkasten en parketvloer
- Toilet met wasbakje
- Badkamer (7 m²) met dubbele wastafel en ligbad
- Slaapkamer (9 m²) met dressing (8 m²)
- Slaapkamer (8 m²)
1ste verdieping:
- Ruime overloop met plaats voor bureauruimte (7 m²)
- Twee slaapkamers van 10 m² en 22 m²
- Slaapkamer met dressing (36 m²)
- Badkamer (9 m²) met wastafel, ligbad, douche, toilet
Kruipkelder onder de hele woning waar luchtkanalen van verwarming zijn ondergebracht
Centrale verwarming op aardgas
Houten ramen met dubbel glas
Geïsoleerd pannendak
Voor- en achtertuin zuidgericht, naar eigen smaak aan te leggen
Interesse?
Je kan ons contacteren via bianca@immovadis.be of 0487/32.19.97.
Energie
![]() |
- EPC Certificaat: 20251007-0003699162-RES-2
- Energieverbruik: 357 kWh/m²/jaar
- Verwarming: Gas
- Beglazing: Standaard dubbel
Extra budget nodig voor je renovatie?
De overheid helpt je dit pand energetisch te renoveren! Hieronder zie je het premiebedrag dat je mogelijks van de overheid krijgt.
Het huidige EPC-label is:

Op de kaart

Financieel
| Prijs | |
|---|---|
| Kadastraal inkomen (niet geïndexeerd) | € 823 |
Berekening kosten
Je aankoopkosten? Die heb je snel berekent via de knop hieronder.
Bijkomende info
Gebouw
| Bouwjaar | 1972 |
|---|---|
| Staat | Te renoveren |
| Is beschermd | Nee |
| Bouwcertificaat | Nee |
| Bewoonbaar (m²) | 210 |
| Verdieping | 0 |
| Gevels | 4 |
| Badkamers | 2 |
| Slaapkamers | 5 |
| Verdiepingen | 0 |
| Garages | 1 |
| Keukens | 1 |
| Leefruimtes | 1 |
| Opslagruimtes | 1 |
| Toiletten | 1 |
Ruimtes
| Slaapkamer | 85 m² |
|---|---|
| Leefruimte | 38 m² |
| Keuken | 8 m² |
| Kamer 1 | 21 m² |
| Kamer 2 | 7 m² |
| Kamer 3 | 8 m² |
| Kamer 4 | 6 m² |
| Kamer 5 | 2 m² |
| Kamer 6 | 7 m² |
| Kamer 7 | 9 m² |
| Opbergruimte | 9 m² |
| Kamer 8 | 10 m² |
Faciliteiten
| Keuken | EXTRA_INFO.OUTFITTING.VALUE.SEPARATEKITCHEN |
|---|---|
| Beglazing | Standaard dubbel |
| Luiken | Nee |
| Primair verwarmingstype | Decentrale verwarming |
| Primaire verwarmingsbron | Warmtenet |
| Brandstof primaire verwarming | Gas |
| Warm water type | Decentrale verwarming |
| Elektrisch keuringsattest | Nee |
| Septische tank | Nee |
| Beerput | Nee |
Perceel
| Overstromingsgevoelig | Geen |
|---|---|
| Voorkeurrecht | Nee |
| Bebouwde oppervlakte (m²) | 210 |
| Oriëntatie voorgevel | Zuid |
Vergunning
| Vergunning | Vergunning beschikbaar |
|---|
Uitrusting
| Investeringspand | Nee |
|---|---|
| Geschikt als kangoeroewoning | Nee |
| Geschikt voor rolstoelgebruikers | Nee |
| Parking | Nee |
| Garage | Ja |
| Thuiskantoor | Nee |
| Kelder | Nee |
| Zolder | Nee |
| Opslagruimte | Ja |
| Tuin | Nee |
| Terras | Nee |
| Lift | Nee |
| Rioolaansluiting | Nee |
| Gasaansluiting | Ja |
| Wateraansluiting | Ja |
| Elektriciteitsaansluiting | Ja |
| TV aansluiting | Nee |
| Internetaansluiting | Nee |
| Zonnepanelen | Ja |
| Zonneboiler | Nee |
| Thuisbatterij | Nee |
| Alarm | Nee |
| Zwembad | Nee |
| Sauna | Nee |
| Jacuzzi | Nee |
| Videofoon | Nee |
| Domotica | Nee |
| Grondwaterput | Nee |
| Ventilatie | Nee |
Een pand van
Immovadis
Welkom Thuis
Geen alledaagse standaard makelaar!
ImmoVadis staat voor anders durven zijn, maar wel binnen de professionele kaders.
Wij pakken uw vastgoed professioneel, duidelijk (helder) en tijdgericht aan, waarbij u als klant ten allen tijde centraal staat en zich WELKOM THUIS voelt!
ImmoVadis gelooft in 'anders durven denken', samen met een realistische, no-nonsense aanpak. Daarnaast is vertrouwen, passie en een goede relatie met de klant van zeer groot belang.
Wij streven ernaar om onze klanten altijd tevreden te houden. ImmoVadis is dan ook een klantgericht kantoor met een hoogwaardig dienstverleningsniveau.
Team
Immovadis bestaat uit een team van medewerkers en partners, onder leiding van een vat vol ervaring op niveau van makelaardij, Guy Clerinx in samenwerking met een bouwkundig aannemer, Wim Lambrechts (ProMaCon BV).
Door deze samenwerking kunnen we op het vlak van bouwkundigheid een meerwaarde toevoegen aan het gebruikelijk takenpakket van een standaard makelaar.
Als klant krijgt u deze deskundige meerwaarde automatisch mee inbegrepen in onze dienstverlening.
86433936
Leer meer over vastgoed
24 November 2025
Uitgezocht voor jouw gemeente: Hoeveel stijgt de waarde van je woning door een renovatie?
22 October 2025
Hoeveel kan ik lenen om een huis te kopen?
11 June 2025
Huis kopen met bouwovertreding? Dit moet je weten
11 May 2025


