Instapklare open bebouwing op een rustige ligging in Lanaken
€ 415.000
Een pand van IMMO VERSLEGERS
Overzicht
- 174 m² bewoonbaar
- 709 m² grond
- 3 Slaapkamer(s)
- 1 Badkamer(s)
- 1 Toilet(ten)
- 1 Tuin
Beschrijving
Volledig gerenoveerde woning in hartje Veldwezelt/Lanaken
Welkom in Kerkveld 45 te Lanaken – een karaktervolle woning die vanbinnen een volledige metamorfose onderging.
Dankzij een grondige totaalrenovatie combineert deze woning vandaag een strak, tijdloos interieur met hedendaags wooncomfort.
Met een energiezuinig label B en een instapklare afwerking is dit een thuis waar u zonder zorgen meteen kan intrekken.
Deze unieke woning werd binnenin volledig vernieuwd, met aandacht voor zowel comfort als energie-efficiëntie. Zo werd ze uitgerust met:
- Nieuwe ramen
- Nieuwe vloeren en vloerverwarming
- Volledige isolatie van muren en vloeren en het dak
- Nieuwe elektriciteit en sanitair
- Ventilatie
Een échte totaalrenovatie die zorgt voor een hedendaagse uitstraling en duurzaam wooncomfort.
Ligging & bereikbaarheid
Rustig gelegen in Lanaken (Veldwezelt), biedt deze woning een aangename woonomgeving met een uitstekende bereikbaarheid. Dagelijkse voorzieningen bevinden zich in de nabije omgeving en dankzij de vlotte verbindingen bent u snel in Maastricht, Bilzen of Maasmechelen. Via de E314 bereikt u bovendien gemakkelijk steden zoals Genk en Hasselt. Ook het openbaar vervoer is goed vertegenwoordigd met meerdere buslijnen in de buurt.
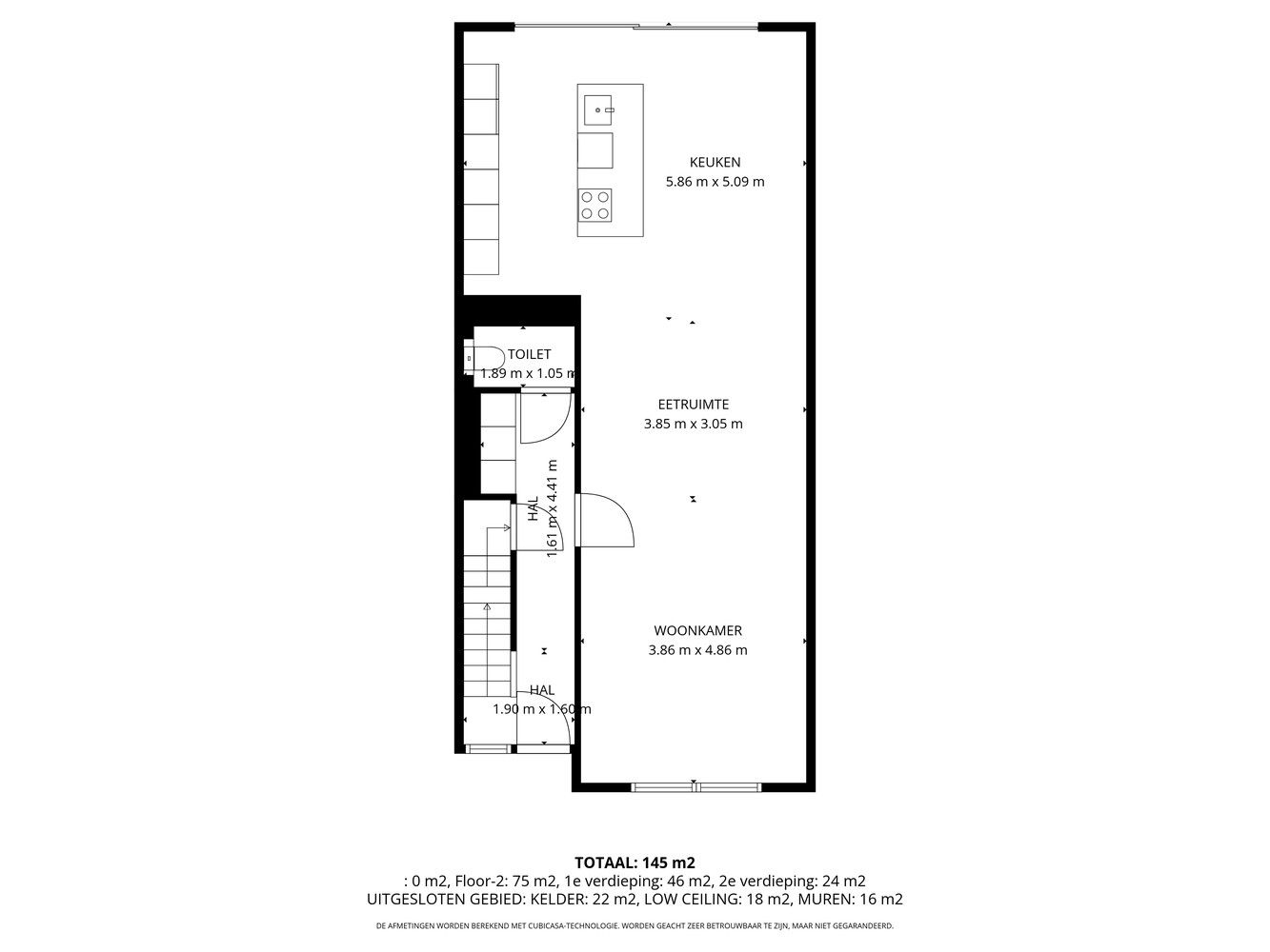
Indeling
Via de inkomhal komt u binnen in de woning met toegang tot het apart gastentoilet en de ruime, lichtrijke leefruimte met open keuken. Grote raampartijen richting de tuin zorgen voor een aangenaam ruimtegevoel en veel natuurlijk licht. Extra comfort wordt geboden door de airco in de leefruimte.
Op de eerste verdieping geeft de nachthal toegang tot twee slaapkamers, beide voorzien van airco. De hoofdslaapkamer beschikt bovendien over een aansluitende dressing. De badkamer is volledig ingericht met een ligbad, inloopdouche, dubbele lavabo én toilet.
De zolderverdieping, bereikbaar via een vaste trap, biedt tal van mogelijkheden: extra slaapkamer(s).
Buitenruimte
De zuidelijk georiënteerde tuin is een absolute troef en nodigt uit om de hele dag door van de zon te genieten. Achteraan bevindt zich een tuinhuis, dat ook perfect kan dienen als garage of ruime berging.
Troeven op een rij
Samengevat: een instapklare, energiezuinige woning op een rustige locatie, mét zonrijke tuin en uitbreidingsmogelijkheden. Kom zelf de sfeer en het comfort ontdekken in Kerkveld 45 te Lanaken!
Wenst u graag meer informatie of een bezichtiging? Neem contact met ons op via het nummer +32 (0)89 23 44 22 of mail naar info@immoverslegers.be!
Welkom in Kerkveld 45 te Lanaken – een karaktervolle woning die vanbinnen een volledige metamorfose onderging.
Dankzij een grondige totaalrenovatie combineert deze woning vandaag een strak, tijdloos interieur met hedendaags wooncomfort.
Met een energiezuinig label B en een instapklare afwerking is dit een thuis waar u zonder zorgen meteen kan intrekken.
Deze unieke woning werd binnenin volledig vernieuwd, met aandacht voor zowel comfort als energie-efficiëntie. Zo werd ze uitgerust met:
- Nieuwe ramen
- Nieuwe vloeren en vloerverwarming
- Volledige isolatie van muren en vloeren en het dak
- Nieuwe elektriciteit en sanitair
- Ventilatie
Een échte totaalrenovatie die zorgt voor een hedendaagse uitstraling en duurzaam wooncomfort.
Ligging & bereikbaarheid
Rustig gelegen in Lanaken (Veldwezelt), biedt deze woning een aangename woonomgeving met een uitstekende bereikbaarheid. Dagelijkse voorzieningen bevinden zich in de nabije omgeving en dankzij de vlotte verbindingen bent u snel in Maastricht, Bilzen of Maasmechelen. Via de E314 bereikt u bovendien gemakkelijk steden zoals Genk en Hasselt. Ook het openbaar vervoer is goed vertegenwoordigd met meerdere buslijnen in de buurt.
Indeling
Via de inkomhal komt u binnen in de woning met toegang tot het apart gastentoilet en de ruime, lichtrijke leefruimte met open keuken. Grote raampartijen richting de tuin zorgen voor een aangenaam ruimtegevoel en veel natuurlijk licht. Extra comfort wordt geboden door de airco in de leefruimte.
Op de eerste verdieping geeft de nachthal toegang tot twee slaapkamers, beide voorzien van airco. De hoofdslaapkamer beschikt bovendien over een aansluitende dressing. De badkamer is volledig ingericht met een ligbad, inloopdouche, dubbele lavabo én toilet.
De zolderverdieping, bereikbaar via een vaste trap, biedt tal van mogelijkheden: extra slaapkamer(s).
Buitenruimte
De zuidelijk georiënteerde tuin is een absolute troef en nodigt uit om de hele dag door van de zon te genieten. Achteraan bevindt zich een tuinhuis, dat ook perfect kan dienen als garage of ruime berging.
Troeven op een rij
- Recent vernieuwd: strak, modern en tijdloos afgewerkt;
- EPC-B: energiezuinig en toekomstgericht;
- Elektriciteit is conform;
- Airco in leefruimte én beide slaapkamers;
- Zuidgerichte tuin + tuinhuis/garagepotentieel;
- Vlotte bereikbaarheid richting Maastricht en via E314.
Samengevat: een instapklare, energiezuinige woning op een rustige locatie, mét zonrijke tuin en uitbreidingsmogelijkheden. Kom zelf de sfeer en het comfort ontdekken in Kerkveld 45 te Lanaken!
Wenst u graag meer informatie of een bezichtiging? Neem contact met ons op via het nummer +32 (0)89 23 44 22 of mail naar info@immoverslegers.be!
Energie
![]() |
- EPC Certificaat: 20251129-000374090-RES-1
- Energieverbruik: 145 kWh/m²/jaar
- E-peil: E0
- Verwarming: Gas
- Beglazing: Standaard dubbel
Op de kaart

Financieel
| Prijs | |
|---|---|
| Kadastraal inkomen (niet geïndexeerd) | € 552 |
Berekening kosten
Je aankoopkosten? Die heb je snel berekend via de knop hieronder.
Bijkomende info
Gebouw
| Bouwjaar | 1946 |
|---|---|
| Renovatie jaar | 2024 |
| Bewoonbaar (m²) | 174 |
| Badkamers | 1 |
| Slaapkamers | 3 |
| Verdiepingen | 0 |
| Garages | 0 |
| Parkeerplaatsen | 0 |
| Toiletten | 1 |
Faciliteiten
| Beglazing | Standaard dubbel |
|---|---|
| Brandstof primaire verwarming | Gas |
| Septische tank | Nee |
Perceel
| Overstromingsgevoelig | Geen |
|---|---|
| P-score | A |
| G-score | A |
| Totale oppervlakte (m²) | 709 |
| Bebouwde oppervlakte (m²) | 0 |
| Tuin oppervlakte (m²) | 0 |
| Oriëntatie tuin | Zuid |
Vergunning
| Verkavelingsvergunning | Geen beschikbaar |
|---|
Uitrusting
| Investeringspand | Nee |
|---|---|
| Parking | Nee |
| Garage | Nee |
| Zolder | Ja |
| Tuin | Ja |
| Lift | Nee |
| Rioolaansluiting | Ja |
| Gasaansluiting | Ja |
| Wateraansluiting | Ja |
| Elektriciteitsaansluiting | Ja |
| Internetaansluiting | Ja |
| Telefoonaansluiting | Ja |
| Zonnepanelen | Nee |
| Zonneboiler | Nee |
| Alarm | Nee |
| Videofoon | Nee |
| Grondwaterput | Nee |
Een pand van
IMMO VERSLEGERS
Welkom bij IMMO VERSLEGERS
UW VERTROUWENSPARTNER IN VASTGOED IN LANAKEN EN OMSTREKEN!
Een persoonlijke aanpak, correcte en vlotte service en het juiste technische en juridisch advies vormen de kenmerken van ons kantoor.
Wij helpen u dan ook graag verder in de aankoop, verkoop of verhuur van uw eigendom. Met passie voor vastgoed en het enthousiasme voor het ondernemen gaan we samen met u voor een succesvolle verkoop!
Immo Verslegers staat u graag bij wat betreft:
- Verkoop
- Verhuur
- Nieuwbouw
- Buitenlandsvastgoed
- Bedrijfsvastgoed
- Aankoopbegeleiding
- Verzekeringen
Gratis schatting van uw eigendom door een vastgoed expert!
Anouk Verslegers, Gunter Verslegers, Sjulie Frijns en Mirthe Hermans heten u van harte welkom!
Kerkveld 45, 3620 Lanaken
Leer meer over vastgoed
24 November 2025
Uitgezocht voor jouw gemeente: Hoeveel stijgt de waarde van je woning door een renovatie?
22 October 2025
Hoeveel kan ik lenen om een huis te kopen?
11 June 2025
Huis kopen met bouwovertreding? Dit moet je weten
11 May 2025
