Nieuw
Gezellige woning in het landelijke Veldwezelt
€ 375.000
Een pand van Immovadis
Favoriet
Jouw zoektocht
Jouw scoretabel voor dit pand
Aan het laden...
Jouw geplande bezichtigingen
Aan het laden...
Overzicht
- 3 Slaapkamer(s)
- 1 Badkamer(s)
Beschrijving
Wonen in alle rust, vlakbij Maastricht – jouw ideale investering of thuis!
Ontdek deze charmante open bebouwing in het groene en rustige Veldwezelt, op slechts enkele minuten van Maastricht. Een unieke combinatie van ruimte, comfort en interessante investeringsmogelijkheden!
Bij het betreden van de woning word je meteen verwelkomd in een lichtrijke woonkamer die naadloos overgaat in de keuken, met directe toegang tot een zonnig terras en een onderhoudsvriendelijke tuin – perfect om te genieten van elk seizoen.
TROEVEN:
✔ Grondige renovatie van de woning rond 2020.
✔ Rustige, landelijke ligging met snelle verbinding naar Maastricht
✔ Open bebouwing met tuin en zonnig terras
✔ 3 ruime slaapkamers + zeer ruime afgewerkte zolderruimte bereikbaar via vaste trap.
✔ Centrale verwarming op aardgas en vloerverwarming in badkamer
✔ Praktische kelder aanwezig
✔ Uitstekende investering met mooie huuropbrengst
EXTRA TROEF:
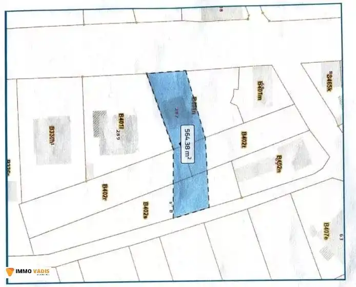
De woning is gelegen op perceel B401N, maar zal herverkavelt worden en de aankoop komt inclusief achtergelegen grond B402R die achter de 2 naastgelegen buren loopt.
Hierdoor bestaat ook de mogelijkheid om dit te verkopen aan de naastgelegen buren.
Verder werd deze woonst steeds zeer goed onderhouden en is ze momenteel verhuurd aan goede voorwaardes.
De woning zal terug vrij zijn bij akte. De huidige huur eindigt bij verkoop.
Interesse om dit pand te ontdekken? Neem snel contact op voor meer info of een bezoek op afspraak!
Ontdek deze charmante open bebouwing in het groene en rustige Veldwezelt, op slechts enkele minuten van Maastricht. Een unieke combinatie van ruimte, comfort en interessante investeringsmogelijkheden!
Bij het betreden van de woning word je meteen verwelkomd in een lichtrijke woonkamer die naadloos overgaat in de keuken, met directe toegang tot een zonnig terras en een onderhoudsvriendelijke tuin – perfect om te genieten van elk seizoen.
TROEVEN:
✔ Grondige renovatie van de woning rond 2020.
✔ Rustige, landelijke ligging met snelle verbinding naar Maastricht
✔ Open bebouwing met tuin en zonnig terras
✔ 3 ruime slaapkamers + zeer ruime afgewerkte zolderruimte bereikbaar via vaste trap.
✔ Centrale verwarming op aardgas en vloerverwarming in badkamer
✔ Praktische kelder aanwezig
✔ Uitstekende investering met mooie huuropbrengst
EXTRA TROEF:
De woning is gelegen op perceel B401N, maar zal herverkavelt worden en de aankoop komt inclusief achtergelegen grond B402R die achter de 2 naastgelegen buren loopt.
Hierdoor bestaat ook de mogelijkheid om dit te verkopen aan de naastgelegen buren.
Verder werd deze woonst steeds zeer goed onderhouden en is ze momenteel verhuurd aan goede voorwaardes.
De woning zal terug vrij zijn bij akte. De huidige huur eindigt bij verkoop.
Interesse om dit pand te ontdekken? Neem snel contact op voor meer info of een bezoek op afspraak!
Energie
![]() |
- EPC Certificaat: 20251022-0003712879-RES-1
- Energieverbruik: 396 kWh/m²/jaar
- Verwarming: Gas
- Beglazing: Standaard dubbel
Extra budget nodig voor je renovatie?
De overheid helpt je dit pand energetisch te renoveren! Hieronder zie je het premiebedrag dat je mogelijks van de overheid krijgt.
Het huidige EPC-label is:

Op de kaart

Financieel
| Prijs | |
|---|---|
| Kadastraal inkomen (niet geïndexeerd) | € 639 |
Berekening kosten
Je aankoopkosten? Die heb je snel berekend via de knop hieronder.
Bijkomende info
Gebouw
| Bouwjaar | 1958 |
|---|---|
| Renovatie jaar | 2020 |
| Staat | Goed onderhouden |
| Is beschermd | Nee |
| Bouwcertificaat | Nee |
| Verdieping | 0 |
| Gevels | 4 |
| Zolder | 2 |
| Badkamers | 1 |
| Slaapkamers | 3 |
| Verdiepingen | 4 |
Ruimtes
| Slaapkamer | 42.9 m² |
|---|---|
| Kamer 1 | 3.6 m² |
| Kamer 2 | 5 m² |
| Zolder | 24.5 m² |
| Kamer 3 | 13 m² |
Faciliteiten
| Materiaal ramenomlijstingen | PVC |
|---|---|
| Beglazing | Standaard dubbel |
| Luiken | Nee |
| Primair verwarmingstype | Decentrale verwarming |
| Primaire verwarmingsbron | Condensatieketel |
| Brandstof primaire verwarming | Gas |
| Primaire verwarming | Radiatoren |
| Warm water type | Decentrale verwarming |
| Elektrisch keuringsattest | Nee |
| Septische tank | Nee |
| Beerput | Nee |
Perceel
| Overstromingsgevoelig | Geen |
|---|---|
| Voorkeurrecht | Nee |
| Bebouwde oppervlakte (m²) | 0 |
| Oriëntatie voorgevel | Oost |
Vergunning
| Vergunning | Vergunning beschikbaar |
|---|---|
| Verkavelingsvergunning | Geen beschikbaar |
Uitrusting
| Investeringspand | Nee |
|---|---|
| Geschikt als kangoeroewoning | Nee |
| Geschikt voor rolstoelgebruikers | Nee |
| Parking | Nee |
| Garage | Nee |
| Thuiskantoor | Nee |
| Kelder | Nee |
| Zolder | Ja |
| Opslagruimte | Nee |
| Tuin | Nee |
| Terras | Nee |
| Lift | Nee |
| Rioolaansluiting | Nee |
| Gasaansluiting | Ja |
| Wateraansluiting | Ja |
| Elektriciteitsaansluiting | Ja |
| TV aansluiting | Nee |
| Internetaansluiting | Ja |
| Zonnepanelen | Nee |
| Zonneboiler | Nee |
| Thuisbatterij | Nee |
| Alarm | Nee |
| Zwembad | Nee |
| Sauna | Nee |
| Jacuzzi | Nee |
| Videofoon | Nee |
| Domotica | Nee |
| Grondwaterput | Nee |
| Ventilatie | Nee |
Een pand van
Immovadis
Welkom Thuis
Geen alledaagse standaard makelaar!
ImmoVadis staat voor anders durven zijn, maar wel binnen de professionele kaders.
Wij pakken uw vastgoed professioneel, duidelijk (helder) en tijdgericht aan, waarbij u als klant ten allen tijde centraal staat en zich WELKOM THUIS voelt!
ImmoVadis gelooft in 'anders durven denken', samen met een realistische, no-nonsense aanpak. Daarnaast is vertrouwen, passie en een goede relatie met de klant van zeer groot belang.
Wij streven ernaar om onze klanten altijd tevreden te houden. ImmoVadis is dan ook een klantgericht kantoor met een hoogwaardig dienstverleningsniveau.
Team
Immovadis bestaat uit een team van medewerkers en partners, onder leiding van een vat vol ervaring op niveau van makelaardij, Guy Clerinx in samenwerking met een bouwkundig aannemer, Wim Lambrechts (ProMaCon BV).
Door deze samenwerking kunnen we op het vlak van bouwkundigheid een meerwaarde toevoegen aan het gebruikelijk takenpakket van een standaard makelaar.
Als klant krijgt u deze deskundige meerwaarde automatisch mee inbegrepen in onze dienstverlening.
86491289
Leer meer over vastgoed
23 March 2026
Op Spotto zoeken als een pro: 10 slimme tips
21 March 2026
Hoeveel kan ik lenen om een huis te kopen?
01 March 2026
Wanneer heb ik een bouwvergunning of omgevingsvergunning nodig?
17 February 2026


