Nieuw
Bouwgrond (vrijstaande bebouwing) exclusief gelegen in bosrijke villawijk te Neerharen
€ 245.000
Een pand van Eurinvesco
Favoriet
Jouw zoektocht
Jouw scoretabel voor dit pand
Aan het laden...
Jouw geplande bezichtigingen
Aan het laden...
Overzicht
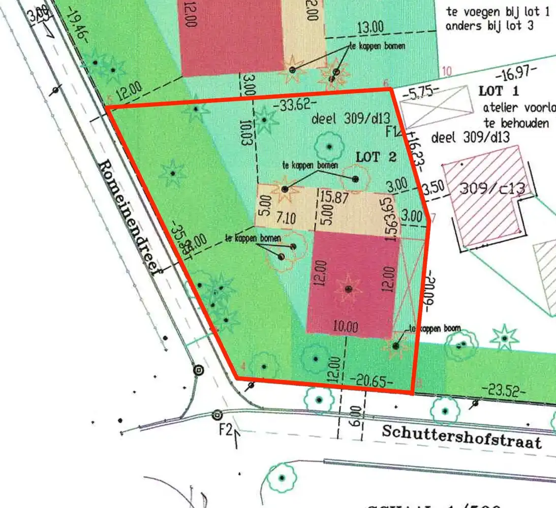
- 970 m² grond
Beschrijving
Droom je van bouwen op een toplocatie waar rust, natuur en bereik perfect samenkomen? Dan is deze uitzonderlijke bouwkavel van 9a 70ca precies wat je zoekt. Dit prachtige hoekperceel, bestemd voor een open bebouwing, biedt een zeldzame combinatie van natuur en vrijheid. Dankzij de hoekligging geniet je van een extra ruimtelijk gevoel en tal van architecturale mogelijkheden om jouw droomwoning volledig naar eigen smaak vorm te geven.
De ligging is werkelijk uniek: aan de inrit van de gegeerde Goudkust én aan de toegangspoort van het prachtige Pietersheim Bos. Hier stap je letterlijk vanuit je voordeur de natuur in. Bovendien bevindt het luxueuze hotel La Butte aux Bois zich op wandelafstand – ideaal voor een gastronomisch diner, wellnessmoment of een stijlvolle overnachting dichtbij huis.
Gelegen in het charmante Neerharen, een deelgemeente van Lanaken, woon je hier in een idyllische omgeving die bekendstaat om haar landelijke karakter en hoge levenskwaliteit. Tegelijk ben je op korte afstand van het bruisende Maastricht, met zijn winkels, cultuur en horeca.
Voor liefhebbers van natuur en ontspanning ligt ook het Nationaal Park Hoge Kempen vlakbij, met eindeloze wandel- en fietsmogelijkheden in een adembenemend landschap. Kortom, deze bouwgrond biedt het beste van twee werelden: een oase van rust en groen met een exclusieve uitstraling, gecombineerd met een uitstekende bereikbaarheid en alle voorzieningen binnen handbereik.
Troeven van dit perceel:
- Oppervlakte: 9a 70ca
- Bestemming: open bebouwing
- Bouwvoorschriften: zie bijlage
- Hoekperceel met extra lichtinval en mogelijkheden
- Gelegen in een rustige, groene omgeving
- Vlotte verbinding naar Maastricht en omliggende gemeenten
Een unieke kans om jouw woondroom te realiseren op een topligging.
De ligging is werkelijk uniek: aan de inrit van de gegeerde Goudkust én aan de toegangspoort van het prachtige Pietersheim Bos. Hier stap je letterlijk vanuit je voordeur de natuur in. Bovendien bevindt het luxueuze hotel La Butte aux Bois zich op wandelafstand – ideaal voor een gastronomisch diner, wellnessmoment of een stijlvolle overnachting dichtbij huis.
Gelegen in het charmante Neerharen, een deelgemeente van Lanaken, woon je hier in een idyllische omgeving die bekendstaat om haar landelijke karakter en hoge levenskwaliteit. Tegelijk ben je op korte afstand van het bruisende Maastricht, met zijn winkels, cultuur en horeca.
Voor liefhebbers van natuur en ontspanning ligt ook het Nationaal Park Hoge Kempen vlakbij, met eindeloze wandel- en fietsmogelijkheden in een adembenemend landschap. Kortom, deze bouwgrond biedt het beste van twee werelden: een oase van rust en groen met een exclusieve uitstraling, gecombineerd met een uitstekende bereikbaarheid en alle voorzieningen binnen handbereik.
Troeven van dit perceel:
- Oppervlakte: 9a 70ca
- Bestemming: open bebouwing
- Bouwvoorschriften: zie bijlage
- Hoekperceel met extra lichtinval en mogelijkheden
- Gelegen in een rustige, groene omgeving
- Vlotte verbinding naar Maastricht en omliggende gemeenten
Een unieke kans om jouw woondroom te realiseren op een topligging.
Energie
- E-peil: E0
- Beglazing: Onbekend
Op de kaart

Financieel
| Prijs | |
|---|---|
| Kadastraal inkomen (niet geïndexeerd) | € 1 |
Berekening kosten
Je aankoopkosten? Die heb je snel berekend via de knop hieronder.
Bijkomende info
Perceel
| Overstromingsgevoelig | Geen |
|---|---|
| P-score | A |
| Totale oppervlakte (m²) | 970 |
Vergunning
| Verkavelingsvergunning | Vergunning beschikbaar |
|---|
Uitrusting
| Investeringspand | Nee |
|---|---|
| Rioolaansluiting | Nee |
| Gasaansluiting | Nee |
| Wateraansluiting | Nee |
| Elektriciteitsaansluiting | Nee |
| Internetaansluiting | Nee |
| Telefoonaansluiting | Nee |
Een pand van
Eurinvesco
Eurinvesco is een bekende naam in regio Lanaken en omstreken. Door onze jarenlange ervaring en kennis beschikken we over een omvangrijk netwerk en dit aan beide kanten van de Maas.
Selling the good life
Wonen en geluk, het is zo nauw met elkaar verbonden. Wij verkopen niet zomaar een huis, maar een 'thuis'. Een bijzondere plek met een ziel, waar lief en leed gedeeld zijn, herinneringen gecreëerd zijn, waar mensen zich thuis voelen en genieten van het leven. Wat je voelt en denkt, verliezen we daarbij nooit uit het oog.
Het verkopen van een woning vergt een aantal wezenlijke competenties. Buiten het emotioneel aanvoelen van een klant, bestaat er ook de rationele kant aan de verkoop van een huis. Het proces van verkoopbegeleiding is er een van voelen en denken. Een heldere communicatie met onze klanten is essentieel in onze branche. We doen er alles aan om iedereen persoonlijk en goed te bedienen. Ons hart ligt bij het vinden van de juiste match tussen hetgeen wij aanbieden en datgene waarnaar de klant op zoek is. Selling the good life is de essentie van ons vak.
Schuttershofstraat 52
Leer meer over vastgoed
23 March 2026
Op Spotto zoeken als een pro: 10 slimme tips
21 March 2026
Hoeveel kan ik lenen om een huis te kopen?
01 March 2026
Wanneer heb ik een bouwvergunning of omgevingsvergunning nodig?
17 February 2026