Exclusief herenhuis in Oud-Rekem
€ 467.000
Een pand van Immovadis
Favoriet
Jouw zoektocht
Jouw scoretabel voor dit pand
Aan het laden...
Jouw geplande bezichtigingen
Aan het laden...
Overzicht
- 147 m² bewoonbaar
Beschrijving
In het prestigieuze en residentiële Oud-Rekem bevindt zich deze stijlvolle woning in gesloten bebouwing, gelegen op de Groenplaats 14.4.
De woning maakt deel uit van een rustig, verkeersarm woonerf en geniet van een groene omgeving met park op wandelafstand.
Dit eigentijdse herenhuis werd gebouwd in 2022 en is afgewerkt met hoogwaardige en duurzame materialen. De woning verkeert in uitstekende staat van onderhoud en biedt een aangenaam wooncomfort.
Ze beschikt over twee slaapkamers, een private autostaanplaats en twee kelderbergingen.
Op energetisch vlak is de woning bijzonder interessant dankzij vloerverwarming en vijf zonnepanelen. In alle vertrekken zijn airco's voorzien. Bovendien geldt een vrijstelling van 50% op het kadastraal inkomen tot 2029, wat een belangrijk financieel voordeel vormt.
Achteraan bevindt zich een kleine, ingesloten tuin met terras, ideaal voor wie in alle rust wil genieten van een onderhoudsvriendelijke buitenruimte.
Alle voorzieningen qua scholen, winkels, openbaar vervoer en ontspanning zijn in de nabijheid te vinden.
Samengevat een ideale woonst voor wie op zoek is naar kwaliteit, rust en energiezuinig comfort op een topligging in Lanaken (Oud Rekem).
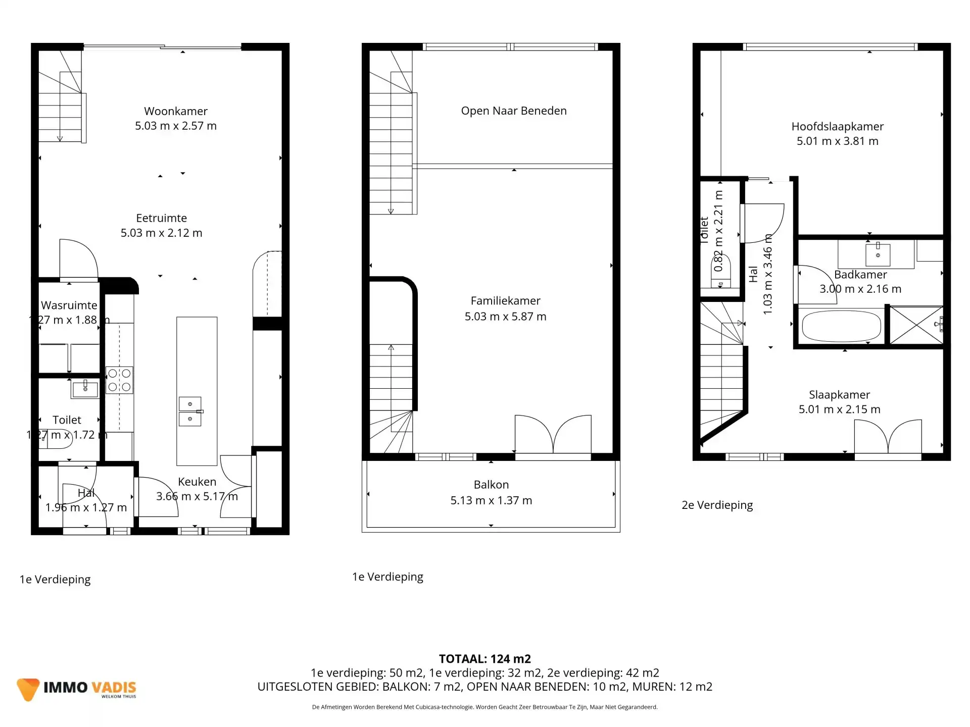
Beschrijving van het pand:
Gelijkvloers:
- Inkomhal en toilet met wasbakje en spiegel (5 m²)
- Ruime inbouwkeuken (19 m²) met DEKTON werktafel, inductiekookplaat met afzuigkap, combi stoomoven en vaatwasser
- Keukenberging (4 m²) met voorzieningen voor wasmachine en droogkast en ventilatiesysteem D
- Eetkamer (27 m²) met vide die voor extra daglicht zorgt met buitenscreen op plafondhoog buitenraam met toegang naar buitenterras en tuin
- Vanuit de eetkamer leidt de trap naar de verdieping met een glazen borstwering en verlichte trapleuning
1ste verdieping:
- Ruime zit- en woonkamer (32 m²) met parketvloer en trap naar de tweede verdieping met verlichte trapleuning
- Buitenterras (6 m²) met zicht op het park
2de verdieping:
- Nachthal (4 m²) betegeld
- Japans toilet betegeld
- Slaapkamer één (10 m²) met vast tapijt
- Badkamer (7 m²) met stoomdouche, bubbelbad, marmeren muurtegels en betegeld
- Slaapkamer twee (19 m²) met inbouwkasten en vast tapijt
Alle kamers in de woning zijn met TV, internet en domotica uitgerust.
Twee kelderbergingen (10 m²) en ondergrondse autostandplaats (20 m²)
Aluminium ramen dubbel glas
Centrale verwarming op gas, vloerverwarming en klimaatregeling in alle lokalen, door de zonnepanelen wordt aangestuurd
Achter de woning bevindt zich een buitenterras (15 m²), naadloos overlopend in de tuin, volledig omheind en met een toegangspoort afgesloten.
De woning maakt deel uit van een rustig, verkeersarm woonerf en geniet van een groene omgeving met park op wandelafstand.
Dit eigentijdse herenhuis werd gebouwd in 2022 en is afgewerkt met hoogwaardige en duurzame materialen. De woning verkeert in uitstekende staat van onderhoud en biedt een aangenaam wooncomfort.
Ze beschikt over twee slaapkamers, een private autostaanplaats en twee kelderbergingen.
Op energetisch vlak is de woning bijzonder interessant dankzij vloerverwarming en vijf zonnepanelen. In alle vertrekken zijn airco's voorzien. Bovendien geldt een vrijstelling van 50% op het kadastraal inkomen tot 2029, wat een belangrijk financieel voordeel vormt.
Achteraan bevindt zich een kleine, ingesloten tuin met terras, ideaal voor wie in alle rust wil genieten van een onderhoudsvriendelijke buitenruimte.
Alle voorzieningen qua scholen, winkels, openbaar vervoer en ontspanning zijn in de nabijheid te vinden.
Samengevat een ideale woonst voor wie op zoek is naar kwaliteit, rust en energiezuinig comfort op een topligging in Lanaken (Oud Rekem).
Beschrijving van het pand:
Gelijkvloers:
- Inkomhal en toilet met wasbakje en spiegel (5 m²)
- Ruime inbouwkeuken (19 m²) met DEKTON werktafel, inductiekookplaat met afzuigkap, combi stoomoven en vaatwasser
- Keukenberging (4 m²) met voorzieningen voor wasmachine en droogkast en ventilatiesysteem D
- Eetkamer (27 m²) met vide die voor extra daglicht zorgt met buitenscreen op plafondhoog buitenraam met toegang naar buitenterras en tuin
- Vanuit de eetkamer leidt de trap naar de verdieping met een glazen borstwering en verlichte trapleuning
1ste verdieping:
- Ruime zit- en woonkamer (32 m²) met parketvloer en trap naar de tweede verdieping met verlichte trapleuning
- Buitenterras (6 m²) met zicht op het park
2de verdieping:
- Nachthal (4 m²) betegeld
- Japans toilet betegeld
- Slaapkamer één (10 m²) met vast tapijt
- Badkamer (7 m²) met stoomdouche, bubbelbad, marmeren muurtegels en betegeld
- Slaapkamer twee (19 m²) met inbouwkasten en vast tapijt
Alle kamers in de woning zijn met TV, internet en domotica uitgerust.
Twee kelderbergingen (10 m²) en ondergrondse autostandplaats (20 m²)
Aluminium ramen dubbel glas
Centrale verwarming op gas, vloerverwarming en klimaatregeling in alle lokalen, door de zonnepanelen wordt aangestuurd
Achter de woning bevindt zich een buitenterras (15 m²), naadloos overlopend in de tuin, volledig omheind en met een toegangspoort afgesloten.
Energie
![]() |
- EPC Certificaat: 73042-G-OMV_2018105938/EP10894/SV/A001/D01/SD001
- Energieverbruik: 37 kWh/m²/jaar
- Beglazing: Enkel
Op de kaart

Financieel
| Prijs |
|---|
Berekening kosten
Je aankoopkosten? Die heb je snel berekend via de knop hieronder.
Bijkomende info
Gebouw
| Bouwjaar | 2022 |
|---|---|
| Is beschermd | Nee |
| Bouwcertificaat | Ja |
| Bewoonbaar (m²) | 147 |
| Verdieping | 0 |
| Gevels | 2 |
| Slaapkamers | 0 |
| Verdiepingen | 0 |
Faciliteiten
| Beglazing | Enkel |
|---|---|
| Luiken | Nee |
| Primaire verwarmingsbron | EXTRA_INFO.OUTFITTING.VALUE.HEATPUMPGROUNDWATER |
| Primaire verwarming | Vloerverwarming |
| Warm water type | Decentrale verwarming |
| Elektrisch keuringsattest | Ja |
| Septische tank | Nee |
| Beerput | Nee |
Perceel
| Overstromingsgevoelig | Geen |
|---|---|
| Voorkeurrecht | Nee |
| Bebouwde oppervlakte (m²) | 147 |
Vergunning
| Vergunning | Vergunning beschikbaar |
|---|---|
| Verkavelingsvergunning | Geen beschikbaar |
Uitrusting
| Investeringspand | Nee |
|---|---|
| Geschikt als kangoeroewoning | Nee |
| Geschikt voor rolstoelgebruikers | Nee |
| Parking | Nee |
| Garage | Nee |
| Thuiskantoor | Nee |
| Kelder | Nee |
| Zolder | Nee |
| Opslagruimte | Nee |
| Tuin | Nee |
| Terras | Nee |
| Lift | Nee |
| Rioolaansluiting | Ja |
| Gasaansluiting | Ja |
| Wateraansluiting | Ja |
| Elektriciteitsaansluiting | Ja |
| TV aansluiting | Nee |
| Internetaansluiting | Nee |
| Zonnepanelen | Nee |
| Zonneboiler | Nee |
| Thuisbatterij | Nee |
| Alarm | Nee |
| Zwembad | Nee |
| Sauna | Nee |
| Jacuzzi | Nee |
| Videofoon | Nee |
| Domotica | Nee |
| Grondwaterput | Nee |
| Ventilatie | Nee |
Een pand van
Immovadis
Welkom Thuis
Geen alledaagse standaard makelaar!
ImmoVadis staat voor anders durven zijn, maar wel binnen de professionele kaders.
Wij pakken uw vastgoed professioneel, duidelijk (helder) en tijdgericht aan, waarbij u als klant ten allen tijde centraal staat en zich WELKOM THUIS voelt!
ImmoVadis gelooft in 'anders durven denken', samen met een realistische, no-nonsense aanpak. Daarnaast is vertrouwen, passie en een goede relatie met de klant van zeer groot belang.
Wij streven ernaar om onze klanten altijd tevreden te houden. ImmoVadis is dan ook een klantgericht kantoor met een hoogwaardig dienstverleningsniveau.
Team
Immovadis bestaat uit een team van medewerkers en partners, onder leiding van een vat vol ervaring op niveau van makelaardij, Guy Clerinx in samenwerking met een bouwkundig aannemer, Wim Lambrechts (ProMaCon BV).
Door deze samenwerking kunnen we op het vlak van bouwkundigheid een meerwaarde toevoegen aan het gebruikelijk takenpakket van een standaard makelaar.
Als klant krijgt u deze deskundige meerwaarde automatisch mee inbegrepen in onze dienstverlening.
86700594
Leer meer over vastgoed
Nieuw
23 March 2026
Op Spotto zoeken als een pro: 10 slimme tips
Nieuw
21 March 2026
Hoeveel kan ik lenen om een huis te kopen?
01 March 2026
Wanneer heb ik een bouwvergunning of omgevingsvergunning nodig?
17 February 2026
