In optie
RUIM GELIJKVLOERS APPARTEMENT MET TERRAS EN TUIN
€ 390.000
Een pand van Vastgoedkantoor MARVY
Overzicht
- 194 m² bewoonbaar
- 3 Slaapkamer(s)
- 1 Badkamer(s)
- 1 Toilet(ten)
- 1 Tuin
- 1 Garage(s)
Beschrijving
Ontdek dit prachtig lichtrijk en uitzonderlijk ruim gelijkvloers appartement (194m²) met terras én tuin, gelegen in de kleinschalige residentie Etna.
INDELING:
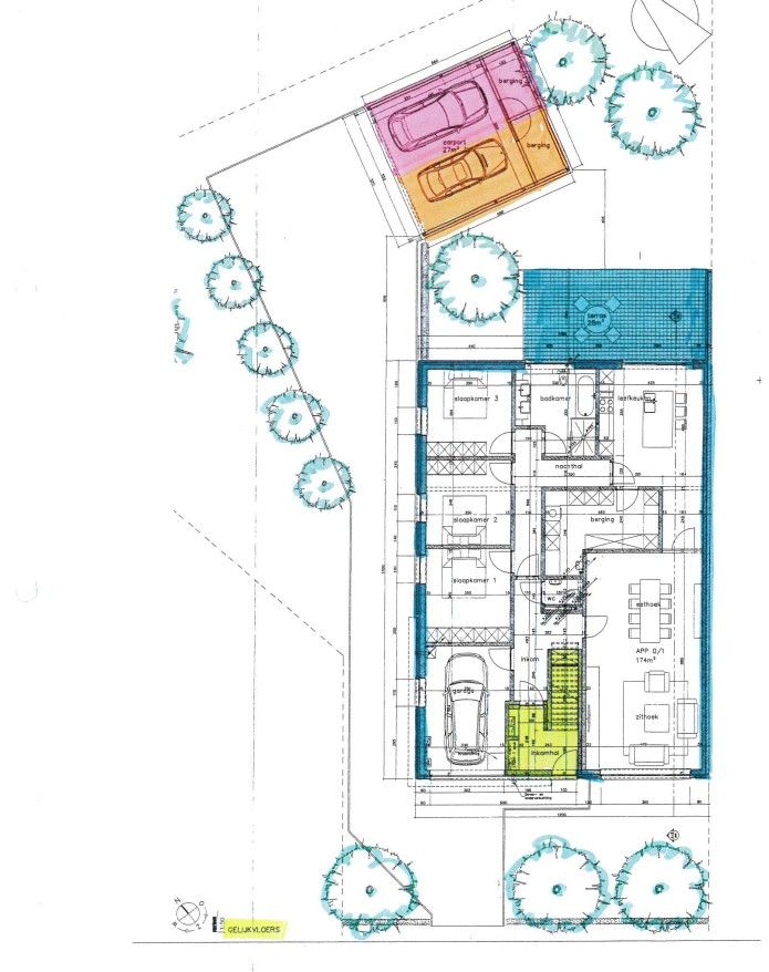
Inkomhal, gastentoilet, zeer ruime en aangename woonkamer (+/- 8,8 x 4,8m), volledig modern uitgeruste ruime open keuken met keukeneiland (vaatwasser - combi-oven, e.d.) uitgevend op het terras (28 m²), ruime berging/wasplaats, nachthal, badkamer (ligbad - inloopdouche - toilet - dubbel lavabomeubel), 3 ruime SLAAPKAMERS (+/-3,5 x 3,6m, +/-3,5 x 3,5m en +/-3,5 x 3,8m).
+ inpandige GARAGE
+ TERRAS (28 m²)
+ TUIN
Centraal gelegen net buiten het centrum van As. Op een boogscheut van het postkantoor, de bibliotheek en scholen “Vrije basisschool As” en “Gemeentelijke basisschool As”.
Vlotte verbinding naar Genk, Opglabbeek, Maasmechelen, Dilsen-Stokkem, ...
TROEVEN
INDELING:
Inkomhal, gastentoilet, zeer ruime en aangename woonkamer (+/- 8,8 x 4,8m), volledig modern uitgeruste ruime open keuken met keukeneiland (vaatwasser - combi-oven, e.d.) uitgevend op het terras (28 m²), ruime berging/wasplaats, nachthal, badkamer (ligbad - inloopdouche - toilet - dubbel lavabomeubel), 3 ruime SLAAPKAMERS (+/-3,5 x 3,6m, +/-3,5 x 3,5m en +/-3,5 x 3,8m).
+ inpandige GARAGE
+ TERRAS (28 m²)
+ TUIN
Centraal gelegen net buiten het centrum van As. Op een boogscheut van het postkantoor, de bibliotheek en scholen “Vrije basisschool As” en “Gemeentelijke basisschool As”.
Vlotte verbinding naar Genk, Opglabbeek, Maasmechelen, Dilsen-Stokkem, ...
TROEVEN
- Zéér ruim, recent appartement
- Ruime, lichtrijke ruimtes
- Groot terras uitgevend op de tuin
- Inpandige garage
Energie
![]() |
- Energieverbruik: 191 kWh/m²/jaar
- E-peil: E0
- Beglazing: Onbekend
Op de kaart

Financieel
| Prijs |
|---|
Berekening kosten
Je aankoopkosten? Die heb je snel berekend via de knop hieronder.
Bijkomende info
Gebouw
| Bouwjaar | 2015 |
|---|---|
| Bewoonbaar (m²) | 194 |
| Verdieping | 0 |
| Badkamers | 1 |
| Slaapkamers | 3 |
| Verdiepingen | 0 |
| Garages | 1 |
| Parkeerplaatsen | 0 |
| Toiletten | 1 |
Faciliteiten
| Septische tank | Nee |
|---|
Perceel
| P-score | A |
|---|---|
| G-score | A |
| Bebouwde oppervlakte (m²) | 0 |
| Tuin oppervlakte (m²) | 0 |
| Oppervlakte terras (m²) | 0 |
Vergunning
| Verkavelingsvergunning | Geen beschikbaar |
|---|
Uitrusting
| Investeringspand | Nee |
|---|---|
| Parking | Nee |
| Garage | Ja |
| Opslagruimte | Ja |
| Tuin | Ja |
| Terras | Ja |
| Lift | Nee |
| Rioolaansluiting | Nee |
| Gasaansluiting | Nee |
| Wateraansluiting | Nee |
| Elektriciteitsaansluiting | Nee |
| Internetaansluiting | Nee |
| Telefoonaansluiting | Nee |
| Zonnepanelen | Nee |
| Zonneboiler | Nee |
| Alarm | Nee |
| Videofoon | Nee |
| Grondwaterput | Nee |
Appartementsblok
| Lift | Nee |
|---|---|
| Intercom | Nee |
Een pand van
Vastgoedkantoor MARVY
Vastgoedkantoor MARVY - Keigoed in vastgoed!
Meer dan 50 jaar vastgoedervaring in Genk en rand kan het verschil maken!
Wij staan u graag vrijblijvend te woord om u te overtuigen van onze meerwaarde.
Wij vernemen het graag , u kan ons bereiken op 089/36.45.50 (tussen 9u en 12u) of via info@marvy.be
VD10/2026 (VD43/2025)
Leer meer over vastgoed
Nieuw
01 March 2026
Wanneer heb ik een bouwvergunning of omgevingsvergunning nodig?
17 February 2026
Hoe breng ik een bod uit op een woning?
24 November 2025
Uitgezocht voor jouw gemeente: Hoeveel stijgt de waarde van je woning door een renovatie?
22 October 2025
