Prachtig gelegen bouwgrond voor open bebouwing!
€ 155.000
Een pand van Sensimmo
Overzicht
- 310 m² bewoonbaar
- 721 m² grond
- 1 Tuin
Beschrijving
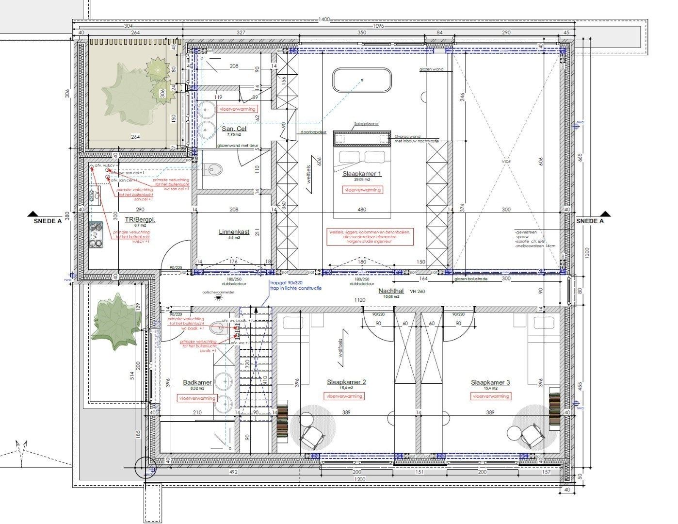
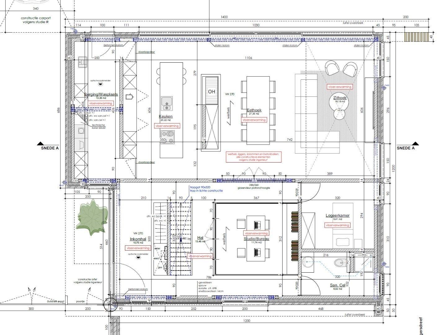
Deze prachtige bouwgrond bestemd voor open bebouwing met vergunde architectuurplannen is gelegen in een rustige woonwijk te Niel bij As, op een mooi perceel van 7a 21ca. Het perceel biedt veel mogelijkheden gezien de royale afmetingen en de geldende bouwvoorschriften.
AFMETINGEN:
Perceelbreedte: 22,8 meter
Perceeldiepte: 28 meter
Gevelbreedte conform bestaande plannen in aanvraag: 14 meter
In de verkoopprijs zijn de plannen inbegrepen, uiteraard hebt u zelf de keuze of u de bestaande plannen al dan niet gaat uitvoeren! Opgelet: De 3D renders dienen enkel ter illustratie.
Interesse? Aarzel niet en contacteer ons op het nummer 089/20.90.88.
AFMETINGEN:
Perceelbreedte: 22,8 meter
Perceeldiepte: 28 meter
Gevelbreedte conform bestaande plannen in aanvraag: 14 meter
In de verkoopprijs zijn de plannen inbegrepen, uiteraard hebt u zelf de keuze of u de bestaande plannen al dan niet gaat uitvoeren! Opgelet: De 3D renders dienen enkel ter illustratie.
Interesse? Aarzel niet en contacteer ons op het nummer 089/20.90.88.
Energie
- Verwarming: Geen
- Beglazing: Onbekend
Op de kaart

Downloads
Financieel
| Prijs | |
|---|---|
| Kadastraal inkomen (niet geïndexeerd) | € 2 |
Berekening kosten
Je aankoopkosten? Die heb je snel berekent via de knop hieronder.
Bijkomende info
Gebouw
| Is beschermd | Nee |
|---|
Perceel
| Overstromingsgevoelig | Geen |
|---|---|
| P-score | A |
| Voorkeurrecht | Nee |
| Totale oppervlakte (m²) | 721 |
Vergunning
| Vergunning | Geen beschikbaar |
|---|---|
| Verkavelingsvergunning | Vergunning beschikbaar |
| Bouwovertreding dagvaardiging | Geen |
| Type gebied | Stedelijk |
Uitrusting
| Meerdere eigenaars | Nee |
|---|---|
| Rioolaansluiting | Nee |
| Gasaansluiting | Nee |
| Wateraansluiting | Nee |
| Elektriciteitsaansluiting | Nee |
| TV aansluiting | Nee |
| Internetaansluiting | Nee |
Een pand van
Sensimmo
Sensimmo Vastgoed - gevoel voor wonen
Sensimmo bestaat uit een zeer enthousiast team van medewerkers! Ieder van hen beschikt over een grote dosis professionele ervaring, juridische kennis en doorzettingsvermogen. Zij gaan voluit voor een kwalitatieve aanpak van de verkoop van uw woning, uw levensinvestering!
3583
Leer meer over vastgoed
Nieuw
24 November 2025
Uitgezocht voor jouw gemeente: Hoeveel stijgt de waarde van je woning door een renovatie?
22 October 2025
Hoeveel kan ik lenen om een huis te kopen?
11 June 2025
Huis kopen met bouwovertreding? Dit moet je weten
11 May 2025