Nieuw
Energiezuinige woning met 4 slpkrs, zwembad en wellness in As
€ 575.000
Een pand van Frère Vastgoed
Overzicht
- 192 m² bewoonbaar
- 792 m² grond
- 4 Slaapkamer(s)
- 1 Badkamer(s)
Beschrijving
Welkom op de Boshoekstraat 20 in As.
Bent u op zoek naar een ruime open bebouwing op een rustige locatie in As?
Bent u op zoek naar een instapklare woning met bijhorende luxe, zoals een zwembad, wellnessruimte, zonnepanelen, etc.
Dan is deze bijzondere woning met 4 slaapkamers precies wat u zoekt!
Deze moderne woning, met een totale bruikbare oppervlakte van maar liefst 312 m² , is gebouwd in 2008 op een perceel van 7a 92ca.
Deze open bebouwing ligt op wandelafstand van het centrum van As.
Het resultaat? Kortom de ideale plek voor gezinnen, wandelaars, rustzoekers en natuurliefhebbers.
Ontdek deze bijzondere woning alvast via de virtuele rondleiding:
👉 https://player.vimeo.com/video/1124186809
Troeven van de woning:
✔ Gerenoveerd in 2020
✔ Zonnepanelen (26 panelen) met certificaten
✔ Verwarmd zwembad (8m x 4m)
✔ Zuid georiënteerde tuin
✔ Welness met alle gewenste voorzieningen
✔ Verwarming op gas - vloerverwarming en radiatoren
✔ Gashaard aanwezig
✔ Goede verbinding met de E314, het centrum As
✔ Open bebouwing & volledig omheind
✔ Woonoppervlakte (netto): 214,40 m²
✔ Bruikbare oppervlakte (netto): 312,30 m²
✔ Goed geïsoleerde woning I B-label
✔ 4 slaapkamers
Indeling
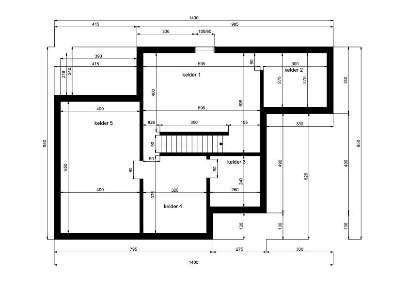
Kelder : 87 m²
De woning is volledig onderkelderd.
De kelder bestaat uit: een wellness, ontspanningsruimte, een ontvangstruimte en een bureel.
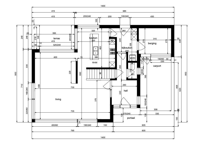
Gelijkvloers: 87 m²
Het gelijkvloers bestaat uit: inkomhal, woonkamer, keuken, bijkeuken, berging, toilet en carport.
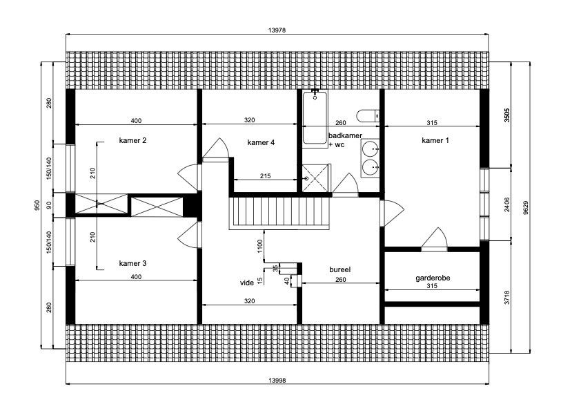
Verdiep 1: 105 m²
Via de vaste trap bereikt u het verdiep.
Op het verdiep beschikt u over een nachthal, bureel, slaapkamer 1, slaapkamer 2, slaapkamer 3, slaapkamer 4 en 1 badkamer.
Verdiep 2:
Momenteel wordt de zolder als stockageruimte gebruikt.
Tuin:
Aan de voorkant van het perceel is er een carport aanwezig.
Daarenboven is het perceel volledig omheind.
In de achterliggende tuin beschikt u over een verwarmd zwembad (8m x 4m) en een tuinhuis.
Documenten
Het EPC-verslag en de grondplannen kan u eenvoudig downloaden in bijlage.
Interesse in een bezichtiging?
Bel ons via 089 391 555 of mail naar info@frerevastgoed.be.
* Opmetingen van de binnenmaten zijn indicatief en kunnen licht afwijken.
Bent u op zoek naar een ruime open bebouwing op een rustige locatie in As?
Bent u op zoek naar een instapklare woning met bijhorende luxe, zoals een zwembad, wellnessruimte, zonnepanelen, etc.
Dan is deze bijzondere woning met 4 slaapkamers precies wat u zoekt!
Deze moderne woning, met een totale bruikbare oppervlakte van maar liefst 312 m² , is gebouwd in 2008 op een perceel van 7a 92ca.
Deze open bebouwing ligt op wandelafstand van het centrum van As.
Het resultaat? Kortom de ideale plek voor gezinnen, wandelaars, rustzoekers en natuurliefhebbers.
Ontdek deze bijzondere woning alvast via de virtuele rondleiding:
👉 https://player.vimeo.com/video/1124186809
Troeven van de woning:
✔ Gerenoveerd in 2020
✔ Zonnepanelen (26 panelen) met certificaten
✔ Verwarmd zwembad (8m x 4m)
✔ Zuid georiënteerde tuin
✔ Welness met alle gewenste voorzieningen
✔ Verwarming op gas - vloerverwarming en radiatoren
✔ Gashaard aanwezig
✔ Goede verbinding met de E314, het centrum As
✔ Open bebouwing & volledig omheind
✔ Woonoppervlakte (netto): 214,40 m²
✔ Bruikbare oppervlakte (netto): 312,30 m²
✔ Goed geïsoleerde woning I B-label
✔ 4 slaapkamers
Indeling
Kelder : 87 m²
De woning is volledig onderkelderd.
De kelder bestaat uit: een wellness, ontspanningsruimte, een ontvangstruimte en een bureel.
Gelijkvloers: 87 m²
Het gelijkvloers bestaat uit: inkomhal, woonkamer, keuken, bijkeuken, berging, toilet en carport.
Verdiep 1: 105 m²
Via de vaste trap bereikt u het verdiep.
Op het verdiep beschikt u over een nachthal, bureel, slaapkamer 1, slaapkamer 2, slaapkamer 3, slaapkamer 4 en 1 badkamer.
Verdiep 2:
Momenteel wordt de zolder als stockageruimte gebruikt.
Tuin:
Aan de voorkant van het perceel is er een carport aanwezig.
Daarenboven is het perceel volledig omheind.
In de achterliggende tuin beschikt u over een verwarmd zwembad (8m x 4m) en een tuinhuis.
Documenten
Het EPC-verslag en de grondplannen kan u eenvoudig downloaden in bijlage.
Interesse in een bezichtiging?
Bel ons via 089 391 555 of mail naar info@frerevastgoed.be.
* Opmetingen van de binnenmaten zijn indicatief en kunnen licht afwijken.
Energie
![]() |
- EPC Certificaat: 20251002-0003699554-RES-1
- Energieverbruik: 158 kWh/m²/jaar
- E-peil: E0
- Beglazing: Onbekend
Op de kaart

Financieel
| Prijs |
|---|
Berekening kosten
Je aankoopkosten? Die heb je snel berekent via de knop hieronder.
Bijkomende info
Gebouw
| Bouwjaar | 2008 |
|---|---|
| Staat | Goed onderhouden |
| Bewoonbaar (m²) | 192 |
| Badkamers | 1 |
| Slaapkamers | 4 |
| Verdiepingen | 0 |
| Garages | 0 |
| Parkeerplaatsen | 0 |
| Toiletten | 0 |
Faciliteiten
| Septische tank | Nee |
|---|
Perceel
| P-score | A |
|---|---|
| G-score | A |
| Totale oppervlakte (m²) | 792 |
| Bebouwde oppervlakte (m²) | 279 |
| Oppervlakte terras (m²) | 0 |
| Oriëntatie tuin | Zuid |
Vergunning
| Verkavelingsvergunning | Geen beschikbaar |
|---|
Uitrusting
| Investeringspand | Nee |
|---|---|
| Parking | Nee |
| Garage | Nee |
| Thuiskantoor | Ja |
| Opslagruimte | Ja |
| Terras | Ja |
| Lift | Nee |
| Rioolaansluiting | Ja |
| Gasaansluiting | Ja |
| Wateraansluiting | Ja |
| Elektriciteitsaansluiting | Ja |
| Internetaansluiting | Ja |
| Telefoonaansluiting | Ja |
| Zonnepanelen | Ja |
| Zonneboiler | Nee |
| Alarm | Nee |
| Videofoon | Nee |
| Grondwaterput | Nee |
Een pand van
Frère Vastgoed
Welkom bij Frère Vastgoed.
Frère Vastgoed is uw partner bij de verkoop, verhuur of aankoop van elk type vastgoed.
Het verkopen, verhuren of aankopen van vastgoed is een ingewikkeld proces.
Frère Vastgoed helpt u graag met een resultaatgerichte en persoonlijke begeleiding bij één van de belangrijkste transacties in uw leven.
Boshoekstraat 20, 3665 As
Leer meer over vastgoed
24 November 2025
Uitgezocht voor jouw gemeente: Hoeveel stijgt de waarde van je woning door een renovatie?
22 October 2025
Hoeveel kan ik lenen om een huis te kopen?
11 June 2025
Huis kopen met bouwovertreding? Dit moet je weten
11 May 2025
